Bildegalleri
Plantegning Hus 1 B
Inaktiv
Bjorøyvegen 333
Bjorøyvegen 333
Prisantydning6 950 000 kr
Prosjektets status
Planlegging
Sommer 2025
Salgsstart
Høst 2025
Byggestart
Vinter 2026
Overtakelse
Sommer 2027
Nøkkelinfo
- Boligtype
- Enebolig
- Soverom
- 4
- Rom
- 5
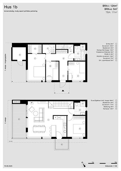
- Internt bruksareal
- 124 m² (BRA-i)
- Bruksareal
- 129 m²
- Eksternt bruksareal
- 5 m² (BRA-e)
- Balkong/Terrasse
- 17 m² (TBA)
Fasiliteter
Aircondition
Balkong/Terrasse
Garasje/P-plass
Peis/Ildsted
Utsikt
Turterreng
Beskrivelse
Ansvarlig megler
Lena Leikvoll
NB: Knappen for å vise hele beskrivelsen har kun en visuell effekt.
NB: Knappen for å vise hele beskrivelsen har kun en visuell effekt.
Nyttige lenker
Nærområdet
EiendomsMegler 1 Nybygg Bergen
Annonseinformasjon
| FINN-kode | 430026355 |
|---|---|
| Sist endret | 03. okt. 2025 05:56 |
| Referanse | 2706250396 |
Annonsene kan være mangelfulle i forhold til lovpålagt opplysningsplikt. Før bindende avtale inngås oppfordres interessenter til å innhente komplett informasjon fra meglerforetaket, selger eller utleier.