Bildegalleri

1 etg

Solgt

Utsolgt - Moderne tomannsbolig under oppføring på Fammestad. Flott utsikt og ...

Tomannsbolig Mykingvegen 468 A

Prisantydning3 690 000 kr
Totalpris
3 701 710 kr
Omkostninger
11 710 kr
  • Planlegging

    -

  • Salgsstart

    -

  • Byggestart

    - 15.09.2025

  • Overtakelse

    - Q2 2026

Nøkkelinfo

Boligtype
Tomannsbolig
Soverom
3
Rom
4
Internt bruksareal
99 m² (BRA-i)
Bruksareal
105 m²
Eksternt bruksareal
5 m² (BRA-e)
Balkong/Terrasse
14 m² (TBA)

Les mer om bruksareal her

Beskrivelse

Oppdragsansvarlig

Nordhordland Eiendomsmegling AS / Magnus André Nilsen

Oppdragsnummer
195-25-9003
Mykingvegen 468

Underoppdrag:
195-25-0124 Mykingvegen 468A
195-25-0125 Mykingvegen 468B

Selger/Utbygger

Bolig & Eiendom AS

Hjemmelshaver:
Bolig & Eiendom AS

Betegnelse

Gnr. 24 Bnr. 159 Snr. 1 i Alver kommune

Eiendommen vil bli seksjonert. Seksjonsnummer og sameiebrøk vil tilkomme for de to boenhetene.

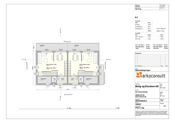
Arealer og fordeling per etasje

Totalt BRA 105 kvm består av:
- BRA-i (internt bruksareal): 99,30 kvm
- BRA-b (innglasset balkong):
- BRA-e (eksternt bruksareal): 5,70 kvm

- TBA (terrasse-/balkongareal) 14,30 kvm

Det totale bruksarealet for tomannsboligene fordeler seg som følger:
Første etasje:
- BRA: 52,3 kvm
- BRA-i: 52,3kvm

Andre etasje:
- BRA: 53 kvm
- BRA-i: 47,3 kvm
- BRA-e: 5,7 kvm
- TBA: 14,3 kvm

1.etasje: Gang, 3 soverom, bad med tilhørende vaskerom/tekniskrom.

2.etasje: Entre, toalettrom, stue med åpen kjøkkenløsning. Sportsbod med inngang fra utsiden av boligen.

TBA: Veranda med utgang fra stue/kjøkken.

Beliggenhet

Pen og praktisk bolig på Fammestad med landlig beliggenhet og bekvemmelighet. Beliggende i et nyetablert boligfelt, vil du raskt føle deg hjemme i denne barnevennlige oasen kun 20 minutters kjøring fra Knarvik.

Boligen har gode solforhold og gir deg muligheten til å starte dagen med en kopp kaffe på terrassen mens du nyter den rolige utsikten over Heggernesvannet. Her kan du oppleve naturens skjønnhet og ro rett utenfor dørstokken.

For de som elsker utendørsaktiviteter, vil Fammestad være det perfekte hjemmet. Området rundt byr på flotte rekreasjonsområder, perfekt for turer og padling. Enten du vil utforske skogkledde stier eller padle på vannet, vil du alltid ha muligheter for å være aktiv.

Familier vil sette pris på den korte avstanden til skoler, barnehager og bussforbindelser. Dine barn vil ha trygge omgivelser for å vokse opp og utforske, og du kan ha full ro i sjelen mens de leker i dette vennlige nabolaget.

Denne eiendommen gir deg muligheten til å skape ditt drømmehjem i en idyllisk og praktisk beliggenhet. Her får du det beste av begge verdener, med landlig sjarm og enkel tilgang til alle nødvendige fasiliteter. Ikke gå glipp av sjansen til å bo i dette fantastiske området!

Beskrivelse av nærområdet / fasiliteter

Barnehager:
Barnas barnehage Kløvheim (1-5 år) - 1,9 km
Leiknes FUS barnehage (1-5 år) - 11,1 km
Seim barnehage (1-5 år) - 12,5 km

Skoler:
Eikanger skule - 5 km (1-7kl.)
Ostereidet barne og ungdomsskule (1-10kl) - 12,7 km.
Knarvik ungdomsskule (8-10kl) - 17,6 km.
Knarvik vgs - avd. Juvikstølen - 17,6 km.
Knarvik vgs - avd. Kvernhusmyrane - 17,5 km.

Dagligvare:
Nærbutikken Eikangervåg - 3 min
Nærbutikken Myking Handel - 7 min.

Sport:
Kløvheim - ballbinge - 2 min
Parken Treningssenter Eikanger - 10 min
Fitnesspoint Knarvik - 18 min
Studio Nor Knarvik - 19 min

Varer/Tjenester:
Knarvik Senter - 18 min
Lindås Senter- 18 min

Bygninger

Området er bebygget med ene og tomannsboliger

Byggemåte

Boligene blir oppført i henhold til TEK 17. Alle arbeider utføres etter gjeldende plan- og bygningslov og byggetillatelse fra Alver kommune.

Tillatelser som foreligger pr idag:

Løyve til oppføring av vertikaldelt tomannsbolig datert 27.06.2025

Innhold

Tomannsboligen er horisontaltdelt og går over to etasjer. Man kommer inn på hovedetasjen i entreen som fører videre til stue/kjøkken og toalettrom. Fra stue/kjøkken er det trapp til underetasjen samt utgang til altan. Underetasjen inneholder tre gode soverom, bad og tekniskrom/vaskrom.

Se vedlagte plantegninger for nærmere informasjon om innhold.

Standard

Boligene oppføres etter TEK17 med gode kvaliteter og løsninger. De har et moderne uttrykk og det er lagt vekt på gode materialvalg både innvendig og utvendig. De får et pent formspråk og plasseringen på tomten er god med tanke på uterom og parkering.

Denne moderne tomannsboligen har en lys entré med god plass til garderobe, ideell for oppbevaring av yttertøy, og med direkte tilgang til toalettrommet som er et perfekt gjestetoalett. Entréen har flislagt gulv (30x30 cm) med varmekabler, som gir ekstra komfort.

Badet er helfliset, med gulvfliser (20x20 cm) og veggfliser (20x40 cm) fra Modena. Baderomsgulvet har varmekabler. Badet er utstyrt med speil med lys, vegghengt toalett, og baderomsinnredning av god kvalitet.

Boligen har en åpen stue- og kjøkkenløsning, hvor store vindusflater og fyller rommet med rikelig naturlig lys. Kjøkkeninnredningen leveres fra IKEA, og det et er satt av 80 000 kr til kjøkkenleveranse inkludert montering. I alle tørre rom utenom entreen legges moderne laminatgulv av typen 'Modern Gray Oak'.

De som kjøper i prosjektet på et tidlig stadium vil ha mulighet til selv å påvirke kvaliteter. Herunder kan du bestemme kjøkkenløsning, farger på vegger og gulv. Du kan da gjøre tilvalg etter din egen stil, behov og hverdag.

Selger vil opplyse frister for endringer. Se leveransebeskrivelse i salgsprospektet for mer informasjon om standard og kvaliteter.

Utstyr

Balansert ventilasjon med varmegjenvinning

Møblering

Boligene leveres umøblert.

Oppvarming

Det leveres varmekabler i bad/vaskerom og entre. Varmekabler i entrè (flislagt del).

Balansert ventilasjon med varmegjenvinning.

Det blir levert stålpipe ferdig utvendig og avsluttet underkant innvendig himling for enkel komplettering til
ønsket ildsted. Alternativt pusset Lecapipe med beslag over tak. Utbygger og arkitekt forbeholder seg retten til å
endre plassering. Selve ildstedet leveres ikke, men kan fås ved tilvalg.

Det opplyses for orden skyld at det ikke er varmekilder i alle rom. Kjøper må evt. komplementere med panelovner.

Parkering / Garasje

Hver boenhet disponerer to parkeringsplasser. Innkjørsel og parkeringsareal vil bli opparbeidet med grus.

Adkomst

Følg E39 mot Eikangervåg og ta av her mot Myking. Følg veien rett frem forbi Høyland mot Fammestad. Boligen ligger på høyrehånd like før Fammestad.

Det vil bli skiltet med PRIVATmegleren visningsskilt på visningsdagen.

På finn.no kan du alternativt se vedlagt kartskisse på høyre side i annonse. Ved å trykke på kartet får du enkelt tilgang til en spesifisert reiserute fra din startdestinasjon til boligen.

Beskrivelse av tomt

Tomten blir felles eiet på ca. 1302,50 kvm.

Se vedlagte situasjonsplan som viser arealet.

Innkjørsel og parkering gruses.
Stein og stedlige jordmasser grov planeres. Arealer ellers rundt bolig grov planeres med stedlige masser.
Støttemurer og eventuelle sikringsgjerder vil bli etablert i samsvar med avdekket behov etter at det er foretatt av graving, sprenging og terreng- arrondering. Dersom det blir etablert murer, settes disse opp i naturstein/betong/betongblokker og- eller annet som er egnet. Eventuelle gjerder av gjerdenett/treverk eller annet som er egnet. Utbygger forbeholder seg retten til materialvalg utover illustrert på tegning/prospekt.

Utomhusplanen/situasjonsplan og 3D illustrasjoner er veiledende for utforming av utearealene, og kan ikke sees på som fasit. Hage med plen/beplantning mm. må opparbeides av kjøper. Kjøperne må i felleskap selv stå for opparbeidelse av hage og utearealer. Se tomtens utforming på visning.

Tinglyste rettigheter og forpliktelser

Kommunen har legalpant som sikkerhet for betaling av kommunale avgifter. Legalpant er pant som følger av loven, og som ikke tinglyses. Legalpant følger derfor eiendommen ved salg. På eiendommen kan det være tinglyst erklæringer som f eks rett for kommunen til å vedlikeholde rørsystemer for vann- og kloakk. Disse erklæringene vil følge eiendommen ved salg. Kontakt megler for nærmere informasjon.

Øvrige sameiere har panterett i seksjonen for krav mot sameieren som følge av sameieforholdet, jf. eierseksjonsloven § 31. Pantekravet kan ikke overstige 2G (Folketrygdens grunnbeløp). Sameiet kan vedtektsfeste ytterligere panterett for sameiet. Vedtektsfestet pant tinglyses i seksjonene.

Servitutter / rettigheter

Eiendommen overdras fri for pengeheftelser, med unntak av eventuelle erklæringer, avtaler, servitutter og panteheftelser som fremgår av salgsoppgaven og skal følge med eiendommen ved salg. Kjøpers bank vil få prioritet etter disse.


1918/900278-1/51 Utskifting
06.03.1918
utmark
Overført fra: 4631-24/154
Gjelder denne registerenheten med flere

1932/900268-1/51 Erklæring/avtale
07.03.1932
Bestemmelse om benyttelse
Overført fra: 4631-24/154
Gjelder denne registerenheten med flere

1936/1795-1/51 Utskifting
25.08.1936
innmark
Overført fra: 4631-24/154
Gjelder denne registerenheten med flere

1937/443-1/51 Utskifting
22.02.1937
utmark
Overført fra: 4631-24/154
Gjelder denne registerenheten med flere

1943/303-1/51 Erklæring/avtale
08.02.1943
Avløsningsforretning av gården Hauges beiterett i denne
gårds utmark
Overført fra: 4631-24/154
Gjelder denne registerenheten med flere

1944/444-1/51 Utskifting
06.03.1944
Utskifting over Hauges utmark.
Overført fra: 4631-24/154
Gjelder denne registerenheten med flere

1944/2563-1/51 Erklæring/avtale
15.12.1944
Overutskifting
Overført fra: 4631-24/154
Gjelder denne registerenheten med flere

1945/1977-2/51 Bestemmelse om vannledn.
03.11.1945
rettighetshaver:Knr:4631 Gnr:24 Bnr:11
Med flere bestemmelser
Overført fra: 4631-24/154
Gjelder denne registerenheten med flere

1945/1978-2/51 Bestemmelse om vannledn.
03.11.1945
rettighetshaver:Knr:4631 Gnr:24 Bnr:12
Med flere bestemmelser
Overført fra: 4631-24/154
Gjelder denne registerenheten med flere

1946/2932-2/51 Bestemmelse om veg
08.11.1946
rettighetshaver:Knr:4631 Gnr:24 Bnr:13
Bestemmelse om stolpefeste/el.ledn. m.v.
Overført fra: 4631-24/154
Gjelder denne registerenheten med flere

1948/1250-2/51 Bestemmelse om vannrett
28.04.1948
rettighetshaver:Knr:4631 Gnr:24 Bnr:15
Bestemmelse om vannledning
Bestemmelse om stolpefeste/el.ledn. m.v.
Overført fra: 4631-24/154
Gjelder denne registerenheten med flere

1948/1441-2/51 Bestemmelse om vannrett
18.05.1948
rettighetshaver:Knr:4631 Gnr:24 Bnr:16
Bestemmelse om vannledning
Overført fra: 4631-24/154
Gjelder denne registerenheten med flere

1949/990005-1/51 Elektriske kraftlinjer
14.06.1949
Rettighetshaver: Nordhordland Komm. Kraftlag
Overført fra: 4631-24/154
Gjelder denne registerenheten med flere

1949/4180-2/51 Bestemmelse om vannrett
21.11.1949
rettighetshaver:Knr:4631 Gnr:24 Bnr:17
Bestemmelse om stolpefeste/el.ledn. m.v.
Med flere bestemmelser
Overført fra: 4631-24/154
Gjelder denne registerenheten med flere

1953/500-2/51 Bestemmelse om vannrett
05.02.1953
rettighetshaver:Knr:4631 Gnr:24 Bnr:20
Bestemmelse om vannledning
Overført fra: 4631-24/154
Gjelder denne registerenheten med flere

1953/2762-2/51 Bestemmelse om vannrett
20.07.1953
rettighetshaver:Knr:4631 Gnr:24 Bnr:21
Bestemmelse om vannledning
Bestemmelse om stolpefeste/el.ledn. m.v.
Overført fra: 4631-24/154
Gjelder denne registerenheten med flere

1954/2182-2/51 Bestemmelse om vannrett
14.06.1954
rettighetshaver:Knr:4631 Gnr:24 Bnr:22
Bestemmelse om vannledning
Med flere bestemmelser
Overført fra: 4631-24/154
Gjelder denne registerenheten med flere

1954/3828-2/51 Bestemmelse om vannrett
05.10.1954
rettighetshaver:Knr:4631 Gnr:24 Bnr:23
Bestemmelse om vannledning
Bestemmelse om adkomstrett
Bestemmelse om stolpefeste/el.ledn. m.v.
Overført fra: 4631-24/154
Gjelder denne registerenheten med flere

1956/3461-2/51 Bestemmelse om veg
10.09.1956
rettighetshaver:Knr:4631 Gnr:24 Bnr:24
Bestemmelse om naustplass
Med flere bestemmelser
Overført fra: 4631-24/154
Gjelder denne registerenheten med flere

1956/3462-2/51 Bestemmelse om veg
10.09.1956
rettighetshaver:Knr:4631 Gnr:24 Bnr:25
Med flere bestemmelser
Overført fra: 4631-24/154
Gjelder denne registerenheten med flere

1957/4615-1/51 Jordskifte
15.11.1957
Overført fra: 4631-24/154
Gjelder denne registerenheten med flere

1958/1703-1/51 Erklæring/avtale
03.05.1958
overjordskifte
Overført fra: 4631-24/154
Gjelder denne registerenheten med flere

1961/1490-2/51 Bestemmelse om vannrett
08.04.1961
rettighetshaver:Knr:4631 Gnr:24 Bnr:37
Bestemmelse om vannledning
Med flere bestemmelser
Overført fra: 4631-24/154
Gjelder denne registerenheten med flere

1961/1492-2/51 Bestemmelse om vannrett
08.04.1961
rettighetshaver:Knr:4631 Gnr:24 Bnr:38
Bestemmelse om vannledning
Med flere bestemmelser
Overført fra: 4631-24/154
Gjelder denne registerenheten med flere

1962/3910-2/51 Bestemmelse om vannrett
17.08.1962
rettighetshaver:Knr:4631 Gnr:24 Bnr:41
Bestemmelse om vannledning
Med flere bestemmelser
Overført fra: 4631-24/154
Gjelder denne registerenheten med flere

1963/4410-3/51 Bestemmelse om vannrett
11.09.1963
rettighetshaver:Knr:4631 Gnr:24 Bnr:45
rettighetshaver:Knr:4631 Gnr:24 Bnr:46
rettighetshaver:Knr:4631 Gnr:24 Bnr:47
Bestemmelse om vannledning
Overført fra: 4631-24/154
Gjelder denne registerenheten med flere

1964/6363-3/51 Bestemmelse om veg
20.11.1964
rettighetshaver:Knr:4631 Gnr:24 Bnr:50
Bestemmelse om veg
Med flere bestemmelser
Overført fra: 4631-24/154
Gjelder denne registerenheten med flere

1966/5245-1/51 Bestemmelse om vannrett
15.09.1966
rettighetshaver:Knr:4631 Gnr:24 Bnr:52
Bestemmelse om vannledning
Overført fra: 4631-24/154
Gjelder denne registerenheten med flere

1969/8330-1/51 Bestemmelse om veg
04.11.1969
rettighetshaver:Knr:4631 Gnr:24 Bnr:54
Overført fra: 4631-24/154
Gjelder denne registerenheten med flere

1971/4735-1/51 Bestemmelse om vannledn.
17.06.1971
Rettighetshaver: Tveitegrend Vassverk
Overført fra: 4631-24/154
Gjelder denne registerenheten med flere

1981/2908-2/51 Best. om vann/kloakkledn.
27.04.1981
rettighetshaver:Knr:4631 Gnr:24 Bnr:90
Bestemmelse om veg
Med flere bestemmelser
Overført fra: 4631-24/154
Gjelder denne registerenheten med flere

1981/2910-2/51 Best. om vann/kloakkledn.
27.04.1981
rettighetshaver:Knr:4631 Gnr:24 Bnr:94
Bestemmelse om veg
Med flere bestemmelser
Overført fra: 4631-24/154
Gjelder denne registerenheten med flere

1984/33-2/51 Best. om båt/bryggeplass
03.01.1984
rettighetshaver:Knr:4631 Gnr:24 Bnr:125
Bestemmelse om vann/kloakkledning
Overført fra: 4631-24/154
Gjelder denne registerenheten med flere

1988/5554-2/51 Bestemmelse om veg
08.07.1988
rettighetshaver:Knr:4631 Gnr:24 Bnr:127
Bestemmelse om vann/kloakkledning
Med flere bestemmelser
Overført fra: 4631-24/154
Gjelder denne registerenheten med flere

1992/8410-2/51 Best. om adkomstrett
08.10.1992
rettighetshaver:Knr:4631 Gnr:24 Bnr:132
Overført fra: 4631-24/154
Gjelder denne registerenheten med flere

2010/640787-1/200 Erklæring/avtale
27.08.2010
Rettighetshaver:BKK AS
Org.nr: 976944801
Avtale om bygging, drift, vedlikehold og fornyelse av frittstående nettstasjon og tilhørende kabelanlegg. Nettstasjon nr 12050 Fammestad
Overført fra: 4631-24/154
Gjelder denne registerenheten med flere

2011/839687-1/200 Erklæring/avtale
14.10.2011
Rettighetshaver:BKK AS
Org.nr: 976944801
Rett til bygging/drift av lufteledningsanlegg
Bestemmelse om bebyggelse
Rett til skogrydding
Bestemmelse om adkomstrett
Med flere bestemmelser
Overført fra: 4631-24/154
Gjelder denne registerenheten med flere

2011/839708-1/200 Erklæring/avtale
14.10.2011
Rettighetshaver:BKK AS
Org.nr: 976944801
Rett til bygging/drift av luftledningsanlegg
Bestemmelse om bebyggelse
Rett til skogrydding
Bestemmelse om adkomstrett
Med flere bestemmelser
Overført fra: 4631-24/154
Gjelder denne registerenheten med flere

2015/492034-2/200 Bestemmelse om veg
03.06.2015
rettighetshaver:Knr:4631 Gnr:24 Bnr:94
Overført fra: 4631-24/154
Gjelder denne registerenheten med flere

2017/616706-1/200 Elektriske kraftlinjer
12.06.2017 21:00
Rettighetshaver:BKK AS
Org.nr: 976944801
Bestemmelse om vedlikehold av anlegg/ledninger
Bestemmelse om luftledningsanlegg, høyspentledninger, signalkabler
Overført fra: 4631-24/154
Gjelder denne registerenheten med flere

2017/616706-2/200 Bestemmelse om bebyggelse
12.06.2017 21:00
Rettighetshaver:BKK AS
Org.nr: 976944801
Overført fra: 4631-24/154
Gjelder denne registerenheten med flere

2017/616706-3/200 Bestemmelse om ryddebelte
12.06.2017 21:00
Rettighetshaver:BKK AS
Org.nr: 976944801
Overført fra: 4631-24/154
Gjelder denne registerenheten med flere

2017/616706-4/200 Bestemmelse om adkomstrett
12.06.2017 21:00
Rettighetshaver:BKK AS
Org.nr: 976944801
Overført fra: 4631-24/154
Gjelder denne registerenheten med flere

2017/616738-1/200 Bestemmelse om nettstasjon
12.06.2017 21:00
Rettighetshaver:BKK AS
Org.nr: 976944801
Bestemmelse om vedlikehold av anlegg/ledninger
Overført fra: 4631-24/154
Gjelder denne registerenheten med flere

2017/616738-2/200 Bestemmelse om jordkabel/jordkabelanlegg
12.06.2017 21:00
Rettighetshaver:BKK AS
Org.nr: 976944801
Bestemmelse om vedlikehold
Overført fra: 4631-24/154
Gjelder denne registerenheten med flere

2017/616738-3/200 Bestemmelse om bebyggelse
12.06.2017 21:00
Rettighetshaver:BKK AS
Org.nr: 976944801
Overført fra: 4631-24/154
Gjelder denne registerenheten med flere

2017/616738-4/200 Bestemmelse om adkomstrett
12.06.2017 21:00
Rettighetshaver:BKK AS
Org.nr: 976944801
Overført fra: 4631-24/154
Gjelder denne registerenheten med flere

Det vil bli tinglyst seksjoneringsbegjæring.

Det kan bli tinglyst diverse erklæringer ifm. utbygging, naboforhold og veirett. Kjøperen kan ikke motsette seg eller kreve prisavslag/erstatning for tinglysning av nødvendige erklæringer/bestemmelser knyttet til gjennomføringen av hele prosjektet og naboforhold.

Vei / Vann / Avløp

Eiendommen vil bli tilknyttet offentlig vann via private stikk- og fellesledninger.

Tiltaket skal knytast til privat felles renseanlegg. Rense-anlegget eies av alle tomtene/boligene i felleskap og vil måtte betjenes kostnadsmessig i lik andel av boligene i felleskap.

Adkomst til prosjektet skjer via privat vei, fra kommunal vei. Alle tomtene/boligene har solidarisk vedlikeholdsansvar og rett til å bruke veg inn i byggefeltet. Bolig & Eiendom eier veg-arealet idag og vil overføre eierskapet til alle brukene i byggefeltet ca april 2026

Avfallsbil fra Ngir kjører ned i feltet ved avfalls-henting. Avtalen blir skrevet og tinglyst 2026 april ved hjemmeloverdragelse av veg. pt betaler B&E for dette, men vil bli tilbakekalkulert på alle eiendommene i forhold til botid april 2026.

Ferdigattest eller midl. brukstillatelse

Ved overtagelse skal det foreligge ferdigattest eller midlertidig brukstillatelse. Dersom det kun er midlertidig brukstilatelse forplikter selger seg å fremskaffe ferdigattest senest 6 mnd etter overtagelse.

Verdi ved skattefastsetting

Verdien ved skattefastsetting er p.t. ikke fastsatt. Verdien ved skattefastsetting fastsettes av Ligningskontoret etter beregningsmodell som tar hensyn til om boligen er en såkalt "primærbolig" (der boligeieren er folkeregistrert bosatt) eller "sekundærbolig" (alle boliger man eier, men ikke bor fast i). Interessenter oppfordres til å sjekke www.skatteetaten.no eller kontakte ansvarlig megler for nærmere informasjon om verdien ved skattefastsetting.

Reguleringsforhold

Eiendommen ligger i område regulert til Busstad ihht reguleringsplan for Jydalen, Fammestad Planid:1263-201510. Vedtatt 23.03.2027.
Se vedlagte reguleringsplan for spesifikasjoner og reguleringskart som viser området.

Det er noen ubebygde tomter i nabolaget som må påregnes bebygget.

Beskrivelse av sameiet

Sameiet vil bestå av 2 eierseksjoner. Da sameiet har 2 boligseksjoner vil sameiet ikke være regnskapspliktig.

Det er utarbeidet utkast til standard vedtekter for sameiet. Slike blir bindende for kjøperne. Utbygger forbeholder seg retten til å endre vedtekter i forbindelse med endelig seksjonering/behov for bygningsmessige endringer tilknyttet prosjektet.

Det vil bli felles areal på hage, innkjørsel og parkeringsplasser. Se vedlagte situasjonsplan som viser disse områdene.

En sameier eier en andel i eiendommen, med tilknyttet enerett til bruk av sin bruksenhet, jf. eierseksjonsloven § 25.

Ingen kan erverve mer enn to boligseksjoner i et sameie, jf. eierseksjonsloven § 23 første ledd. Dersom et erverv har funnet sted i strid med eierseksjonslovens regler kan Kartverket nekte overskjøting. Dersom overskjøting blir nektet, er kjøper likevel forpliktet til å gjennomføre handelen med selger, og oppgjør til selger vil finne sted tross manglende overskjøting.

Interessenter oppfordres til å sette seg inn i sameiets vedtekter.

Sameiet er ikke stiftet. Megler kan ikke gi nærmere opplysninger om regnskap, budsjett og lignende

Andre faste løpende kostnader

Det må påregnes årlige utgifter til forsikring, kommunale avgifter,fellesutgifter til drift og vedlikehold av privat vei og privat avløpsanlegg, fellesutgifter i eierseksjonsameiet.

For disse boligene estimeres kommunale avgifter for vann og feiegebyr til ca. kr.8 216- + privat avløpsanlegg kr. 3 000,- ekstern renovasjon (NGIR) kr. 5 400,- pr bolig. (inkl mva) = 16 616,- pr år.

For nærmere opplysninger kontakt teknisk etat i Alver kommune.

Avvik vil forekomme da boligene i prosjektet ikke er ferdigstilt. Kommunale avgifter faktureres kvartalsvis.

Andre løpende kostnader ved kjøp av bolig vil typisk være: innboforsikring, forsikring av bolig, strøm etter forbruk, TV pakke/internett, brøyting av felles vei og fellesutgifter.

Kjøperne må delta andelsmessig i felleskostnad i boligen. Månedlig innbetaling til dekning av fellesutgifter er budsjettert da byggene er prosjektert og ikke ferdigstilt. Felleskostnadene vil normalt bestå av bl.a. strøm til fellesarealene og øvrige driftskostnader. Dette er estimert til kr 500,- pr mnd. pr bolig.

Kjøper må påregne utgifter til deltagelse i privat veilag, samt drift av avløpsanlegg.

Hver seksjon må tegne egen byggforsikring.

Sameiet blir ikke tilknyttet sikkerhetsordning for tap av felleskostnader.

Andel fellesgjeld / formue

Andel fellesgjeld kr. 0,- / Andel fellesformue kr. 0,- pr ifølge forretningsfører.
Andel fellesgjeld og evt. formue overtas av kjøper.

Oppgjør

Kjøper er forpliktet til å betale kjøpesummen etter følgende betalingsplan:

Før overtagelse 100 % av kjøpesum + omkostninger + evt tilvalg.

Selger plikter å stille garanti overfor kjøper i henhold til bestemmelsene i buofl. § 12.

Garanti etter buofl. § 12 skal stilles umiddelbart etter selgers aksept av kjøpers bud.

Hvis selger har tatt forbehold om enten a) åpning av byggelån, b) salg av et bestemt antall boliger eller c) igangsettingstillatelse, skal garanti stilles straks etter at forbehold er oppfylt og under enhver omstendighet innen byggearbeidene starter eller når kjøper foretar innbetaling.

Når det gjelder innbetaling av kjøpesum til klientkonto er det en forutsetning at selger har stilt § 12 garanti. Beløpet vil stå på meglers klientkonto inntil overtagelse og overskjøting har funnet sted, alternativt at utbygger har stillet § 47 garanti i henhold til bustadoppføringslova.

Total kjøpesum med tillegg av omkostninger skal være disponibelt på meglers klientkonto innen overtagelse.

Normalt innebærer dette at fullt oppgjør må være innbetalt på meglers klientkonto senest to virkedager før avtalt overtagelsesdato.

Oppgjør mellom partene foretas av:
Vestoppgjør AS,
Foretaksregisteret: orgnr. 920 376 355
Nesttunvegen 104, 5221 Nesttun

Finansiering

Kontakt megler for avklaring av finansielle forhold, herunder lån til kjøp av eiendom. Privatmegleren har avtale med Nordea om formidling av lån og andre finansielle tjenester. Privatmegleren mottar godtgjørelse for dette.

Annen nyttig informasjon

Alle opplysninger i denne beskrivelse er gitt med forbehold om rett til endringer som er hensiktsmessige og nødvendige, eller som følge av offentlige pålegg, uten at den generelle standarden forringes.

Alle innvendige og utvendige arealangivelser, samt beskrivelser av bygningen er hentet fra vedlagte leveransebeskrivelse og arkitekttegninger. Salgsoppgaven er basert på selgers opplysninger gitt til megler, samt opplysninger innhentet fra kommunen og andre tilgjengelige kilder. Interessenter oppfordres til å nøye gjennomgå leveransebeskrivelse, tegninger og prospekt før kjøpetilbud inngis.

Beskrivelsen sammen med avtaletegninger vil være dokumenter i avtalen. Dersom en ytelse er ulikt angitt på tegning og i leveransebeskrivelse, gjelder leveransebeskrivelsen.

Ved avvik mellom prospekt/annonser og leveransebeskrivelsen, gjelder leveransebeskrivelsen.

Alle illustrasjoner, skisser, "møblerte" plantegninger m.m. er kun ment å danne et inntrykk av den ferdige bebyggelsen, og kan ikke anses som endelig leveranse. Inntegnet utstyr/inventar er ment som illustrasjoner og medfølger ikke, og det kan derfor forekomme elementer i presentasjonsmaterialet som ikke inngår i leveransen. Generelle beskrivelser av prosjektet i salgs- og markedsføringsmateriell vil ikke passe for alle leiligheter. Kjøper oppfordres derfor særskilt til å vurdere den aktuelle boligens forhold (solforhold, utsikt, beliggenhet i forhold terreng og omkringliggende bygningsmasse m.v.) før budgivning. Alle opplysninger er gitt med forbehold om rett til endringer som er hensiktsmessige og/eller nødvendige, likevel slik at den generelle standard og utførelse ikke forringes eller endres vesentlig. Kjøper aksepterer uten prisjustering at utbygger har rett til å foreta slike endringer. Eksempel på slike endringer kan være innkassing av teknisk anlegg, mindre endringer av boligens areal og lignende.

Boligene leveres i byggrengjort stand. Kjøper må påregne utvask etter egen innflytning.

I nye bygg vil det normalt oppstå svinnriss, sprekker i tapet, maling mv. ved skjøter og sammenføyninger, dels på grunn av uttørking av materialer. Det påpekes spesielt at sprekker i materialoverganger og mellom tak og vegg og i hjørner ikke kan forlanges utbedret, så lenge disse ikke innebærer avvik fra god håndverksmessig standard under byggingen.

Med dagens tette boliger og miljøvennlige malingstyper kan det være fare for heksesot inne i boligene. Alle boliger bør derfor ventileres godt den første vinteren/året, og man bør være forsiktig med gassbruk og levende lys innvendig.

Selger gjør særskilt oppmerksom på at skjeggkre er funnet i flere boliger i Norge. Skjeggkre kan komme inn i boliger på en rekke forskjellige måter, både i forbindelse med oppføring av boligen, men også i forbindelse med innredning, bruk mv. Det er ikke et funksjonskrav under denne kjøpekontrakten at boligen skal være oppført på et vis som fjerner risikoen for skjeggkre.

Kjøper er kjent med at utomhusarbeider, avhengig av årstid, vil kunne bli ferdigstilt etter forbrukerens overtakelse av boligen. Når slik areal er ferdigstilt vil sameiets styre innkalles til en ferdigbefaring, hvor arealet gjennomgås sammen med utbygger. Det føres protokoll fra befaringen.

Ved alle besøk på byggeplass før overtakelse skal kunder alltid være i følge med en representant fra selger. All annen ferdsel på byggeplassen i anleggsperioden er beheftet med høy grad av risiko og er forbudt.

Ved avbestilling av boligen gjelder budstadoppføringlovas bestemmelser.

Adgang til utleie

Boligene kan i sin helhet leies ut til boligformål. Korttidsutleie av hele boligseksjonen i mer enn 90 døgn årlig er ikke tillatt. Med korttidsutleie menes utleie i inntil 30 døgn sammenhengende. Grensen på 90 døgn kan fravikes i vedtektene og kan i så fall settes til mellom 60 og 120 døgn.

Sikkerhetsstillelse

Alle eiendomsmeglingsforetak har lovpålagt forsikring av klientmidler begrenset oppad til kr 45 mill. Enkeltsaker er forsikret inntil kr 15 mill. Dersom kjøpers låneinstitusjon krever tilleggsforsikring ved omsetning over 15 millioner, må kjøper selv eller dennes låneinstitusjon dekke utgiftene forbundet med dette.

Planlagt overtagelse

Ferdigstillelse for prosjektet er stipulert til 2. Kvartal 2026. Dette er kun stipulert og faktisk ferdigstillelse kan avvike fra dette. Herunder vil overlevering senere enn dette tidspunkt ikke gi kjøper rett til dagmulkt eller andre misligholdsbeføyelser.

Maksimal byggetid er satt til 8 måneder fra dato 15.09.2025.

Kjøperne er uansett forpliktet til å overta 2 måneder etter at selger varsler om dato for at boligene er ferdigstilt selv om dette er tidligere enn maksimal byggetid. Dog slik at kjøper likevel ikke er forpliktet til å overta tidligere enn 4 måneder før maksimal byggetid.

Overlevering og noe ferdigstillelse av boligene til boligkjøperne kan skje suksessivt. Herunder må interessenter påregne byggeaktivitet og anleggsvirksomhet med naturlige konsekvenser av dette en tid etter at man har overtatt boligen.

Selgers forbehold

Kjøper aksepterer at deler av utomhusarbeidene ikke er ferdigstilt ved overtagelse. Selger forplikter seg til å gjøre ferdig disse så snart som mulig etter at bebyggelsen er ferdig utbygget. Inntil hele byggeprosjektet er ferdigstilt, har Selger rett til å ha stående anleggsmaskiner og utstyr, eventuelle brakker m.v., samt ha stående skilt på den solgte eiendom. Eventuelle skader som dette måtte påføre eiendommen, skal selger snarest utbedre.

Selger forbeholder seg retten til å foreta nødvendige endringer som følge av offentlige pålegg, eller tilpasninger i forhold til tekniske løsninger.

Selger informerer om at det kan forekomme, og kjøpere må akseptere, mindre endringer i forhold til arkitekttegninger og byggebeskrivelse. Kjøpere er likevel ikke forpliktet til å akseptere endringer som forringer verdien av boligen.

Selger forbeholder seg retten til å tildele biloppstillingsplass ved overtakelse, også midlertidige plasseringer.

Tilvalg/Endringer:

Endringsarbeid avtales direkte mellom kjøper og selger. Avtaler om endringsarbeid krever skriftlighet. Etter igangsetting vil det gis frister for tilvalg og endringer. Kjøper har ikke rett til å kreve endringer og tilleggsarbeider som ikke står i sammenheng med ytelser som er avtalt, og som i omfang eller karakter skiller seg vesentlig fra den avtale ytelsen og/eller er til hinder for rasjonell gjennomføring av byggearbeidene. Selger er heller ikke forpliktet til å utføre endringer eller tilleggsarbeider som vil føre til ulempe for selger som ikke står i forhold til kjøpers interesse i å kreve endringer eller tilleggsarbeider. Selger har rett til å ta seg betalt for utarbeidelse av pristilbud, tegninger mv. jf. Bustadoppføringslova § 44.

Inngås kjøpsavtale etter igangsetting er kjøper kjent med at frister for tilvalg og endringer kan være utgått. Kjøper er oppfordret til å ta forbehold i kjøpstilbudet dersom prosjektet er igangsatt, og kjøper har krav til tilvalg/endring som kjøper forutsetter skal være mulig å få levert av utbygger/selger.

Solgt ihht bustadoppføringsloven

Boligene selges i henhold til Bustadoppføringslova som regulerer kjøpers (forbrukers) rettigheter og plikter ved avtale om oppføring av bolig og kjøp av fast eiendom der bygningen ikke er fullført når avtalen inngås. Ved salg til aksjeselskap legges Avhendingslovens bestemmelser til grunn. For øvrig gjelder Lov om eierseksjoner for eierseksjonssameiet og driften av dette.

Garantier

Det stilles garantier i henhold til Bustadoppføringslovas bestemmelser. Garanti etter § 12 vil bli stilt i forbindelse med avtaleinngåelse. Garantien skal være pålydende 3% av kjøpesummen i byggetiden og 5% i 5 år etter overlevering av boligene til kjøper. Garanti etter § 47 forutsettes stilt om selger ønsker utbetalt forskudd/delinnbetaling/sluttoppgjør før hjemmelsovergang. Eventuelle påkrevde endringer av garantier ved eventuelle videresalg/transporter utføres ikke og bekostes ikke av selger.

Forsikring

Frem til overtagelse vil eiendommen være forsikret av selger. Etter overtagelse vil eiendommen forsikres gjennom sameiets fellesforsikring. Kjøper må selv besørge innboforsikring og forsikring av eventuelle særskilte påkostninger.

Øvrige kjøpsforbehold

Samarbeid og tilknytning:
Eiendomsmegler tilbyr sine oppdragsgivere og kjøpere å benytte en rekke eksterne leverandører i forbindelse med gjennomføring av oppdraget.
Dette vil til eksempel kunne være; foto- og styling tjenester, markedsføringsprodukter og løsninger, presentasjonsmateriell, visualiseringstjenester,
løsninger for nettsider, boligselgerforsikring i IF, boligkjøperforsikring i IF, oppgjørstjenester Boligrengjørings- og flyttetjenester, strømprodukter,
innbo- og villaforsikringer i Tryg og andre eksterne tjenester og produkter som har naturlig sammenheng til
utførelse av oppdraget.

Vikebø & Jørgensen Nybygg AS er en del av Privatmeglerenkjeden som er eiet av Nordea. Privatmegleren har avtale med Nordea om formidling av
lån og andre finansielle tjenester. Privatmegleren mottar godtgjørelse for dette.

Vestoppgjør AS som gjennomfører oppgjør for Vikebø & Jørgensen Nybygg AS er delvis eiet av Vikebø & Jørgensen Nybygg AS.

Dersom vilkårene for å tegne Boligselgerforsikring eller Boligkjøperforsikring er oppfylt, kan kjøper og selger tegne forsikring i If/Tryg. Ved salg av prosjekterte boliger har selgere ikke anledning til å tegne dette.Boligkjøperforsikring inneholder boligkjøperforsikring,innboforsikring med superdekning og husforsikring med superdekning (enebolig/hytte). Kontakt megleren på salget dersom du ønsker Boligkjøperforsikring.

Sikkerhetsstillelse
Alle eiendomsmeglingsforetak har lovpålagt forsikring av klientmidler begrenset oppad til kr 45 mill. Enkeltsaker er forsikret inntil kr 15 mill. Dersom kjøpers låneinstitusjon krever tilleggsforsikring ved omsetning over 15 millioner, må kjøper selv eller dennes låneinstitusjon dekke utgiftene forbundet med dette.

Kjøper er utenlands statsborger
Dersom kjøper er utenlandsk statsborger kreves det at vedkommende har et såkalt D-nummer til erstatning for norsk personnummer. Rekvirering av D-nummer må sendes Kartverket samtidig med innsending av skjøtet for tinglysing. Skjøtet blir liggende i Kartverket inntil kjøper har fått D-nummer av Skatteetaten. Når Kartverket har mottatt D-nummeret fra Skatteetaten, vil skjøtet bli tinglyst umiddelbart. Rekvisisjon av D-nummer i forbindelse med tinglysing av skjøte vil ofte medføre at oppgjør og utbetaling til selger blir forsinket med 1 til 2 måneder. Kjøper må i disse tilfellene enten ta forbehold i bud om forsinket utbetaling til selger, eller være forberedt på å dekke forsinkelsesrenter til selger. Kontakt ansvarlig megler for informasjon før budgivning.

Hvitvasking
I henhold til lov om hvitvasking og terrorfinansiering har megler plikt til å gjennomføre kundekontroll på grunnlag av fremvist gyldig legitimasjon eller på annen godkjent måte. Dersom kunden er et foretak, skal megler kartlegge hvem som er reelle rettighetshavere i foretaket, og gjennomføre ID-kontroll av disse. Kjøper og selger har plikt til å bidra til at megler får gjennomført kundekontroll.

Megler har i enkelte tilfeller, herunder tilfeller hvor megler ikke får gjennomført kundekontroll av kjøper før overtagelse og oppgjør, plikt til å stanse gjennomføring av handelen. Konsekvensen av at kjøper ikke vil bidra til gjennomføring av kundekontroll, er at transaksjonen må
stanses. Overtagelse og oppgjør kan ikke gjennomføres før kjøper bidrar til at megler kan gjennomføre kundekontrollen. Når kjøper ikke bidrar til at megler får gjennomført kundekontroll, og oppgjør til selger derfor blir forsinket, utløser dette rettigheter for selger etter avhendingslovens kapittel 5. I tilfeller der det er selger som ikke bidrar til at megler får gjennomført løpende kundekontroll underveis i oppdraget, f.eks. dersom det
etter oppdragsinngåelsen har vært endring av hvem som er reelle rettighetshavere i foretaket som selger, må megler stanse gjennomføringen av transaksjonen. I disse tilfellene er det selger som misligholder sine forpliktelser etter avtalen. Kjøpers rettigheter ved selgers mislighold følger av avhendingslovens kapittel 4.

Eiendomsmeglingsforetaket har også andre prosedyrer knyttet til hvitvaskingsregelverket. Megler har plikt til å melde fra til Økokrim om
eiendomshandler som fremstår som mistenkelige. Melding sendes Økokrim uten at partene varsles.

Personopplysninger
Som følge av meglerforetakets plikt til å oppbevare kontrakter og dokumenter i minst 10 år, jf. eiendomsmeglingsforskriften § 3-7 (3), er mulighetene
for å få slettet personlige opplysninger som er formidlet til megler, begrenset. Du kan lese mer om vår personvernpolicy på våre hjemmesider,
https://privatmegleren.no/personvern.

Rett til fritt å velge megler
Valg av eiendomsmeglingsforetak skal være frivillig. Eiendomsmeglingsforetak kan ikke inngå oppdrag om eiendomsmegling dersom inngåelsen av oppdraget er satt som vilkår i avtale om annet enn eiendomsmegling, f.eks. tilbud om lån eller andre banktjenester, jf. Lov om eiendomsmegling § 6-3 (3).

Boligselgerforsikring
Selger har ikke anledning til å tegne eierskifteforsikring da dette er et nybolig prosjekt.

Budgiving

Boligene selges til fastpris.

Alle bud/kjøpetilbud på eiendommen skal være skriftlig og sendes meglerforetaket pr. fax, mail, sms eller via vår "gi bud"-knapp på våre nettsider. Knappen finner du også på Privatmeglerens hjemmeside for prosjektet, se på den enkelte bolig.
Bud/kjøpetilbud må ikke ha kortere akseptfrist enn til kl. 12.00 første virkedag etter siste annonserte visning. Lørdag regnes ikke som virkedag. Bud/kjøpetilbud med kortere frist enn dette kan ikke formidles av megler. Nærmere info om budgiving finner du på egen side sammen med kjøpetilbud/budskjema.

Som budgiver hos Privatmegleren kan du kreve budjournal fremlagt så snart handel er gjennomført.
Innhold i budjournal er lovregulert, og innebærer at budgivere må akseptere at opplysninger om budet kan bli fremlagt for selger, kjøper og øvrige budgivere. Budgiver som ikke blir kjøper, kan kreve kopi av anonymisert budjournal.

Vedlegg til salgsoppgave.
Situasjonsplan
Reguleringsplan
Leveransebeskrivelse
Arkitekttegninger
Basiskart
Vedtekter med kart

Salgsoppgaven er ikke komplett uten alle vedlegg

Lov om hvitvasking

Megler er underlagt lov om hvitvasking som innebærer plikt til å melde ifra til Økokrim om mistenkelige transaksjoner

Meglers vederlag og utlegg

Det betales kr 68 750 pr solgte enhet.

Nærområdet

Annonseinformasjon

FINN-kode428600015
Sist endret18. des. 2025 03:13
Referanse195250124

Rapporter annonse

Annonsene kan være mangelfulle i forhold til lovpålagt opplysningsplikt. Før bindende avtale inngås oppfordres interessenter til å innhente komplett informasjon fra meglerforetaket, selger eller utleier.