Bildegalleri
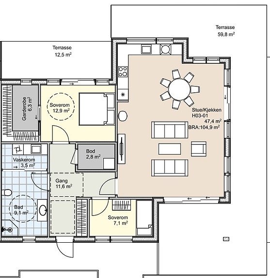
H0301
Stemheitoppen
3-roms leilighet i 3. etasje
Prisantydning7 390 000 kr
Prosjektets status
Planlegging
Ferdig
Salgsstart
Ferdig
Byggestart
mars 2026
Overtakelse
Mars 2027
Nøkkelinfo
- Boligtype
- Leilighet
- Etasje
- 3
- Soverom
- 2
- Rom
- 3
- Internt bruksareal
- 105 m² (BRA-i)
- Bruksareal
- 110 m²
- Eksternt bruksareal
- 5 m² (BRA-e)
- Balkong/Terrasse
- 73 m² (TBA)
Fasiliteter
Balkong/Terrasse
Bredbåndstilknytning
Garasje/P-plass
Heis
Utsikt
Turterreng
Beskrivelse
Overtakelse
Etter avtale med selger. Avklares i forbindelse med budgivning.
NB: Knappen for å vise hele beskrivelsen har kun en visuell effekt.
NB: Knappen for å vise hele beskrivelsen har kun en visuell effekt.
Nærområdet
BOLIGMEGLEREN STRAY
Annonseinformasjon
| FINN-kode | 428299750 |
|---|---|
| Sist endret | 04. mars 2026 08:20 |
| Referanse | STR1.25450 |
Annonsene kan være mangelfulle i forhold til lovpålagt opplysningsplikt. Før bindende avtale inngås oppfordres interessenter til å innhente komplett informasjon fra meglerforetaket, selger eller utleier.