Bildegalleri

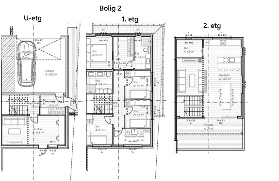
Plantegning Bolig 2

Åsane/ Tertnes

Østre Tertnesåsen

Østre Tertnesåsen

Prisantydning10 500 000 kr
Totalpris
10 541 090 kr
Omkostninger
41 090 kr
  • Planlegging

    Under planlegging!

  • Salgsstart

    I salg!

  • Byggestart

    Antatt 1. kvartal 2026

  • Overtakelse

    Antatt 1. kvartal 2027

Nøkkelinfo

Boligtype
Tomannsbolig
Etasje
1
Soverom
4
Rom
6
Internt bruksareal
193 m² (BRA-i)
Bruksareal
193 m²

Les mer om bruksareal her

Fasiliteter

Balkong/Terrasse
Garasje/P-plass
Peis/Ildsted
Utsikt
Turterreng

Visning

Tomten kan besiktiges på egen hånd eller etter avtale med megler.
Visningspåmelding

Beskrivelse

Overtakelse

Overtagelsesdato skal fastsettes før aksept av bud. Ved spesielle ønsker skal dette fremkomme som forbehold i evt. bud.

Hvitvaskingsregelverk

Eiendomsmeglere er underlagt lov om hvitvasking og er forpliktet til å rapportere til Økokrim om mistenkelige transaksjoner. Lov om hvitvasking innehar også strenge regler om gjennomføring av nødvendige kundetiltak fra alle parter i handelen, herunder, selger, kjøper og fullmektiger for disse. Dersom eiendomsmegler ikke får utført slik kontroll, plikter eiendomsmegler å avstå fra å gjennomføre oppdraget/handelen.

Nærområdet

Annonseinformasjon

FINN-kode427799509
Sist endret19. des. 2025 08:12
Referanse81250287

Rapporter annonse

Annonsene kan være mangelfulle i forhold til lovpålagt opplysningsplikt. Før bindende avtale inngås oppfordres interessenter til å innhente komplett informasjon fra meglerforetaket, selger eller utleier.