Bildegalleri

Solgt
Volla

Bjerkealleen 8C og D

Bjerkealleen 8C

Prisantydning12 790 000 kr
Totalpris
12 922 592 kr
Omkostninger
132 592 kr
  • Planlegging

    Vår 2025

  • Salgsstart

    Høst 2025

  • Byggestart

    Høst 2025

  • Overtakelse

    Vår 2026

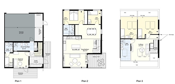
Nøkkelinfo

Boligtype
Tomannsbolig
Soverom
5
Internt bruksareal
232 m² (BRA-i)
Bruksareal
232 m²
Balkong/Terrasse
31 m² (TBA)
Energimerking
B

Les mer om bruksareal her

Fasiliteter

Balansert ventilasjon
Balkong/Terrasse
Barnevennlig
Bredbåndstilknytning
Garasje/P-plass
Ingen gjenboere
Lademulighet
Peis/Ildsted

Nærområdet

Annonseinformasjon

FINN-kode427754587
Sist endret07. nov. 2025 09:14

Rapporter annonse

Annonsene kan være mangelfulle i forhold til lovpålagt opplysningsplikt. Før bindende avtale inngås oppfordres interessenter til å innhente komplett informasjon fra meglerforetaket, selger eller utleier.