Bildegalleri
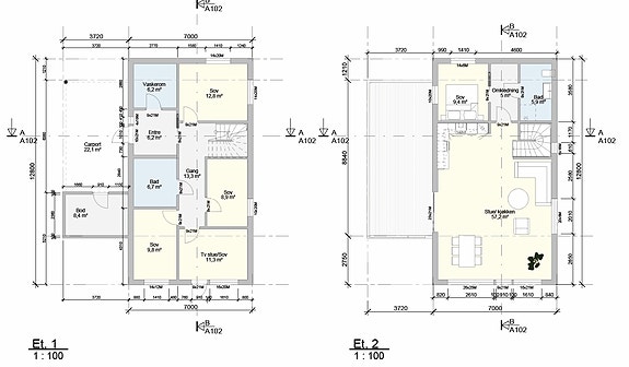
Plantegning
Solgt
Sveåsen
Eneboligene Sveåsen
Sveåsen 42
Prisantydning6 800 000 kr
Prosjektets status
Planlegging
Ferdig
Salgsstart
I salg!
Byggestart
Vedtak ved salg
Overtakelse
Estimert 12 mnd. etter kjøp
Nøkkelinfo
- Boligtype
- Enebolig
- Etasje
- 2
- Soverom
- 4
- Rom
- 6
- Internt bruksareal
- 159 m² (BRA-i)
- Bruksareal
- 190 m²
- Eksternt bruksareal
- 31 m² (BRA-e)
Beskrivelse
Ansvarlig megler
Tina Elise Beisland
NB: Knappen for å vise hele beskrivelsen har kun en visuell effekt.
NB: Knappen for å vise hele beskrivelsen har kun en visuell effekt.
Nærområdet
Eiendomsmegler Norge Nybygg Bergen
Annonseinformasjon
| FINN-kode | 426425827 |
|---|---|
| Sist endret | 26. jan. 2026 15:19 |
| Referanse | 81250257 |
Annonsene kan være mangelfulle i forhold til lovpålagt opplysningsplikt. Før bindende avtale inngås oppfordres interessenter til å innhente komplett informasjon fra meglerforetaket, selger eller utleier.