Bildegalleri

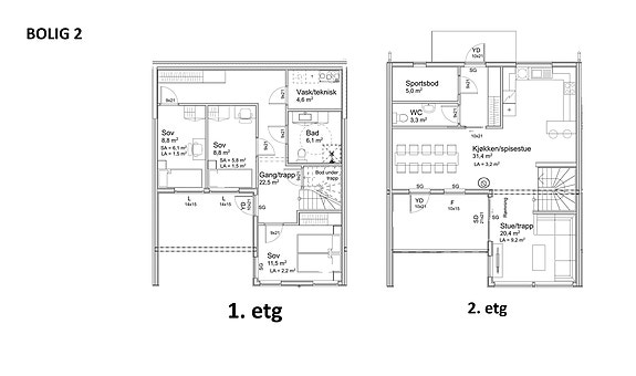
Plantegning - Bolig 2

Solgt
Askøy

St. Hanshaugen 55

St. Hanshaugen 55

Prisantydning5 500 000 kr
Totalpris
5 521 090 kr
Omkostninger
21 090 kr
  • Planlegging

    Ferdig!

  • Salgsstart

    I salg!

  • Byggestart

    Bygging startet!

  • Overtakelse

    2. kvartal 2026

Nøkkelinfo

Boligtype
Rekkehus
Etasje
1
Soverom
3
Rom
4
Internt bruksareal
131 m² (BRA-i)
Bruksareal
131 m²

Les mer om bruksareal her

Fasiliteter

Balkong/Terrasse
Garasje/P-plass
Peis/Ildsted
Utsikt

Beskrivelse

Overtakelse

Overtagelsesdato skal fastsettes før aksept av bud. Ved spesielle ønsker skal dette fremkomme som forbehold i evt. bud.

Hvitvaskingsregelverk

Eiendomsmeglere er underlagt lov om hvitvasking og er forpliktet til å rapportere til Økokrim om mistenkelige transaksjoner. Lov om hvitvasking innehar også strenge regler om gjennomføring av nødvendige kundetiltak fra alle parter i handelen, herunder, selger, kjøper og fullmektiger for disse. Dersom eiendomsmegler ikke får utført slik kontroll, plikter eiendomsmegler å avstå fra å gjennomføre oppdraget/handelen.

Ansvarlig megler

Andreas Tveit

Nærområdet

Annonseinformasjon

FINN-kode426232715
Sist endret02. okt. 2025 18:59
Referanse81250247

Rapporter annonse

Annonsene kan være mangelfulle i forhold til lovpålagt opplysningsplikt. Før bindende avtale inngås oppfordres interessenter til å innhente komplett informasjon fra meglerforetaket, selger eller utleier.