Bildegalleri

D6

Inaktiv
Bekkestua

Frøy

Frøytunveien 5-11

Prisantydning13 900 000 kr
Totalpris
14 008 840 kr
Omkostninger
108 840 kr
Felleskost/mnd.
4 189 kr
  • Planlegging

    -

  • Salgsstart

    -

  • Byggestart

    2025

  • Overtakelse

    Estimert våren 2026

Nøkkelinfo

Boligtype
Rekkehus
Etasje
3
Soverom
3
Rom
5
Internt bruksareal
123 m² (BRA-i)
Bruksareal
125 m²
Eksternt bruksareal
2 m² (BRA-e)
Balkong/Terrasse
18 m² (TBA)

Les mer om bruksareal her

Fasiliteter

Balkong/Terrasse
Bredbåndstilknytning
Garasje/P-plass
Kabel-TV

Visning

Ta kontakt for å avtale visning.Visningspåmelding

Beskrivelse

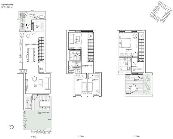
Townhouse D6 går over tre plan med forhage, hage, terrasse og balkong.

1. etasje: Entré leveres med flislagt gulv med varme. Skyvedørsgarderove medfølger. Romslig og delikat kjøkken fra Sigdal inkludert hvitvarepakke. Bod under trapp opp til 2. etasje. Videre er det en lys og delikat stue med utgang til terrasse og hage mot sørvest. Redskapsbod på terrassen.

2. etasje: Gang, 2 soverom, stue (mulig soverom), bad og vaskerom.

3. etasje: Romslig hovedsoverom, bad, gang og utgang til balkong på ca. 10 kvm.

Det medfølger 1 biloppstillingsplass i carport i felles utvendig anlegg.

Ansvarlig megler

Trygve Formo Hermansen

Nærområdet

Annonseinformasjon

FINN-kode425624383
Sist endret12. mars 2026 14:19
Referanse20-25-1398

Rapporter annonse

Annonsene kan være mangelfulle i forhold til lovpålagt opplysningsplikt. Før bindende avtale inngås oppfordres interessenter til å innhente komplett informasjon fra meglerforetaket, selger eller utleier.