Bildegalleri

Plantegning

Seiersbjerget 11

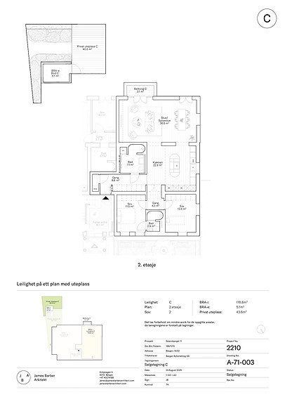
Leilighet C

Prisantydning15 190 000 kr
Totalpris
15 570 950 kr
Omkostninger
380 950 kr
  • Planlegging

    Innvendig rivingsarbeid pågår

  • Salgsstart

    For salg

  • Byggestart

    Bygging pågår

  • Overtakelse

    Estimert 4. kvartal 2026

Nøkkelinfo

Boligtype
Leilighet
Etasje
2
Soverom
2
Bruksareal
117 m²

Les mer om bruksareal her

Fasiliteter

Balansert ventilasjon
Balkong/Terrasse
Bredbåndstilknytning
Garasje/P-plass
Kabel-TV
Lademulighet
Offentlig vann/kloakk
Parkett
Utsikt
Turterreng

Visning

Ta kontakt for å avtale visning.

Nærområdet

Annonseinformasjon

FINN-kode424989258
Sist endret01. sep. 2025 16:24

Rapporter annonse

Annonsene kan være mangelfulle i forhold til lovpålagt opplysningsplikt. Før bindende avtale inngås oppfordres interessenter til å innhente komplett informasjon fra meglerforetaket, selger eller utleier.