Bildegalleri
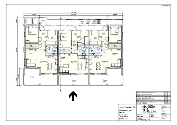
Plantegning 1. Etasje - Nobels gate 5, leilighet 1.
Nobels gate 5!
Selveierleilighet Nobels gate 5
Prosjektets status
Planlegging
- 2025
Salgsstart
- 8 september 2025
Byggestart
- Okt/nov 2025
Overtakelse
- Estimert sommer 2026
Nøkkelinfo
- Boligtype
- Leilighet
- Etasje
- 1
- Soverom
- 2
- Rom
- 3
- Internt bruksareal
- 70 m² (BRA-i)
- Bruksareal
- 70 m²
Visning
Beskrivelse
Oppdragsansvarlig
BRUSTAD & PARTNERE AS / Vegar Volla
Selger/Utbygger
Hadar Eiendom AS
Betegnelse
Gnr. 65 Bnr. 47 Snr. 2 i Gran kommune
Velkommen til Nobels gate 5!
Nå lanseres Nobels gate 5 - et nytt og spennende boligprosjekt med kun seks moderne 3-roms selveierleiligheter, midt i det trivelige sentrum av Brandbu i Gran kommune. Her får du høy bokomfort, gjennomført god standard og alt på ett plan. Heis i bygget - en anledning av de sjeldne!
Prosjektet har en svært god beliggenhet med kort gangavstand til alt du trenger i hverdagen - butikker, apotek, legekontor, kaféer og gode kollektivforbindelser. Området er lett tilgjengelig, og byr på trygge gangveier, grønne nærområder og nærhet til flotte turområder i skog og mark.
Dette er et prosjekt som passer perfekt for deg som ønsker å bo sentralt, men med lavt stressnivå - enten du er i etableringsfasen, ønsker å bo enklere som pensjonist, eller ser etter en moderne og vedlikeholdsvennlig bolig i fredelige omgivelser.
Leilighetene vil organiseres som et sameie, uten andel fellesgjeld.
Se boligvelger til høyre i annonsen under linken: Eiendommens hjemmeside.
Har du spørsmål, er du hjertelig velkommen til å ta kontakt - vi hjelper deg gjerne.
Leilighetene
Leilighetene får en lys, luftig og åpen planløsning, med store vindusflater og gjennomgående god kvalitet i materialvalg og detaljer. Alle enhetene får store solrike balkonger eller markterrasser med flott utsyn over nærområdet - perfekte for kaffekoppen i nydelig solskinn eller rolige ettermiddager i grønne omgivelser.
Innvendig leveres leilighetene med:
- Stilrent kjøkken fra Drømmekjøkkenet (v/Olerud Male & Snekkerverksted AS) med moderne fronter, integrerte hvitevarer og god skapplass - Kan velge mellom 4-6 ulike farger
- Åpen stue-/kjøkkenløsning med store vindusflater og naturlig lysinnslipp
- To gode soverom med plass til garderobeløsning
- Delikat, flislagt bad med storformatfliser, 100 cm baderomsinnredning, høyskap, speil, dusjhjørne og vegghengt toalett
- Praktisk innvendig bod/teknisk rom på ca. 3,6 kvm
Gulv og overflater:
- Gulv i alle oppholdsrom leveres med lyspigmentert enstavs eikeparkett (Saga Premium Coconut)
- Fliser på gulv i entre, bad og innvendig bod
- Vegger leveres med slette, malte gipsflater
- Himling uten taklister og rene linjer med slette gerikter rundt dører og vinduer - gir et stilrent, moderne uttrykk
Komfort og energieffektivitet:
- Balansert ventilasjon med varmegjenvinning - for lavt energiforbruk og godt inneklima
- Leilighetene i 1. etasje leveres med gulvvarme i stue/kjøkken, bad og gang
- Leilighetene i 2. etasje leveres med gulvvarme i gang og bad (øvrig gulvvarme kan fås som tilvalg)
Ute og parkering:
- Felles carportanlegg med én fast biloppstillingsplass per leilighet
- Egen sportsbod i bakkant av carport
- Mulighet for installering av elbillader som tilvalg
- Store solrike balkonger/markterrasse til hver leilighet
- Leilighetene i 1.etasje vil disponere naturlig del av hageområde utenfor sin seksjon
- Felles gjesteparkering vil bli etablert rundt bygget og carportanlegget
Mulighet for tilvalg innen farge, utførelse og ekstra utstyr innen frister.
Her legges alt til rette for en komfortabel, moderne og lettstelt hverdag - i nye, nøkkelferdige leiligheter med god standard og gjennomtenkte løsninger.
Et hjem du vil trives i, enten du ønsker å bo enkelt og sentralt, eller ser etter en ny bolig med minimalt vedlikehold.
Standard
Utdrag fra leveransebeskrivelse datert 20.08.2025 og romskjema, datert 16.12.2024:
Entré:
- Gulv: Fliser 60x60 cm
- Vegger: Slette, malte gipsflater
- Himling: Slett himling uten taklister og rene linjer
- Belysning: 3 stk downlights, dimmer
- Oppvarming: Varmekabel med termostat
- Elektrisk: 1 stk stikkontakt
- Elektronisk kodelås leveres ferdig montert på ytterdør
Stue / Kjøkken:
- Gulv: Enstavs eikeparkett (Saga Premium Coconut)
- Vegger: Slette, malte gipsflater
- Himling: Slett himling uten taklister og rene linjer
- Belysning: 8 stk downlights, 2 dimmere
- Elektrisk: Lysuttak over benk og spisebord, 2 lysbrytere, komfyrvakt, RJ-45
- Oppvarming: Leiligheter i 1. etasje: Varmekabel i gulv i stue/kjøkken. Leiligheter i 2. etasje: Panelovn.
Kjøkkeninnredning:
- Leveres fra Drømmekjøkkenet iht. kjøkkentegning (Olerud Male & Snekkerverksted AS). Kjøpere kan velge mellom 4 ulike farger og 2 trefarger uten ekstra kostnad. Andre farger/utførelser kan leveres mot pristillegg.
- Moderne fronter
- Integrerte hvitevarer
- A-Coll Azur kjøkkenbatteri med høy tut og avstenging, svart matt
- Uttak for oppvaskmaskin
- Trådløs føler for vannstoppeventil/lekkasjevarsling
Bad:
- Gulv: Fliser 60x60 cm. I dusjsonen: mosaikkfliser 5x5 cm i nedsenket område
- Vegger: Fliser 60x60 cm
- Belysning: 2 downlights, vegglysuttak, dimmer
- Oppvarming: Gulvvarme med termostat
- Sanitær: Servantskap (100 cm), høyskap (35 cm), dusjhjørne 90x90 cm, vegghengt toalett med sisterne, Joti sluk
- Baderomsinnredning leveres i henhold til spesifikasjon fra Svedbergs
- Godkjent smøremembran
Soverom:
- Gulv: Enstavs eikeparkett (Saga Premium Coconut)
- Vegger: Slette, malte gipsflater
- Himling: Slett himling uten taklister og rene linjer
- Belysning: Uttak for taklampe med bryter
- Elektrisk: 2-3 stikkontakter, taklysuttak
- Plass til garderobeskap
Innvendig bod:
- Gulv: Fliser
- Vegger: Malte gipsflater
- Teknisk: Varmtvannsbereder, fordelingsskap, Joti sluk
- Elektrisk: Taklampe, 2 stikkontakter
Hvorfor kjøpe nytt?
- Leiligheten er i forskriftsmessig stand med 5 års reklamasjonsfrist.
- Det er svært lite vedlikeholdskostnader i nær framtid.
- Det er god tid til å forberede flyttingen og eventuelt salg av egen bolig.
- Mulighet for å sette personlige preg på boligen ved tilvalg.
- Lav dok.avgift (kun beregnet av tomteverdien).
Beliggenhet
Prosjektet har en attraktiv og sentral beliggenhet midt i hjertet av Brandbu, i Gran kommune. Her bor du i gangavstand til alt du trenger i hverdagen - butikker, kaféer, bank, apotek, legesenter, treningssenter og kulturtilbud ligger bare noen få minutter unna.
Området har en god blanding av småbyliv og landlig sjarm, og byr på både ro og aktivitet. Nærheten til Randsfjorden, vakre turområder, marka og Brandbukampen gir gode muligheter for friluftsliv året rundt - enten du foretrekker fotturer, sykling, ski eller bading.
Det er kort vei til barnehager, skoler og offentlig transport. Med kun ca. 5 minutters kjøring til Gran sentrum og togforbindelse videre til Oslo, er dette et praktisk og behagelig sted å bo - enten du er førstegangskjøper, småbarnsfamilie eller ønsker å bo mer lettstelt og sentralt som pensjonist.
Her får du et hjem med alt det nødvendige i umiddelbar nærhet - og naturen som nærmeste nabo.
Organisering av Uteområde/Parkering
Eiendommen vil bli seksjonert, og hver seksjon i 1. etasje får eksklusiv bruksrett til hageareal direkte utenfor sin leilighet. Dette gir en privat og skjermet uteplass med gode solforhold og naturlig tilknytning til boligen.
Alle leiligheter - både i 1. og 2. etasje - får store, solrike terrasser eller markterrasser på ca. 25 kvm, tilpasset hver seksjons beliggenhet.
Tilkomst til 2. etasje skjer via utvendig trapp og svalgang, og det leveres løfteplattform (heis) med kapasitet på 500 kg / 5 personer (Orona, 0,15 m/s), som gir trinnfri adkomst til leilighetene.
Det etableres et felles carportanlegg, hvor hver leilighet får én fast biloppstillingsplass. I bakkant av hver plass oppføres egen sportsbod tilknyttet den respektive seksjonen.
Det tilrettelegges for installasjon av elbillader som tilvalg for den enkelte plass.
I tillegg vil det bli etablert felles gjesteparkering rundt bygget og carportanlegget, slik at besøkende enkelt kan finne parkering i tilknytning til boligene.
Byggemåte og utomhus
Utdrag fra leveransebeskrivelse, datert 20.08.2025:
Grunnmur:
1. Såleblokk og 450mm ringmur
2. Alle støpte gulv isoleres med 300mm EPS isolasjon
3. Støpte gulv blir levert med en tykkelse ca. 80-100mm betong
4. Komplett radonsperre og 1 stk radonbrønn, avsluttes over støpt gulv eller brønner under støpt plate med utlufting under ringmur
Yttervegger:
Regnet utenfra og innover:
1. Stående dobbelfalskledning, grunnet + mellomstrøk
2. 36x48mm horisontale lekter
3. 23x48mm stående sløyfer
4. Musebånd
5. 9,5mm GU gips
6. 36x198 / 48x198mm bindingsverk
7. 200mm isolasjon, innblåst eller A-plater/rull
8. Diffusjonstett plastfolie 0,20mm
9. 48x48mm krysslagt innlekting
10. 50mm isolasjon, rull eller A-plater
11. Innvendig kledning iht romskjema
Gulv/Bjelkelag og Etasjeskiller:
Støpt plate på mark
1. Parkett på alle tørre rom, flis i deler av entre
2. Gulvvarme for leiligheter i 1 etg, for plan 2 er det bad og flislagt entre som har
gulvvarme
3. Underlag for parkett
4. 80-100mm støpt gulv på grunn
5. K-189 armeringsnett
6. 0,20mm dampsperre som glidesjikt
7. 2x150mm EPS S80 isopor
8. Radonsperre
Takverk:
1. Benders RU dobbelkrum takstein
2. 36x48mm steinlekt
3. 36x48mm sløyfelekt
4. Som undertak leveres det forenklet diffusjonsåpen duk
5. Selvbærende takstol
6. Snøfanger leveres når taktekking kreves etter gjeldene krav fra TEK og leverandør
7. Stige trinn leveres opp til pipe
8. Standard takutstikk ved raft er 600mm, målt fra bindingsverk. Kassene kles med samme kledning som på yttervegg
9. Ved raft brukes 22x173mm forkantbord, grunnet + mellomstrøk
10. Stålpipe, avsluttes i himling, klar for videre montering av røykrør og ildsted. Elementpipe leveres pusset og malt, klar for videre montering av røykrør og ildsted.
Våtromsgulv på støpt plate på mark:
1. 60X60cm flis iht fliser som leveres i prosjektet
2. 5x5 cm flis i nedsenk for dusjområde
3. Smøremembran
Himlinger mot uinnredet loft:
1. Selvbærende takstol, dimensjonert for snølast 4,5kN pr.m
2. 350 - 400mm isolasjon, innblåst eller A-plate/rull
3. Diffusjonstett plastfolie 0,20mm
4. 36x48mm elektrikerlekter
5. Innvendige himlinger iht vedlagt romskjema
Innvendige vegger:
1. Innvendig kledning iht romskjema
2. 36x98 / 48x98mm bindingsverk
3. 100mm isolasjon
4. Innvendig kledning iht romskjema
5. På bad leveres det membranplater eller gips med smøremembran og flis
Innvendige brannskillebegrensede vegger:
1. Innvendig kledning iht romskjema
2. 13mm std gips
3. 48x98mm bindingsverk
4. 100mm isolasjon
5. 25-30mm avstand mellom veggene som skiller enhetene.
Belistning, innvendige foringer til dører og vinduer:
NB! Alle malte produkter må påregnes å flikkes av tiltakshaver etter montering. Synlig spikring
1. Dør- og vindusforinger leveres fabrikkbehandlet fra leverandør, farge hvit, bredden varierer med veggtykkelse
2. Uprofilerte 12x058mm karmlister og gulvlist, samt 21x34mm taklister leveres fabrikkbehandlet fra leverandør i fallende lengder, farge hvit (NCS 0502-y).
3. Innvendige og utvendige hjørnelister leveres fabrikkbehandlet fra leverandør
Dører og vinduer:
1. Alle utvendige dører leveres isolert og er utadslående. Montering av vrider og vriderskilt inngår.
2. Hoveddør leveres malt, med sylinder og vrider. Karm leveres malt fra leverandør. Elektronisk kodelås leveres ferdig montert på ytterdører til leiligheter.
3. Balkongdør / terrassedør leveres med 3-lags glass, utvendig alu kledd.
4. Alle vinduer leveres med 3-lags glass, utvendig alu kledd. Det fremgår av tegning hvilke vinduer som er lukkevinduer (glidehengslet) og hvilke som har fastkarm
5. Innvendige dører leveres som hvite kompakte dørblad, type Harmonie med fabrikkmalt karm med dempelist, eik terskel. Flate terskler på alle rom. Sort dørvrider inkludert.
Innredning:
1. Kjøkkeninnredning leveres i henhold til tegninger fra Drømme kjøkkenet fra Olerud Male & Snekkerverksted AS, andre farger og utførelse kan leveres mot pristillegg
2. Baderomsinnredning leveres i henhold til spesifikasjon fra Svedbergs
3. Eventuelle inntegnede skap eller møbler i hall, stue, boder eller andre rom leveres ikke. Hvitevarer på vaskerom/bad leveres ikke.
Balkonger og terrasser:
1. Inntegnet terrasse i hovedetasje for leiligheter leveres med frontmontert / toppmontert rekkverk, leveres iht tegning
2. Impregnert bjelkelag og søyler, 28x120mm Cu imp terrassebord
3. Tett utførelse av terrassegulv i plan 2
4. Terrasser for plan 1 leveres ikke med rekkverk
5. Utvendig trapp og svalgang iht tegning
Utvendig belistning:
1. Utvendig omramming av dører og vindu leveres 19x98mm bord grunnet + mellomstrøk
2. Vannbrett over og under vindu leveres i pulverlakkert aluminium.
Løfteplattform (heis):
1. Orona løfteplattform, 500kg eller 5 personer. 0,15 m/s
Teknisk
Utdrag fra leveransebeskrivelse, datert 20.08.2025:
Ventilasjon - Leiligheter:
1. Det leveres balansert ventilasjonsanlegg med roterende varmegjenvinner og elektrisk ettervarmebatteri
2. Til hovedstrekket leveres spirorør, blueline eller lignende
3. Forgreninger leveres som spiro eller flexi-rør eller lignende
4. Avtrekksventiler fra bad, bod og kjøkken
5. Egen avtrekksvifte fra kjøkkenkomfyr
6. Friskluft til kjøkken, stue og soverommene
Monteringen av ovennevnte samt VVS-arbeider kan medføre utlekting av vegger, nedforing av tak eller innkassing av rør. Dette kan medføre at gulvarealet og/eller takhøyde reduseres. Utarbeidelse av FDV og brukerveiledning.
Blikkenslagerarbeider:
1. Takrenner og nedløp leveres, nedløpsrør føres til ca. 150mm over terreng
2. Beslag er plastisert stål, farge sort. Forkantbordbeslag, pipebeslag etc
Rørleggerarbeid:
Kjøkken:
- A-Coll Azur kjøkkenbatteri med høy tut og avstenging, svart matt
- Uttak for oppvaskmaskin
- Trådløs føler for vannstoppeventil/lekkasjevarsling
Bad:
- Servantbatteri
- Takdusjpakke med termostat
- Servantskap 100 cm, 2 skuffer, integrerte håndtak
- Høyskap 35 cm, 1 dør, integrerte håndtak
- Dusjhjørne 90x90 cm
- Joti sluk
- Vegghengt toalett med sete og sisterne med integrert lekkasjevarsling
Bod:
- S2E 120 varmtvannsbereder, 2 kW / 1x230V med ekspansjon
- Joti sluk
- Fordelingsskap for vann
- Det leveres 1 stk utekran pr. leilighet for 1 etg (ingen utekraner for leiligheter i 2 etg)
Elektrisk anlegg:
Leilighet 1, 2 og 3 (1 etg):
1. Entre, 3 stk downlights, 1 dimmer, 1 stikk og varmekabel m/termostat
2. Sov 11,9m2, uttak for taklys m/bryter og 3 stk stikk
3. Sov 8,4m2, uttak for taklys m/bryter og 2 stikk
4. Bod, 1 stk taklampe m/lysbryter og 2 stikk
5. Bad, 2 stk downlights, 1 dimmer, uttak for vegglys m/bryter, 3 stikk og varmekabel m/termostat
6. Stue/kjøkken, 8 stk downlights, 2 dimmere, uttak for lys over kjøkkenbenk, stikkontakt lys over spisebord, 2 lysbryter, komfyrvakt, skjultanlegg for RJ-45 og varmekabel m/termostat
7. Utendørs, 3 stk utelamper SG-Sorento og 2 stk utestikk
8. Garasje/bod, 1 stk lampe i bod og 2 stk stikk. Tilkoblet egen kurs i fra fordelingsskap
Leilighet 4,5 og 6 (2 etg):
1. Entrè, 3 stk downlights, 1 dimmer, 1 stikk og varmekabel m/termostat
2. Sov 11,9m2, uttak for taklys m/bryter og 3 stk stikk
3. Sov 8,4m2, uttak for taklys m/bryter og 2 stikk
4. Bod, 1 stk taklampe m/lysbryter og 2 stikk
5. Bad, 2 stk downlights, 1 dimmer, uttak for vegglys m/bryter, 3 stikk og varmekabel m/termostat
6. Stue/kjøkken, 8 stk downlights, 2 dimmere, uttak for lys over kjøkkenbenk, stikkontakt lys over spisebord, 2 lysbryter, komfyrvakt, skjultanlegg for RJ-45 og panelovn
7. Utendørs, 3 stk utelamper SG-Sorento og 2 stk utestikk
8. Garasje/bod, 1 stk lampe i bod og 2 stk stikk. Tilkoblet egen kurs i fra fordelingsskap
Tinglyste rettigheter og forpliktelser
Kommunen har legalpant som sikkerhet for betaling av kommunale avgifter. Legalpant er pant som følger av loven, og som ikke tinglyses. Legalpant følger derfor eiendommen ved salg. På eiendommen kan det være tinglyst erklæringer som f.eks. rett for kommunen til å vedlikeholde rørsystemer for vann- og kloakk. Disse erklæringene vil følge eiendommen ved salg. Kontakt megler for nærmere informasjon.
Øvrige sameiere har panterett i seksjonen for krav mot sameieren som følge av sameieforholdet, jf. eierseksjonsloven § 31. Pantekravet kan ikke overstige 2G (Folketrygdens grunnbeløp). Sameiet kan vedtektsfeste ytterligere panterett for sameiet. Vedtektsfestet pant tinglyses i seksjonene.
Servitutter / rettigheter
Eiendommen overdras fri for pengeheftelser, med unntak av eventuelle erklæringer, avtaler, servitutter og panteheftelser som fremgår av salgsoppgaven og skal følge med eiendommen ved salg. Kjøpers bank vil få prioritet etter disse.
2024/1982016-2/200 Forkjøpsrett på vilkår 20.09.2024 21:00
Rettighetshaver:GRAN KOMMUNE Org.nr: 961381541
- Kommunen skal ha rett til å kjøpe tilbake tomten om denne ikke utvikles videre innen 2 år. Følger vedlagt.
2024/2335552-1/200 Bestemmelse om vann/kloakk 05.12.2024 21:00
Kan ikke slettes uten samtykke fra:GRAN KOMMUNE Org.nr: 961381541
rettighetshaver:Knr:3446 Gnr:65 Bnr:31
Adkomstrett for drift og vedlikehold av anlegg/ledninger/kabler
Bestemmelse om bebyggelse i nærhet av anlegg
Bestemmelse om (begrensning av) endring i terrenget i nærheten av anlegg
Bestemmelse om grøfter/kummer
- Naboeiendommen gnr 65 bnr 31 har rett til å ha liggende stikkledninger for vann og avløp med nødvendige kumer over aktuell eiendom, frem til de kommunale ledningene i Nobels gate. Rettighetshaver skal ha rett til vedlikehold og ettersyn av disse. Aktuell eiendom har ikke lov til å gjøre tiltak på sin eiendom som kan skade ledningene. Eksepler på dette kan være støttemur, terreng og utgravinger. Avstanden mellom tiltaket og ledningene skal være minst 4 meter. Følger vedlagt.
2024/2335632-1/200 Bestemmelse om vann/kloakk 05.12.2024 21:00
Kan ikke slettes uten samtykke fra:GRAN KOMMUNE Org.nr: 961381541
Adkomstrett for drift og vedlikehold av anlegg/ledninger/kabler
Bestemmelse om bebyggelse i nærhet av anlegg
Bestemmelse om (begrensning av) endring i terrenget i nærheten av anlegg
Bestemmelse om grøfter/kummer
Gjelder denne registerenheten med flere
- Aktuell eiendom og naboeiendommen gnr 65 bnr 31 har anlagt felles stikkledninger for vann og avløp fra de offentlige vann- og avløpsledningene i Nobels gate. Ledningseierne er i fellesskap ansvarlige for drift og vedlikehold av de feles vann- og avløpsledningene. Om en av eierne oppfyller pålegg om reperasjon fra kommunen, plikter de andre eierne å betale sin andel av kostnadene til denne eieren. Det gis fri adgang for nødvendig vedlikehold og ettersyn. Avstanden mellom tiltaket og ledningene skal være minst 4 meter. Følger vedlagt.
Vei / Vann / Avløp
Boligene vil være tilknyttet offentlig/privat vei, vann og avløp.
Ferdigattest eller midl. brukstillatelse
Selger er ansvarlig for at det blir utstedt ferdigattest eller midlertidig brukstillatelse før overtakelse. Manglende ferdigattest er ikke til hinder for overtakelse dersom de gjenstående arbeidene er av en slik karakter, for eksempel knyttet til ferdigstillelse av utomhus arbeider, at kommunen utsteder midlertidig brukstillatelse. I midlertidig brukstillatelse vil det fremgå hvilke arbeider som gjenstår og en frist for ferdigstillelse.
For overtakelse som gjennomføres i vinterhalvåret må det påregnes utstedelse av midlertidig brukstillatelse og ikke ferdigattest ettersom søknadspliktige utomhus arbeider ikke kan gjennomføres før klimatiske forhold gjør det mulig.
Dersom utomhus arbeider/fellesarealer ikke er ferdigstilt ved overtagelsen skal det holdes tilbake et beløp på kr 25.000,- per enhet som sikkerhet for uferdig arbeid. Det presiseres samtidig at det uferdige arealet formelt overtas samtidig med boligen, men at den praktiske gjennomgangen av arbeidet vil skje på et senere tidspunkt og da med styret i sameiet. Det gis i denne anledning fullmakt til styret for frigivelse av det tilbakeholdte beløpet ved ferdigstillelse.
Verdi ved skattefastsetting
Verdien ved skattefastsetting er p.t. ikke fastsatt. Verdien ved skattefastsetting fastsettes av Ligningskontoret etter beregningsmodell som tar hensyn til om boligen er en såkalt "primærbolig" (der boligeieren er folkeregistrert bosatt) eller "sekundærbolig" (alle boliger man eier, men ikke bor fast i). Interessenter oppfordres til å sjekke www.skatteetaten.no eller kontakte ansvarlig megler for nærmere informasjon om verdien ved skattefastsetting.
Reguleringsforhold og IG
Utdrag hentet fra vedlagt Igangsettingstillatelse, datert 29.05.2025:
Eiendommen omfattes av reguleringsplan for Brandbu sentrum nord-øst, datert 12.02.2010 og er regulert til Boligbebyggelse-frittliggende
småhusbebyggelse. Tillatt utnyttingsgrad er 30%.
Omsøkt tiltak medfører total utnyttelse på eiendommen til 33,72% etter ansvarlig søkers beregninger. Tiltaket er dermed ikke i samsvar med regulert
utnyttelse.
Dispensasjonsvurdering - reguleringsbestemmelse § 2.12
Det er et ønske om å føre opp 6-mannsbolig med garasje på eiendommen i Nobels gate 5. Eiendommen er ubebygd. Det har blitt gitt feil vurderinger fra kommunen rundt hvilken utnyttelsesgrad som er gjeldende på eiendommen, og tiltakshaver har prosjektert i tro at gjeldende grad av utnyttelse er BYA 35% på eiendommen. Det korrekte regulerte utnyttelse på eiendommen er BYA 30%. Omsøkt tiltak har BYA 33,72%. Dette medfører behov for dispensasjon fra reguleringsplanen.
Søknaden blir behandlet administrativt. Det anses at vurderingen kan gjøres administrativt etter kommunens delegasjonsreglement.
Kommunens konklusjon.
Omsøkt forhold vil ikke tilsidesette hensynene i gjeldende reguleringsplan og det anses at fordelene ved å gi dispensasjon er klart større enn ulempene, jf pbl § 19-2.
Kommunens vurdering:
Det gis tillatelse til oppføring av 6-mannsbolig med garasje som omsøkt i Nobels gate 5, Brandbu, med de siste suppleringer mottatt 27.5.2025.
Kommunens samlede vurdering
Omsøkt tiltak innehar, etter kommunens skjønn, gode visuelle kvaliteter, i seg selv og i forhold til sin funksjon og dets bygde og naturlige omgivelser og plassering, jf. pbl § 29-2. Tiltaket er innenfor avstandskravene i pbl § 29-4.
Tiltakets tekniske kvaliteter
Kravene i byggteknisk forskrift (TEK17) gjelder fullt ut om vi ikke har innvilget unntak eller dispensasjon i vedtaket ovenfor.
Registrering i matrikkelen:
Bygget får bygnings-løpenr i matrikkelen, som er landets offisielle register over fast eiendom, herunder bygninger, boliger og adresser.
Matrikkelen blir nå oppdatert med følgende bruksareal (BRA) og bebygd areal (BYA) for bolig:
Total BYA= 358 kvm
Reguleringsplan med tilhørende bestemmelser, samt godkjent igangsettingstillatelse følger vedlagt.
Beskrivelse av sameiet
Prosjektet vil bli seksjonert i henhold til eierseksjonsloven og vil bestå av totalt 6 boligseksjoner, og hver bolig vil bli tildelt et eget seksjonsnummer.
Seksjoneringen omfatter både eksklusive arealer (som tilhører den enkelte seksjon, f.eks. bolig, garasje og tilhørende uteareal dersom dette er regulert som tilleggsdel) og fellesarealer som inngår i sameiets felleseie, slik som adkomstveier, grøntområder, lekeplass og tekniske installasjoner.
Seksjoneringen gjennomføres før overtakelse og overleveres kjøper iht. gjeldende regelverk. Endelig utforming og organisering av seksjonene vil fremgå av tinglyst seksjoneringsbegjæring og vedtekter for sameiet.
Utdrag fra utkast til vedtekter:
- Den enkelte bruksenhet består av en hoveddel, samt eventuelt en eller flere seksjonerte tilleggsdeler. Hoveddelen består av en klart avgrenset og sammenhengende del av en bygning, med egen inngang. De deler av eiendommen som ikke inngår i de enkelte bruksenheter er fellesareal.
- Leiligheter med beliggenhet i 1. etasje gis alene og hver for seg enerett til å bruke deler av sameiets fellesareal. Utomhusplan som viser areal underlagt enerett følger på vedtektenes siste side. Følger vedlagt.
- Dyrehold er tillatt så lenge dette ikke er til ulempe for de øvrige brukerne av eiendommen.
En sameier eier en andel i eiendommen, med tilknyttet enerett til bruk av sin bruksenhet, jf. eierseksjonsloven § 25.
Ingen kan erverve mer enn to boligseksjoner i et sameie, jf. eierseksjonsloven § 23 første ledd. Dersom et erverv har funnet sted i strid med eierseksjonslovens regler kan Kartverket nekte overskjøting.
Dersom overskjøting blir nektet, er kjøper likevel forpliktet til å gjennomføre handelen med selger, og oppgjør til selger vil finne sted tross manglende overskjøting.
Interessenter oppfordres til å sette seg inn i sameiets vedtekter, husordensregler, regnskap, budsjett, årsberetning m.m. Se særlig om vedtekter og husordensregler knyttet til husdyrhold, dugnader, trappevask o.l.
Andre faste løpende kostnader
Felleskostnader er estimert fra kr 1.393,- per mnd. og opp til kr 1.591,- per mnd. p.t. (Se detaljert oversikt for hver enkelt leilighet).
Størrelsen på fellesutgiftene er ikke endelig fastsatt, men stipulerte fellesutgifter skal dekke sameiets ordinære driftsutgifter slik som felles byggforsikring, vedlikeholdsfond, service av heis/løfteplattform, vaktmestertjenester, grunnpakke for Tv/internett m.m., men avhenger av ytelsene sameiet rekvirerer. Utkast til budsjett og estimat for felleskostnader til hver leilighet er utarbeidet fra forretningsfører og følger vedlagt. Driftsbudsjett og fellesutgifter vedtas av styret og fremlegges til orientering på sameiets generalforsamling.
Leilighetene er under oppføring og selger har således ikke grunnlag for å svare på strømforbruk.
Kommunale avgifter vil faktureres direkte fra kommunen - Disse er ikke fastsatt ennå da leilighetene er under oppføring. Det gjøres oppmerksom på at det kan forekomme variasjon i avgiftene som følge av forbruk og eventuelle kommunale endringer av gebyr/avgift. Hvis kommunen sender sameiet faktura for kommunale avgifter, vil kostnaden fordeles etter sameiebrøken.
Det påløper eiendomsskatt i Gran kommune, og kostnad for dette vil komme i tillegg.
Eiendommen vil bli fullverdiforsikret og vil av selgeren bli holdt tilsvarende forsikret frem til overtakelsen, jfr. buofl. § 13 siste ledd. Forsikringen gjelder også materialer som er tilført eiendommen. Selgeren vil for sameiets regning besørge bygningsforsikring (skadeforsikring) fra og med første overtakelse. Kjøperen må selv sørge for forsikring av eget innbo og løsøre.
Sikringsordning
Sameiet er ikke tilknyttet sikringsordning.
Utdrag fra utkast til vedtekter:
De andre seksjonseierne har lovbestemt panterett i seksjonen for krav mot seksjonseieren som følger av sameieforholdet, jf. eierseksjonslovens § 31. Pantekravet kan ikke overstige et beløp som for hver bruksenhet svarer til to ganger folketrygdens grunnbeløp på det tidspunktet tvangsdekning besluttes gjennomført. Panteretten omfatter også krav som skulle ha vært betalt etter at det er kommet inn en begjæring til namsmyndighetene om tvangsdekning.
Oppstartskapital
Det gjøres oppmerksom på at forretningsfører vil innkreve innbetaling av oppstartskapital for sameiet pålydende kr. 5.000,-, samt innbetaling for etablering av sameiets vedlikeholdsfond - Beisetillegg pålydende kr 5.000,-.
Oppgjør
Kjøpesum med tillegg av omkostninger skal være disponibelt på meglers klientkonto innen overtagelse. Normalt innebærer dette at fullt oppgjør må være innbetalt på meglers klientkonto senest to virkedager før avtalt overtagelsesdato.
Eventuelle vilkår knyttet til innbetalingen, eksempelvis pantedokument som skal tinglyses til fordel for kjøpers bank, må være megler i hende i god tid før overtagelse kan finne sted.
Betaling for ev. endrings- og/eller tilleggsarbeider bestilt gjennom selger, faktureres direkte fra selger når vedkommende endrings- og/eller tilleggsarbeid er utført. Dersom forfall på faktura er forut for overtakelse, må selger stille garanti i henhold til bustadoppføringslova § 47.
Før noen del av kjøpesum blir utbetalt selger må hjemmel til leiligheten være overført kjøper, jf. bustadoppføringslova §46
Det skal ikke innbetales noe før garantier foreligger.
Forsinkes betaling med mer enn 30 dager for avtalte innbetaling, har selger rett til å heve kjøpet og foreta dekningssalg. Selger vil holde kjøper ansvarlig for selgers eventuelle økonomiske tap som følge av kjøpers mislighold. Selger har rett til dekning av sitt tilgodehavende i kjøpers eventuelle innbetalinger, herunder også for renter og andre omkostninger som påløper på grunn av kjøpers mislighold.
Finansiering
Kontakt megler for avklaring av finansielle forhold, herunder lån til kjøp av eiendom. Privatmegleren har avtale med Nordea om formidling av lån og andre finansielle tjenester. Privatmegleren mottar godtgjørelse for dette.
Forbehold knyttet til prosjektet
Vigga Bygg AS forbeholder seg retten til å levere prosjektet enten som plassbygd, precut eller som elementbygg.
Utstyr og tjenester som ikke er nevnt i leveransebeskrivelsen, er ikke inkludert i leveransen fra Vigga Bygg AS.
Følgende leveres til leiligheter levert som plassbygd eller element:
- Vinduer
- Utvendige og innvendige dører
- Innredning på kjøkken, bad
- Takrenner, beslag og vannbrettbeslag
- Ventilasjonsanlegg
- Isolasjon
- Innvendige og utvendige plater
- Garanti og forsikring i henhold til gjeldende regler
Eventuelle tilleggsleveranser og endringer skal fremgå eksplisitt i kontrakt eller vedlegg til kontrakt.
Prosjektet oppføres i henhold til gjeldende teknisk forskrift (TEK17). Der hvor det ikke er gitt spesifikke opplysninger i beskrivelsen eller tegninger, vil Norsk Standard og anvisninger fra SINTEF Byggforsk være gjeldende.
Vigga Bygg AS forbeholder seg retten til å gjøre nødvendige tilpasninger og endringer i konstruksjon og/eller materialvalg, forutsatt at dette ikke reduserer kvaliteten eller medfører pristillegg for tiltakshaver.
Det presiseres spesielt at kjøkken leveres i henhold til egen kjøkkentegning.
Den foreløpige utomhusplanen er kun ment som en illustrasjon av standard og funksjoner. Det ferdige produkt vil kunne avvike fra illustrasjonen uten at dette gir kjøper rett til å kreve prisavslag. Det kan forekomme målestokkavvik ved trykking av salgsmaterialet, og prospektet må derfor ikke brukes for nøyaktig måltaking. Det tas forbehold om at sjakter og føringsveier for VVS-installasjoner kan bli endret.
Detaljprosjektering av tekniske føringer og installasjoner kan medføre mindre endringer som utvidelse av vegger og nedforing av himlinger/innkassinger.
Det kan forekomme avvik mellom denne prosjektbeskrivelse og godkjente søknadstegninger. I slike tilfeller er det alltid godkjente søknadstegninger som er gjeldende.
Byggherre/boligleverandør tar forbehold om eventuelle skrivefeil i beskrivelsen.
Selger tok forbehold om salg av minimum 50 % av enhetene samt innvilget byggelån innen 31.12.2025. Disse forutsetningene er nå oppfylt, og byggingen er igangsatt.
Byggetid - antatt tidspunkt for overtagelse
Grunnarbeidene er i gang, og fysisk byggestart er besluttet da selgers forbehold om salg av 50% av enhetene og innvilget byggelån er oppfylt. Byggetiden er estimert til cirka 10 måneder fra fysisk oppstart. Det presiseres at dette tidspunktet er foreløpig og ikke bindende, og det utløser ingen dagmulkter.
En eventuell forsinkelse i oppstart eller lengre byggetid enn forventet kan medføre en senere overtakelse. Ferdigstillelse av utomhusområder tilknyttet byggene, og felles utomhusarealer for øvrig, vil kunne bli utført etter overtakelse, blant annet avhengig av årstiden.
Etter at selgers forbehold er bortfalt skal selger skriftlig meddele til kjøper dagmulktsbelagt ferdigstillelsesdato. Selger skal med minst tre måneders varsel angi overtagelsesmåneden til kjøper, innen den første måneden for tidligere varslet intervall.
Selger kan kreve overtakelse inntil fem måneder før den opprinnelige ferdigstillelsesdato. Selger skal i så fall skriftlig varsle om dette minimum to måneder før den nye overtakelsesdatoen. Ved forsinkelse beregnes det dagmulkt fra den nye overtakelsesdatoen.
Dersom det er innkalt til overtagelsesforretning, men overlevering ikke kan skje til avtalt tid (dagmulksutløsende fristoversittelse), kan selger kalle inn til overtagelsesforretning med syv dagers varsel, jf. buofl. § 15.
Endringer i fremdrift pga. kjøpers endrings- eller tilleggsbestilling skal varsles kjøperen umiddelbart.
Videresalg og endring i eierskap/navneendring
Kjøpekontrakten gjelder individuelt for kjøper. Transport av kontraktsposisjon før overtakelse krever selgers samtykke og godkjenning av ny kjøper. Samtykke kan ikke nektes uten saklig grunn, men selger kan stille betingelser for et eventuelt samtykke. Ved selgers eventuelle skriftlige samtykke påløper et gebyr på kr 50.000,- inkl. mva. Ny kjøper trer inn i de samme rettigheter og forpliktelser som følger av denne kjøpekontrakt, og vil være bundet av eventuelle bestillinger av tilvalg og endringer.
Det forutsettes at seksjonen registreres i grunnboken i kjøpers navn i henhold til bud og kjøpekontrakten. Dersom kjøper før overtakelse ønsker å endre hjemmelsforhold internt i egen familie, herunder ektefelle/samboer, sønn/datter, mor/far, søster/bror (dvs. annen tinglysing av hjemmel enn hva som fremkommer av akseptert bud og kjøpekontrakt), vil det påløpe et gebyr til megler på kr 25.000,- inkl. mva for endring av hjemmelsforhold. Eventuell endring krever selgers samtykke.
Annen nyttig informasjon
Prosjektet oppføres i henhold til gjeldende teknisk forskrift (TEK17). Der hvor det ikke er gitt spesifikke opplysninger i beskrivelsen eller tegninger, vil Norsk Standard og anvisninger fra SINTEF Byggforsk være gjeldende.
Kjøper er oppfordret til, og forpliktet til, å sette seg inn i de drift- og vedlikeholdsoppgaver som følger med som eier av boligen og tilhørende utomhusarealer (herunder all FDV-informasjon, forvaltning, drift og vedlikehold), og de. FDV til boligkjøpere leveres på boligmappa.no - FDV for utomhus og fellesanlegg leveres til boligsameie.
Prospekt som er utarbeidet i forbindelse med salg av boligen er kun ment som en illustrasjon. Alle illustrasjoner, tegninger og foto er kun ment å gi inntrykk av ferdig bebyggelse, og er ikke bindende for utformingen av den endelige bebyggelsen. Det kan således inneholde elementer som ikke inngår i utbyggers leveranse, både når det gjelder utvendige forhold og innredning.
Det tas forbehold om trykkfeil samt myndighetenes endringer på gjeldende regler og forskrifter.
Alle arealer som er oppgitt i forbindelse med markedsføringen av prosjektet angis som BRA-i og BRA-e som tilsvarer BRA.
BRA-i (internt bruksareal) er areal innenfor boenhetens omsluttende vegger og BRA-e (eksternt bruksareal) er rom som ligger utenfor boenheten, men som tilhører denne. BRA-i og BRA-e er å betrakte som ca. areal. Kjøper har ingen krav mot selger dersom arealet skulle vise seg å være inntil 5% mindre/større enn markedsført areal.
Kjøper gjøres særlig oppmerksom på at det i nyoppførte boliger forventes i noen grad svinn og krymping av materialer. Dette kan få konsekvenser som f.eks. svinnriss i mur (inn- og utvendig), mindre riss i tapet og maling, planhet i gulv, hjørner og sammenføyninger, alt som er følge av krymping av trevirke etc. Særlig listefrie løsninger i overganger mellom ulike flater, som for eksempel mellom vegg og himling eller rundt åpninger, kan medføre synlige riss eller sprekker.
All informasjon er gitt med forbehold om rett for utbygger til å foreta mindre endringer. Det må påregnes mindre justeringer i forbindelse med endelig prosjektering og opparbeidelse av eiendommen. Nedforinger, dragere, søyler og innkassinger i himling må påregnes.
Utbygger har rett til å endre valg av leverandører, uten at dette gir rett til endring av avtalt pris.
Ferdigstillelse av utearealer kan avhenge av vær og årstid.
Leilighetene leveres byggvasket, dvs.at kjøper selv må gå over og vaske/tørke overflater for støv etc.
Adgang til utleie
Bolig i eierseksjonssameie kan som hovedregel fritt leies ut. Det kan imidlertid følge av sameiets vedtekter at leietager skal godkjennes av styret, jf. eierseksjonsloven § 24 tredje ledd. Styret må ha "saklig grunn" for ikke å godkjenne leietager.
Utdrag fra utkast til vedtekter:
2-1 Rettslig disposisjonsrett
(1) Seksjonseieren disponerer fritt over egen seksjon med de begrensninger som følger av sameieforholdet og eierseksjonsloven. Seksjonseieren kan fritt selge, pantsette og leie ut sin egen seksjon.
(2) Korttidsutleie av hele boligseksjonen i mer enn 90 døgn årlig er ikke tillatt. Med korttidsutleie menes utleie i inntil 30 døgn sammenhengende.
(3) Sameiets styre skal underrettes skriftlig om alle overdragelser og leieforhold. Ved eierskifte betales et eierskiftegebyr til forretningsfører for sameiet.
Konsesjon / Odel
Avhengig av endelig organisering av fellesområdene vil det kunne kreves egenerklæring for konsesjonsfrihet.
Sikkerhetsstillelse
Alle eiendomsmeglingsforetak har lovpålagt forsikring av klientmidler begrenset oppad til kr 45 mill. Enkeltsaker er forsikret inntil kr 15 mill. Dersom kjøpers låneinstitusjon krever tilleggsforsikring ved omsetning over 15 millioner, må kjøper selv eller dennes låneinstitusjon dekke utgiftene forbundet med dette.
Tilvalg og endringer
Kjøpere får anledning til å sette sitt personlige preg på boligene gjennom tilvalg. Kjøper vil få anledning til å gjøre tilvalg i henhold til prosjektets tilvalgs skjema mot tillegg i pris. Oversikt over tilvalg, hvilke kostnader som vil påløpe og frist for beslutning vil bli oversendt etter at arbeidene er igangsatt.
Endringer kan ikke gjennomføres dersom det gir forsinkelser i prosjektet. Kjøper kan heller ikke kreve endringer som utgjør mer enn 15 % av avtalt kjøpesum. Det vises også til bustadoppføringslova § 9.
Etter igangsetting vil det bli satt frister for tilvalg og endringer. Fristene som oppgis er endelige, og kjøper er selv ansvarlig for å iverksette bestillinger innenfor de gitte frister. Oversittes fristene vil leiligheten bli levert i henhold til prosjektets kvalitetsbeskrivelse og standard leveranse.
Tilvalg og endringer avtales mellom kjøper og prosjektets kunde - underleverandør. Fakturering av tilvalg og endringer skjer etter at tilvalgs prosessen er avsluttet, og skal være innbetalt på meglers klientkonto senest to virkedager før avtalt overtagelsesdato.. Selger kan kreve at kjøper stiller sikkerhet for betaling av tilvalg og endringsarbeider.
Solgt ihht bustadoppføringsloven
Boligene selges i henhold til Bustadoppføringslova som regulerer kjøpers (forbrukers) rettigheter og plikter ved avtale om oppføring av bolig og kjøp av fast eiendom der bygningen ikke er fullført når avtalen inngås. Ved salg til aksjeselskap legges Avhendingslovens bestemmelser til grunn. For øvrig gjelder Lov om eierseksjoner for eierseksjonssameiet og driften av dette.
Garantier
Det stilles garantier i henhold til Bustadoppføringslovas bestemmelser. Garanti etter § 12 vil bli stilt i forbindelse med avtaleinngåelse. Garantien skal være pålydende 3% av kjøpesummen i byggetiden og 5% i 5 år etter overlevering av boligene til kjøper. Garanti etter § 47 forutsettes stilt om selger ønsker utbetalt forskudd/delinnbetaling/sluttoppgjør før hjemmelsovergang. Eventuelle påkrevde endringer av garantier ved eventuelle videresalg/transporter utføres ikke og bekostes ikke av selger.
Forsikring
Frem til overtagelse vil eiendommen være forsikret av selger. Etter overtagelse vil eiendommen forsikres gjennom sameiets fellesforsikring. Kjøper må selv besørge innboforsikring og forsikring av eventuelle særskilte påkostninger.
Budgiving
Boligene selges til fastpris.
Alle bud/kjøpetilbud på eiendommen skal være skriftlig og sendes meglerforetaket pr. fax, mail, sms eller via vår "gi bud"-knapp på våre nettsider. Knappen finner du også på Privatmeglerens hjemmeside for prosjektet, se på den enkelte bolig.
Bud/kjøpetilbud må ikke ha kortere akseptfrist enn til kl. 12.00 første virkedag etter siste annonserte visning. Lørdag regnes ikke som virkedag. Bud/kjøpetilbud med kortere frist enn dette kan ikke formidles av megler. Nærmere info om budgiving finner du på egen side sammen med kjøpetilbud/budskjema.
Som budgiver hos Privatmegleren kan du kreve budjournal fremlagt så snart handel er gjennomført.
Innhold i budjournal er lovregulert, og innebærer at budgivere må akseptere at opplysninger om budet kan bli fremlagt for selger, kjøper og øvrige budgivere. Budgiver som ikke blir kjøper, kan kreve kopi av anonymisert budjournal.
Lov om hvitvasking
Megler er underlagt lov om hvitvasking som innebærer plikt til å melde ifra til Økokrim om mistenkelige transaksjoner
Meglers vederlag og utlegg
Meglers vederlag utgjør 1% av salgssum pr. enhet. Utlegg dekkes av selger og består bl.a. av innhenting av opplysninger fra kommune/offentlige instanser, markedsføring, tinglysingskostnader, pantattester, tinglyste servitutter/erklæringer, m.m.
Nyttige lenker
Nærområdet

PrivatMegleren Brustad & Partnere
Annonseinformasjon
| FINN-kode | 424390693 |
|---|---|
| Sist endret | 27. okt. 2025 08:02 |
| Referanse | 121250275 |
Annonsene kan være mangelfulle i forhold til lovpålagt opplysningsplikt. Før bindende avtale inngås oppfordres interessenter til å innhente komplett informasjon fra meglerforetaket, selger eller utleier.