Bildegalleri
Solgt
Bjugn
Karlestranda
Leilighet 3
Prisantydning2 475 000 kr
Prosjektets status
Planlegging
Venter på byggetillatelse.
Salgsstart
Antatt september 2025
Byggestart
Høsten 2025
Overtakelse
Etter avtale
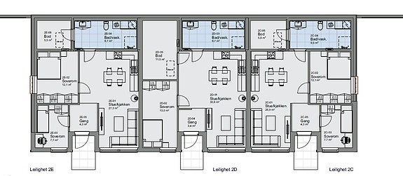
Nøkkelinfo
- Boligtype
- Leilighet
- Etasje
- 1
- Soverom
- 2
- Internt bruksareal
- 70 m² (BRA-i)
- Bruksareal
- 70 m²
Fasiliteter
Balansert ventilasjon
Balkong/Terrasse
Lademulighet
Offentlig vann/kloakk
Utsikt
Nærområdet
Fosenhus AS
Annonsene kan være mangelfulle i forhold til lovpålagt opplysningsplikt. Før bindende avtale inngås oppfordres interessenter til å innhente komplett informasjon fra meglerforetaket, selger eller utleier.