Bildegalleri
A2-H0101.jpg
Linderudløkka
Nye leiligheter kommer for salg i august 2025 - Bli med på den nye løkka!
Prisantydning7 800 000 kr
Prosjektets status
Planlegging
Pågår
Salgsstart
August 2025
Byggestart
Byggestart vedtatt
Overtakelse
Estimert 2. halvår 2028
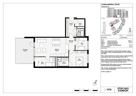
Nøkkelinfo
- Boligtype
- Leilighet
- Etasje
- 1
- Soverom
- 3
- Rom
- 4
- Internt bruksareal
- 89 m² (BRA-i)
- Bruksareal
- 91 m²
- Eksternt bruksareal
- 3 m² (BRA-e)
- Balkong/Terrasse
- 22 m² (TBA)
Visning
Ta kontakt med megler for å avtale visning på visningsenteret eller digitalt via Teams. I vår digitale 3D-modell kan vi se på prosjektet i sin helhet, samt sol- og utsiktsforhold fra den enkelte leilighet.
VisningspåmeldingBeskrivelse
Ansvarlig megler
Lars Bratseth
NB: Knappen for å vise hele beskrivelsen har kun en visuell effekt.
NB: Knappen for å vise hele beskrivelsen har kun en visuell effekt.
Nærområdet
Røisland & Co Eiendomsmegling AS
Tenk nytt - bo godt!
Annonseinformasjon
| FINN-kode | 423953509 |
|---|---|
| Sist endret | 23. apr. 2026 07:38 |
| Referanse | RCOPS1.25654 |
Annonsene kan være mangelfulle i forhold til lovpålagt opplysningsplikt. Før bindende avtale inngås oppfordres interessenter til å innhente komplett informasjon fra meglerforetaket, selger eller utleier.