Bildegalleri
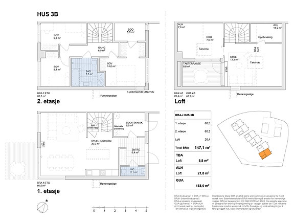
Plantegning hus 3B.
Vækerøveien 144A
Innholdsrike familieboliger under bygging på Ullern | Takterrasse og vestvendt hage | Parkeringsplass i carport.
Prosjektets status
Planlegging
-
Salgsstart
-August 2025
Byggestart
-Estimert Q4 2025
Overtakelse
-Estimert Q4 2026
Nøkkelinfo
- Boligtype
- Tomannsbolig
- Soverom
- 3
- Primærrom
- 0 m²
- Bruksareal
- 147 m²
- Balkong/Terrasse
- 8 m² (TBA)
Visning
Beskrivelse
Oppdragsansvarlig
Dyve & Partnere Eiendomsmegling AS / Jørgen Ek
Selger/Utbygger
Lysejordet Utvikling As
Betegnelse
Gnr. 28 Bnr. 640 i Oslo kommune
Byggeår
2026
Arealer og fordeling per etasje
Totalt BRA 0 kvm består av:
- BRA-i (internt bruksareal):
- TBA (terrasse-/balkongareal) 8 kvm
Vedlagte plantegninger er ikke målbare, og oppgitte arealer er hentet tegninger. Avvik kan forekomme i prosjektering/byggefasen.
Arealer og fordeling pr. etasje
Bruksareal: 147 kvm, BRA-i: 147 kvm , TBA: 8 kvm
Alle boligene har likt innhold:
1.etasje: Entré, WC, stort og åpent kjøkken/stue-rom, bod. Carport.
2.etasje: 3 soverom, bad, gang og bod.
3.etasje: Stue, bod og oppbevaring. Takterrasse.
Om prosjektet
Vi har gleden av å presentere 6 nye familieboliger i Vækerøveien 144A.
Prosjektet består av familieboliger over tre plan, utformet med gjennomtenkte planløsninger og funksjonalitet som gir en god balanse på det praktiske og visuelle. I første etasje får du en åpen stue- og kjøkkenløsning med direkte utgang til privat hage, entré, wc og bod/teknisk rom. Teknisk rom kan som del av tilvalg gjøres om til kombinert vask/bod. Andre etasje rommer tre soverom, et romslig bad, gang og bod. Mulighet for å etablere en-suite bad som tilvalg ved mastersoverom. Toppetasjen byr på en lys loftstue med utgang til skjermet takterrasse, samt ekstra bod og oppbevaringsplass.
Kvaliteter i prosjektet
Direkte utgang fra stue/kjøkken til privat hage
Vestvendte uteplasser med flott utsyn og sol
Takterrasse
Bad og separat wc
Kjøkken fra Sigdal
Plejd smarthusstyring
Tapwell kraner kjøkken og bad.
Gode oppbevaringsmuligheter
Parkering i carport
Bygging av prosjektet er nå igangsatt og estimert ferdigstillelse er 4. kvartal 2026.
Beliggenhet
Eiendommen ligger i et rolig, trygt og barnevennlig boligområde ved Lysejordet. Området er svært attraktivt for alle generasjoner, med Rema 1000, kort skolevei til Lysejordet barneskole, flere barnehager og Lysejordet busstopp rett i nærheten.
I nærområdet finnes det flere lekeplasser, og like nedenfor eiendommen ligger et stort friområde med gresslette, fotball- og basketballbane. Nedre del av gressletta er flat, og øvre del brukes til aking om vinteren. Idylliske Lysakerelven renner forbi friområdet og gir en unik mulighet for rekreasjon og trening. Det er tilrettelagte turveier/stier langs begge sider av elven, og flere badeplasser og historiske punkter underveis. En av badeplassene ligger rett nedenfor tomten. Ved utløpet til fjorden finner du Lysaker brygge med flott utsikt over Oslofjorden. Det er kort vei til Sollerudstranda og Vækerø park, som har grønne, flott beplantede områder, gressplen, stier, benker, brygger og muligheter for bading. Lysakerelven kan også følges opp til Bogstadvannet for et forfriskende bad i ferskvann, eller et besøk på Bogstad gård. Oslo Golfklubb på Bogstad tilbyr en av Europas beste golfbaner.
For den aktivitetslystne kan Ullern Idrettsforening tilby bandy, basketball, fotball, håndball og gymnastikk, mens Røa Allianseidrettslag tilbyr allidrett, bandy, fotball, langrenn, sykkel, triatlon og trim. Ullern Tennisklubb ligger idyllisk til på Blokkajordet ved Ullern kirke og har et moderne tennisanlegg for helårsbruk. Flere treningssentre ligger godt innen rekkevidde, deriblant Basic Norge og SATS Røa, samt Røa bad, som er et lekkert anlegg med blant annet 25-meters basseng, spa/terapibasseng, boblebad, barnebasseng, sklier og klatrevegg.
Røa Senter og CC Vest på Lilleaker er populære handleområder, og det er kort vei til begge. Røa senter tilbyr et variert utvalg av butikker, bakerier og helse- og velværetilbud. CC Vest har ca. 90 butikker, med en fin miks av kjedebutikker og selvstendige spesialforretninger. På Røa Torg finner du også et rikt utvalg av butikker og spisesteder inkludert vinmonopolet, Åpent bakeri, apotek, frisør og Sushi Huset Røa.
Byggemåte
Konstruksjoner
Der det er sprøytebetong leveres denne ubehandlet. Skjolder i sprøytebetong kan oppstå over tid. Huset over terreng vil bli oppført med bærende konstruksjoner i treverk og eventuelt stål der det er hensiktsmessig. Forøvrig er huset planlagt oppført med precuteller prefabrikkerte elementer. I tredje etasje kan nedlekting av himling forekomme for plassering av tekniske føringer samt mønedrager.
Grunnarbeid/utvendig arbeid
Huset vil bli fundamentert på egnet underlag.
Det kan bli etablert drens- og pumpekummer, elektro- og svakstrømskap, samt andre installasjoner på eiendommen der entreprenøren finner det hensiktsmessig. Dette kan medføre at et hus får et ekstra skap på husveggen, som drifter strøm for sameiet. Plassering av skap vil bli bestemt av entreprenør, der hvor dette er hensiktsmessig. Kumlokk til evt. pumpekum, stakekumel kan også bli plassert på uteoppholdsarealene der det er nødvendig.
Rundt grunnmur/kjeller arronderes terreng med stedlige masser med fall ut fra huset der det lar seg gjøre. Grunnmurspapp og isolasjon leveres kappet til over terreng med grunnmurslister.
Balkong/terrasse
Terrassegulv på balkong/terrasse leveres i trykkimpregnert furu, hvis ikke annet er oppgitt i romskjemaet.
Rekkverk på balkong/terrasser leveres som spilerekkverk av royalimpregnert trevirke, eller parapat med håndløper.
Vinduer, listverk og dører
Vinduer leveres sort eller gråmalt på inn- og yttersiden. Konstruksjon i treverk. Takvindu leveres alltid hvite, uavhengig av farge på resterende vinduer. Ytterdører leveres sort- eller gråmalt. Innvendige dører leveres med et speil, av typen SwedoorUnique01 eller tilsvarende i klassisk hvit. Listverk langs gulv og rundt dører leveres som glattkant i farge klassisk hvit med dimensjon 12x58mm eller tilsvarende, med synlig spikerhoder. Sparkling og maling av lister for å skjule spikerhoder kan gjøres som tilvalg. Det leveres listefri overgang mellom vegg/himling. Boligene leveres med lister rundt vinduer, men kan oppgraderes til listefritt som tilvalg.
Overflater
Malte gipsplater leveres med grunning og 2 strøk maling. Noe strukturforskjell i slepelys og overflateriss må påregnes.
Yttervegg, tak og vindu
Utvendig leveres 148mm dobbeltfalsetkledning i mørkegrønn farge etter arkitektens anbefaling, grunnet og mellomstrøk. Kjøper må selv påføre et toppstrøk senest to år etter ferdigstillelse. Det gjøres oppmerksom på at endelig retning på kledning ikke bestemmes før husene er ferdig prosjektert. Endelig konstruksjonsmetodikk vil bli avklart i detaljprosjekteringen i samråd med entreprenør. Gesimsbeslag i farge grå eller sort.Tak leveres med flat takstein, eller tilsvarende. Tak/baldakin leveres over hovedinngangsdøren der det ikke er annen overdekning.
Sanitær og rør
Fordeling av varmt og kaldt vann legges skjult i bjelkelag og vegger. Alle vannledninger leveres som "rør i rør"-system i plast. Endelig plassering av rørfordelingsskap bestemmes av rørlegger i forbindelse med detaljprosjektering. Fordelingsskapet kan plasseres utenfor våtrom der dette er hensiktsmessig. Rørføringer mot yttervegg kan legges åpent på vaskerom/teknisk rom. Til varmtvannsbereder brukes synlige rør mellom vegg og bereder. Rør kan bli innkledd i synlig kasse. Sanitærutstyr leveres iht. romskjema. Ved behov for pumpekum til overvann vil denne bli koblet til felles måler. Service og driftskostnaden fordeles av sameiet. Det rommet det er skissert vaskemaskin leveres med sluk i gulv og opplegg for vann og avløp til vaskemaskin. Varmtvannsbereder leveres på 200 liter og blir plassert der det er mest hensiktsmessig, etter utbyggernes vurdering. På kjøkken leveres opplegg for vask og oppvaskmaskin. Utvendig leveres en frostsikker kaldtvannskran, montert på yttervegg, plassering etter entreprenørens anbefaling.
Elektroarbeid
EL-installasjoner leveres etter NEK 400. Sikringsskap med nødvendig overbelastningsvern, jordfeilbryter og nødvendige kurssikringer samt svakstrømskap. Det leveres 1 stk elektronisk dørlås på hovedinngangsdøren. Elektroinstallasjonene utføres av godkjent elektroinstallatør og utføres i hovedsak som skjult anlegg. I betongvegg, lydvegg eller branncelle-begrenset vegg og himling, kan det benyttes åpen kabelinstallasjon. Det blir lagt tomrør inn til huset fra vei/tomtegrense og inn til svak-strømskap, klargjort for trekking av bredbåndskabel. Tilkobling og kabelabonnement må bestilles hos kabeloperatør og besørges av kjøper. Brytere, dimmere og stikkontakter leveres i hvit utførelse, ELKO Plus/ SG innfelt eller tilsvarende. Alle stikkontakter leveres som doble m/barnevern, unntatt til fast utstyr (komfyr, kjøleskap etc.) og lampepunkter ved tak. Det leveres 15 downlights per bolig fordelt på 3 ulike soner, hhv. entré, bad og stue/kjøkken i 1. etg. Downlights plasseres etter eget ønske i møte med elektriker. Det leveres smarthussystem fra Plejd(eller tilsvarende) som muliggjør smartstyring av lys og varme. Det leveres ringeklokke montert ved hovedinngang.
Trapp
Innvendig trapp leveres med hvitmalte furutrinn. Vanger, rekkverk og håndløper leveres i laminert hvitmalt furu. Trappen leveres med tette trinn fra 1. til 2. etg, men med åpne trinn med barnesikring fra 2. etg til 3. etg.
Ventilasjon
Det leveres balansert ventilasjon med varmegjenvinner. Kanaler må i noen tilfeller innkles med kasser. Ventilasjonsanlegget plasseres der entreprenøren finner det hensiktsmessig og blir besluttet under detaljprosjektering.
Brannsikkerhet
Det leveres seriekoblete røykvarslere i alle etasjer samt et brann-slukningsapparat. Brannstige av typen Sørlandsstigen vil bli montert om dette kommer frem under brannprosjektering.
Standard
Kjøkken
Prosjektet leveres med kvalitetskjøkken fra Sigdal. Den moderne og vakre kjøkkenserien Uno er standard og kan fritt velges i 15 forskjellige farger for at du skal kunne tilpasse det til din stil. Kjøper tegner sitt eget kjøkken, og får en fastsatt ramme i kroner. Kjøperen står fritt til å gå over den fastsatte rammen for egen regning. Kjøkkenkran fra Tapwell.
Gulv
Det leveres brede 1-stavs parkett fra Kährs, typen Eik Newington. Fliser leveres av Bricmate. Det tas forbehold om endringer men i samme kvalitet.
Innerdør
Kompakt innerdører leveres for god støy-reduksjon. Alle dører leveres standard med ett speil (utskåret firkant).
Baderom
Følelsen av lunhet og luksus er viktig på badet. Her er det ikke holdt tilbake på god kvalitet. Det er valgt en tidløs palett for at badet skal være like fint i alle årene som kommer.
Nydelige fliser med litt sjattering som gir flatene spill uten å virke for bråkete. Fliser leveres av Bricmate. Her kan du kostnadsfritt velge mellom 4 farger. På gulv i dusjsone vil det bli levert mosaikk i samme type flis. Ønsker du en annen type flis er dette mulig gjennom tilvalgsprosessen.
Det tas forbehold om endringer i samme kvalitet.
Detaljer og design er viktige og her er produktene til Tapwell helt unike. Som standard leveres krom, men her kan det enkelt oppgraderes til brunert stål (eller annet) som tilvalg, for å få den lille ekstra touchen.
Baderomsmøblene leveres av Vikingbad i modellen Mie. Her får du svært elegante og tidløse baderomsmøbler og kan fritt velge mellom flere ulike farger. Baderomsmøblene kan oppgraderes til blant annet det svenske kvalitetsmerket Haven dersom man vil ha det lille ekstra som tilvalg.
Forslag til farger
Forslaget til fargepaletten for vegger består av 5 forskjellige nydelige farger fra Jotun som alle harmonerer fint sammen. Her kan man leke med sammensetningen av forskjellige farger til de ulike rommene. Merk at det er inkludert én farge som standard på veggene i huset. Flere farger kan velges som tilvalg
Tilvalg
Kommer kjøper tidlig inn i prosessen vil man få mulighet til å sette sitt personlige preg på boligen ved å gjøre endringer/ tilvalg. I møte med entreprenør, utbygger eller tilvalgsportal vil kjøper selv ha mulighet til å endre/oppgradere punkter nevnt under. Utbygger kan ta påslag på entreprenørens pris på tilvalg for administrasjon og garantiansvar.
Fliser
Lister
Parkett
Trapp
Kjøkken
Elektriske punkter
Gulvvarme
Varmekabler
Baderomsinnredning
Sanitærutstyr
Fargevalg på overflater
Innerdører
Vedfyrt peis/gasspeis
Oppvarming
Det leveres varmekabler i entré, WC og bad. Vedfyrt peisovn av typen VisionlineBLK 100 fra Peisselskabet (eller tilsvarende) leveres i hovedstuen.
Parkering / Garasje
Hver bolig leveres med én parkeringsplass i frittstående carport med trykkimpregnerte materialer. Ekstra parkeringsplass på terreng kan kjøpes (begrenset antall) for 200.000,- Det blir klargjort for 1 stk elbil-lader per seksjon (tomrør til sikringsskap). Ladeboks, kabel og sikring kan leveres som tilvalg.
Beskrivelse av tomt
Innkjøring på egen tomt og parkeringsareal blir singlet hvis ikke annet fremkommer av offentlige krav.
Tomten for øvrig grovplaneres med stedlige masser tilpasset den eksisterende naturlige topografi. Opprinnelig vegetasjon som ikke påvirkes av byggearbeidet vil etter utbyggers vurdering kunne bestå.
Det anlegges ferdigplen på uteområdene som er egnet til det. Kjøper må selv pleie og vedlikeholde gress etter overtagelse og ivareta gode vekstforhold.
Det leveres ikke busker, trær eller planter.
Tinglyste rettigheter og forpliktelser
Kommunen har legalpant som sikkerhet for betaling av kommunale avgifter. Legalpant er pant som følger av loven, og som ikke tinglyses. Legalpant følger derfor eiendommen ved salg. På eiendommen kan det være tinglyst erklæringer som f.eks. rett for kommunen til å vedlikeholde rørsystemer for vann- og kloakk. Disse erklæringene vil følge eiendommen ved salg. Kontakt megler for nærmere informasjon.
Øvrige sameiere har panterett i seksjonen for krav mot sameieren som følge av sameieforholdet, jf. eierseksjonsloven § 31. Pantekravet kan ikke overstige 2G (Folketrygdens grunnbeløp). Sameiet kan vedtektsfeste ytterligere panterett for sameiet. Vedtektsfestet pant tinglyses i seksjonene.
Servitutter / rettigheter
Eiendommen overdras fri for pengeheftelser, med unntak av eventuelle erklæringer, avtaler, servitutter og panteheftelser som fremgår av salgsoppgaven og skal følge med eiendommen ved salg. Kjøpers bank vil få prioritet etter disse.
1957/14834-1/105 Bestemmelse om bebyggelse
29.11.1957
Bestemmelse om benyttelse. Bestemmelse om garasje/parkering. Bestemmelse om anlegg og vedlikehold av ledninger m.v. Bestemmelse om gjerde. Bestemmelse om vann/kloakkledning. Med flere bestemmelser
1959/2054-1/105 Bestemmelse om veg
23.02.1959. Bestemmelse om kloakkledning. Bestemmelse om gjerde
1959/14855-1/105 Erklæring/avtale
01.12.1959. Vedtak av Oslo kommunes vann- og kloakkreglementet. Kan ikke slettes uten samtykke fra kommunen
1980/13052-1/105 Skjønn
13.06.1980. Gjelder denne registerenheten med flere
1983/5147-1/105 Best. om adkomstrett
18.02.1983. rettighetshaver:Knr:0301 Gnr:28 Bnr:1062. rettighetshaver:Knr:0301 Gnr:28 Bnr:1063. rettighetshaver:Knr:0301 Gnr:28 Bnr:1064. Bestemmelse om veg. Gjelder denne registerenheten med flere
1957/14111-1/105 Registrering av grunn
15.11.1957. Denne matrikkelenhet opprettet fra:Knr:0301 Gnr:28 Bnr:465
1958/920982-1/105 Sammenslått med denne matrikkelenhet:
11.11.1958. GNR 28 BNR 663
1964/919459-1/105 Sammenslått med denne matrikkelenhet:
04.11.1964. GNR 28 BNR 754
1983/5148-1/105 Registrering av grunn
18.02.1983. Utskilt fra denne matrikkelenhet:Knr:0301 Gnr:28 Bnr:1062
1983/5149-1/105 Registrering av grunn
18.02.1983. Utskilt fra denne matrikkelenhet:Knr:0301 Gnr:28 Bnr:1063
1983/5150-1/105 Registrering av grunn
18.02.1983. Utskilt fra denne matrikkelenhet:Knr:0301 Gnr:28 Bnr:1064
Rettigheter på andre eiendommer
Rettigheter på 0301-28/956
1979/4880-1/105 Best. om vann/kloakkledn.
12.02.1979. rettighetshaver:Knr:0301 Gnr:28 Bnr:639. rettighetshaver:Knr:0301 Gnr:28 Bnr:640. Kan ikke slettes uten samtykke fra kommunen.
Vei / Vann / Avløp
Adkomst fra privat vei. Eiendommen er tilknyttet offentlig vann- og avløpsnett via private stikk- og fellesledninger. Vi gjør oppmerksom på at private ledninger vedlikeholdes for eiers regning.
Ferdigattest eller midl. brukstillatelse
Selger er ansvarlig for at det blir utstedt ferdigattest på boligen. Dersom det ved overtagelsestidspunkt gjenstår mindre vesentlig arbeid og kommunen finner det ubetenkelig, kan det utstedes midlertidig brukstillatelse for hele eller deler av tiltaket. I midlertidig brukstillatelse skal det framgå hvilke arbeider som gjenstår og en frist for ferdigstillelse. Ferdigattest kan bli utstedt en tid etter overtakelsen uten at dette påvirker overtakelse eller gir kjøper krav på tilbakehold.
Rammetillatelse - Vækerøveien 144 A
Plan- og bygningsetaten godkjenner søknaden om oppføring av tre tomannsboliger og riving av eksisterende bebyggelse, som vi mottok 18.03.2025.
Vi gir dispensasjon fra: reguleringsplan: avstandsbestemmelsene i vegloven § 29, som en integrert del av reguleringsplanen
Verdi ved skattefastsetting
Verdien ved skattefastsetting er p.t. ikke fastsatt. Verdien ved skattefastsetting fastsettes av Ligningskontoret etter beregningsmodell som tar hensyn til om boligen er en såkalt "primærbolig" (der boligeieren er folkeregistrert bosatt) eller "sekundærbolig" (alle boliger man eier, men ikke bor fast i). Interessenter oppfordres til å sjekke www.skatteetaten.no eller kontakte ansvarlig megler for nærmere informasjon om verdien ved skattefastsetting.
Reguleringsforhold
Eiendommen ligger på en tomt som er regulert til byggeområde for Bolig m.tilh. anlegg ihht. reguleringsbestemmelse S-4220. Tomten grenser til Offentlig gang-/sykkelvei og Friområde/Park. Oslo kommune vedtok i 2015 en ny kommuneplan. Dette har fått betydning for en rekke av de vedtatte reguleringsplanene i kommunen. Vi oppfordrer alle interessenter til å gjøre seg kjent med reguleringen i området, og således også reguleringskartet vedlagt salgsoppgaven. Ta kontakt med ansvarlig megler for nærmere informasjon.
------------------------------------------
Lysejordet:
Statnett skal fornye dagens kraftforbindelse mellom Hamang og Smestad for å styrke strømforsyningen i Oslo, Akershus og Østfold. Energidepartementet vedtok den 2. april i år at fornyelsen skal skje ved å erstatte dagens luftledning mellom Hamang og Smestad transformatorstasjon med en kabel i grøft og tunnel. Statnett planlegger å benytte deler av Lysejordet til anleggsrigg i forbindelse med arbeidet med kabel i tunnel. Anleggsriggen er midlertidig, men vil beslaglegge areal og påvirke nærmiljøet med støy, støv og transport. Forberedelse og driving av den planlagte tunnelen er anslått å ta om lag 2,5 år. I tillegg vil det gå noe tid til byggtekniske forhold og kabling. Etter at arbeidet med kabelen er ferdigstilt, skal Lysejordet tilbakeføres til friområde. Dato for oppstart og de nærmere vilkår for konsesjonen, herunder hvordan hensyn til miljø og omgivelser skal ivaretas under byggeperioden, krav til støyreduserende tiltak etc., er foreløpig ikke avklart/besluttet. Interessenter oppfordres til å sette seg inn i tilgjengelig offentlig informasjon om prosjektet. Informasjon om prosjektet finnes blant annet på Statnett sine nettsider. Anleggsarbeidet på Lysejordet er nærmere beskrevet på side 6 flg. i vedtaket fra Energidepartementet som i sin helhet kan leses her.
På Huseby skal det bygges et stort og topp moderne vannbehandlingsanlegg. Fjellhallene til anlegget skal sprenges, og dette er planlagt å skje fra 2./3. kvartal 2021 til 4. kvartal 2023/1. kvartal 2024. Det etableres en adkomsttunnel ved Husebybakken Skipark bak Smestad gjenbruksstasjon. Her er det riggområde, og det transporteres masser og annet utstyr og materiell i byggeperioden. Den eneste synlige installasjonen i selve Husebyskogen blir et luftetårn for anlegget under bakken. Mellom Sollerudstranda og Huseby bygges det en tunnel som skal lede overskuddsvann fra vannbehandlingsanlegget ut i fjorden når anlegget er i drift. Alle arbeid er estimert ferdig i 2028. Se Oslo kommunes hjemmeside eller konferer megler for nærmere informasjon.
-----------------------------------------------------
Pågående plansaker:
Småhusplanen
Revisjon av reguleringsplan for småhusområder i Oslos ytre by (småhusplanen - reguleringsplan S-4220). Saksnummer: 202102096. Fortsetter i sak: 202300230 - Midlertidig forbud mot tiltak. Saksnummer: 202304720: Plan- og bygningsetaten (PBE) har siden februar 2021 jobbet med en revisjon av småhusplanen. De viktigste endringene er blant annet at en mindre andel av tomtene kan utnyttes til bebyggelse når de skal utvikles, og at det innføres en minstestørrelse for tomter per boenhet som skal bygges. Trær, terreng og vegetasjon skal ivaretas bedre enn i dag. 26. september 2023 vedtok Byrådsavdelingen for byutvikling den nye småhusplanen. Det er kommet innsigelser på reguleringsvedtaket fra Statsforvalteren og NVE, som nå er til forhandling. Endelig vedtak for småhusplanen er enda ikke stadfestet. Se kommunen og PBE sine nettsider for mer informasjon: (https://www.oslo.kommune.no/slik-bygger-vi-oslo/revisjon-av-smahusplanen/)
Lilleakerbyen:
Planforslag til politisk behandling - Transformasjon av området. Saksnummer: 201804032. Planforslaget tilrettelegger for en transformasjon av Lilleaker/Lysaker fra et monofunksjonelt område med kontor og kjøpesenter til et flerfunksjonelt område med bolig, park, torg, forretning, bevertning og kontor. Planforslaget innebærer bl.a. høyhus, bevaring av noe eksisterende bebyggelse og en breddeutvidelse av Lilleakerveien. Med unntak av Lilleakerveien vil gatene nærmest Lysaker kollektivknutepunkt opparbeides som gatetun tilrettelagt for myke trafikanter. PBE fremmer et alternativt planforslag. Rådet for byarkitektur har bedt om at saken skal fremmes for at de skal kunne gi en vurdering. Se https://www.lilleakerbyen.no/plansaken/ for mer info.
Saksnr: 202005592
Saken gjelder: Aslakveien 14
Sakstype: Detaljregulering
Beskrivelse: JM Norge AS foreslår å omregulere Aslakveien 14 fra industri til boliger. Hensikten med reguleringsplanen er å erstatte dagens næringsbebyggelse med ny bebyggelse, hovedsakelig boliger. Langs Aslakveien legges det til rette for offentlig eller privat tjenesteyting og/eller håndverksvirksomhet i 1. etasje og underetasje. Planen sikrer et grøntbelte langs Mærradalen mot nord og øst, og grøntrabatt og gangvei langs aslakveien. Foreslått tillatt bruksareal er 19 100 m2, i en bebyggelse på 5-7 etasjer.
Plan- og bygningsetaten anbefaler ikke planforslaget. Vi mener at høydene og utnyttelsen må nedjusteres og tilpasses området og terrenget bedre, og at omsorgsboliger med tilhørende kvaliteter ikke er sikret godt nok.
For mer informasjon: https://innsyn.pbe.oslo.kommune.no/saksinnsyn/casedet.asp?caseno=202005592
Saksnr: 202015613
Saken gjelder: Sørkedalsveien 150 A med flere
Sakstype: Detaljregulering
Beskrivelse: Hensikten med planen er å:Videreføre bruk av Sørkedalsveien 150 («FO-Bygget») til kontor, skole, barnehage, offentlig og privat tjenesteyting, legge til rette for utbygging av boliger, ivareta eksisterende grønnkvaliteter, kulturminner, og naturverdier, sikre bedret tilgjengelighet til omkringliggende friområder i Husebyskogen og Mærradalen,
sikre ny adkomstløsning og torg tilknyttet FO-bygget. For mer informasjon: https://innsyn.pbe.oslo.kommune.no/saksinnsyn/casedet.asp?caseno=202015613
Saksnr: 202007578
Saken gjelder: Silurveien 41
Sakstype: Detaljregulering Beskrivelse: Silurveien Utvikling AS foreslår å omregulere Silurveien 41 fra bolig med friområde til bolig. De ønsker å rive rekkehusene i Silurveien 41 og oppføre seks blokker på 7-8 etasjer med totalt 150 leiligheter. For mer informasjon: https://innsyn.pbe.oslo.kommune.no/saksinnsyn/casedet.asp?caseno=202007578
Pågående byggesaker:
Vækerøveien 128 E - Tilbygg, bruksendring og fasadeendring
Saksnummer: 202313948 - Byggesak
Mottatt sak: 20.09.2023
Status: Tillatelse gitt 21.01.2024.
Frits Kiærs vei 11 A - Oppføring av to eneboliger med felles parkeringskjeller, riving av garasje og småbebyggelse, flytting av avkjørsel og endring av eksisterende hus fra tomannsbolig til enebolig samt oppføring av underjordisk heis
Saksnummer: 202306029 - Byggesak
Mottatt sak: 11.04.2023
Status: Igangsettingstillatelse gitt
Oslo er under stor utvikling og byggeprosjekter/ utvikling i nærområdet må påregnes. For informasjon om eventuelle arbeider i nærliggende områder anbefaler vi et søk på plan og bygg sin saksinnsyn portal: https://www.oslo.kommune.no/plan-bygg-og-eiendom/
Beskrivelse av sameiet
Sameiet planlegges bestående av 6 enheter.
Se prospekt for utkast til vedtekter.
Bebyggelsen og tomten ligger i sameie mellom eierne av de seksjoner som bebyggelsen og tomten er oppdelt i. Seksjonene kan ikke skilles fra deltakerinteressen i sameiet. For hver seksjon er det fastsatt en sameiebrøk som uttrykker sameieandelens størrelse. Sameiet består av 6 boligseksjoner, som hver utgjør 1/6 andel i sameiet.
En sameier eier en andel i eiendommen, med tilknyttet enerett til bruk av sin bruksenhet, jf. eierseksjonsloven § 25.
Ingen kan erverve mer enn to boligseksjoner i et sameie, jf. eierseksjonsloven § 23 første ledd. Dersom et erverv har funnet sted i strid med eierseksjonslovens regler kan Kartverket nekte overskjøting.
Dersom overskjøting blir nektet, er kjøper likevel forpliktet til å gjennomføre handelen med selger, og oppgjør til selger vil finne sted tross manglende overskjøting.
Interessenter oppfordres til å sette seg inn i sameiets vedtekter, husordensregler, regnskap, budsjett, årsberetning m.m. Se særlig om vedtekter og husordensregler knyttet til husdyrhold, dugnader, trappevask o.l.
Andre faste løpende kostnader
Det legges ikke opp til felleskostnader i utgangspunktet. Seksjonseierne skal så langt som praktisk mulig betale de utgifter som relaterer seg til egen seksjon, slik som strøm, offentlige avgifter, forsikring mm.
Kostnader med eiendommen som ikke knytter seg til den enkelte bruksenhet, er felleskostnader. Felleskostnader skal fordeles mellom seksjonseierne etter sameiebrøken. Dersom særlige grunner taler for det, kan kostnadene fordeles etter nytten for den enkelte bruksenhet eller etter forbruk. Utgifter som relaterer seg til fellesarealene slik som felles forsikring, snørydding, gartner, vedlikehold og utbedring av felles utearealer skal betales etter sameiebrøk.
Andre felleskostnader er opp til sameiet og vil bli avklart på sameiermøte når samtlige seksjoner er solgt. Dersom det blir prosjektert pumpekum og andre, felles tekniske installasjoner til eiendommen vil disse bli koblet til felles måler. Kostander forbundet med drift og vedlikehold av disse bli delt likt på alle enhetene, som utgangspunkt.
Strømforbruk er ikke estimert ettersom boligene ikke er ferdigstilt og tatt i bruk.
Kommunale avgifter vil tilkomme men er ikke fastsatt ettersom boligene ikke er tatt i bruk.
Eiendomsskatt: Det er eiendomsskatt i Oslo kommune. Eiendomsskatten utgjør 3 promille av beregningsgrunnlaget og bunnfradraget er på inntil 4,6 millioner. Det gjøres spesielt oppmerksom på at beregningsgrunnlaget vil være høyere for boliger som benyttes som sekundærbolig. For å finne beregningsgrunnlaget vennligst se Oslo kommunes hjemmeside: http://www.oslo.kommune.no/ skatt-og-naring/skatt-og avgift/eiendomsskatt/eiendomsskatt/]
Andel fellesgjeld / formue
Andel fellesgjeld kr. 0,- / Andel fellesformue kr. 0,- pr ifølge forretningsfører.
Andel fellesgjeld og evt. formue overtas av kjøper.
Oppgjør
Betalingsplan og forskudd:
10 % av kjøpesummen for boligen skal innbetales ifb. med kontraktsinngåelse etter påkrav med syv dagers betalingsfrist så snart selger har stilt garanti iht. buofl. § 12. For profesjonelle kjøpere utgjør beløpet 20 % av kjøpesummen og evt. garasje. Innbetalingen må være fri egenkapital. Beløpet blir stående på meglers klientkonto frem til overskjøting, med mindre selger stiller garanti etter buofl. § 47. Selger står fritt til å fakturere tilvalg fortløpende i takt med utførelsen på byggeplass, såfremt garanti i henhold til bustadoppføringslova § 47 er stilt. Det kan bli aktuelt hvis det gjøres tilvalg av et visst omfang. Beløpet innbetales til megler.
Frem til garanti etter buofl. § 47 stilles, anses beløpet som et depositum iht. buofl. § 46 (2). Ved utstedelse av forskuddsgaranti utbetales beløpet av megler til selger mot dokumentasjon av garanti. Renter på klientkonto tilfaller kjøper frem til garanti etter § 47 er stilt, eller seksjonen er overskjøtet, forutsatt at de overstiger en ½ R. Resterende del av kjøpesummen, tilvalg/endringer og kjøpsomkostninger innbetales til megler senest 3 virkedager før overtagelsen. Selger forbeholder seg retten til å stille § 47-garanti også for sluttoppgjøret, altså i perioden fra overtakelse til tinglysing av skjøtet/den formelle hjemmelsovergangen.
Forsinkes betalingen med mer enn 30 dager, har selger rett til å heve kjøpet og foreta et dekningssalg. Selger vil holde kjøper ansvarlig for selgers eventuelle økonomiske tap som følge av kjøpers mislighold. Selger har rett til dekning av sitt tilgodehavende i kjøpers eventuelle innbetalinger, herunder også for renter og andre omkostninger som påløper på grunn av kjøpers mislighold.
Finansiering
Kontakt megler for avklaring av finansielle forhold, herunder lån til kjøp av eiendom. Privatmegleren har avtale med Nordea om formidling av lån og andre finansielle tjenester. Privatmegleren mottar godtgjørelse for dette.
Spesifikasjon av lån
Ingen lån er registrert på sameiet.
Adgang til utleie
Eiendommen kan fritt leies ut til boligformål.
Det vil normalt være anledning til utleie av hele eiendommen eller enkeltrom, så fremt arealet er godkjent for varig opphold iht. plan- og bygningsloven og har forsvarlig radonnivå.
Konsesjon / Odel
Det er ikke krav til konsesjon ved erverv av eiendommen. Det hefter ikke odel på eiendommen.
Sikkerhetsstillelse
Alle eiendomsmeglingsforetak har lovpålagt forsikring av klientmidler begrenset oppad til kr 45 mill. Enkeltsaker er forsikret inntil kr 15 mill. Dersom kjøpers låneinstitusjon krever tilleggsforsikring ved omsetning over 15 millioner, må kjøper selv eller dennes låneinstitusjon dekke utgiftene forbundet med dette.
Planlagt overtagelse
Forventet ferdigstillelse av prosjektet er Q4 2026 gitt oppstart ca. Q3/Q4 2025, men dette tidspunktet er foreløpig og ikke bindende og utløser ikke dagmulkt. Ved raskere byggetid enn forventet kan overtagelse også skje tidligere.
Selger skal senest 14 dager etter at forbeholdene er frafalt angi en overtakelsesperiode på 3-4 måneder som ikke er dagmulktsutløsende. Selger vil også ha krav på fristtillegg dersom vilkårene i buofl. §11 er oppfylt.
Senest to uker før ferdigstillelse av boligen skal selger gi kjøper skriftlig melding om endelig overtakelsesdato. Den endelige datoen er bindende og dagmulktsutløsende.
Selgers forbehold
Det tas forbehold om:
Salg av minimum tre enheter i prosjektet før igangsettelse.
Tilfredsstillende finansiering av prosjektet.
Inngåelse av endelig kontrakt med entreprenør samt innvilget igangsettingstillatelse.
Tekniske forskrifter av 2017 gjelder for utførelsen. Generelt leveres boligen med tolleranseklasser iht NS-3420 med normalkrav for anliggende bygningsdeler.
Alle innvendige og utvendige arealangivelser er beregnet av arkitekt og er beregnet etter Veileder NS3940:2023.
Bygningsmaterialer påvirkes av fuktighet og uttørking. Det kan oppstå sprekker på grunn av bevegelse i materialene uten at dette medfører rett til reklamasjon. Beskrevet oppbygning av konstruksjonene angir kun et generelt konstruksjonsprinsipp. Dette kan avvike avhengig av hvilken entreprenør eller husfabrikant som velges. Norske forskriftskrav gjelder.
Det tas forbehold om endringer med tilsvarende kvalitet. Stiplet linje på plantegninger viser forslag til løsninger og innredning som ikke inngår i leveransen. Garderober medfølger ikke i standardleveranse, selv om dette kan være illustrert.
Ved tegning av eget kjøkken må kjøkkenleveransen inneholde vifte og kjøkkenvask. Det kan være begrensninger ved plassering av tekniske punkter ved omtegning av kjøkken. Ved uttrekk av kjøkken gjelder 70% av avtalt verdi i leveransebeskrivelsen.
Selger gjør særskilt oppmerksom på at skjeggkre er funnet i flere boliger i Norge. Skjeggkre kan komme inn i boliger på en rekke forskjellige måter, både i forbindelse med oppføring av boligen, men også i forbindelse med innredning, bruk mv. Det er ikke et funksjonskrav under denne kjøpekontrakten at boligen skal være oppført på et vis som fjerner risikoen for forekomst av skjeggkre i boligen samt fellesarealer.
Boligen overleveres byggrengjort. En byggvask er ikke en fullverdig rengjøring og øvrig vask av overflater må utføres av kjøper. Det må påregnes bygge- og /svevestøv i en god periode etter overlevering
Terrenglinjer på tegninger er kun illustrerende og derfor ikke retningsgivende.
Tegninger i kjøpsprospekt er nedkopiert og ikke måleriktige. Arealer på tegninger (selv om disse er angitt med desimaler) er omtrentlig angitt og arealavvik kan forekomme. Skisser og illustrasjoner i salgsmateriell og annonser kan vise ting som avviker fra leveransen. Ved avvik gjelder denne leveransebeskrivelse.
Dataanimerte illustrasjoner er kun ment som en illustrasjon. Leveransen kan avvike fra dette både når det gjelder detaljer, materialvalg og farger. Illustrasjonene viser forslag til platting og pergola som ikke leveres, men kan velges I forbindelse med tilvalgsprosessen.
Plantegninger viser ikke alle sjakter og tekniske installasjoner, herunder bla soilrør, ventilasjon og varmtvannsbereder. Dette vil bli plassert på egnede steder etter entreprenørens vurdering. Det kan forekomme innkassingersom ikke er merket på tegning. Redusert areal på bakgrunn av dette må forventes.
På salgstidspunktet er ikke alle forhold avklart. Det gjøres derfor oppmerksom på at alle opplysninger er gitt med forbehold om rett til endringer som er hensiktsmessige eller nødvendige, eksempelvis på grunn av offentlige krav og godkjenninger.
Byggebeskrivelsen/leveransebeskrivelsen skal angi hvilken teknisk standard prosjektet leveres med, samt foreløpig angi hva komplett leveranse etter kjøpekontrakten innebærer. Dersom det ikke er tatt inn spesifiserte bestemmelser i kjøpekontrakten, gjelder følgende krav: De tekniske løsninger skal tilfredsstille plan-og bygningslovgivningen, herunder kravene i teknisk forskrift av 2017. Det gjøres oppmerksom på at endelig detaljprosjektering ikke er avsluttet. Detaljprosjektering av byggets bæresystem, ventilasjons-sjakter, rørføringer med mer kan medføre mindre endringer i plassering og størrelser på vinduer. Det samme gjelder kjøkken og bad som vil kunne få endringer når det gjelder plassering av installasjoner som følge av tilpasning mot sjakter. Endelig utforming av tekniske sjakter må avvente detaljprosjekteringen, og det kan derfor forekomme endringer av lengde og/eller bredde på disse.
Mindre avvik kan forekomme i boligens areal grunnet endring i bærekonstruksjon, sjakter etc. Forutsatt at dette ikke fører til vesentlige endringer av leveransen, vil dette ikke medføre grunnlag for prisreduksjon eller prisavslag. Installasjoner på kjøkken og bad kan få endret plassering som følge av tilpasning mot sjakter. Selger har rett til å foreta endringer som nevnt ovenfor, men vil alltid tilstrebe at endringer utføres på en slik måte at boligens generelle bruksverdi og standard ikke påvirkes vesentlig. Slike endringer gir ikke rett til prisjusteringer fra noen av partene og kan foretas uten forhåndsvarsel til kjøperne. Om det blir nødvendig å gjennomføre vesentlige endringer ut over forannevnte bestemmelser, plikter selger å varsle kjøper om endringene uten ugrunnet opphold.
Det tas forbehold om at illustrasjoner i tegninger, 3D, og i annonsen er kun ment som eksempler og kan vise forhold som ikke er i samsvar med leveranse. Dette kan være møblering, fargevalg, dør- og vindusform, antall vinduer, bygningsmessige detaljer, for eksempel fasadedetaljer, manglende inntegning av sjakter/ innkassinger/ rør-føringer/dragere/søyler, detaljer på fellesarealer, detaljer på leke-apparater, materialvalg, beplantning etc.
Forkjøpsrett
Nei.
Solgt ihht bustadoppføringsloven
Boligene selges i henhold til Bustadoppføringslova som regulerer kjøpers (forbrukers) rettigheter og plikter ved avtale om oppføring av bolig og kjøp av fast eiendom der bygningen ikke er fullført når avtalen inngås. Ved salg til aksjeselskap legges Avhendingslovens bestemmelser til grunn. For øvrig gjelder Lov om eierseksjoner for eierseksjonssameiet og driften av dette.
Garantier
Det stilles garantier i henhold til Bustadoppføringslovas bestemmelser. Garanti etter § 12 vil bli stilt i forbindelse med avtaleinngåelse. Garantien skal være pålydende 3% av kjøpesummen i byggetiden og 5% i 5 år etter overlevering av boligene til kjøper. Garanti etter § 47 forutsettes stilt om selger ønsker utbetalt forskudd/delinnbetaling/sluttoppgjør før hjemmelsovergang. Eventuelle påkrevde endringer av garantier ved eventuelle videresalg/transporter utføres ikke og bekostes ikke av selger.
Forsikring
Frem til overtagelse vil eiendommen være forsikret av selger. Etter overtagelse vil eiendommen forsikres gjennom sameiets fellesforsikring. Kjøper må selv besørge innboforsikring og forsikring av eventuelle særskilte påkostninger.
Budgiving
Boligene selges til fastpris.
Alle bud/kjøpetilbud på eiendommen skal være skriftlig og sendes meglerforetaket pr. fax, mail, sms eller via vår "gi bud"-knapp på våre nettsider. Knappen finner du også på Privatmeglerens hjemmeside for prosjektet, se på den enkelte bolig.
Bud/kjøpetilbud må ikke ha kortere akseptfrist enn til kl. 12.00 første virkedag etter siste annonserte visning. Lørdag regnes ikke som virkedag. Bud/kjøpetilbud med kortere frist enn dette kan ikke formidles av megler. Nærmere info om budgiving finner du på egen side sammen med kjøpetilbud/budskjema.
Som budgiver hos Privatmegleren kan du kreve budjournal fremlagt så snart handel er gjennomført.
Innhold i budjournal er lovregulert, og innebærer at budgivere må akseptere at opplysninger om budet kan bli fremlagt for selger, kjøper og øvrige budgivere. Budgiver som ikke blir kjøper, kan kreve kopi av anonymisert budjournal.
Lov om hvitvasking
Megler er underlagt lov om hvitvasking som innebærer plikt til å melde ifra til Økokrim om mistenkelige transaksjoner
Meglers vederlag og utlegg
Provisjonen er avtalt til 0,8 % av endelig kjøpesum pr. enhet.
I tillegg til provisjonen tilkommer:
Tilretteleggingkr 12.500,- pr enhet.
Oppgjørsgebyr kr 9900,- pr enhet.
Visninger kr 2500,- pr visning på tomt og på huset hvis det selges ferdigstilt
Markedspakke kr 24.900,- (gjelder for prosjektet). Vil påløpe kostander tilknyttet finn annonse basert på liggetid på finn.
Innhenting av informasjon Kr. 6000,- (gjelder for prosjektet).
Innhenting av grunnbok/servitutter kr. 1150,- pr stk.
NB! Ved delinnbetalinger påløper kr 500 pr. delinnbetaling i oppgjørskostnad
+ avtalte utlegg. Markedsføring ihht egen avtale.
Megler har rett til vederlag i samsvar med lov om eiendomsmegling kapittel 7. Ved avtale om timepris vil vederlaget være etter medgått tid. Ved avtalt provisjonsvederlag betaler oppdragsgiver et rimelig honorar, stort kr 9 900 I tillegg betaler oppdragsgiver i begge tilfeller utlegg og ev. tillegg i.h.t denne avtale.
Nyttige lenker
Nærområdet

PrivatMegleren Dyve & Partnere
Annonseinformasjon
| FINN-kode | 423064894 |
|---|---|
| Sist endret | 19. jan. 2026 10:44 |
| Referanse | 159250614 |
Annonsene kan være mangelfulle i forhold til lovpålagt opplysningsplikt. Før bindende avtale inngås oppfordres interessenter til å innhente komplett informasjon fra meglerforetaket, selger eller utleier.