Bildegalleri
I02.jpg
SKUIHOLTET
Jarenlia 95 (Bolignr. I-02)
Prisantydning7 990 000 kr
Prosjektets status
Planlegging
.
Salgsstart
.
Byggestart
.
Overtakelse
Ferdigstillt
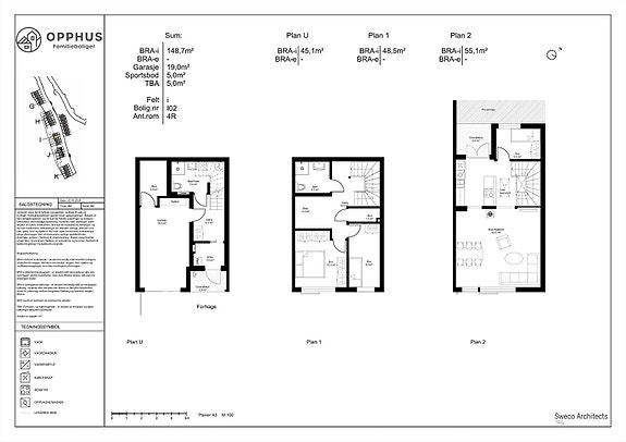
Nøkkelinfo
- Boligtype
- Rekkehus
- Soverom
- 3
- Rom
- 4
- Internt bruksareal
- 148 m² (BRA-i)
- Bruksareal
- 148 m²
- Balkong/Terrasse
- 5 m² (TBA)
Fasiliteter
Balkong/Terrasse
Bredbåndstilknytning
Garasje/P-plass
Kabel-TV
Peis/Ildsted
Utsikt
Turterreng
Visning
Velkommen til visning! Meld deg på ved å trykke "visningspåmelding". Visning vil ikke bli avholdt uten påmeldinger. Ta gjerne kontakt med megler i forkant av visningen om du har spørsmål.
VisningspåmeldingBeskrivelse
Ansvarlig megler
Bente Stubberud
NB: Knappen for å vise hele beskrivelsen har kun en visuell effekt.
NB: Knappen for å vise hele beskrivelsen har kun en visuell effekt.
Nærområdet
DNB Eiendom AS
Fra hjem til hjem
Annonseinformasjon
| FINN-kode | 422918069 |
|---|---|
| Sist endret | 01. des. 2025 14:20 |
| Referanse | 912240164 |
Annonsene kan være mangelfulle i forhold til lovpålagt opplysningsplikt. Før bindende avtale inngås oppfordres interessenter til å innhente komplett informasjon fra meglerforetaket, selger eller utleier.