Bildegalleri
M-01
Nye og moderne familieboliger i barnevennlige Ås | Fantastiske uteplasser ove...
Prosjekt Dyst
Prosjektets status
Planlegging
-
Salgsstart
-
Byggestart
-
Overtakelse
-
Nøkkelinfo
- Boligtype
- Rekkehus
- Soverom
- 3
- Rom
- 5
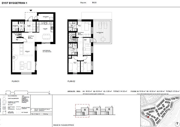
- Internt bruksareal
- 141 m² (BRA-i)
- Bruksareal
- 141 m²
Visning
Beskrivelse
Eier
Ås Boligutvikling AS v. Erik Forseth Helgesen
Betegnelse
Gnr. 55 Bnr. 543 Snr. 70 i Ås kommune
Byggeår
Boligene ble oppført i 2023/2024.
Boligene er ikke tatt i bruk.
Arealer og fordeling per etasje
BRA: Fra 74-185 kvm. Se prisliste for areal per bolig. Arealene er iht. tegninger fra arkitekt og ikke kontrollmålt.
Avvik kan forekomme fra tegning til faktisk leveranse som eksempelvis plassering av peis.
Om prosjektet
På Dyst i Ås får du det beste fra to verdener: et fredelig, grønt bomiljø og kort reisetid til Oslo. Prosjektet er utviklet av Solon og tegnet av prisbelønte A-lab arkitekter, med fokus på moderne bokomfort, gode uteplasser og trygge omgivelser for hele familien.
Prosjektet byr på rekkehus og leiligheter fra 74 til 180 kvm., med svært varierte planløsninger tilpasset både mindre husholdninger og større familier. De lyse oppholdsrommene, private uteplassene og fleksible romløsningene gjør at hjemmene passer ulike behov og livsfaser. Fra stuen har du direkte utgang til markterrasse og hage, mens enkelte boliger også har store, solrike takterrasser. Variasjonen i arkitekturen gir prosjektet et levende og innbydende preg.
Beliggenhet
Dyst ligger i et nyere boligområde rundt 2 km fra Ås sentrum, omgitt av småhusbebyggelse og eneboliger. Her finner du et trygt og sosialt bomiljø med kort vei til marka, flere lekeplasser og fotballbaner. Gang- og sykkelavstand til barnehager, grunnskoler og videregående skole gjør området praktisk for familier i alle livsfaser. I nærområdet ligger blant annet Dysterlia, Rustadporten og Rustadskogen barnehager. Boligene tilhører Rustad skolekrets, der Rustad skole åpnet nye lokaler i 2019. Skolen ligger rundt 3 km unna, mens Ås ungdomsskole ligger ca. 2,9 km fra boligene.
Ås sentrum har et variert servicetilbud med dagligvarebutikker, kafeer, restauranter, apotek, frisør, Vinmonopol og kjøpesenteret Ås Kvartal. Togstasjonen og gode bussforbindelser gir enkel tilgang til Ski, Oslo og Moss, med Follobanen som tar deg til Oslo S på ca. 19 minutter. Med bil tar det omtrent 15 minutter til Ski Storsenter, 20 minutter til Vinterbro og Drøbak, og 35 minutter til Oslo.
Området byr på et bredt spekter av fritidsmuligheter: fotballstadion med innendørshall, skøytebane, idrettshall, treningssentre, svømmehall, tennisbaner, sandvolleyball, ridesenter og flere lekeplasser. Fornøyelsesparken Tusenfryd ligger kun et kvarter unna med bil. Årungen-området har fine turstier, og om vinteren prepareres skiløyper i jordene rundt sentrum. I lysløypa finner du en speiderhytte som serverer vafler på søndager - en lokal tradisjon mange setter pris på.
Midt i Ås ligger Norges miljø- og biovitenskapelige universitet med en imponerende park på 600 dekar, åpen for alle. Her finner du en stor samling busker, trær og blomsterarter, idylliske dammer og flotte grøntområder som inviterer til både hverdagsmosjon og søndagsturer.
Byggemåte
Leveransen er utført i henhold til gjeldende forskrifter, Teknisk forskrift TEK17 og NEK 400:2018.
Bygningene er utført med bærekonstruksjon i tre og stål (enkelte ståldragere). Fasader utført med enten i liggende trekledning eller i stående trekledning i ulike farger (fabrikkgrunnet + ett strøk, med synlig spiker). Enkelte boliger er utført enten i ulik type tegl eller platekledning i metall, i ulike farger. På terrasser/ balkonger/markterrasser utenfor hus er det lagt impregnert tremmegulv. På de boligene hvor det leveres takterrasse er det rekkverk som sort metallrekkverk i spiler. Innvendige vegger utført med stenderverk, kledd med gipsplater. Mineralull i vegger mot våtrom, øvrige innervegger er ikke isolert. Overgangen mellom vegger, samt vegger og tak/himling kan over tid få synlige riss/sprekker. Svinn- og setningssprekker, samt sprekker som er en følge av naturlig krymping i og mellom materialer, er noe som ikke utbedres. Svanker og knirk i gulv må også påregnes da parkett er et levende materiale, og utbedres derfor ikke.
Eiendommens tilstand:
Boligene er ferdigstilte. Boligene er ubebodd. Det er ikke foretatt tilstandsrapport.
Boligene holder en god standard og fremstår som lyse og tidsriktige med moderne materialvalg. Kjøkkeninnredning og baderomsinnredninger fra HTH. Entré har flislagte gulv, bad har flislagte gulv og vegger. Øvrige rom har 1-stavs eikeparkett i natur eik. Veggene er malt i delikate farger.
Utstyr
Det medfølger 1 stk. sportsbod ved inngangsparti til hver bolig.
Oppvarming
Det leveres moderne peisovn i 1. etasje i alle boliger, med sort stålpipe. Boligen vil for øvrig være elektrisk oppvarmet med panelovner og/eller gulvvarme, samt elektriske varmekabler i baderom, entré og evt. WC og vaskerom.
Parkering / Garasje
Det medfølger 1 parkeringsplass til hver bolig i felles parkeringskjeller. Det er gjesteparkeringsplasser i felles p-kjeller. Rett til p-plass er sikret ved vedtektsfestet bruksrett, jfr vedtektenes pkt 4-1. Bruksrett til p-plass følger boligseksjonene ved salg.
Adkomst
Se vedlagt kartskisse på høyre side i annonsen. Ved å trykke på kartet får du enkelt tilgang til en spesifisert reiserute fra din startdestinasjon til boligen. På visningsdagen vil det bli skiltet med visningsskilter fra PrivatMegleren. Velkommen til visning!
Beskrivelse av tomt
Sameiet har felles eiet tomt på 23 374 kvm som består av fellesområder som internveier, støttemurer, lekeplasser m.m. Hver bolig er seksjonert med et privat uteareal/terrasse og bod som tilleggsareal til boligen.
Tinglyste rettigheter og forpliktelser
Kommunen har legalpant som sikkerhet for betaling av kommunale avgifter. Legalpant er pant som følger av loven, og som ikke tinglyses. Legalpant følger derfor eiendommen ved salg. På eiendommen kan det være tinglyst erklæringer som f. eks. rett for kommunen til å vedlikeholde rørsystemer for vann- og kloakk. Disse erklæringene vil følge eiendommen ved salg. Kontakt megler for nærmere informasjon.
Øvrige sameiere har panterett i seksjonen for krav mot sameieren som følge av sameieforholdet, jf. eierseksjonsloven § 31. Pantekravet kan ikke overstige 2G (Folketrygdens grunnbeløp). Sameiet kan vedtektsfeste ytterligere panterett for sameiet. Vedtektsfestet pant tinglyses i seksjonene.
Servitutter / rettigheter
Eiendommen overdras fri for pengeheftelser, med unntak av eventuelle erklæringer, avtaler, servitutter og panteheftelser som fremgår av salgsoppgaven og skal følge med eiendommen ved salg. Kjøpers bank vil få prioritet etter disse.
Seksjonene overdras med de rettigheter og forpliktelser som grunnboken viser. Grunnboksutskrift følger som vedlegg til denne salgsoppgave og er før seksjonering av eiendommen. Seksjonene vil være fri for rene økonomiske heftelser med unntak av lovpålagt panterett til sameiet som sikkerhet for oppfyllelse av den enkelte sameiers fellesforpliktelser. Selger kan også tinglyse bestemmelser som er nødvendige for å gjennomføre prosjektet, pålagt av offentlige myndigheter eller bestemmelser knyttet til sameiet eller naboforhold. For i det tilfellet at nødvendige erklæringer ikke er tinglyst før overtagelse, plikter kjøper å medvirke til tinglysning av slike erklæringer. Kontakt megler for nærmere informasjon.
Vei / Vann / Avløp
Offentlig. Eiendommen er tilknyttet offentlig vann- og avløpsnett via private stikk- og fellesledninger. Vi gjør oppmerksom på at private ledninger vedlikeholdes for eiers regning.
Ferdigattest eller midl. brukstillatelse
Det foreligger midlertidig brukstillatelser på eiendommene datert 30.10.2023.
Før det kan søkes om ferdigattest må følgende være fullført/sikret:
- Parkeringskjeller, datert: 31.05.2024.
Følgende arbeid gjenstår før det kan søkes om ferdigattest:
1. Trimrom og sykkelverksted, som utgjør en liten del av kjellerarealet. Dette er fullført og overlevert til sameiet.
- Rekkehus E, datert: 30.10.2023
Følgende arbeid gjenstår før det kan søkes om ferdigattest:
1. Ferdigstillelse av uteanlegg og parkeringskjeller.
Dette er fullført og overlevert til sameiet..
- Rekkehus I, datert: 22.12.2023
- Rekkehus L, datert: 22.12.2023
Følgende arbeid gjenstår før det kan søkes om ferdigattest:
1. Ferdigstilling av det siste kledning på fasader. (arbeid fullført)
2. Resterende deler av tiltaket hvor det ikke søkes om midlertidig
brukstillatelse og ferdigstillelse av uteanlegg og parkeringskjeller. (arbeid fullført)
Dette arbeid må være fullført innen 28.06.2024.
- Rekkehus D, datert: 03.06.2024
- Rekkehus V, datert: 03.06.2024
- Rekkehus X, datert: 03.06.2024
Følgende arbeid gjenstår før det kan søkes om ferdigattest:
1. Resterende deler av tiltaket hvor det ikke søkes om midlertidig
brukstillatelse og ferdigstillelse. (arbeid fullført)
Dette arbeid må være fullført innen 15.11.2024
- Rekkehus R, datert: 24.07.2024
- Rekkehus C, datert: 04.09.2024
- Rekkehus T, datert 04.09.2024
- Rekkehus B, datert: 18.10.2024
- Rekkehus N, datert: 08.11.2024
Følgende arbeid gjenstår før det kan søkes om ferdigattest:
1. Resterende deler av tiltaket hvor det ikke søkes om midlertidig
brukstillatelse og ferdigstillelse. (arbeid fullført)
Dette arbeid må være fullført innen 29.11.2024
- Rekkehus Z, datert: 03.12.2024
Følgende arbeid gjenstår før det kan søkes om ferdigattest:
1. Resterende deler av tiltaket hvor det ikke søkes om midlertidig brukstillatelse og ferdigstillelse. (arbeid fullført)
Dette arbeid må være fullført innen 31.12.2024
- Rekkehus A, datert: 27.12.2024
- Rekkehus M, datert 27.12.2024
- Rekkehus S, datert 27.12.2024
Følgende arbeid gjenstår før det kan søkes om ferdigattest:
1. Oppfyllelse av samtlige rekkefølgekrav i henhold til gjeldende
reguleringsbestemmelser i R-327. (Er under arbeid).
Dette arbeid må være fullført innen 30.04.2025
Det er utbyggers ansvar å fremskaffe ferdigattest på boligene. Kjøper er gjort oppmerksom på at slik ferdigattest ofte foreligger en tid etter overtagelse og avhenger av blant annet årstid for opparbeidelse av utomhusareal. Midlertidig brukstillatelse gir imidlertid kjøper anledning til å ta boligen i bruk. Manglende ferdigattest ikke er årsak for tilbakehold ved overtakelse.
Verdi ved skattefastsetting
Formuesverdi er p.t. ikke fastsatt. Formuesverdien fastsettes etter ferdigstillelse i forbindelse med første skatteoppgjør. Formuesverdien for primærboliger (der boligeier er folkeregistrert bosatt) utgjør 25% av den beregnede kvadratmeterprisen multiplisert med boligens areal, opp til 10 millioner, og deretter 70% av det som overstiger 10 millioner. Formuesverdien for sekundærboliger (alle andre boliger du måtte eie) utgjør 100% av den beregnede kvadratmeterprisen multiplisert med boligens areal. Les mer på skatteetaten.no
Reguleringsforhold
Eiendommen (felt B2) er regulert til bebyggelse og anlegg (Boligbebyggelse) i Områdeplan for Dyster Eldor II, vedtatt i Kommunestyret i Ås kommune 21.06.2017. I områdeplanen er det stilt krav om detaljregulering. Detaljregulering av eiendommen (Dyster Eldor II, felt B2) ble vedtatt av Ås kommunestyre 10.02.2021. Vedtaksdokumentene for sak 8/21 ligger på Ås kommune sin hjemmeside: www.as.kommune.no/horinger. Innenfor Områdeplan for Dyster Eldor II er det flere eiendommer som er regulert til bebyggelse og anlegg (konsentrert småhusbebyggelse, frittliggende boligbebyggelse og byggeområde for offentlig- eller privat tjenesteyting). Det er også regulert inn grønnstruktur (friområder, turstier) og samferdselsanlegg og teknisk infrastruktur (vei, gang- og sykkelvei, energianlegg). Interessenter oppfordres til å gjøre seg kjent med gjeldende områdeplan. Det stilles krav til detaljregulering for samtlige delfelt som er regulert til bebyggelse og anlegg.
Energimerking
Se prisliste for energimerking av hver enkelt rekkehus.
Beskrivelse av sameiet
Dyst Boligsameie består av 138 boligseksjoner, fordelt på 11 rekker på eiendommen gnr. 55, bnr 543 i Ås kommune, og reguleres av vedlagte vedtekter. Dyst har flere fellesrom som er tilgjengelige og åpne for alle beboere. I nærheten til parkeringskjelleren finner du et velutstyrt treningsrom, yogarom og et mekke- og prepperom for ski og sykkel.
Med mindre annet er opplyst må kjøper påregne felles plikter som dugnad etc. Megler oppfordrer alle til å sette seg inn i vedtekter og budsjett som ligger vedlagt salgsoppgaven.
Ingen kan direkte eller indirekte erverve mer en to boligseksjoner i et boligsameie jf. eierseksjonsloven § 23. Dersom et erverv har funnet sted i strid med eierseksjonslovens regler kan Kartverket nekte overskjøting. Dersom overskjøting blir nektet, er kjøper likevel forpliktet til å gjennomføre handelen med selger, og oppgjør til selger vil finne sted tross manglende overskjøting.
En sameier eier en andel i eiendommen, med tilknyttet enerett til bruk av sin bruksenhet, jf. eierseksjonsloven § 25.
Ingen kan erverve mer enn to boligseksjoner i et sameie, jf. eierseksjonsloven § 23 første ledd. Dersom et erverv har funnet sted i strid med eierseksjonslovens regler kan Kartverket nekte overskjøting.
Dersom overskjøting blir nektet, er kjøper likevel forpliktet til å gjennomføre handelen med selger, og oppgjør til selger vil finne sted tross manglende overskjøting.
Interessenter oppfordres til å sette seg inn i sameiets vedtekter, husordensregler, regnskap, budsjett, årsberetning m.m. Se særlig om vedtekter og husordensregler knyttet til husdyrhold, dugnader, trappevask o.l.
Forkjøpsrett for sameiere
Nei.
Andre faste løpende kostnader
Se prisliste for oversikt over felleskostnader for den enkelte enhet. Fellesutgiftene dekker bl.a. felles forsikring (ikke innbo), forretningsførsel, revisjon, styrehonorar, drift og vedlikehold av fellesarealer og internveier samt brøyting og strøing.
Styret ønsker å overlate diskusjonen og behovet for en større økning til årsmøtet neste år, men ser at vi er nødt til å øke felleskostnadene allerede fra 1.1 2026. Det er også behov for å opprette en buffer for sameiet for uforutsette kostnader, som vi ikke har per nå. OBOS anbefaler å ha 15.000kr per enhet i buffer, dette utgjør ca 2 millioner kr.
Endringen blir som følger:
+Felleskostnadene økes med 10% fra 1.1.
-Det faste beløpet på 350kr som alle betaler likt, reduseres med 100kr per måned for å reflektere kostnadene knyttet til utemiljø og gartner likt ned til 250kr.
Faktureres direkte fra kommunen:
Eiendomsskatt og kommunale avgifter faktureres direkte fra kommunen.
Andre faste utgifter:
Selger har ikke bebodd boligene og strøm er derfor ikke estimert.
Eiendomsskatt:
Ås kommune har eiendomsskatt. Det gjøres oppmerksom på at sats for eiendomsskatt blir fastsatt årlig av kommunen, og vil derfor kunne variere fra år til år. Det gjøres spesielt oppmerksom på at beregningsgrunnlaget vil være høyere for boliger som benyttes som sekundær bolig. For å finne beregningsgrunnlaget vennligst se Ås kommunes hjemmeside: https://www.as.kommune.no/cppage.6353097.html Eiendomsskatt for boligen er foreløpig ikke fastsatt.
Forsikring i , (polisenummer ). Kjøper må selv tegne innboforsikring.
Øvrige kostnader som forsikring, strøm, alarm osv. vil variere avhengig av antall familiemedlemmer i husstanden, ønsket innetemperatur, egne fordelsavtaler, kanalvalg, hastighet på bredbånd etc.
Endringer i lånevilkår, herunder renteendringer, vil kunne medføre at månedlige fellesutgifter endres. På samme måte vil vedlikeholdsarbeider og oppgradering av bygning kunne medføre økte fellesutgifter.
Andel fellesgjeld / formue
Andel fellesgjeld kr. 0,- / Andel fellesformue kr. 0,- pr ifølge forretningsfører.
Andel fellesgjeld og evt. formue overtas av kjøper.
Finansiering
Kontakt megler for avklaring av finansielle forhold, herunder lån til kjøp av eiendom. Privatmegleren har avtale med Nordea om formidling av lån og andre finansielle tjenester. Privatmegleren mottar godtgjørelse for dette.
Spesifikasjon av lån
Sameiet har p.t. ingen fellesgjeld.
Annen nyttig informasjon
Andre forhold:
Det gjøres oppmerksom på at selger ikke har bebodd eiendommen. Kjøper oppfordres til å foreta en grundig besiktigelse av eiendommen før bud gis.
Visningsbolig:
Boligene er oppført i 2023/2024 og ubebodd, men har blitt benyttet til visning. Herunder er/blir boligene stylet opp med møbler, bilder, hyller og lignende. Slitasje/hakk/riper/sår i overflater som følge av dette og visningsbruk kan av kjøper ikke påberopes som mangel verken ved overtagelse eller senere.
Tilbehør:
Det gjøres ellers oppmerksom på at boligens hvite- og brunevarer ikke medfølger handelen med mindre dette fremkommer av dette prospekt. Fastmontert og innebygget kjøkken- og baderomsinnredning følger boligen. Dersom det ikke er varmekilder i alle rom, fravikes NEFs normgivende liste over løsøre og tilbehør. Hvitevarer, som ikke er integrert i innredning, medfølger ikke i handelen.
Rengjøring:
Boligene leveres i ryddig og rengjort stand. Bodene leveres ryddet.
Sikkerhetsstillelse:
Alle eiendomsmeglerforetak har lovpålagt forsikring av klientmidler begrenset opptil kr 45 millioner. Enkeltsaker er forsikret inntil kr 15 millioner. Dersom kjøpers låneinstitusjon krever tilleggsforsikring ved omsetning over kr 15 millioner, må kjøper selv eller dennes låneinstitusjon dekke utgiftene forbundet med dette.
Annet:
Dersom ikke annet er opplyst/særskilt avtalt, gjelder Norges Eiendomsmeglerforbunds liste over løsøre og tilbehør som angir hva som bør følge med boliger og fritidsboliger ved salg. Særskilte avtaler om tilbehør må avtales før bindende avtale inngås, dvs før budaksept. Listen kan fås ved henvendelse til megler og vil være et vedlegg til kontrakten mellom partene. Egen innboforsikring må tegnes av kjøper. Det gjøres oppmerksom på at megler ikke har innhentet særskilte opplysninger om det finnes pålegg fra E verk eller brann-/feiervesen på eiendommen. Meglerkontoret er tilknyttet Reklamasjonsnemda for Eiendomsmeglingstjenester, og eventuelle tvister kan forelegges for nemndas behandling.
Forsikring:
Boligselgerforsikring er ikke tegnet av eier og egenerklæring er ikke fylt ut. Kjøper er kjent med sin undersøkelsesplikt i henhold til avhendingsloven § 3-10.
Kjøper har anledning til å tegne Boligkjøperforsikringspakke. Dette er en rettshjelpsforsikring som gir trygghet og profesjonell juridisk hjelp dersom det oppdages uventede feil eller mangler ved boligen det neste året, og kan deretter fornyes årlig etter avtale med forsikringsleverandør. Forsikringspakken inkluderer også innboforsikring, renteforsikring og husforsikring, dersom eiendommen ikke har en felles forsikring fra før. Boligkjøperforsikringspakken tegnes senest ved kontraktssignering. Kostnaden avhenger av boligtype, se leverandørens produktark for utfyllende informasjon. Kjøper er ansvarlig for å velge riktig boligtype og forsikringsdekning ved forsikringsbestilling - og utfylling av oppgjørsskjema. Les mer om Boligkjøperforsikringspakken i vedlagte materiell. Vi gjør oppmerksom på at meglerforetaket mottar godtgjørelse for formidling av forsikringen.
Forbehold:
Alle interessenter oppfordres til å sette seg inn i dokumenter som kan være interessante for handelen, slik som denne nøkkelinformasjonen, reguleringskart med bestemmelser, grunnboksutskrift og evt. servitutter / heftelser, husordensregler, regnskaper, budsjetter, innkalling og referat fra siste års sameiermøte etc. Disse dokumentene er vedlagt dette prospekt eller kan ses på meglers kontor.
Salgsoppgaven er basert på selgers opplysninger gitt til megler, samt opplysninger innhentet fra kommunen, forretningsfører og andre tilgjengelige kilder. Interessenter oppfordres til å undersøke eiendommen godt, gjerne sammen med sakkyndig, før bud inngis.
Det er ikke kontrollert om tomtegrenser stemmer med de grenser/gjerder/ beplantning som fysisk er satt. Det kan være avvik fra dagens rombruk/rombenevnelse i forhold til det opprinnelige byggemeldte/godkjente.
Meglers standard kjøpekontrakt legges til grunn for avtalen. Standardkontrakt kan fås ved henvendelse til meglers kontor.
Det forutsettes at kjøper gjør seg kjent med henviste dokumenter inkludert alle salgsoppgavens vedlegg før budgivning/kjøp.
Kjøpesum med tillegg av omkostninger skal være disponibelt på meglers klientkonto innen overtakelse.
Det gjøres oppmerksom på at megler ikke har innhentet særskilte opplysninger om det finnes pålegg fra brann/feiervesen på eiendommen. Det er ikke foretatt undersøkelse av det elektriske anlegget.
Med mindre annet er uttrykkelig avtalt gjelder NEFs normgivende liste over løsøre og tilbehør.
Adgang til utleie
Seksjonseier får full råderett over egen seksjon og kan fritt leie den ut til boligformål.
Korttidsutleie av hele boligseksjonen i mer enn 90 døgn årlig er ikke tillatt. Med korttidsutleie menes utleie i inntil 30 døgn sammenhengende.
Konsesjon / Odel
Konsesjonsplikt: Ikke aktuelt for denne eiendommen.
Odelsrett: Ikke aktuelt for denne eiendommen.
Sikkerhetsstillelse
Alle eiendomsmeglingsforetak har lovpålagt forsikring av klientmidler begrenset oppad til kr 45 mill. Enkeltsaker er forsikret inntil kr 15 mill. Dersom kjøpers låneinstitusjon krever tilleggsforsikring ved omsetning over 15 millioner, må kjøper selv eller dennes låneinstitusjon dekke utgiftene forbundet med dette.
Boligkjøperforsikring
I produktark om boligkjøperforsikring bak i salgsoppgaven, finner du informasjon samt priser på produktene.
Overtagelse
Etter nærmere avtale. Angi ønsket overtakelse i Deres bud. Boligene er innflyttingsklare.
Boligselgerforsikring
Selger har ikke tegnet boligselgerforsikring, og interessenter oppfordres til å sette seg inn i selgers egenerklæring før det inngis bud på eiendommen.
Budgiving
Bud kan legges inn via Privatmeglerens "gi bud-knapp" som finnes på Privatmegleren.no/eiendommens hjemmeside og i nettannonsen. Bud legges inn trygt og enkelt med bank-ID.
For mer informasjon om budgivning, se "Viktig informasjon" i salgsoppgaven.
Lovanvendelse
Eiendommen selges etter reglene i avhendingsloven.
Eiendommen skal overleveres kjøper i tråd med det som er avtalt. Det er viktig at kjøper setter seg grundig inn i alle salgsdokumentene, herunder salgsoppgave, tilstandsrapport og selgers egenerklæring. Kjøper anses kjent med forhold som er tydelig beskrevet i salgsdokumentene. Forhold som er beskrevet i salgsdokumentene kan ikke påberopes som mangler. Dette gjelder uavhengig av om kjøper har lest dokumentene. Alle interessenter oppfordres til å undersøke eiendommen nøye, gjerne sammen med fagkyndig før bud inngis. Kjøper som velger å kjøpe usett kan ikke gjøre gjeldende som mangel noe han burde blitt kjent med ved undersøkelsen.
Dersom det er behov for avklaringer, anbefaler vi at kjøper rådfører seg med eiendomsmegler eller en bygningssakyndig før det legges inn bud.
Hvis eiendommen ikke er i samsvar med det kjøperen må kunne forvente ut ifra alder, type og synlig tilstand, kan det være en mangel. Det samme gjelder hvis det er holdt tilbake eller gitt uriktige opplysninger om eiendommen. Dette gjelder likevel bare dersom man kan gå ut i fra at det virket inn på avtalen at opplysningen ikke ble gitt eller at feil opplysninger ikke ble rettet i tide på en tydelig måte. En bolig som har blitt brukt i en viss tid, har vanligvis blitt utsatt for slitasje og skader kan ha oppstått. Slik bruksslitasje må kjøper regne med, og det kan avdekkes enkelte forhold etter overtakelse som nødvendiggjør utbedringer. Normal slitasje og skader som nødvendiggjør utbedring, er innenfor hva kjøper må forvente og vil ikke utgjøre en mangel.
Boligen kan ha en mangel dersom det er avvik mellom opplyst og faktisk areal, forutsatt at avviket er på 2% eller mer og minimum 1 kvm.
Ved beregning av et eventuelt prisavslag eller erstatning må kjøper selv dekke tap/kostnader opptil et beløp på kr 10 000 (egenandel).
Dersom kjøper ikke er forbruker selges eiendommen «som den er», og selgers ansvar er da begrenset jf. avhl. § 3-9, 1. ledd 2. pktm. Avhendingsloven § 3-3 (2) fravikes, og hvorvidt en innendørs arealsvikt karakteriseres som en mangel vurderes etter avhendingsloven § 3-8. Informasjon om kjøpers undersøkelsesplikt, herunder oppfordringen om å undersøke eiendommen nøye, gjelder også for kjøpere som ikke anses som forbrukere. Med forbrukerkjøp menes kjøp av eiendom når kjøperen er en fysisk person som ikke hovedsakelig handler som ledd i næringsvirksomhet.
Lov om hvitvasking
Megler er underlagt lov om hvitvasking som innebærer plikt til å melde ifra til Økokrim om mistenkelige transaksjoner
Meglers vederlag og utlegg
Provisjonen er avtalt til 1 % ink. mva av endelig kjøpesum pr. enhet.
I tillegg til provisjonen tilkommer:
Tilrettelegging for prosjektet kr 35 000,-
Oppgjørshonorar kr 9 900,- pr. enhet
Innhenting av informasjon kr 6 000,-
Innhenting av grunnbok/servitutter kr 1 150,- pr. stk.
Markedspakke - oppstart prosjekt kr 24 900,- Markedspakken inkluderer én hovedprosjektannonse.
Kostnader for ekstra annonser og liggetid vil tilkomme. Annonsebudsjett utarbeides i samråd med utbygger og belastes oppdragsgiver.
Megler har rett til vederlag i samsvar med lov om eiendomsmegling kapittel 7. Ved avtale om timepris vil vederlaget være etter medgått tid. Ved avtalt provisjonsvederlag betaler oppdragsgiver et rimelig honorar, stort kr 9 900 I tillegg betaler oppdragsgiver i begge tilfeller utlegg og ev. tillegg i.h.t denne avtale.
Nyttige lenker
Nærområdet

PrivatMegleren Dyve & Partnere
Annonseinformasjon
| FINN-kode | 421817564 |
|---|---|
| Sist endret | 24. des. 2025 03:08 |
| Referanse | 159250585 |
Annonsene kan være mangelfulle i forhold til lovpålagt opplysningsplikt. Før bindende avtale inngås oppfordres interessenter til å innhente komplett informasjon fra meglerforetaket, selger eller utleier.