Bildegalleri

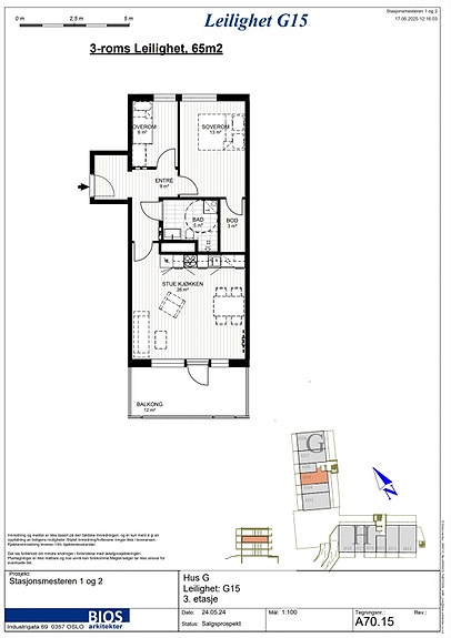
Plantegning G15

Eidsvoll Verk / Råholt

Stasjonsmesteren - Stasjonsløkka på Råholt!

Stasjonsmesteren bygg G

Prisantydning4 390 000 kr
Totalpris
4 413 470 kr
Omkostninger
23 470 kr
Felleskost/mnd.
3 562 kr
  • Planlegging

    -

  • Salgsstart

    15.august 2025

  • Byggestart

    Estimert våren 2026

  • Overtakelse

    Estimert høsten 2027

Nøkkelinfo

Boligtype
Leilighet
Etasje
3
Soverom
2
Rom
3
Internt bruksareal
65 m² (BRA-i)
Bruksareal
77 m²
Innglasset balkong
12 m² (BRA-b)

Les mer om bruksareal her

Fasiliteter

Balkong/Terrasse
Bredbåndstilknytning
Garasje/P-plass
Heis
Turterreng

Visning

Ta kontakt for å avtale visning.Visningspåmelding

Beskrivelse

Omkostninger

4 390 000 (Pris)
--------------------------------------------------------
Omkostninger
8 120 (Dokumentavgift)
260 (Panteattest kjøper)
12 000 (Startkapital til sameiet)
2 000 (Stiftelsesgebyr sameiet)
545 (Tinglysningsgebyr pantedokument)
545 (Tinglysningsgebyr skjøte)
--------------------------------------------------------
23 470 (Omkostninger totalt)
--------------------------------------------------------
4 413 470 (Totalpris. inkl. omkostninger)

Nærområdet

Annonseinformasjon

FINN-kode421758915
Sist endret08. des. 2025 09:27
Referanse1206250064

Rapporter annonse

Annonsene kan være mangelfulle i forhold til lovpålagt opplysningsplikt. Før bindende avtale inngås oppfordres interessenter til å innhente komplett informasjon fra meglerforetaket, selger eller utleier.