Bildegalleri
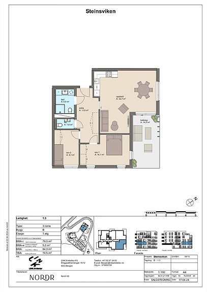
Plantegning B-1.3
Steinsvikåsen
Feråsvegen 14H
Prisantydning6 200 000 kr
Prosjektets status
Planlegging
Våre 2024
Salgsstart
Juni 2024
Byggestart
2. kvartal 2025
Overtakelse
2. kvartal 2027
Nøkkelinfo
- Boligtype
- Leilighet
- Etasje
- 1
- Soverom
- 2
- Rom
- 3
- Internt bruksareal
- 79 m² (BRA-i)
- Bruksareal
- 84 m²
- Eksternt bruksareal
- 5 m² (BRA-e)
- Balkong/Terrasse
- 15 m² (TBA)
Fasiliteter
Balkong/Terrasse
Bredbåndstilknytning
Garasje/P-plass
Heis
Kabel-TV
Utsikt
Turterreng
Beskrivelse
Ansvarlig megler
Lena Leikvoll
NB: Knappen for å vise hele beskrivelsen har kun en visuell effekt.
NB: Knappen for å vise hele beskrivelsen har kun en visuell effekt.
Nærområdet
EiendomsMegler 1 Nybygg Bergen
En del av Sparebank 1 Sør-Norge
Annonseinformasjon
| FINN-kode | 421306962 |
|---|---|
| Sist endret | 28. okt. 2025 10:09 |
| Referanse | 2706250352 |
Annonsene kan være mangelfulle i forhold til lovpålagt opplysningsplikt. Før bindende avtale inngås oppfordres interessenter til å innhente komplett informasjon fra meglerforetaket, selger eller utleier.