Bildegalleri
Leitagarden - Valderøya
Leitagarden
Kort om prosjektet
Eit heilt nytt bustadprosjekt i det ettertrakta området Skjong, på Valderøya. Eit nabolag der barn trygt kan leike og utforske i fellesskap, der naboar enkelt finn saman til små, hyggelege møtepunkt, og der rolege sommarkveldar på terrassen vert ein naturleg del av kvardagen.
Prosjektets status
Planlegging
-
Salgsstart
Salet er i gang!
Byggestart
Bygginga er i gang!
Overtakelse
2025
Nøkkelinfo
- Boligtype
- Enebolig
- Soverom
- 3
- Bruksareal
- 140 m²
- Energimerking
- B - Oransje
Fasiliteter
Beskrivelse
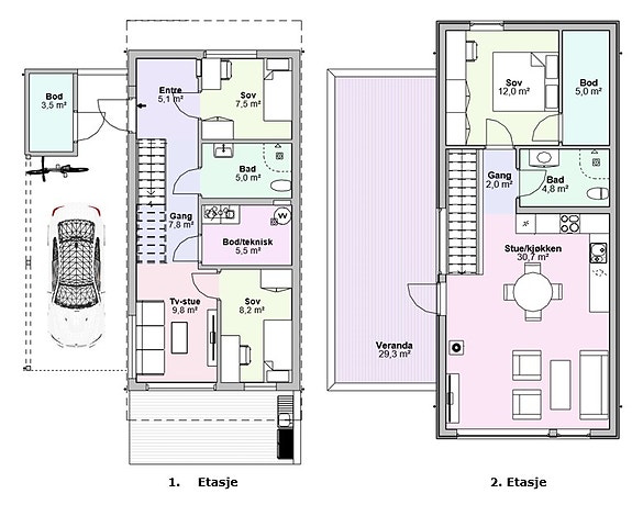
Leitagarden 21
Leitagarden 21 er den siste bustaden du kjem til i rekka, heilt i enden av blindvegen. Huset skil seg frå dei to andre ved at boda er plassert under carporten, noko som gir ei litt romsligare terrasse enn i dei andre bustadane.
Uteområdet opparbeidast med støttemur i framkant av bustaden, samt mot vest
Nærområdet

Hellvik Hus - Roaldhus AS
Annonsene kan være mangelfulle i forhold til lovpålagt opplysningsplikt. Før bindende avtale inngås oppfordres interessenter til å innhente komplett informasjon fra meglerforetaket, selger eller utleier.