Bildegalleri
Plantegning 06
Inaktiv
Sveåsen trinn 2
Sveåsen trinn 2
Prisantydning6 800 000 kr
Prosjektets status
Planlegging
Ferdig
Salgsstart
Salget har startet
Byggestart
Estimert 3. kvartal 2025
Overtakelse
Estimert 2-3. kvartal 2026
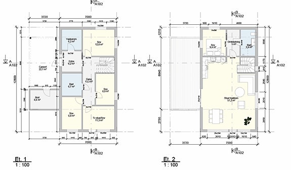
Nøkkelinfo
- Boligtype
- Enebolig
- Etasje
- 2
- Soverom
- 4
- Rom
- 6
- Internt bruksareal
- 159 m² (BRA-i)
- Bruksareal
- 190 m²
- Eksternt bruksareal
- 31 m² (BRA-e)
Beskrivelse
Mer informasjon kommer
NB: Knappen for å vise hele beskrivelsen har kun en visuell effekt.
NB: Knappen for å vise hele beskrivelsen har kun en visuell effekt.
Nærområdet
Eiendomsmegler Norge Nybygg Bergen
Annonseinformasjon
| FINN-kode | 415912601 |
|---|---|
| Sist endret | 07. juli 2025 09:35 |
| Referanse | 81250219 |
Annonsene kan være mangelfulle i forhold til lovpålagt opplysningsplikt. Før bindende avtale inngås oppfordres interessenter til å innhente komplett informasjon fra meglerforetaket, selger eller utleier.