Bildegalleri

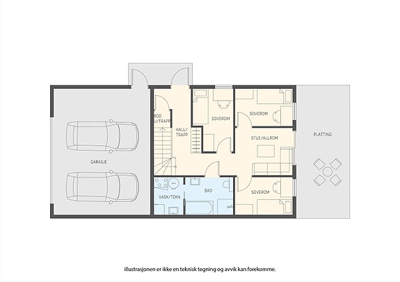
Plantegning 1.etasje

RETT VED KOLBOTN SENTRUM

Kapellveien 10 A og B

Prosjekterte familieboliger med dobbelgarasje, 4 soverom, 2 bad, vaskerom, tv-stue og stor stue/​kjøkken. Romslig hage.

Prisantydning11 975 000 kr
Totalpris
12 051 350 kr
Omkostninger
76 350 kr
  • Planlegging

    Utført

  • Salgsstart

    Juli 2025

  • Byggestart

    3.kvartal 2025

  • Overtakelse

    2.kvartal 2026

Nøkkelinfo

Boligtype
Tomannsbolig
Soverom
4
Rom
5
Internt bruksareal
197 m² (BRA-i)
Bruksareal
197 m²
Balkong/Terrasse
49 m² (TBA)

Les mer om bruksareal her

Fasiliteter

Balkong/Terrasse
Bredbåndstilknytning
Garasje/P-plass
Turterreng

Visning

Ta kontakt med eiendomsmegler. Tomten kan enkelt også befares på egenhånd.
Visningspåmelding

Beskrivelse

Boligprosjektet består av to store halvpart av tomannsbolig med en meget familievennlig planløsning. Disse nye hjemmene blir levert nøkkelferdige med en moderne og tidsriktig standard, men det er også gode muligheter for personlig tilpasning gjennom tilvalg og endringer.

Tomten rundt hvert enkelt hus blir opparbeidet med plen, hekk og gruslagt adkomst/gårdsplass. Uteplasser som blir godt adskilt fra hverandre, slik at enhetene oppleves nesten som eneboliger. Flatt utearealer rundt alle boligene, noe som gjør at hele tomten blir utnyttet med romslige plenområder. Begge boligene får integrert dobbelgarasje og terrasse og romslig takterrasse med gode solforhold.

Planløsningen vil gå over 2 plan og boligene får 4 soverom, 2 bad, eget vaskerom og tv-stue. I 1.etasje er det utgang til vestvendt terrasse og hage, mens det fra stuen i 2.etasje er utgang til en romslig og solrik takterrasse. Videre blir det stor delvis åpen stue og kjøkken/allrom på totalt ca. 77 kvm. En meget fin soveromsfløy i denne etasjen, med mastersoverom med direkte adkomst til garderoberom og videre til bad. Det er integrert dobbelgarasje. Barn/ungdomsrom med tilgang til tv-stue og bad. I det hele tatt en svært god og gjennomtenkt, familievennlig planløsning.

Nye boliger har strenge krav til blant annet issolering og energieffektivitet.

Det er noe spesielt ved å være første eier av en bolig. Form rommene slik at de passer deg og din livsstil, og få detaljene på badet du alltid har drømt om.

Oppvarming

Det leveres varmekabler i begge baderom og i hele 1. etasje (foruten garasje). Det leveres varmefolie i stue og kjøkken i 2. etasje. Panelovn på soverom i 2. etasje. Det leveres stålpipe med nødvendige beslag og takhatt. Denne blir blendet. Som tilvalg kan det velges peis.

Kjøkken-leveranse

Kjøkkeninnredning leveres gjennom XL Bygg AS i Ski.
Standard kjøkken leveres fra den norske kvalitetsleverandøren Sigdal i modell Vidde granitt med grå fronter. Det leveres videre Kull 630 laminert benkeplate med Franke sort nedfelt vask. Egde sort matt håndtak. Det leveres induksjonstopp, innbyggingsovn, helintegrert oppvaskmaskin og integrert kombifrys/
kjøleskap fra Siemens samt vifte Lyra fra Rørosmetall. Komplett beskrivelse av standardleveransen finnes i eget vedlegg utarbeidet av kjøkkenleverandør.
Endringer og tilvalg ut over grunnleveranse kan avtales med XL-Bygg AS, og evt. pristillegg faktureres separat til kjøper.

Baderom-leveranse

Badene får innredning fra Vikingbad med enkel vask og 2 skuffer i 1.etasje og dobbelvask med 2 skuffer i 2.etasje. Vikingbad Eva speil med LED lys. A-collection Azur II servantbatteri. Dusjsett fra A-collection EasySpray. Dusjvegger type A-collection Imber. Vegghengt wc fra Alterna Nika med innebygget sisterne. Som tilvalg kan en få badekar på det ene badet.

Parkering

Det leveres innvendig dobbelgarasje som vist på tegninger. Utvidet innkjøringshøyde til ca. 210 cm. Ryterna Slick i farge RAL9004 (svart), hvit innvendig, med elektrisk garasjeportåpner med fjernkontroller. Det er avsatt punkter til ett lysarmatur i tak, en dobbel stikkontakt og lysbryter. Det vil bli lagt opp egen 25A kurs og kabel avsluttet i koblingsboks til lading av elbil.

Kommunale avgifter

Kommunale avgifter fastsettes etter at boligene er ferdigstilt og blir fakturert eier

Formuesverdi

Kjøper må påregne å selv melde inn formuesverdiene i forbindelse med innlevering av skattemelding. Interessenter oppfordres til selv å gjøre seg kjent med beregningsreglene via www.skatteetaten.no og formuesverdi/bolig. I følge skatteetaten er formuesverdi av primærbolig 25 % av markedsverdien og for sekundærbolig er satsen 100 % av markedsverdien (forbehold om endringer).

Omkostninger

Som fremkommer slik:
260,- (Pantattest kjøper)
545,- (Tingl.gebyr pantedokument)
545,- (Tingl.gebyr skjøte)
3 000,- (Etablering av sameiet)
75 000,- (Dokumentavgift (av andel tomteverdi kr 3 000 000,-))
-------------------------------------------------
79 350,- (Omkostninger totalt)
-------------------------------------------------
12 051 350,- (Totalpris inkl. omkostninger)

NB: Regnestykket forutsetter at det kun tinglyses ett pantedokument. Det vil dessuten bli innkrevet startkapital til sameiet i forbindelse med overtakelsen.

Nærområdet

Annonseinformasjon

FINN-kode414566999
Sist endret10. feb. 2026 13:20
ReferanseATE2.2494

Rapporter annonse

Annonsene kan være mangelfulle i forhold til lovpålagt opplysningsplikt. Før bindende avtale inngås oppfordres interessenter til å innhente komplett informasjon fra meglerforetaket, selger eller utleier.