Bildegalleri

Magnus Bergs Gate 8

1

Prisantydning5 950 000 kr
Totalpris
5 971 910 kr
Omkostninger
21 910 kr
  • Planlegging

    2025

  • Salgsstart

    Sommeren 2025

  • Byggestart

    Sommer/høst 2025

  • Overtakelse

    Q3 - 2026

Nøkkelinfo

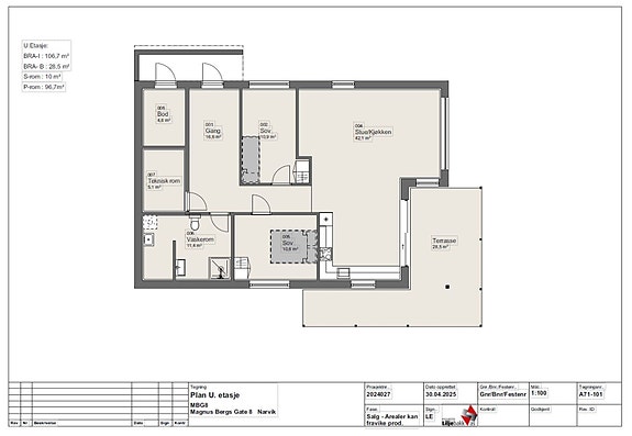
Boligtype
Leilighet
Etasje
1
Soverom
2
Internt bruksareal
106 m² (BRA-i)
Bruksareal
111 m²
Energimerking
A - Mørkegrønn

Les mer om bruksareal her

Visning

Ta kontakt for å avtale visning.Visningspåmelding

Beskrivelse

Oppvarming

Leilighetene har vannbåren varme i alle gulv. Annen oppvarming er elektrisk. Se vedlagte leveransebeskrivelse.

Parkeringsforhold

Lading av el-bil/hybrid:
Megler har ikke undersøkt om det er tilrettelagt for lading av el-biler og hybrider i borettslaget/sameiet. Hvorvidt det er mulighet for slike anlegg eller installasjoner må kjøper selv undersøke.
Megler gjør oppmerksom på at i henhold til ny eierseksjonslov av 1. januar 2018, § 25 femte ledd, kan det fastsettes i vedtektene at en eller flere av seksjonseierne har enerett til å bruke bestemte deler av fellesarealene i inntil tretti år.

Adgang til utleie

Det er kun en bruksenhet i boligen.

Utleie av seksjon kan være begrenset.

Korttidsutleie: Det følger av eierseksjonsloven § 24 at korttidsutleie av hele boligseksjonen i mer enn 90 døgn årlig ikke er tillatt. Bestemmelsen gjelder ikke for fritidsboliger. Med korttidsutleie menes utleie inntil 30 døgn sammenhengende. Grensen på 90 døgn kan fravikes i vedtektene og kan i så fall settes til mellom 60 og 120 døgn. Slik beslutning krever et flertall på minst to tredjedeler av de avgitte stemmene på årsmøtet.

Hvitevarer / tilbehør

Integrerte hvitevarer overtas i den tilstand de har vært benyttet av selger, og overtas uten noe form for garantier.

Frittstående hvitevarer og brunevarer medfølger ikke i salget med mindre det tydelig fremgår av salgsoppgaven.

Ligningsverdi (formuesverdi)

Formuesverdien er innhentet fra Skatteetaten / Altinn.

Nærområdet

Annonseinformasjon

FINN-kode413490534
Sist endret15. okt. 2025 11:23
Referanse142510001

Rapporter annonse

Annonsene kan være mangelfulle i forhold til lovpålagt opplysningsplikt. Før bindende avtale inngås oppfordres interessenter til å innhente komplett informasjon fra meglerforetaket, selger eller utleier.