Bildegalleri
Leilighet 2
Solgt
Moseidmoen
Per Gynts veg 5
Leilighet 2
Prisantydning3 190 000 kr
Prosjektets status
Planlegging
2025
Salgsstart
Juni 2025
Byggestart
2025
Overtakelse
2026
Nøkkelinfo
- Boligtype
- Leilighet
- Etasje
- 1
- Soverom
- 3
- Rom
- 4
- Internt bruksareal
- 86 m² (BRA-i)
- Bruksareal
- 91 m²
- Eksternt bruksareal
- 5 m² (BRA-e)
Fasiliteter
Balkong/Terrasse
Bredbåndstilknytning
Garasje/P-plass
Beskrivelse
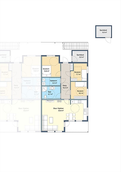
Leiligheten ligger i 1.etg og inneholder: Entré/gang, 3 soverom, bad, vaskerom, stue med åpen kjøkkenløsning og utgang til terrasse.
I tillegg følger utvendig bod og fast parkeringsplass.
Ansvarlig megler
Leif Christian Stray
NB: Knappen for å vise hele beskrivelsen har kun en visuell effekt.
NB: Knappen for å vise hele beskrivelsen har kun en visuell effekt.
Nyttige lenker
Nærområdet
BOLIGMEGLEREN STRAY
Annonseinformasjon
| FINN-kode | 413474656 |
|---|---|
| Sist endret | 05. sep. 2025 07:50 |
| Referanse | STR1.25276 |
Annonsene kan være mangelfulle i forhold til lovpålagt opplysningsplikt. Før bindende avtale inngås oppfordres interessenter til å innhente komplett informasjon fra meglerforetaket, selger eller utleier.