Bildegalleri
Plantegning
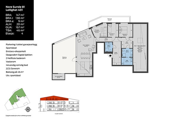
Nore Sunde B1
Nore Sunde B1
Prosjektets status
Planlegging
Ferdig prosjektert!
Salgsstart
Salget er i gang!
Byggestart
Vi bygger uansett!
Overtakelse
11.11.2026
Nøkkelinfo
- Boligtype
- Leilighet
- Etasje
- 4
- Soverom
- 2
- Rom
- 4
- Internt bruksareal
- 138 m² (BRA-i)
- Bruksareal
- 147 m²
- Eksternt bruksareal
- 9 m² (BRA-e)
- Balkong/Terrasse
- 46 m² (TBA)
Visning
Beskrivelse
Adresse
Nore Sunde B1 Leilighet 401
4049 Hafrsfjord
4. etasje
Matrikkel
Gnr. 41 bnr. 1638 i Stavanger kommune
Midt mellom grønt og blått
På Nore Sunde bor du mellom grønt og blått. Tett på gode opplevelser kan du velge flotte turer i nær sagt alle retninger. Det er landlig, ja, samtidig som det går kjapt med sykkel, buss og bil til Stavanger sentrum.
Boområdet har en tilbaketrukket beliggenhet i en sørvendt og solrik skråning. Her er det fritt og luftig, og noen av boligene vil få utsikt mot Hafrsfjord og Jåsund-halvøya.
På Nore Sunde tilbyr vi en bred meny som ferdig utbygd vil telle 81 boliger. Det skal være like naturlig å slå seg ned her for unge i etableringsfasen som for godt voksne som ønsker mer tid til det vi alle drømmer om: Nyte livet.
Størrelser og typer varierer, og vi håper og tror mange vil finne en bolig de liker. Felles er at RAMP Arkitekter har tegnet hjem som er fine å se på og gode å bo i. Totalt vil utbyggingen telle 40 leiligheter, 29 rekkehus, 10 vertikaldelte boliger og 2 eneboliger.
20 flotte leiligheter
Leilighetene er generelt smart løst. De er lettstelte, lyse og moderne. Og jo flere kvadrat, jo flere kvaliteter kan vi putte inn. Åtte av leilighetene har for eksempel to bad. I elleve boliger det separat vaskerom, og i flere andre er vaskeavdelingen skjermet med halvvegg fra badet ellers. Fem av leilighetene har WC i tillegg til badet sitt. Flere av de større leilighetene har privat masteravdeling med soverom, bad og walk-in garderobe. Det er mulighet for tre soverom i åtte av leilighetene. I flere er valget to soverom og to stuer eller tre soverom og en stue. Det er opp til deg om antall oppholdsrom eller soverom er det viktigste.
- Flere størrelser å velge i!
- 1-3 soverom
- Baderom med fliser på gulv og i dusjnisje
- Varmekabler i gulv på våtrom
- Kjøkken fra Sigdal
- Trestavs hvitpigmentert eikeparkett på gulv
- Viftekonvektor i hver boenhet
- Balkong
- Parkeringsplass i lukket garasjeanlegg (gjelder ikke for leilighet 102, 103, 105, 106, 201 og 206)
- Sportsbod i parkeringsanlegg
- Elbilladesystem fra Aneo Mobilty
Toppleilighetene
De to leilighetene i fjerde etasje er av den eksklusive sorten. Fra de store balkongene er det fantastisk utsikt i tre av fire himmelretninger. Rett fram ser du mot Hafrsfjord og Jåsundhalvøya, det vil si sørvestover med løfte om mange timer sol. Den ene av de to toppleilighetene har også en balkong nummer to, med retning sørøst og morgensol. Stue- og kjøkkenrommet er lyst og romslig. Boligene har også noe så sjeldent som hver sin kjempestore bod. Lagringsplass får man sjelden nok av.
- Stor, solrik balkong
- Sportsbod til uteplassen
- Svær innvendig bod
- To soverom, mulighet for tre
- To helfliste bad og vaskerom
- Walk in closet
- 1-stavs hvitpigmentert eikeparkett i alle tørre rom
- Vannbåren gulvvarme
- Listefrie overganger mellom vegg, himling og vindu
- Fast parkeringsplass
- Sportsbod i p-anlegg
- Elbilladesystem fra Aneo Mobilty
Betalingsbetingelser
Ved kontraktinngåelse: 0,-
Ved overtakelse: Total kjøpesum + omkostninger.
Prisantydning
12 990 000,-
Solgt ihht. bustadoppføringsloven
Eiendommen selges ihht bustadoppføringsloven og dens bestemmelser om garanti og sikring av innbetalte midler.
Overtagelse
11.11.2026
Nærområdet
Øster Hus
Annonsene kan være mangelfulle i forhold til lovpålagt opplysningsplikt. Før bindende avtale inngås oppfordres interessenter til å innhente komplett informasjon fra meglerforetaket, selger eller utleier.