Bildegalleri
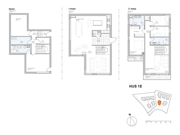
HUS 1E Plantegning
Vesteråsveien Panorama
HUS 1E
Prosjektets status
Planlegging
-
Salgsstart
-
Byggestart
Forventet i Q3 2025.
Overtakelse
Forventet i Q2 2027.
Nøkkelinfo
- Boligtype
- Enebolig
- Soverom
- 3
- Internt bruksareal
- 236 m² (BRA-i)
- Bruksareal
- 236 m²
- Balkong/Terrasse
- 7 m² (TBA)
Visning
Beskrivelse
Oppdragsansvarlig
Allé Eiendomsmegling AS / Lillian Ch. Nerlinger
Selger/Utbygger
Vesteråsveien 1 AS
Betegnelse
Gnr. 28 Bnr. 368 i Oslo kommune
Arealer og fordeling per etasje
Totalt BRA 236 kvm består av:
- BRA-i (internt bruksareal): 236 kvm
- TBA (terrasse-/balkongareal) 7 kvm
Det totale bruksarealet fordeler seg som følger:
Hus 1E
Første etasje:
- BRA: 84 kvm
- BRA-i: 84 kvm
Andre etasje:
- BRA: 85 kvm
- BRA-i: 85 kvm
- TBA: 7 kvm (2 balkonger)
Kjelleretasje:
- BRA: 67 kvm
- BRA-i: 67 kvm
Innhold
1. etasje: Entré, kjøkken / stue, separat toalett.
2. etasje: Sekundærstue med utgang til balkong, 3 soverom hvorav ett mastersoverom med garderobe og eget bad samt utgang til balkong, bad 2.
Kjelleretasje: Gang med adkomst fra parkeringskjeller, bod, kjellerstue, bad, vaskerom, bod / teknisk rom.
Vedlagte plantegninger er ikke målbare.
**Vi oppfordrer potensielle kjøpere til å sette seg godt inn i utbyggers leveransebeskrivelse og romskjema, for å danne seg en god oversikt over leveransen.
Beliggenhet
Boligen ligger sentralt til i et etablert og ettertraktet område med kort vei til barnehager, skoler, servicetilbud og vakker natur. Dette er et perfekt område for både barnefamilier og aktive voksne som ønsker nærhet til både hverdagens nødvendigheter og rekreasjonsmuligheter.
For den som er glad i å være i bevegelse byr nærområdet på en rekke flotte turområder, skiløyper og aktivitetsmuligheter. Mærradalen og Lysakerelven byr på vakker natur, stier og variert terreng - enten du vil gå tur opp mot Bogstadvannet eller følge elveløpet ned mot Lysaker. Langs ruten passerer du flere fossefall og historiske steder som Fåbro og Voksen Mølle. I sommerhalvåret finner du flere idylliske badeplasser langs elven.
Dagligvarehandelen er godt dekket med både Joker og Ullern Dagligvare i umiddelbar nærhet. Røa sentrum ligger 5 min unna med bil og tilbyr et bredt utvalg av butikker og servicetilbud, inkludert Røa Torg og Røa Senter med Meny, vinmonopol, apotek, kaféer, post, bank og treningssentre som Evo og SATS. Her finner du også Røa bad med svømmehall, samt helsetilbud som lege, tannlege, kiropraktor og osteopat. Ønsker du et større utvalg, ligger CC Vest også en kort kjøretur unna med et rikt butikk- og servicetilbud.
Beliggenheten gir deg enkel tilgang til kollektivtransport med både buss og T-bane. Lyseveien bussholdeplass ligger ca. 700 meter unna og betjenes av linje 42. Det går flere linjer med T-bane fra Ullernåsen stasjon, som ligger 10 min. gange unna. I tillegg er det kort vei til Lysaker stasjon, som fungerer som et knutepunkt med tog, flytog og buss. Flybussen går også fra Røa.
Skogfuglen og Ullernkollen barnehager ligger bare få minutters gange unna. Eiendommen sogner til Lysejordet barneskole og Bjørnsletta ungdomsskole. Montessori Lyse ligger også innenfor gangavstand. Persbråten videregående og Ullern videregående skole er nærmeste alternativer.
Byggemåte
GRUNNARBEIDER
Huset vil bli fundamentert på egnet underlag.
Det kan bli etablert drens-og pumpekummer, elektro-og svakstrømskap, samt andre installasjoner på eiendommen der entreprenøren finner det hensiktsmessig. Dette kan medføre at et hus får et ekstra skap på husveggen, som drifter strøm for sameiet. Plassering av skap vil bli bestemt av entreprenør, der hvor dette er hensiktsmessig. Kumlokk til ev. pumpekum, stakekum e.l. kan også bli plassert på uteoppholdsarealene der det er nødvendig. Gjelder også innenfor en hage hvor det er bruksrett.
Rundt grunnmur/kjeller arronderes terreng med stedlige masser med fall ut fra huset der det lar seg gjøre. Grunnmurspapp og isolasjon leveres kappet til over terreng med grunnmurslister. . Hagegrus eller tilsvarende rundt husene.
Grunnarbeider vil sørge for at overvannshåndtering vil bli utført etter prosjektert underlag.
Ved krav om utvendig sikring på tomt, vil det bli levert flettverksgjerder i sort utførelse, med overligger.
BALKONG / TERRASSER / PERGOLA
Det vil bli levert markterrasser, takterrasser, balkonger og pergolaer i royalimpregnert trevirke iht. tegning. Det vil ikke være mulig å endre omfanget av disse.
Terrassegulv på balkong/terrasse leveres i Royalimpregnert trevirke, i tilsvarende farge som resterende arkitektur. Balkonger og markterrasser anses som åpne løsninger, med synlige bjelker og uten tettesjikt. Synlig konstruksjonsvirke leveres i tilsvarende farge som fasade og terrassebord.
Rekkverk på balkonger og takterrasser leveres i pulverlakkert stål. I en RAL farge, valgt av arkitekt.
KONSTRUKSJONER
Der det er sprøytebetong leveres denne ubehandlet. Skjolder i sprøytebetong kan oppstå over tid. Huset over terreng vil bli oppført med bærende konstruksjoner i treverk, betong og eventuelt stål der det er hensiktsmessig.
Endringer i konstruksjoner kan medfører redusert arealer, og det påpekes at detaljprosjektering ikke er gjennomført.
VINDUER, DØRER & LISTVERK
Vinduer leveres sort eller gråmalt på inn- og ytterside. Konstruksjon i treverk. Farge etter arkitektens anbefaling. Endringer i inndeling, justering, flytting og fjerning av vinduer kan skje dersom dette er nødvendig grunnet brann- og konstruksjonsprosjektering.
Ytterdører leveres malt i en mørk tone, etter arkitektens anbefaling. Innvendige dører leveres med ett speil, av typen Swedoor Unique 01 eller tilsvarende i klassisk hvit. Endring av farge eller materialet som dør i eik, kan gjøres som tilvalg.
Listverk langs gulv og rundt dører leveres i farge klassisk hvit med dimensjon 12x58mm eller tilsvarende, med synlig spikerhoder. Fuging ved listverkets overgang til vegg og gulv inngår ikke som standard. Sparkling og maling av lister for å skjule spikerhoder kan gjøres som tilvalg.
Det leveres listefri overgang mellom vegg/himling og listefritt rundt vinduer i hele huset.
YTTERVEGGER, TAK & BESLAG
Utvendig leveres 148mm dobbeltfalset kledning i royal impregnert trevirke i fargen Brun. Tretekniske eksperter anbefaler at materialene etterbehandles totalt 3 ganger i løpet av 60 år. Vertikale flater, som kledning, bør etterfylles med olje etter 10-20 år. Det gjøres oppmerksom på følgende: Royalimpregnering er dobbeltbehandlede materialer, der impregnering og olje presses inn i treverket for å oppnå maksimal beskyttelse. Fargepigmentene blir imidlertid liggende i overflaten, og vil etter hvert som de påvirkes av vær og vind endres og blekes. Hvordan endelig sluttresultat vil bli er individuelt, og det finnes ikke et endelig fasitsvar, men fargene vil fremstå mer dempet over tid.
Endelig konstruksjonsmetodikk vil bli avklart i detaljprosjekteringen i samråd med entreprenør.
Gesimsbeslag RAL 8022 Black Brown. Forbehold om at farge kan endres.
Tekket tak med fall til sluk. Tak/baldakin leveres over hovedinngangs-døren der det ikke er annen overdekning.
Takene blir levert med Sedum i kasser, der hvor det ikke er andre elementer som terrasse, trapp, pipe, osv. Det gjøres oppmerksom på at kassene kan bli synlige til å begynne med, men vil gro igjen over tid.
TRAPP
Innvendig trapp leveres med eiketrinn av typen flerstav. Vanger, rekkverk og håndløper leveres i laminert hvitmalt furu. Trappen leveres tette trinn fra u. etg til 1. etg, og med åpne trinn med barnesikring fra 1. etg til 2. etg. Der hvor det leveres med tette trinn (opptrinn), leveres disse i eik flerstav. Endringer av farger kan gjøres som tilvalg.
OVERFLATER
Innvendige vegger vil hovedsakelig bestå av malte gipsplater med grunning og 2 strøk. Noe strukturforskjell i slepelys og overflateriss må påregnes.
Innvendig tak/himling leveres i hvitmalt gips
BRANNSIKKERHET
Det foreligger ikke ferdig brannprosjektering for prosjektet, men en brannrapport for forprosjekt. Denne viser at det ikke er behov for brannstiger, og dette vil derfor ikke leveres.
Boligene utstyres med håndslokkeapparat og seriekoblede røykvarslere tilkoblet strømforsyning med batteribackup. Røykvarsler vil seriekobles opp mot garasjeanlegg.
LÅS
Det leveres ikke nøkler til boligen. Ytterdører (hovedinngangsdør og dør fra garasje), vil bli utstyrt med elektronisk låsesytem, av typen ID-lock, Yale doorman eller tilsvarende. Det leveres 2 stk. Garasjeportåpner til hver parkeringsplass.
VENTILASJON
Det leveres balansert ventilasjon med varmegjenvinner. Kanaler må i noen tilfeller innkles i kasser. Ventilasjonsanlegget plasseres der entreprenøren finner det hensiktsmessig og blir besluttet under detaljprosjektering.
BODER
Det er ikke boder i fellesarealene, eller fellesboder.
Alle boder er tegnet inne i sin egen seksjon.
Boder blir iht. romskjema, men endringer kan gjøres i tilvalgsprosessen, av kjøper. Det gjøres oppmerksom på at det må være 5 m2 tilgjengelig bod for lagring i hver seksjon som et minimum
RENOVERING / POSTKASSE
Det blir avsatt plass til avfallsbeholdere på tomten. Plassering blir iht. utomhusplan, men kan endres, dersom utbygger blir pålagt dette, eller ser det mer hensiktsmessig. Utbygger vil bestille opp søppelbeholder på sameiets regning, når det nærmer seg overtakelse. Sameiet må selv velge å øke eller redusere antall søppeldunker etter overtakelse.
Det blir satt opp postkasser samlet for Vesteråsveien 1 og 3 på stativ av royal impregnert trevirke. Plassering iht. utomhusplan. Plassering kan avvike på lik linje med forrige punkt.
ELEKTROARBEID
Boligens elektriske installasjoner leveres i henhold til NEK 400:2022 - Norsk standard for lavspenningsinstallasjoner og NEK 399:2018 - Norsk standard for tilknytningspunkt for elanlegg og ekomnett. Sikringsskap med nødvendig overbelastningsvern, jordfeilbryter og nødvendige kurssikringer samt svakstrømskap.
Det leveres smarthussystem (dimmere og termostater) fra Plejd (eller tilsvarende) som muliggjør smartstyring av lys og varme.
Elektroinstallasjonene utføres av godkjent elektroinstallatør og utføres i hovedsak som skjult anlegg. I betongvegg, lydvegg eller brancelle-begrenset vegg og himling, kan det benyttes åpen kabelinstallasjon.
Det blir lagt opp til fiber til hvert hus, med en felles leverandør for sameiet. Utbygger kan velge selv fiberleverandør. Kjøper må selv bestille opp sitt abonnement rundt overtakelse.
Brytere, dimmere og stikkontakter leveres i hvit utførelse, ELKO Plus/ SG innfelt eller tilsvarende. Alle stikkontakter leveres som doble m/barnevern, unntatt lampepunkter ved tak og til fast utstyr (komfyr, kjøleskap etc.).
Det leveres 30 downlights per bolig fordelt på 6 ulike soner. Downlights plasseres etter eget ønske i møte med elektriker.
Det leveres ringeklokke montert ved hovedinngangen.
Det vil bli levert utebelysning på fasadene, i gangstien, og utenfor porter, iht. arkitektens lysplan. Det gjøres oppmerksom på at arkitekt vil planlegge utebelysningen til et moderat antall, for å ikke komme i konflikt med lysforurensning og naboer.
Garasjeanlegget vil bli belyst med bevegelsessensor, lavtbyggende lamper, og resterende elektroarbeider skal følges av NEK.
SANITÆRUTSTYR / RØRLEGGERARBEID
Fordeling av varmt og kaldt vann legges skjult i bjelkelag og vegger. Alle vannledninger leveres som "rør i rør"-system i plast. Endelig plassering av rørfordelingsskap bestemmes av rørlegger i forbindelse med detaljprosjektering. Fordelingsskapet kan plasseres utenfor våtrom der dette er hensiktsmessig.
Rørføringer mot yttervegg kan legges åpent på vaskerom/teknisk rom. Inne på bad vil veggene bli lektet ut. Dette vil medføre noe redusert areal. Til varmtvannsbereder brukes synlige rør mellom vegg og bereder. Rør kan bli innkledd i synlig kasse.
Sanitærutstyr leveres iht. standardmateriell og romskjema.
Ved behov for pumpekum til overvann vil denne bli koblet til felles måler. Service og driftskostnaden fordeles av sameiet.
Det rommet det er skissert vaskemaskin i leveres med sluk i gulv og opplegg for vann og avløp til vaskemaskin.
Varmtvannsbereder leveres på 200 liter og blir plassert der det er mest hensiktsmessig, etter utbyggers vurdering. Det vil være mulig å øke denne som tilvalg.
På kjøkken leveres opplegg for vask og oppvaskmaskin.
Utvendig leveres én frostsikker kaldtvannskran, montert på yttervegg, plassering etter entreprenørens anbefaling.
I enkelte dusjsoner er det mulighet for å få 2 dusjer som tilvalg. Som standard leveres kun 1.
Se romskjemaet for størrelser og antallet av rørleggerleveranse, og standardmateriell for hva som inngår som standard i prosjektet.
GARASJE / PARKERING
Alle dører inn til boligen fra garasjen vil bli levert iht. brann og arkitektens anbefalinger. Detaljprosjektering foreligger ikke, og det kan komme krav som inntrer disse dørene, som brannkrav, gasstett, automatikk osv.
Port leveres i tilsvarende farge som gesimsbeslag eller etter arkitektens anbefaling, med overstrømsventil i portbladet.
Garasjen vil bli levert med eget ventilasjonsaggregat, 1stk. varmevifte, og avtrekk. Overflødig vann vil fordampes over tid, eller dreneres i asfalten. Det blir ikke levert sluk i garasjen. Det gjøres oppmerksom på at garasjen prosjekteres som uoppvarmede garasjer, men skal holde plussgrader. Luftmengder i garasjen prosjekteres i henhold til forskriftskrav, langtidsparkering.
Parkeringsanlegget prosjekteres etter TEK17. Vi gjør oppmerksom på at veiledere fra Sintef og lignende vil kunne fravikes.
Det etableres en enkel kodetablå på utsiden av port for å kunne åpne porten uten portåpner.
Minimum takhøyde i kjøresone i garasjen er 220 cm. I områder utenfor kjøresone med tekniske føringer kan takhøyden bli noe lavere. Tekniske installasjoner/føringer vil bli synlige i himlingen.
UTOMHUSAREALER
Det vil bli levert busker og trær iht. utomhusplanen. Det gjøres oppmerksom på at minste størrelsen på trærne som leveres vil være ca. 1m høye (målt fra rot til topp). Utbygger kan levere høyere og lavere trær. Utbygger har sin rett til å gjøre mindre endringer på planen i etterkant.
Innkjøring inn til sameiets tomt og felles parkeringsanlegg, vil bli asfaltert.
Det anlegges ferdigplen der hvor det er markert plen i salgstegning, så fremt området er egnet til det. Kjøper må selv pleie og vedlikeholde gress etter overtagelse og ivareta gode vekstforhold.
Gangveier mellom husene vil bli opparbeidet med grus av typen gårdsplass singel eller tilsvarende.
Tomten for øvrig grovplaneres med stedlige masser tilpasset den eksisterende naturlige topografi. Opprinnelig vegetasjon som ikke påvirkes av byggearbeidet vil kunne bestå.
Støttemurer vil bli levert som betong og granitt. Omfanget av støttemurer, vil påvirkes av terrengets faktiske topografi, og avgjøres på stedet under utførelse. Mengden vil avvike fra utomhusplan.
Utbygger har rett til å endre og justere mengder på utomhusplanen/planteplanen, og påføre blant annet klatreplanter på støttemurer o.l., selv om disse murene skulle tilhøre en seksjon.
Det vil være mulig å bestille hekk innenfor sin bruksrett, som tilvalg.
Utvendig trapper leveres i royal-impregnert trevirke, i samme farge som resterende arkitektur.
Utbygger må ta forbehold om teknisk infrastruktur mellom de to tomtene som skal utbygges. Vedtekter og erklæring «avtale om teknisk infrastruktur, vil derfor kunne endres, når endelig prosjekteringsunderlag foreligger.
TILVALG
Kommer kjøper tidlig inn i prosessen vil man få mulighet til å sette sitt personlige preg på boligen ved å gjøre endringer/ tilvalg. I møte med entreprenører og gjennom tilvalgsportal vil kjøper selv ha mulighet til å endre/oppgradere følgende punkter:
- Fliser
- Lister
- Parkett
- Trapp
- Kjøkken
- Elektriske punkter og utstyr
- Gulvvarme
- Baderomsinnredning
- Sanitærutstyr
- Fargevalg på overflater
- Innerdører
- Gasspeis
- Ekstra våtrom (SPA, Bad, e.l.) gjelder kun hus 1B,1C, 3B og 3C
Utbygger vil ta påslag på totalentreprenørens pris på tilvalg for administrasjon og garantiansvar. Tilvalg som medfører lengre byggetid for totalentreprenøren tillates ikke.
Tilvalg vil kunne faktureres direkte fra Totalentreprenør til boligkjøper. Total tilvalgssum skal være innbetalt innen overtakelse finner sted. Ved manglende betaling, vil overtakelse kunne nektes, og forsinkelsesrenter vil kunne kreves av utbygger.
Standard
ENTRÉ
Det leveres fliser på gulv. Malt gips på vegger og i tak. Varmekabler.
WC
Det leveres fliser på gulv. Malt gips på vegger. Sokkelflis. Malt gipsi tak. Servantmøbel. Servantbatteri. Speil. Toalett med betjeningspanel. Varmekabler.
KJØKKEN - HOVEDDEL
Det leveres parkett på gulv. Malt gips på vegger og i tak. Kjøkkeninnredning fra Sigdal til en verdi av 250 000,-. Varmefolie.
STUE - HOVEDDEL
Det leveres parkett på gulv. Malt gips på vegger og i tak. Gasspeis (Peisselskabet). Varmefolie.
SEKUNDÆRSTUE
Det leveres parkett på gulv. Malt gips på vegger og i tak.
SOVEROM
Det leveres parkett på gulv. Malt gips på vegger og i tak.
KONTOR
Det leveres parkett på gulv. Malt gips på vegger og i tak.
BAD
Det leveres fliser på gulv (samme flis i mosaikk i dusj) og på vegger. Taket i malt gips. Servantmøbel. Servantbatteri. Speil. Toalett med betjeningspanel. Dusjdører i glass tilpasset dusjsone. Dusj. Varmekabler.
GANG - 1.ETASJE OG 2.ETASJE
Det leveres parkett på gulv. Malt gips på vegger og i tak.
GANG - KJELLER
Det leveres parkett på gulv. Malt gips på vegger og i tak. Varmekabler.
GANG - P-KJELLER
Det leveres parkett på gulv. Malt gips på vegger og i tak.
KJELLERSTUE
Det leveres parkett på gulv. Malt gips på vegger og i tak. Varmekabler.
BOD - KJELLER
Det leveres parkett på gulv. Malt gips på vegger og i tak. Varmekabler.
VASKEROM
Det leveres fliser på gulv. Malt gips på vegger og i tak. Varmekabler. Opplegg for vaskemaskin. Varmtvannsbereder.
TEKNISK ROM
Det leveres parkett på gulv. Malt gips på vegger og i tak. Varmekabler. Tekniske installasjoner.
BALKONG
Royalimpregnert furu terrassebord. Rekkverk i pulverlakkert stål. Dobbel stikkontakt.
TAKTERRASSE
Royalimpregnert furu terrassebord. Rekkverk i pulverlakkert stål. Dobbel stikkontakt.
Vi oppfordrer interessenter til å sette seg godt inn i utbyggers leveransebeskrivelse og da særlig arket med "standardmateriell" samt romskjema.
Oppvarming
Det leveres varmefolie i hovedstue og på kjøkken, samt varmekabler i hall/entré, WC, vaskerom, teknisk rom og alle baderom. I tillegg leveres alle rom i kjellerne med varmekabler (gjelder ikke slusene; rommet mellom inngangsdør fra garasjen og til gang i huset. Se romskjema).
Gasspeis Superior 650 fra Peisselskabet, eller tilsvarende, leveres i hovedoppholdsetasjen. Peisen leveres med 2-sidet glass, men 3-sidet kan velges som tilvalg, dersom dette er mulig for din bolig. Gasspeisen leveres med små hvite stener inni. Utbygger tar forbehold om at plassering av peis kan endres, dersom dette er nødvendig, grunnet tekniske og konstruksjonsmessige løsninger.
Parkering / Garasje
For henholdsvis Vesteråsveien 1 og Vesteråsveien 3 er det to separate garasjeanlegg under bakken, med 8 parkeringsplasser i hvert anlegg. Det medfølger 1 stk. parkeringsplass pr. bolig. Dersom man ønsker en ekstra plass, kan dette avtales, pris kr 400 000,- pr. plass. Det er kun 3 ekstra parkeringsplasser tilgjengelig i hvert anlegg.
Alle parkeringsplassene leveres klartgjort for 1 stk elbil-lader (tomrør til sikringsskap). Ladeboks, kabel og sikring kan leveres som tilvalg.
Adkomst
Se vedlagt kartskisse på høyre side i Finn.no annonsen. Ved å trykke på kartet får du enkelt tilgang til en spesifisert reiserute fra ønsket startdestinasjon (eventuelt din boligadresse) til den aktuelle eiendommen.
Beskrivelse av tomt
Sameiets totale tomteareal er 2422 kvm. Sameiet består av fem boligseksjoner og en næringsseksjon (parkering).
Eiendommen og sameiet er en del av boligprosjektet Vesteråsveien Panorama, som består av to eierseksjonssameier: Vesteråsveien Panorama 1 (dette sameiet) og Vesteråsveien Panorama 3 som består av fem boligseksjoner (eneboliger) og en næringsseksjon (parkering) på gnr. 28 bnr. 240 i Oslo. I begge sameier er det en underjordisk parkeringsgarasje, samt uteområder. De to eierseksjonssameiene er i stor grad ment å fungere som ett sameie i praksis, med gjensidige rettigheter og forpliktelser og tett samarbeid.
Hver av boligseksjonene har en markterrasse, som er seksjonert som tilleggsdel til seksjonen. Dette betyr at markterrassen inngår i seksjonen, og at seksjonseier dermed har eksklusiv bruksrett og fullt vedlikeholdsansvar for markterrassen. Det er ikke tillatt å sette opp levegger/pergola mv. på
markterrassen uten forhåndssøknad og samtykke fra styret.
For sameiet er det vedtatt midlertidig enerett til bruk av deler av fellesarealene iht. vedlagte situasjonsplan hvor det fremgår hvilke arealer som er disponert over til fordel for hvilke seksjoner. Varigheten av midlertidig enerett til bruk som følger av denne bestemmelsen er fastsatt til 30 år fra vedtektenes vedtakelse og kan ikke endres uten tilslutning fra de seksjonseiere som blir berørt ved endringer i perioden.
En sameier eier en andel i eiendommen, med tilknyttet enerett til bruk av sin bruksenhet, jf. eierseksjonsloven § 25.
Ingen kan erverve mer enn to boligseksjoner i et sameie, jf. eierseksjonsloven § 23 første ledd. Dersom et erverv har funnet sted i strid med eierseksjonslovens regler kan Kartverket nekte overskjøting. Dersom overskjøting blir nektet, er kjøper likevel forpliktet til å gjennomføre handelen med selger, og oppgjør til selger vil finne sted tross manglende overskjøting.
Interessenter oppfordres til å sette seg inn i sameiets vedtekter med vedlagte utomhusplan bruksrett.
Tinglyste rettigheter og forpliktelser
Kommunen har legalpant som sikkerhet for betaling av kommunale avgifter. Legalpant er pant som følger av loven, og som ikke tinglyses. Legalpant følger derfor eiendommen ved salg. På eiendommen kan det være tinglyst erklæringer som f eks rett for kommunen til å vedlikeholde rørsystemer for vann- og kloakk. Disse erklæringene vil følge eiendommen ved salg. Kontakt megler for nærmere informasjon.
Servitutter / rettigheter
Eiendommen overdras fri for pengeheftelser, med unntak av eventuelle erklæringer, avtaler, servitutter og panteheftelser som fremgår av salgsoppgaven og skal følge med eiendommen ved salg. Kjøpers bank vil få prioritet etter disse.
1941/7702-1/105 Bestemmelse om bebyggelse
28.07.1941
Bestemmelse om benyttelse
Bestemmelse om gjerde
Bestemmelse om veg
Med flere bestemmelser
1954/13768-1/105 Erklæring/avtale
26.10.1954
VEDTAK AV OSLO KOMMUNES VANN- OG KLOAKKREGLEMENT
1954/15460-1/105 Bestemmelse om veg
24.11.1954
Bestemmelse om gjerde
Bestemmelse om kloakkledning
1955/15354-1/105 Bestemmelse om veg
30.11.1955
rettighetshaver:Knr:0301 Gnr:28 Bnr:368
Gjelder denne registerenheten med flere
1970/16660-1/105 Erklæring/avtale
06.10.1970
VEDTAK AV OSLO KOMMUNES VANN- OG KLOAKKREGLEMENT
Kan ikke slettes uten samtykke fra kommunen
1970/16661-1/105 Best. om vann/kloakkledn.
06.10.1970
Kan ikke slettes uten samtykke fra kommunen
1981/15587-2/105 Erklæring/avtale
22.06.1981
LIVSVARIG BRUKS- OG / ELLER DISPOSISJONSRETT
RETTIGHETSHAVER: SAMUELSEN AIMEE T.
2021/670256-1/200 Bestemmelse om bebyggelse
04.06.2021 21:00
Gjensidig samtykke til plassering av tiltak på grense
Gjelder denne registerenheten med flere
2025/138624-2/200 Bestemmelse om veg
05.02.2025 21:00
rettighetshaver:Knr:0301 Gnr:28 Bnr:240
Grunndata
1941/5802-1/105 Registrering av grunn
07.06.1941
Denne matrikkelenhet opprettet fra:Knr:0301 Gnr:28 Bnr:310
1971/920072-1/105 Sammenslått med denne matrikkelenhet:
18.02.1971 GNR 28 BNR 814
Rettigheter på andre eiendommer
Rettigheter på 0301-28/347/0/1-5
Rettigheter i eiendomsrett
1955/15354-1/105 Bestemmelse om veg
30.11.1955
rettighetshaver:Knr:0301 Gnr:28 Bnr:368
Gjelder denne registerenheten med flere
Rettigheter på 0301-28/240
Rettigheter i eiendomsrett
2021/670254-1/200 Bestemmelse om veg
04.06.2021 21:00
rettighetshaver:Knr:0301 Gnr:28 Bnr:368
Rettigheter på 0301-28/240
Rettigheter i eiendomsrett
2025/138624-1/200 Bestemmelse om veg
05.02.2025 21:00
rettighetshaver:Knr:0301 Gnr:28 Bnr:368
Vei / Vann / Avløp
Eiendommen er tilknyttet offentlig vann- og avløpsnett via private stikk- og fellesledninger.
Vi gjør oppmerksom på at private ledninger vedlikeholdes for eiers regning.
Ferdigattest eller midl. brukstillatelse
Selger er ansvarlig for at det blir utstedt ferdigattest på boligen. Dersom det ved overtakelsestidspunktet gjenstår mindre vesentlige arbeid og kommunen finner det ubetenkelig, kan det utstedes midlertidig brukstillatelse for hele eller deler av tiltaket. I midlertidig brukstillatelse skal det fremgå hvilke arbeider som gjenstår. Manglende ferdigattest er ikke til hinder for overtakelse dersom de gjenstående arbeider er mindre vesentlige. For overtakelse som gjennomføres i vinterhalvåret må det påregnes utstedelse av midlertidig brukstillatelse og ikke ferdigattest ettersom utomhus arbeider som planering, tilsåing, beplantning etc. ikke kan gjennomføres før klimatiske forhold gjøre det mulig. Ved overtagelse på bakgrunn av midlertidig brukstillatelse bortfaller kjøpers krav på dagmulkt.
Verdi ved skattefastsetting
Verdien ved skattefastsetting er p.t. ikke fastsatt. Verdien ved skattefastsetting fastsettes av Ligningskontoret etter beregningsmodell som tar hensyn til om boligen er en såkalt "primærbolig" (der boligeieren er folkeregistrert bosatt) eller "sekundærbolig" (alle boliger man eier, men ikke bor fast i). Interessenter oppfordres til å sjekke www.skatteetaten.no eller kontakte ansvarlig megler for nærmere informasjon om verdien ved skattefastsetting.
Reguleringsforhold
Eiendommen er avsatt til hovedformål bebyggelse og anlegg i kommuneplan 2015 - Oslo mot 2030, vedtatt 23.09.2015.
Eiendommen er regulert til byggeområde for bolig og friområde gjennom Reguleringsplan for Ullernåsen, S-3812, vedtatt 18.10.2000.
Hensikten med reguleringsplanen er å legge til rette for fortetting innenfor rammer som ivaretar Ullernåsens estetiske kvaliteter knyttet til vegetasjon og landskap. Reguleringsplanen skal sikre at fremtidige fortettingsprosjekter:
1. tilpasses eksisterende terreng og sikrer bevaring av eksisterende vegetasjon
2. har estetiske, funksjonelle og miljømessige kvaliteter,
3. resulterer i et bomiljø av høy kvalitet, hvor nyog gammel bebyggelse danner en helhet
Reguleringskart og bestemmelser ligger vedlagt salgsoppgaven.
Planer i området:
Gregers Grams vei 2 A - Oppføring av tre tomannsboliger
Gregers Grams vei 4 - Oppføring av to tomannsboliger
Vesteråsveien 11 - Oppføring av fem eneboliger
Vesteråsveien 16 - 18 - Oppføring av 23 boliger med parkeringskjeller
Hoffsjef Løvenskiolds vei 48 B - Oppføring av enebolig
Hoffsjef Løvenskiolds vei 48 D - Oppføring av enebolig og svømmebasseng
Hoffsjef Løvenskiolds vei 57 A-D - Oppføring av fire eneboliger
Frits Kiærs vei 2 B - Oppføring av tomannsbolig
Skogfaret 31 - Riving av bebyggelse og oppføring av to tomannsboliger
Frits Kiærs vei 11 A - Oppføring av to eneboliger med felles parkeringskjeller, riving av garasje og småbebyggelse, flytting av avkjørsel og endring av eksisterende hus fra tomannsbolig til enebolig samt oppføring av underjordisk heis
Andre faste løpende kostnader
Eiere av hver seksjon skal betale for sin del av kommunale avgifter og renovasjon. Innboforsikring tegnes av hver enkelt beboer. Det blir i utgangspunktet ikke felles bygningsforsikring, kjøper tegner egen forsikring på sin bolig. Det må påregnes felles forsikring for garasjeanlegget.
Alle seksjonseierne deler på kostnader for drift og vedlikehold av adkomst vei.
Det er opp til de fremtidige sameiene hvorvidt de ønsker fastsettelse av månedlige fellesutgifter for betjening av løpende felleskostnader.
Kommunale avgifter beregnes først når boligen er ferdigstilt.
Eiendommen vil bli holdt fullverdiforsikret av selgeren (utbygger) frem til overtakelsen, jf. buofl. § 13 siste ledd.
Eiendomsskatten utgjør tre promille av boligverdien (ligningsverdi x 4 x 0,7) med et bunnfradrag på inntil 4 millioner kroner. Eiendomsskatt blir ikke beregnet før etter boligen er ferdigstilt. Eiendomsskatten fastsettes årlig av bystyret og vil derfor kunne variere fra år til år.
Oppgjør
Kjøper skal betale 10 % ved kjøpesummen ved kontraktsignering. Innbetalingen må være fri egenkapital og forutsetter at selger har stilt garanti i henhold til § 12 i buofl. Delbetalingen er å anse som depositum og vil tilhøre kjøper og være under kjøpers instruksjonsrett fram til hjemmelsoverføring, eller inntil selger har stilt forskuddsgaranti i henhold til § 47 i buofl. Dersom selger stiller forskuddsgaranti i henhold til buofl. § 47 blir beløpet å anse som forskudd, og kan utbetales selger. Dette avviker fra prinsippet om ytelse mot ytelse. Resterende beløp pluss omkostninger betales ved overtakelse til meglerforetakets klientkonto.
Finansiering
Kontakt megler for avklaring av finansielle forhold, herunder lån til kjøp av eiendom. Privatmegleren har avtale med Nordea om formidling av lån og andre finansielle tjenester. Privatmegleren mottar godtgjørelse for dette.
Generelle opplysninger
Tekniske forskrifter av 2017 (TEK17) gjelder for utførelsen. Generelt leveres boligen med tolleranseklasser iht NS-3420 med normalkrav for anliggende bygningsdeler.
Alle innvendige og utvendige arealangivelser er beregnet av arkitekt og er beregnet etter Veileder NS3940:2023.
Bygningsmaterialer påvirkes av fuktighet og uttørking. Det kan oppstå sprekker på grunn av bevegelse i materialene uten at dette medfører rett til reklamasjon. Beskrevet oppbygning av konstruksjonene angir kun et generelt konstruksjonsprinsipp. Dette kan avvike avhengig av hvilken entreprenør eller husfabrikant som velges. Norske forskriftskrav gjelder.
Trykk i vannledninger varierer fra området til området, da dette kommer av trykket som er i det kommunale ledningsnettet fra før av. Det tas derfor forbehold om redusert trykk i kraner og dusj, da dette er ukjent.
Alle materialer og merkervarer i denne leverenasebeskrivelsen tas det forbehold om endringer med tilsvarende kvalitet.
Stiplet linje på plantegninger viser forslag til løsninger og innredning som ikke inngår i leveransen. Garderober og møbler medfølger ikke i standardleveranse, selv om dette kan være illustrert.
Ved tegning av eget kjøkken må kjøkkenleveransen inneholde vifte og kjøkkenvask. Det kan være begrensninger ved plassering av tekniske punkter ved omtegning av kjøkken. Ved uttrekk av kjøkken gjelder 70% av avtalt verdi i leveransebeskrivelsen.
Selger gjør særskilt oppmerksom på at skjeggkre er funnet i flere boliger i Norge. Skjeggkre kan komme inn i boliger på en rekke forskjellige måter, både i forbindelse med oppføring av boligen, men også i forbindelse med innredning, bruk mv. Det er ikke et funksjonskrav under denne kjøpekontrakten at boligen skal være oppført på et vis som fjerner risikoen for forekomst av skjeggkre i boligen samt fellesarealer.
Boligen overleveres byggrengjort. En byggvask er ikke en fullverdig rengjøring og øvrig vask av overflater må utføres av kjøper. Det må påregnes bygge- og svevestøv i en god periode etter overlevering.
Terrenglinjer på tegninger er kun illustrerende og derfor ikke retnings-givende.
Tegninger i kjøpsprospekt er nedkopiert og ikke måleriktige. Arealer på tegninger (selv om disse er angitt med desimaler) er omtrentlig angitt og arealavvik kan forekomme.
Skisser og illustrasjoner i salgsmateriell og annonser kan vise ting som avviker fra leveransen. Ved avvik gjelder denne leveransebeskrivelse.
Dataanimerte illustrasjoner er kun ment som en illustrasjon. Leveransen kan avvike fra dette både når det gjelder detaljer, materialvalg og farger
Avvik mellom denne leveransebeskrivelsen og øvrige salgsmateriell kan forekomme. Ved avvik, er det denne leveransebeskrivelsen som gjelder. Ved avvik i internt i denne leveransebeskrivelsen, er det romskjemaet som kommer først, så standardmateriell, og deretter resten av denne leveransebeskrivelsen i form av tekst. Bilder og Illustrasjon er ikke gjeldene.
Forbruker kan ikke før overtakelsen tilføre materiell og utstyr, eller selv utføre egeninnsats.
Boligen leveres i samsvar med lydkravene i NS 8175:2012 klasse C. Denne lydklassen tilfredsstiller kravene i Teknisk Forskrift. Utbygger gjør oppmerksom på at opplevelsen av lyd/støy er individuell, slik at enkelte kan oppfatte lyd/støy som sjenerende selv om lydkravene er oppfylt. I og med utførelsen er basert på de objektive kriteriene i NS 8175:2012, anses lyd/støy ikke som en mangel, når kriteriene i standarden er oppfylt.
Plantegninger viser ikke alle sjakter og tekniske installasjoner, herunder bla soilrør, ventilasjon og varmtvannsbereder. Dette vil bli plassert på egnede steder etter entreprenørens vurdering. Det kan forekomme innkassinger som ikke er merket på tegning. Redusert areal på bakgrunn av dette må forventes.
På salgstidspunktet er ikke alle forhold avklart. Det gjøres derfor oppmerksom på at alle opplysninger er gitt med forbehold om rett til endringer som er hensiktsmessige eller nødvendige, eksempelvis på grunn av offentlige krav og godkjenninger.
Byggebeskrivelsen/leveransebeskrivelsen skal angi hvilken teknisk standard prosjektet leveres med, samt foreløpig angi hva komplett leveranse etter kjøpekontrakten innebærer. Dersom det ikke er tatt inn spesifiserte bestemmelser i kjøpekontrakten, gjelder følgende krav: De tekniske løsninger skal tilfredsstille plan- og bygningslovgivningen, herunder kravene i teknisk forskrift av 2017. Det gjøres oppmerksom på at endelig detaljprosjektering ikke er avsluttet. Detaljprosjektering av byggets bæresystem, ventilasjons-sjakter, rørføringer med mer kan medføre mindre endringer i plassering og størrelser på vinduer. Det samme gjelder kjøkken og bad som vil kunne få endringer når det gjelder plassering av installasjoner som følge av tilpasning mot sjakter. Endelig utforming av tekniske sjakter må avvente detaljprosjekteringen, og det kan derfor forekomme endringer av lengde og/eller bredde på disse.
På dager hvor det er kaldt, og høy luftfuktighet kan det oppstå kondens på utsiden av glasset på vinduer og dører. Gode vinduer og dører med lav u-verdi (godt isolerte glass) slipper igjennom mindre varme. Da blir glasset varmere på innsiden og kaldere på utsiden. Inne blir det da mindre kaldt-ras og mindre kondens på den innvendige siden. På utsiden av vinduene og dørene vil det da kunne oppstå kondens.
Fliser leveres som standard 60x60. Der hvor det ikke er teknisk mulig grunnet størrelse på rom, fallforhold ift. sluk, har utbygger rett til å endre størrelse på flis. Fugebredde på flis vil være 3-5mm.
Mindre avvik kan forekomme i boligens areal grunnet endring i bærekonstruksjon, sjakter etc. Forutsatt at dette ikke fører til vesentlige endringer av leveransen, vil dette ikke medføre grunnlag for prisreduksjon eller prisavslag. Installasjoner på kjøkken og bad kan få endret plassering som følge av tilpasning mot sjakter. Selger har rett til å foreta endringer som nevnt ovenfor, men vil alltid tilstrebe at endringer utføres på en slik måte at boligens generelle bruksverdi og standard ikke påvirkes vesentlig. Slike endringer gir ikke rett til prisjusteringer fra noen av partene og kan foretas uten forhåndsvarsel til kjøperne. Om det blir nødvendig å gjennomføre vesentlige endringer ut over forannevnte bestemmelser, plikter selger å varsle kjøper om endringene uten ugrunnet opphold.
Det tas forbehold om at illustrasjoner i tegninger, 3D, og i annonsen er kun ment som eksempler og kan vise forhold som ikke er i samsvar med leveranse. Dette kan være møblering, fargevalg, dør- og vindusform, antall vinduer, bygningsmessige detaljer, for eksempel fasadedetaljer, manglende inntegning av sjakter/ innkassinger/ rør-føringer/dragere/søyler, detaljer på fellesarealer, detaljer på leke-apparater, materialvalg, beplantning etc.
Veggoverflater i kjeller som skal fremstå med betongoverflate, leveres med synlige støpeskjøter, luftlommer og overflatefeil. Svinnriss og sprekker kan forekomme. Dette er ikke reklamasjonsgrunnlag.
Enkelte boliger er ikke prosjektert med takterrasser, men utbygger kan gjøre endringer på dette på et senere tidspunkt, slik at disse boligene også får takterrasse.
Heksesot kan oppstå på deler av innvendige overflater, vanligvis på malte flater, laminater eller plast. Det er spesielt viktig å unngå overdreven bruk av stearinlys/luktlys, og sørge for tilstrekkelig og god ventilasjon og utlufting. Heksesot er derfor ikke grunnlag nok for reklamasjon.
Utbygger tar ikke på seg ansvar for skadedyr og diverse insekter som kan opptre i boligen. Skyldes forholdet at boligen ikke er bygget på godt faglig vis vil dette behandles iht. de ordinære reglene om mangler i bustadoppføringslova.
Overtakelse av fellesarealer skal gjennomføres av styret i hvert av sameiene, sammen med totalentreprenør. Ved innkalling til overtakelse, må hvert sameiet utnevne 2 person hver, som går på vegne av sitt sameiet. Utbygger kommer med sin anbefaling. Totalentreprenør fører protokoll, og registrerer i sitt digitale system. Reklamasjoner som gjelder sameiet, skal kun føres av styret i hvert sameiet, og skal kun gjelde fellesarealer og sameiets interesser. Totalentreprenøren vil sørge for en egen bruker for hvert av sameiene.
Sameiene må ses på som to forskjellige tomter i prosjektsammenheng, selv om det vil være naturlig at det ses på som ett i praksis. Vesteråsveien 1 har ansvaret for overtakelse, reklamasjon og ettårsbefaring av sin tomt, og Vesteråsveien 3 har ansvaret for sin.
Styret i hvert sameiet har selv ansvar for å kalle inn til ettårsbefaring av fellesarealer, og skal ha registrert feil og mangler iht. Bustadoppføringslova inne i Totalentreprenørens system. Samme gjelder for hver enkelt seksjonseier, ved befaring av seksjonen.
Det gjøres oppmerksom på at totalentreprenøren har i sin avtale med utbygger, at de skal håndtere samtlige reklamasjoner som gjelder begge eiendommene, og derfor skal alle reklamasjoner rettes direkte til totalentreprenøren.
Utsikten kan variere fra fra bolig til bolig. Vurdering av utsiktsforholdene er så pass spekulativt, og vanskelig å vurdere, at en dårligere utsikt enn forventet/antatt, ikke vil være grunnlag nok for prisavslag eller reklamasjon.
Adgang til utleie
Boligen kan fritt leies ut i sin helhet.
Del av bolig med egen inngang. Opplegg for vann- og avløp i vegg. Rommene er godkjent for varig opphold, men delen er ikke godkjent som separat boenhet av kommunen.
Konsesjon / Odel
Det er ikke konsesjon eller odel på eiendommen.
Sikkerhetsstillelse
Alle eiendomsmeglingsforetak har lovpålagt forsikring av klientmidler begrenset oppad til kr 45 mill. Enkeltsaker er forsikret inntil kr 15 mill. Dersom kjøpers låneinstitusjon krever tilleggsforsikring ved omsetning over 15 millioner, må kjøper selv eller dennes låneinstitusjon dekke utgiftene forbundet med dette.
Planlagt overtagelse
Forventet ferdigstillelse Q2 2027.
Byggetiden er forventet å være 20 - 22 måneder fra byggestart. En senere oppstart på fysiske arbeider og/eller en lengre byggetid enn forventet kan medføre en senere overtakelse. Det gjøres uttrykkelig oppmerksom på at tidsanslaget ovenfor ikke er å anse som en avtalt frist for overtakelse i henhold til buofl. § 10.
Selgers forbehold
Det tas forbehold om at selger kan endre utbyggerselskap og/eller transportere salgskontrakter til et nytt utbyggerselskap.
Solgt ihht bustadoppføringsloven
Boligene selges i henhold til Bustadoppføringslova som regulerer kjøpers (forbrukers) rettigheter og plikter ved avtale om oppføring av bolig og kjøp av fast eiendom der bygningen ikke er fullført når avtalen inngås. Ved salg til aksjeselskap legges Avhendingslovens bestemmelser til grunn. For øvrig gjelder Lov om eierseksjoner for eierseksjonssameiet og driften av dette.
Garantier
Det stilles garantier i henhold til Bustadoppføringslovas bestemmelser. Garanti etter § 12 vil bli stilt i forbindelse med avtaleinngåelse. Garantien skal være pålydende 3% av kjøpesummen i byggetiden og 5% i 5 år etter overlevering av boligene til kjøper. Garanti etter § 47 forutsettes stilt om selger ønsker utbetalt forskudd/delinnbetaling/sluttoppgjør før hjemmelsovergang. Eventuelle påkrevde endringer av garantier ved eventuelle videresalg/transporter utføres ikke og bekostes ikke av selger.
Forsikring
Frem til overtagelse vil eiendommen være forsikret av selger. Etter overtagelse vil eiendommen forsikres gjennom sameiets fellesforsikring. Kjøper må selv besørge innboforsikring og forsikring av eventuelle særskilte påkostninger.
Budgiving
Alle bud/kjøpetilbud på eiendommen skal være skriftlig og sendes meglerforetaket pr. mail, sms eller via vår "gi bud"-knapp på våre nettsider. Knappen finner du også på Privatmeglerens hjemmeside for prosjektet, se på den enkelte bolig.
Da selger er profesjonell etter lovens forstand, kan forskriftenes regler om frist kl. 12.00 dagen etter siste annonserte visning fravikes. Det anbefales således å sette en fornuftig akseptfrist, slik at selger har tid til å vurdere budet og eventuelle forbehold.
Nærmere info om budgiving finner du på egen side sammen med kjøpetilbud/budskjema.
Som budgiver hos Privatmegleren kan du kreve budjournal fremlagt så snart handel er gjennomført.
Innhold i budjournal er lovregulert, og innebærer at budgivere må akseptere at opplysninger om budet kan bli fremlagt for selger, kjøper og øvrige budgivere. Budgiver som ikke blir kjøper, kan kreve kopi av anonymisert budjournal.
Lov om hvitvasking
Megler er underlagt lov om hvitvasking som innebærer plikt til å melde ifra til Økokrim om mistenkelige transaksjoner
Meglers vederlag og utlegg
Innhenting kommunale opplysninger (Kr.10 000)
Oppgjørskostnad inkl. factoring (Kr.12 900)
Provisjon (forutsatt salgssum: 24 500 000,-) (Kr.125 000)
Tilrettelegging (Kr.14 900)
Prospekter/salgsoppgave (Kr.2 500)
Totalt kr. (Kr.165 300)
Dersom eiendommen ikke omsettes, faktureres selger kr 12 375,- pr. enhet i tillegg til utlegg og avtalte tillegg.
Nyttige lenker
Nærområdet

PrivatMegleren Allé
Annonseinformasjon
| FINN-kode | 412361283 |
|---|---|
| Sist endret | 17. apr. 2026 02:06 |
| Referanse | 186250214 |
Annonsene kan være mangelfulle i forhold til lovpålagt opplysningsplikt. Før bindende avtale inngås oppfordres interessenter til å innhente komplett informasjon fra meglerforetaket, selger eller utleier.