Bildegalleri

Farveriet_B-H0202.jpg

Drammen

FARVERIET

Farveriet|B-H0202

Prisantydning6 690 000 kr
Totalpris
6 719 760 kr
Omkostninger
29 760 kr
Felleskost/mnd.
4 024 kr
  • Planlegging

    2023/2024

  • Salgsstart

    11.06.2025

  • Byggestart

    Estimert 2. halvår 2026

  • Overtakelse

    Estimert 2. halvår 2028

Nøkkelinfo

Boligtype
Leilighet
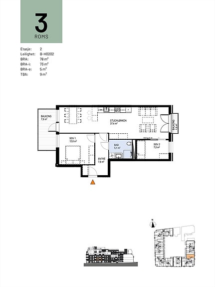
Etasje
2
Soverom
2
Rom
3
Internt bruksareal
73 m² (BRA-i)
Bruksareal
78 m²
Eksternt bruksareal
5 m² (BRA-e)
Balkong/Terrasse
9 m² (TBA)

Les mer om bruksareal her

Fasiliteter

Balkong/Terrasse
Heis

Visning

Ta kontakt med megler for å avtale digital visning via Teams, eller på vårt visningssenter. Du finner visningssenteret bak Tomtegata 29, på den åpne plassen langs Omstedgata i kvartalet der Farveriet kommer.
Visningspåmelding

Beskrivelse

Totalt bruksareal BRA: 78 kvm
BRA-i: 73 kvm
BRA-e: 5 kvm
TBA: 9 kvm

Arealbeskrivelse;
Arealet er beregnet ut fra Norsk standard NS 3940:2023. BRA-i: Internt arealet innenfor boligens omsluttende vegger, inkludert sjakt. BRA-e: Eksternt areal som boligen har eksklusiv bruksrett til, men som ikke ligger i boligen, f.eks. kjellerbod. BRA-b: Areal for innglasset balkong med veggareal. Total BRA = Summen av BRA-i, BRA-e og BRA-b. TBA er areal på terrasse og balkong. Arealet oppgis ved salg, men inngår ikke i BRA. Oppgitt romareal er netto romareal. De oppgitte arealer er å betrakte som cirka-arealer. Partene har ingen krav mot hverandre dersom arealet skulle vise seg å være 5 % mindre / større enn det oppgitte areal.

Nærområdet

Annonseinformasjon

FINN-kode412195981
Sist endret09. des. 2025 13:19
ReferanseRCOPS1.25483

Rapporter annonse

Annonsene kan være mangelfulle i forhold til lovpålagt opplysningsplikt. Før bindende avtale inngås oppfordres interessenter til å innhente komplett informasjon fra meglerforetaket, selger eller utleier.