Bildegalleri
Kirkelia 28.png
Kirkelia 28 - 40
Kirkelia 28
Prisantydning6 090 000 kr
Prosjektets status
Planlegging
2025
Salgsstart
2025
Byggestart
2025
Overtakelse
2025/2026 etter avtale
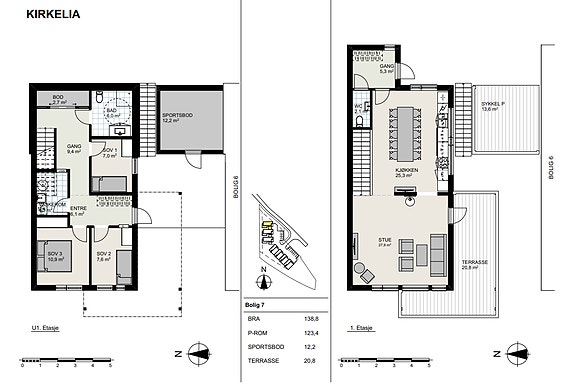
Nøkkelinfo
- Boligtype
- Enebolig
- Soverom
- 3
- Rom
- 4
- Internt bruksareal
- 126 m² (BRA-i)
- Bruksareal
- 138 m²
- Eksternt bruksareal
- 12 m² (BRA-e)
- Balkong/Terrasse
- 20 m² (TBA)
Fasiliteter
Balkong/Terrasse
Bredbåndstilknytning
Garasje/P-plass
Kabel-TV
Peis/Ildsted
Utsikt
Turterreng
Beskrivelse
Omkostninger
6 090 000 (Pris)
--------------------------------------------------------
Omkostninger
45 000 (Dokumentavgift)
260 (Panteattest kjøper)
545 (Tinglysningsgebyr pantedokument)
545 (Tinglysningsgebyr skjøte)
--------------------------------------------------------
46 350 (Omkostninger totalt)
--------------------------------------------------------
6 136 350 (Totalpris. inkl. omkostninger)
NB: Knappen for å vise hele beskrivelsen har kun en visuell effekt.
NB: Knappen for å vise hele beskrivelsen har kun en visuell effekt.
Nyttige lenker
Nærområdet
Aktiv Arendal
Annonseinformasjon
| FINN-kode | 411247021 |
|---|---|
| Sist endret | 13. nov. 2025 15:16 |
| Referanse | 1409250092 |
Annonsene kan være mangelfulle i forhold til lovpålagt opplysningsplikt. Før bindende avtale inngås oppfordres interessenter til å innhente komplett informasjon fra meglerforetaket, selger eller utleier.