Bildegalleri

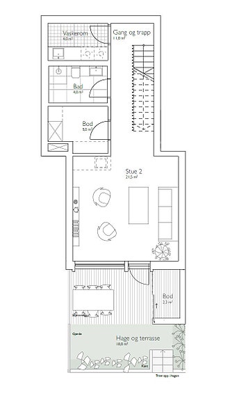
Plantegning 1. etg

Bekkestua

Frøy

Rålekkert 4-roms townhouse under oppføring sentralt på Bekkestua! Carport, hage og terrasse. Høy standard.

Prisantydning13 900 000 kr
Totalpris
13 900 000 kr
Omkostninger
0 kr
Felleskost/mnd.
2 134 kr
  • Planlegging

    -

  • Salgsstart

    -

  • Byggestart

    2025

  • Overtakelse

    Estimert våren 2026

Nøkkelinfo

Boligtype
Rekkehus
Etasje
3
Soverom
3
Rom
4
Internt bruksareal
144 m² (BRA-i)
Bruksareal
146 m²
Eksternt bruksareal
2 m² (BRA-e)
Balkong/Terrasse
13 m² (TBA)

Les mer om bruksareal her

Fasiliteter

Balkong/Terrasse
Bredbåndstilknytning
Garasje/P-plass
Kabel-TV

Visning

søndag, 22. februar
14:00 – 14:45
Visningspåmelding

Beskrivelse

Velkommen til FRØY - 30 moderne townhouse i hjertet av Bekkestua.

Om boligen - Frøy A6:
Lekkert gjennomgående townhouse over tre plan med spennende og gjennomtenkt planløsning. Gode utearealer og høy standard. Boligen har både forhage, hage, terrasse og balkong. Det medfølger 1 biloppstillingsplass i carport i felles utvendig anlegg.

2. etasje: Gang med flislagt gulv med varme, skyvedørsgarderobe medfølger. Romslig og delikat kjøkken fra Sigdal inkludert hvitvarepakke. God plass til spisebord. Trapp opp til 3. etasje. Videre er det en lys og delikat stue med store vindusflater.

1. etasje: Gang og trapp. Vaskerom med benk, utslagsvask og opplegg for vaskemaskin og tørketrommel. Delikat flislagt baderom med dusj, wc og vask. Praktisk innvendig bod. Stue med utgang til terrasse og hage. Redskapsbod på terrassen.

3. etasje: Romslig hovedsoverom, bad, gang, soverom 2 og soverom 3. Balkong på ca. 5 kvm.

BELIGGENHET
På Frøy bor du tilbaketrukket i grønne omgivelser, samtidig har du Bekkestua sentrum som nærmeste nabo. Skal du inn til Oslo tar t-banen deg til Majorstuen på 16 minutter. Ut å reise? - Flybussen finner du tre minutter unna. Skal barna gå eller følges til skolen, gjøres det trygt og enkelt med flere skoler i gangavstand fra Frøytunveien. Bilen kan bli stående carporten. Området har flere barnehager og et bredt utvalg av fritidstilbud alt i gangavstand. Perfekt for familier som verdsetter enkel logistikk og aktive hverdager!

Om sommeren kan dere nyte solen fra morgen til kveld, og på vinteren blir verken snø eller slaps et problem fortauene i nabolaget har nemlig varmekabler. På Frøy skal folk bo og leve godt i grønne, lyse og trivelige omgivelser, med god plass til barnelatter, lek og moro.

Det er det indre som teller
Boligene har åpne gjennomgående og gjennomlyste plan, og har private og sosiale funksjoner delt på forskjellige etasjer. Innvendig i boligene er det laget en forskyvning i planen, som både gir en bedre romfølelse og skaper større fleksibilitet. Her blir det boliger med høy bokvalitet til forskjellige beboere i ulike livsfaser.

Kjøkken
Det er valgt en funksjonell og stilren kjøkkeninnredning fra Sigdal med fronter i samme sandfarge som vegg. Med matchende benkeplate blir det et helhetlig og sømløst uttrykk som er planlagt å passe hele boligens fargepallett. Kjøkkenet er utformet med fokus på velfungerende løsninger som vil gjøre hverdagen enklere. Det medfølger integrerte hvitevarer fra Siemens.

Bad
Bad leveres med baderomsinnredning med to skuffer og tilpasset servant. Speilet, som er montert direkte på veggen, gir et stilrent uttrykk, og belysningen ved speilet, enten i taket eller på sideveggen, sørger for optimal lyssetting. Alt sanitærutstyr er levert i klassisk hvit utførelse for et tidløst design. Vegghengt toalett med skjult sisterne gir et moderne og ryddig uttrykk. Det leveres faste og innsvingbare dusjvegger i herdet glass. Sluk i dusj leveres i rustfritt stål.

Gulv og oppvarming
En-stav parkett i eik i oppholdsrom, stue og kjøkken. Flislagte gulv i entré, baderom og vaskerom. Boligene leveres med vannbåren oppvarming i gulv i alle rom med unntak tekniske rom og boder.

Innvendig trapp
Trappen blir et viktig element i boligene. På FRØY får du en lekker eiketrapp med flott eikespilevegg. Et pent og tidløst møbel.

Utvendig tak
Det blir lagt sedum på takflatene, som gir grønne tak som er pent å se på, bedrer overvannshåndteringen og det biologiske mangfoldet.

PARKERING OG SPORTSBOD
Det medfølger biloppstillingsplass i carport i felles utvendig anlegg mot nord-vest for husrekke A, B og D.
Alle boligene vil få avsatt plass for sykkelparkering utenfor boligen, i tillegg til felles sykkelparkering under tak på fellesareal.

Det medfølger utvendig sportsbod i tilknytning til boligen. Noen av boligene har bod både i tilknytning til terrasse og i tilknytning til inngangspartiet.

VENTILASJON
Det leveres balansert ventilasjon med varmegjenvinning. Avtrekk fra bad, vaskerom og kjøkken/stue. Ventilasjonsaggregatet plasseres i teknisk rom, eventuelt i eget skap på egnet sted i boligen.

FREMDRIFT
Forventet ferdigstillelse er i løpet av våren 2026.

OMKOSTNINGER:
Dokumentavgift 2,5% av andel tomteverdi som utgjør kr. 127 900,- for denne enheten. Tinglysingsgebyr skjøte p.t. kr. 545,-, tinglysingsgebyr pantedokument p.t. kr. 545,-.
Totale omkostninger kr. 128 990,-.

FORSKUDD:
Ved kontraktsinngåelse betales kr. 100 000,- i forskuddsbetaling til meglers klientkonto. Hovedoppgjør (rest kjøpesum, kjøpsomkostninger og eventuelle tilvalg) innbetales én uke før overtagelse.

LOVGRUNNLAG
Boligene selges iht. bestemmelsene i bustadoppføringslova til forbrukerkjøpere, herunder 5 års garanti iht. lovens §12.

Denne annonsen utgjør ingen fullgod eller uttømmende presentasjon av prosjektet/eiendommen. Det er derfor viktig at interessenter kontakter megler for å få tilsendt komplett salgsdokumentasjon og går nøye gjennom dette før inngivelse av kjøpetilbud.

Ansvarlig megler

Trygve Formo Hermansen

Nærområdet

Annonseinformasjon

FINN-kode410778208
Sist endret12. feb. 2026 09:58
Referanse20-25-0892

Rapporter annonse

Annonsene kan være mangelfulle i forhold til lovpålagt opplysningsplikt. Før bindende avtale inngås oppfordres interessenter til å innhente komplett informasjon fra meglerforetaket, selger eller utleier.