Bildegalleri
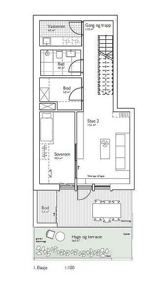
Plantegning 1. etg
Frøy
Frøytunveien 5-11
Prosjektets status
Planlegging
-
Salgsstart
-
Byggestart
2025
Overtakelse
Estimert våren 2026
Nøkkelinfo
- Boligtype
- Rekkehus
- Etasje
- 3
- Soverom
- 4
- Rom
- 5
- Internt bruksareal
- 160 m² (BRA-i)
- Bruksareal
- 162 m²
- Eksternt bruksareal
- 2 m² (BRA-e)
- Balkong/Terrasse
- 18 m² (TBA)
Fasiliteter
Beskrivelse
Townhouse A1 ligger på enden av rekken, går over tre plan med forhage, hage, terrasse og balkong.
2. etasje: Gang med flislagt gulv med varme, skyvedørsgarderobe medfølger. Romslig og delikat kjøkken fra Sigdal inkludert hvitvarepakke. Videre er det en lys og delikat stue med plass til spisestue.
1. etasje: Gang og trapp. Vaskerom med benk, utslagsvask og opplegg for vaskemaskin og tørketrommel. Baderom med dusj, wc og vask. Innvendig bod. 1 soverom. Stue med utgang til terrasse og hage. Redskapsbod på terrassen.
3. etasje: Romslig hovedsoverom, bad, gang, soverom 2 og soverom 3. Balkong på ca. 7 kvm.
Det medfølger 1 biloppstillingsplass i carport i felles utvendig anlegg.
Ansvarlig megler
Trygve Formo Hermansen
Nyttige lenker
Nærområdet
Sem & Johnsen
Annonseinformasjon
| FINN-kode | 410778148 |
|---|---|
| Sist endret | 06. okt. 2025 08:07 |
| Referanse | 20-25-0890 |
Annonsene kan være mangelfulle i forhold til lovpålagt opplysningsplikt. Før bindende avtale inngås oppfordres interessenter til å innhente komplett informasjon fra meglerforetaket, selger eller utleier.