Bildegalleri
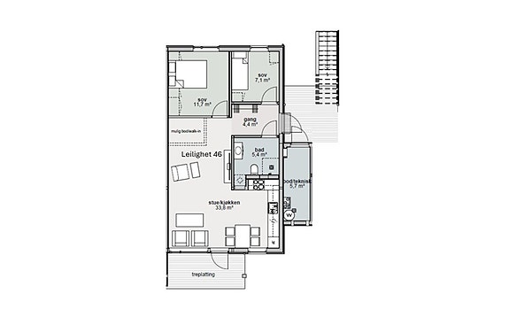
L46
Camp Maura
Leilighet 46, Camp Maura
Prosjektets status
Planlegging
2024
Salgsstart
Sommer 2025
Byggestart
Vinter 2025
Overtakelse
4. kvartal 2026 / 1. kvartal 2027
Nøkkelinfo
- Boligtype
- Leilighet
- Etasje
- 1
- Soverom
- 2
- Rom
- 3
- Internt bruksareal
- 65 m² (BRA-i)
- Bruksareal
- 65 m²
Visning
Beskrivelse
Oppdragsansvarlig
BRUSTAD & PARTNERE AS / Fredrick Jansen
Selger/Utbygger
Hellvik Hus Øst Eiendomsutvikling AS
Betegnelse
Gnr. 145 Bnr. 20 Snr. 10 i Nannestad kommune
Velkommen til Camp Maura!
Velkommen til Camp Maura - Et nytt og spennende boligprosjekt perfekt for unge i etableringsfasen eller eldre som ønsker en enklere hverdag!
Rimelige leiligheter omkranset av flott natur og et eldorado av aktiviteter sommer som vinter. Finn roen og senk skuldrene, alt av nødvendigheter i hverdagen ligger i gangavstand og Gardermoen er kun et kvarter unna.
Prosjektet er planlagt med totalt 74 leiligheter fordelt over flere salgstrinn og har et bredt spekter av leiligheter fra arealeffektive 2-roms, innbydende 3-roms til familievennlige 4-roms.
Leiligheter med størrelse 48 m²- 81 m². Priser fra 2.990.000,- opp til 4.290.000,-.
Salgstrinn 1 er nå til salgs og består av 16 leiligheter fordelt på 2 etasjer.
Leilighetene vil organiseres som et sameie, uten andel fellesgjeld.
Dette er boligprosjektet som setter deg på startstreken: både til livet, til aktiviteter, til reiser samt starten på et nytt bofellesskap i luftige omgivelser. - Verden for dine føtter!
I dette prosjektet tilbys det også forkjøpsrett for BORIs medlemmer ved salgsstart.
Camp Maura utvikles i regi av anerkjente og velrennomerte Hellvik Hus!
Se link til prosjektets hjemmeside med boligvelger - til høyre i annonsen.
Åpen dag - se tilsvarende leilighet!
Det inviteres til åpen dag med visning av tilsvarende leilighet (3-roms) på Kvitre.
Datoer for åpen dag:
- Torsdag 8. januar 2026
Den 8. januar vil vi ha tre visningsenheter klare, blant annet en 3-roms leilighet med oppgradert kjøkken, TV-benk, garderobeskap og interiør - slik at du får se standard og tilvalg i praksis.
I samarbeid med Sigdal Kjøkken skaper vi en hyggelig atmosfære med nystekte boller og enkel servering.
Visningene arrangeres med påmelding, slik at vi vet om du/dere kommer. Meld deg gjerne på for å sikre plass og få oppdatert informasjon i forkant.
Leilighetene i Salgstrinn 1
Praktiske og moderne leiligheter i arkitekttegnede åttemannsboliger. Leilighetene er utformet med smarte og gjennomtenkte planløsninger, og passer for alt fra førstegangskjøpere til barnefamilier og eldre som ønsker en enklere og mer lettstelt bolig.
2-roms leiligheter - 48 og 49 kvm BRA-i
De fire 2-roms leilighetene har en arealeffektiv og funksjonell planløsning, og inneholder:
- Åpen stue-/kjøkkenløsning med godt lysinnslipp
- Stilrent kjøkken fra Sigdal med integrerte hvitevarer
- Romslig soverom
- Smakfullt bad med flislagte overflater og elektrisk gulvvarme
- Praktisk utebod ved inngangspartiet på ca. 5,7 kvm
3-roms leiligheter - 65 kvm BRA-i
De åtte 3-roms leilighetene passer godt for unge, par eller små familier. Leilighetene inneholder:
- Lys og luftig stue med store vindusflater
- Åpen kjøkkenløsning fra Sigdal med integrerte hvitevarer
- To soverom av god størrelse
- Flislagt bad med moderne innredning og gulvvarme
- Utebod plassert ved inngangspartiet på ca. 5,7 kvm
4-roms leiligheter - 81 kvm BRA-i
De fire 4-roms leilighetene er spesielt godt egnet for barnefamilier eller voksne som ønsker god plass og enkel adkomst:
- Alle leilighetene er plassert på enden og får lys fra tre sider
- Stor stue i kombinasjon med praktisk, vinkelformet kjøkken fra Sigdal
- Tre soverom med plass til garderobeløsninger
- Stort bad med fliser på vegg og gulv, gulvvarme og moderne innredning
- Utebod ved inngangspartiet på ca. 5,7 kvm
Leilighetene leveres med et Sigdalkjøkken i et tidløst og minimalistisk design i serien Vidde. Kjøkkenet har slette fronter og laminert benkeplate med nedfelt vaskekum. Hvitevarer som komfyr, platetopp, oppvaskmaskin og kombinert kjøl/frys inngår. Ventilator monteres over kokesonen. Standardleveransen er i fargen grå, men du har mulighet til å velge mellom 4 ulike farger kostnadsfritt.
Badene leveres med flislagte vegger og gulv, samt elektrisk gulvvarme. Innredningen består av moderne servantmøbel fra Linn Bad med heldekkende servant og to skuffer, speil, vegghengt toalett og separat dusjsone med dusjgarnityr og glassvegger i herdet glass.
Leilighetene får private uteplasser i form av balkong eller markterrasse med gode solforhold og utsyn over nærområdet. Leilighetene i 1. etasje får i tillegg privat, seksjonert uteområde. Leilighetene i 2. etasje får ekstra generøs takhøyde i oppholdsrommene, noe som gir en luftig og romslig romfølelse.
Det vil bli etablert et felles carportanlegg med én fast biloppstillingsplass per leilighet. I tillegg får 4-roms leilighetene én ekstra biloppstillingsplass. Det vil også være mulighet for installering av elbillader som tilvalg.
Det er gode muligheter for tilvalg i leilighetene.
Standard
Utdrag fra romskjema og leveransebeskrivelse:
Entre/gang:
Laminatgulv: Pergo Lillehammer Pure Oak
Malt gips på vegg og i himling, farge NCS S0500-N
Dør: Ytterdør EI30/30DB fra Bygg1, Farge NCS S7500-N
Stue/kjøkken:
Laminatgulv: Pergo Lillehammer Pure Oak
Malt gips på vegg og i himling, farge NCS S0500-N
Kjøkkeninnredning:
Type front Vidde fra Sigdal eller tilsvarende, laminat benkeplate. Ventilator i overskap.
Hvitevarer er inkludert i standard leveranse, se komplett kjøkkenoversikt for hver leilighetstype.
1 stk. Ett-greps benkebatteri med kran for oppvaskmaskin inkl. tilkobling av benk med kummer og vannlås som leveres og monteres av andre.
1 stk. Føleledning for vannstoppventil.
Bad:
Fliser av typen Kinetick grey 20x20 på gulv.
Fliser av typen White matt 25x40 på veggflater
Malt gips i himling, farge NCS S0500-N
Dør: Sletten fra Bygg1, Farge NCS S0500-N
Innredning bad:
1 stk. Veggtoalett Porsgrund Pro med veggeramme, hvit trykknapp samt sete
1 stk. Servantkran med kjede og propp
1 stk. Linn Bad Hilde 80 cm baderomsmøbel Hvit Matt m/ 2 skuffer, heldekkende Balder porselensservant og 80 cm speil med sidelys
1 stk. Dusjarmatur med dusjgarnityr
1 stk. Dusjdører 88x88 cm med klart herdet glass
1 stk. Kran og avløp for vaskemaskin
Soverom:
Laminatgulv: Pergo Lillehammer Pure Oak
Malt gips på vegg og i himling, farge NCS S0500-N
Dør: Sletten fra Bygg1, Farge NCS S0500-N
Bod/teknisk:
Gulvbelegg m 50 mm oppbrett
Malt gips på vegg og i himling, farge NCS S0500-N
Dør: Ytterdør EI30/30DB fra Bygg1, Farge NCS S7500-N
Annet:
Alle gulvlister i Pergo sokkellist Lillehammer Pure Oak. Slette lister i farge NCS S0500-N rundt dører og vinduer. Listefritt i tak.
Garderobe:
Ikke en del av standard leveranse. Kan bestilles som tilvalg gjennom kjøkkenleverandør.
Pipe/ovn:
Leveres ikke.
Carport:
Asfaltert oppstillingsplass
Endringer kan forekomme, men funksjonalitet og kvalitet opprettholdes.
Hvorfor kjøpe nytt?
- Leiligheten er i forskriftsmessig stand med 5 års reklamasjonsfrist.
- Det er svært lite vedlikeholdskostnader i nær framtid.
- Det er god tid til å forberede flyttingen og eventuelt salg av egen bolig.
- Mulighet for å sette personlige preg på boligen ved tilvalg.
- Lav dok.avgift (kun beregnet av tomteverdien).
Beliggenhet
Leilighetene blir beliggende i et etablert og populært boligområde i Maura. Bebyggelsen i nærområdet består i det vesentligste av eneboliger, rekke- og småhusbebyggelse. Et rolig og familievennlig område med en rekke fasiliteter i umiddelbar nærhet.
Området Camp Maura vil bestå av moderne leiligheter med et pent opparbeidet fellesområde og friområde rundt. Et naturskjønt område som legger til rette for en fantastisk bo-opplevelse i hjertet av Maura, samtidig som det er kun 15 min kjøring til Oslo Lufthavn Gardermoen og resten av verden!
Det er gangavstand til Maura barneskole som ligger 1,3 km unna. Til ungdomsskolen benyttes skolebuss. Det finnes flere barnehager i nærheten. Den nærmeste heter Bjerke barnehage (900 m) og er en barnehage for barn i alderen 0-6 år.
Det er bussholdeplass kun 200 meter unna, her går det buss i retning Gardermoen to ganger i timen. Bussforbindelser til Oslo for de som pendler. Det er også kun 15 min kjøring til Eidsvoll Verk Stasjon med egen pendlerparkering. Toget i retning av Oslo har 2 avganger i timen, Oslo S (30 min) og Lillestrøm (19 min).
Maura er et populært sentrumsområde i Nannestad, med kort vei til flotte friluftsområder på Nordåsen hele året. Badeplassen Lima i sørenden av Hurdalsjøen har en langgrunn badeplass velegnet for barn. Plassen har toalettbygg. Du kan parkere ved Stensgård kirke. Åslia skisenter 2,5 km unna tilbyr både ski- og snowboard-skole.
I Maura er det tre dagligvarebutikker Rema 1000 Maura (1,7 km) Coop Extra Maura og Kiwi Maura (2,2 km). Rema har i tillegg post i butikk og Kiwi har bank i butikk. Ved Kiwi finnes apotek. Fra eiendommen er det kun 1,5 km til dyrebutikk, Maura legesenter, tannlege og frisør.
I Nannestad sentrum ligger butikksenter med vinmonopol. Det er kun 14 minutter til Råholt med stort, nytt AMFI handlesenter. Til Jessheims storbytilbud kommer man på ca. 20 minutter.
Arbeidsplassene på Gardermoen når man på 15 minutter. Det er en av grunnene til at det er stor etterspørsel etter boliger i nettopp Maura. Her bor man stille og fredelig, med kort vei til alt.
Velkommen til Camp Maura.
Organisering av Uteområde/Parkering/Sportsbod
Vedlagt illustrasjonsplan er retningsgivende for opparbeidelse av prosjektet Camp Maura over eiendommene gnr/bnr 131/208, 145/20 og 145/151, samt senere fradelte parseller av disse. Hellvik Hus forbeholder seg retten til å foreta endringer ved opparbeidelse av eiendommen.
Leilighetene i 1. etasje får et privat, seksjonert uteområde/hageparsell. Arealet vil bli tinglyst som tilleggsdel til seksjonen. Utomhusplan følger i vedlegg til salgsoppgaven.
Det leveres, på det meste av utearealene, gressplen (tilsådd eller ferdigplen). Det leveres felles bod ved lekeplass.
Adkomstvei til boligene leveres asfaltert. Internveier som stier/gangveier leveres gruset.
Det leveres én biloppstillingsplass i felles carportrekke. I tillegg opparbeides det felles biloppstillingsplasser. For 4-roms bolig reserveres det en biloppstillingsplass. Alle biloppstillingsplasser leveres asfaltert.
Parkering vil organiseres som tilleggsdel bygning til hver seksjon iht. seksjonering. I tillegg får 4-roms leiligheter tilleggsareal i grunn for sin ekstra parkering. Se vedlagt utomhusplan hvor det er lagt inn bolignummer både for leilighet og tilhørende parkering.
Hver leilighet har egen sportsbod i tilknytning til inngangsparti.
Enheter med eksklusivt uteareal
- Leilighet 45 har et eksklusivt uteareal på ca. 28 kvm.
- Leilighet 46 har et eksklusivt uteareal på ca. 33 kvm.
- Leilighet 47 har et eksklusivt uteareal på ca. 33 kvm.
- Leilighet 48 har et eksklusivt uteareal på ca. 40 kvm.
- Leilighet 53 har et eksklusivt uteareal på ca. 28 kvm.
- Leilighet 54 har et eksklusivt uteareal på ca. 33 kvm.
- Leilighet 55 har et eksklusivt uteareal på ca. 33 kvm.
- Leilighet 56 har et eksklusivt uteareal på ca. 40 kvm.
Byggemåte
Utdrag hentet fra vedlagt leveransebeskrivelse datert 12.05.2025, og sist revidert 15.10.2025:
Betongarbeid:
Betongarbeidene utføres iht. til tegninger. Alle synlige betongoverflater leveres ubehandlet.
Betonggulv i boliger leveres iht. toleranseklassen for betongarbeid.
Utvendig vegg:
Fabrikkbehandlet kledning med grunning og med ett mellomstrøk i farger som er mest mulig lik det som fremkommer på tegninger. Utlekting, vindtette plater, 198 mm bindings-verk, 200 mm isolasjon, plastfolie og malte gipsplater.
Vindu og balkongdør:
Alle vinduer leveres ferdig behandlet fra fabrikk i mørk grå utførelse, RAL7016. Energiglass med nødvendig beslag. Terrassedør leveres med energiglass og overflatebehandlet som vinduer.
Ytterdører:
Ytterdør leveres tett og i mørk grå utførelse med FG-godkjent låskasse og vrider.
Tak:
Tak dimensjoneres for å tilfredsstille krav til snølast. Papptekking, isolasjon, plastfolie i hht. varmetapsberegning. Takutspring og ved raft og gavler utføres ihht. fasadetegning.
Balkong, terasseplatting:
Balkong i 2. etasje leveres med impregnert terrassebord og rekkverk. I 1. etasje leveres treplatting uten fundament og forankring til bygning.
Blikkenslager:
Takrenner leveres som plastbelagte stålrenner, bordtakbeslag, rennekroker og nedløp leveres i sort utførelse.
Utvendig trapp:
Utvendige trappevanger leveres i trykkimpregnert trevirke med gitterrister i trinn og rekkverk ihht. tegninger.
Teknisk
Utdrag hentet fra vedlagt leveransebeskrivelse datert 12.05.2025, og sist revidert 15.10.2025:
Ventilasjon:
Det leveres balansert ventilasjonsanlegg med egen avtrekkshette på kjøkken. Ventilasjonsanlegget plasseres i sportsbod.
El. installasjon:
Lys- og elektriske punkter i hht. oppsett fra elektriker. Se vedlagt Romskjema elektro.
Brannalarmanlegg og røykvarslere:
En røykvarsler og ett brannslukningsapparat pr enhet.
Ladepunkt for el-bil:
Som standard leveres trekkerør frem til ladepunkt.
Varmekabler/panelovner:
Det leveres varmekabler i gulv på bad, el.punkt for panelovner i øvrige rom.
Rør og sanitærarbeider:
Innvendig utstyr: Iht. gjeldende krav.
Sanitærutstyr leveres i hht. eget oppsett. Rørleveransen er komplett inklusive stikk, bunnledninger og hovedinntak med innvendig stoppekran.
Utvendig: 1 stk. frostfri utekran leveres i fellesbod på lekeplass. 1 stk frostfri utekran leveres for enheter i 1. etg. Plasseres på vegg bak utebod.
Varmtvannsbereder:
Varmtvannsbereder av typen Oslo 200 liter med integrert ekspansjonstank, plasseres i utvendig bod/teknisk rom.
Tinglyste rettigheter og forpliktelser
Kommunen har legalpant som sikkerhet for betaling av kommunale avgifter. Legalpant er pant som følger av loven, og som ikke tinglyses. Legalpant følger derfor eiendommen ved salg. På eiendommen kan det være tinglyst erklæringer som f.eks. rett for kommunen til å vedlikeholde rørsystemer for vann- og kloakk. Disse erklæringene vil følge eiendommen ved salg. Kontakt megler for nærmere informasjon.
Øvrige sameiere har panterett i seksjonen for krav mot sameieren som følge av sameieforholdet, jf. eierseksjonsloven § 31. Pantekravet kan ikke overstige 2G (Folketrygdens grunnbeløp). Sameiet kan vedtektsfeste ytterligere panterett for sameiet. Vedtektsfestet pant tinglyses i seksjonene.
Servitutter / rettigheter
Eiendommen overdras fri for pengeheftelser, med unntak av eventuelle erklæringer, avtaler, servitutter og panteheftelser som fremgår av salgsoppgaven og skal følge med eiendommen ved salg. Kjøpers bank vil få prioritet etter disse.
Tinglyst på 145/20:
1955/990494-1/10 Elektriske kraftlinjer
18.07.1955
Overført fra: 3036-145/25
- Servitutten hefter tilbake til hovedbølet som eiendommen ble fradelt ifra. Det går elektriske kraftlinjer over aktuell eiendom mfl. Kan ses hos megler etter ønske.
1961/3767-1/10 Bestemmelse om veg
18.09.1961
rettighetshaver:Knr:3238 Gnr:145 Bnr:82
Bestemmelse om vannrett
Overført fra: 3036-145/25
- Servitutten gjelder rett for naboeiendommen gnr 145 bnr 82 til adkomstvei frem til hovedveien over aktuell eiendom, samt rett til vann fra hovedbølet. Kan ses hos megler etter ønske.
1962/4589-1/10 Bestemmelse om vannrett
31.10.1962
rettighetshaver:Knr:3238 Gnr:145 Bnr:78
Overført fra: 3036-145/25
- Servitutten gjelder rett for naboeiendommen gnr 145 bnr 78 til vann for sin eiendom over selgers eiendom (aktuell eiendom). Kan ses hos megler etter ønske.
1986/5619-1/10 Best om garasje/parkering
11.06.1986
rettighetshaver:Knr:3238 Gnr:145 Bnr:83
rettighetshaver:Knr:3238 Gnr:145 Bnr:119
Byggetillatelse gitt etter dispensasjon i henhold
til Bygningsloven
Overført fra: 3036-145/25
- Naboeiendommen gnr 145 bnr 83 og 119 har fått lov til å oppføre uthus/garasje nærmere nabogrense enn 4 meter. Kan ses hos megler etter ønske.
2004/5858-1/10 Bestemmelse om veg
07.05.2004
rettighetshaver:Knr:3238 Gnr:145 Bnr:58
- Servitutten gjelder rett for naboeiendommen gnr 145 bnr 58 til veirett over aktuell eiendom. Kan ses hos megler etter ønske.
2009/594924-1/200 Erklæring/avtale
14.08.2009
Rettighetshaver:STATENS VEGVESEN
Org.nr: 971032081
Frisiktsone - Vegetasjonsrydding
Kan bare slettes av Statens vegvesen
- Statens vegvesen har rett til å avvirke og holde fremtidig vegetasjon nede (50 meter strekning), samt utføre eventuelle andre siktforbedrende tiltak på et areal med 10 m bredde, regnet fra vegens veiskulder. Arealet er beliggende langs vegens sørside. Kan ses hos megler etter ønske.
Tinglyst på 131/208:
1852/900027-1/10 Bestemmelse om beiterett
10.01.1852
Overført fra: 3238-131/3
Gjelder denne registerenheten med flere
- Servitutten hefter tilbake til hovedbølet som eiendommen ble fradelt ifra. Anses ikke å ha betydning mht. dagens bruk.
1906/900535-1/10 Bestemmelse om beiterett
22.01.1906
rettighetshaver:Knr:3238 Gnr:131 Bnr:2
Overført fra: 3238-131/3
Gjelder denne registerenheten med flere
- Servitutten hefter tilbake til hovedbølet som eiendommen ble fradelt ifra. Anses ikke å ha betydning mht. dagens bruk.
1906/900536-1/10 Bestemmelse om beiterett
22.01.1906
rettighetshaver:Knr:3238 Gnr:131 Bnr:2
Overført fra: 3238-131/3
Gjelder denne registerenheten med flere
- Servitutten hefter tilbake til hovedbølet som eiendommen ble fradelt ifra. Anses ikke å ha betydning mht. dagens bruk.
1906/900537-1/10 Bestemmelse om gjerde
22.01.1906
Med flere bestemmelser
Overført fra: 3238-131/3
Gjelder denne registerenheten med flere
- Servitutten hefter tilbake til hovedbølet som eiendommen ble fradelt ifra. Anses ikke å ha betydning mht. dagens bruk.
1920/900341-1/10 Bestemmelse om gjerde
06.05.1920
Overført fra: 3238-131/3
Gjelder denne registerenheten med flere
- Servitutten hefter tilbake til hovedbølet som eiendommen ble fradelt ifra. Anses ikke å ha betydning mht. dagens bruk.
1955/990463-1/10 Elektriske kraftlinjer
18.07.1955
Overført fra: 3238-131/3
Gjelder denne registerenheten med flere
- Servitutten hefter tilbake til hovedbølet som eiendommen ble fradelt ifra. Gjelder elektrisk kraftledning fra E-verk Jessheim. Kan ses hos megler etter ønske.
1969/4295-1/10 Rettighet
02.07.1969
Rettighetshaver:Bjerke Idrettslag
Lnr: 1529770
LEIEAVTALE
LEIE-TID: 40 ÅR
ÅRLIG AVGIFT NOK 300
FRA 01 01 1969
EN LYSLØYPE
MED FLERE BESTEMMELSER
Overført fra: 3238-131/3
Gjelder denne registerenheten med flere
- Idrettslaget gis rettighet til å anlegge og drive en lysløype på grunneiers eiendom "Myrhaugmarka". Servitutten hefter tilbake til hovedbølet som eiendommen ble fradelt ifra. Anses ikke å ha betydning mht. dagens bruk. Kan ses hos megler etter ønske.
1975/9612-2/10 Erklæring/avtale
28.11.1975
vedr skytebaneanlegg
Overført fra: 3238-131/3
Gjelder denne registerenheten med flere
- Forsvaret gis bruksrett til skytterlagets skytebaneanlegg. Servitutten hefter tilbake til hovedbølet som eiendommen ble fradelt ifra. Anses ikke å ha betydning mht. dagens bruk. Kan ses hos megler etter ønske.
2001/5674-1/10 Leieavtale
21.05.2001
leietid: 40 År
fra dato: 01.01.2000
leie: NOK 250 Pr. År
Rettighetshaver:Steinsgård Skytterlag
Lnr: 5696684
Bestemmelser om forlengelse
Overført fra: 3238-131/3
Gjelder denne registerenheten med flere
- Servitutten hefter tilbake til hovedbølet som eiendommen ble fradelt ifra 131/3. Anses ikke å ha betydning for aktuell eiendom per dd. Kan ses hos megler etter ønske.
2009/594860-1/200 Erklæring/avtale
14.08.2009
Rettighetshaver:STATENS VEGVESEN
Org.nr: 971032081
Skogrydding - frisiktsone
Kan kun slettes etter samtykke fra Statens vegvesen
Overført fra: 3238-131/3
Gjelder denne registerenheten med flere
- Statens vegvesen har rett til å avvirke og holde fremtidig vegetasjon nede, samt utføre eventuelle andre siktforbedrende tiltak på et areal med 10 m bredde, regnet fra vegens veiskulder. Kan ses hos megler etter ønske.
2010/110171-1/200 Erklæring/avtale
11.02.2010
Rettighetshaver:STATENS VEGVESEN
Org.nr: 974725460
Bestemmelse om ryddebelte.
Kan ikke slettes uten samtykke fra rettighetshaver.
Overført fra: 3238-131/3
Gjelder denne registerenheten med flere
- Statens vegvesen har rett til å avvirke og holde fremtidig vegetasjon nede, samt utføre eventuelle andre siktforbedrende tiltak på et areal med 10 m bredde, regnet fra vegens veiskulder. Kan ses hos megler etter ønske.
Tinglyst på 145/151:
Det er ingen tinglyste servitutter på eiendommen.
Vei / Vann / Avløp
Boligene vil være tilknyttet offentlig/privat vei, vann og avløp.
Ferdigattest eller midl. brukstillatelse
Selger er ansvarlig for at det blir utstedt ferdigattest eller midlertidig brukstillatelse før overtakelse. Manglende ferdigattest er ikke til hinder for overtakelse dersom de gjenstående arbeidene er av en slik karakter, for eksempel knyttet til ferdigstillelse av utomhusarbeider, at kommunen utsteder midlertidig brukstillatelse. I midlertidig brukstillatelse vil det fremgå hvilke arbeider som gjenstår og en frist for ferdigstillelse.
For overtakelse som gjennomføres i vinterhalvåret må det påregnes utstedelse av midlertidig brukstillatelse og ikke ferdigattest ettersom søknadspliktige utomhusarbeider ikke kan gjennomføres før klimatiske forhold gjør det mulig.
Dersom utomhusarbeider/fellesarealer ikke er ferdigstilt ved overtagelsen skal det holdes tilbake et beløp på kr 20.000,- per enhet som sikkerhet for uferdig arbeid. Det presiseres samtidig at det uferdige arealet formelt overtas samtidig med boligen, men at den praktiske gjennomgangen av arbeidet vil skje på et senere tidspunkt og da med styret i sameiet. Det gis i denne anledning fullmakt til styret for frigivelse av det tilbakeholdte beløpet ved ferdigstillelse.
Verdi ved skattefastsetting
Verdien ved skattefastsetting er p.t. ikke fastsatt. Verdien ved skattefastsetting fastsettes av Ligningskontoret etter beregningsmodell som tar hensyn til om boligen er en såkalt "primærbolig" (der boligeieren er folkeregistrert bosatt) eller "sekundærbolig" (alle boliger man eier, men ikke bor fast i). Interessenter oppfordres til å sjekke www.skatteetaten.no eller kontakte ansvarlig megler for nærmere informasjon om verdien ved skattefastsetting.
Reguleringsforhold
Eiendommen er omfattet av Detaljregulering for Haugerud, Maura, vedtatt 15.09.2020 til følgende:
Bebyggelse og anlegg (pbl § 12-5, nr. 1)
- Frittliggende småhusbebyggelse BFS1-3, (1111)
- Konsentrert småhusbebyggelse BKS1-5, (1112)
- Energianlegg BE1-2, (1510)
- Avløpsanlegg BVA, (1542)
- Renovasjonsanlegg BRE1-4, (1550)
- Lekeplass f_BLK1-2, (1610)
Samferdselsanlegg og teknisk infrastruktur (pbl § 12-5, nr. 2)
- Veg f_V (2010)
- Kjøreveg o_SKV1 og f_SKV2 (2011)
- Fortau o_SF (2012)
- Gang-/sykkelveg f_SGS1-2, (2015)
- Annen veggrunn - tekniske anlegg (2018)
- Annen veggrunn - grøntareal (2019)
- Parkeringsplasser f_SPP1-5 (2082)
Grønnstruktur (pbl § 12-5, nr. 3)
- Naturområde GN1-2 (3020)
- Vegetasjonsskjerm GV - GV1 (3060)
Utdrag fra detaljregulering:
4.3 Konsentrert boligbebyggelse
- Delfeltene BKS1-5 tillates bebygd med konsentrert småhusbebyggelse som leilighetsbygg i 2 etasjer.
4.3.1 Grad av utnytting
Tillat bebygd areal skal ikke overstige %BYA=30%.
4.3.2 Takform, gesimshøyder og mønehøyder
Tak tillates utformet som flate tak, pulttak eller saltak. Bebyggelsen kan oppføres med gesimshøyde inntil 8 m og mønehøyde inntil 9 m over gjennomsnittlig planert terreng.
4.3.3 Parkeringskrav
I tillegg til garasje/carport for 1 bil pr. boenhet skal det for hver 2- og 3- roms leilighet avsettes 0,5 biloppstillingsplasser, og for 4- roms leiligheter avsettes 1 biloppstillingsplass. Det skal avsettes 2 sykkelparkeringsplasser pr. boenhet i tilknytning til hvert inngangsparti eller i bod.
Detaljregulering med tilhørende kart og bestemmelser følger vedlagt.
Eiendommen er iht. Kommuneplanen for 2018-2035 avsatt til Boligbebyggelse, Fremtidig, Områdenavn: B9.
Kommuneplanen kan ses hos megler etter ønske.
Beskrivelse av sameiet
- Selger informerer at det trolig vil etableres ett boligsameie for felt BKS4 og BKS5 - bolignumrene 45-74.
- Forretningsfører er Bori BBL.
- Det er forkjøpsrett til Bori sine medlemmer ved salget.
Utdrag fra utkast til vedtekter:
- Prosjektet Camp Maura består av 74 antall boligseksjoner som bygges ut trinnvis, innenfor området regulert i reguleringsplan for Haugerud vedtatt 15.09.2020.
- Det er foreløpig ikke avklart om det blir et eller flere sameier på utbygningstomten.
- Hele utbygningstomten skal driftes i fellesskap av alle sameiene som blir etablert, enten via felles velforening eller ved interne tinglyste avtaler.
- Sameiet kan bli opprettet med tomteteiger pr bygg og tinglyste rettigheter og plikter til fellesareal, eller som egne tomter med gjensidige rettigheter og plikter til fellesareal.
- Utbygger oppretter felles velforening og setter denne i drift.
- Endelig organisering av fellesareal og fellesanlegg er ikke avklart. Utbygger forbeholder seg retten til å endre organiseringsform og etablere et eller flere sameier/borettslag i prosjektet. Antall sameier vil avhenge av salg og fremdrift i prosjektet.
- Alle leilighetene har en utvendig sportsbod og en parkeringsplass i fellesanlegg, tilknyttet sin seksjon.
- Alle seksjoner beliggende i 1. etg har et privat uteområde til sin seksjon.
- Det medfølger en parkeringsplass i carport ved salg, parkeringsplassen kan ikke selges separat fra seksjonen. Plassen kan fritt leies ut.
- Det er tinglyst gjensidig bruk- og adkomstrett for alle fremtidige sameier på utbyggingstomten. Utomhus arealene skal disponeres og driftes enhetlig av sameiene i henhold til tinglyst avtale, jfr. § 9.
Det er pliktig medlemskap i Camp Maura velforening (på området), sameiet vil bli belastet med medlemsavgift etter fordelingsnøkkel fastsatt av velforeningen og velforeningens vedtekter. Velforeningen drifter fellesareal som interne stikkveier, lekeplasser, avfallstasjoner, grøntareal, ol. I tillegg drifter velforeningen utenomhus areal innenfor hvert enkelt sameie, som ikke er tinglyst som tilleggsareal i grunn.
Info mht. velforening for området:
Prosjektet Camp Maura med alle fremtidige sameier har rett til å benytte fellesanlegg, arealefor renovasjon, gjesteparkering, gang- og kjøreveier, leke- og rekreasjonsarealer, lednings- og kabelanlegg, som etter detaljreguleringsplanen for Haugerud med planlD 15-12 vedtatt 15.09.2020,og skal benyttes av eiendommene i fellesskap. Samme prinsipp skal følges for eventuell ytterligere felles infrastruktur, med mindre særskilt avtale blir inngått. Hvert sameie plikter å bære sin forholdsmessige del av kostnadene til drift og vedlikehold av felles infrastruktur i henhold til tinglyst avtale.
Velforeningen skal fellesskap drifte alle fellesareal og fellesanlegg. Dette består i all hovedsak av interne stikkveier, felles utenomhus, lekeplass, mm. Det er tinglyst avtale om felles rettigheter og plikter.
Sameiet er forpliktet, gjennom pliktig tinglyst medlemskap, i velforeningens vedtekter. Endelig organisering av fellesanleggende er ikke avklart. Det er kun ferdigstilte og overleverte seksjoner som betaler medlemskontingent til velforeningen. Medlemskontingenten er en del av felleskostnadene i det enkelte boligsameie.
En sameier eier en andel i eiendommen, med tilknyttet enerett til bruk av sin bruksenhet, jf. eierseksjonsloven § 25.
Ingen kan erverve mer enn to boligseksjoner i et sameie, jf. eierseksjonsloven § 23 første ledd. Dersom et erverv har funnet sted i strid med eierseksjonslovens regler kan Kartverket nekte overskjøting.
Dersom overskjøting blir nektet, er kjøper likevel forpliktet til å gjennomføre handelen med selger, og oppgjør til selger vil finne sted tross manglende overskjøting.
Interessenter oppfordres til å sette seg inn i sameiets vedtekter. Se særlig om vedtekter og husordensregler knyttet til husdyrhold, dugnader, trappevask o.l.
Andre faste løpende kostnader
Felleskostnader er estimert fra kr 2.191,- per mnd. og opp til kr 3.343,- per mnd. p.t. (Se detaljert oversikt for hver enkelt leilighet).
Størrelsen på fellesutgiftene er ikke endelig fastsatt, men stipulerte fellesutgifter skal dekke sameiets ordinære driftsutgifter slik som felles byggforsikring, forretningsførsel, vedlikeholdsfond, grunnpakke for Tv/internett m.m., men avhenger av ytelsene sameiet rekvirerer. Det foreligger p.t. ikke regnskap eller budsjett for sameiet. Budsjett vil bli utarbeidet av selger i samarbeid med forretningsfører. Driftsbudsjett og fellesutgifter vedtas av styret og fremlegges til orientering på sameiets generalforsamling.
Leilighetene er under oppføring og selger har således ikke grunnlag for å svare på strømforbruk.
Kommunale avgifter vil faktureres direkte fra kommunen - Disse er ikke fastsatt ennå da leilighetene er under oppføring. Det gjøres oppmerksom på at det kan forekomme variasjon i avgiftene som følge av forbruk og eventuelle kommunale endringer av gebyr/avgift. Hvis kommunen sender sameiet faktura for kommunale avgifter, vil kostnaden fordeles etter sameiebrøken.
Det er p.t. ikke eiendomsskatt i Nannestad kommune.
Det vil bli etablert en felles velforening for området med pliktig medlemskap for alle seksjonseierne i sameiet. Fremtidig kostnad vil påløpe etter etablering av denne.
Eiendommen vil bli fullverdiforsikret og vil av selgeren bli holdt tilsvarende forsikret frem til overtakelsen, jfr. buofl. § 13 siste ledd. Forsikringen gjelder også materialer som er tilført eiendommen. Selgeren vil for sameiets regning besørge bygningsforsikring (skadeforsikring) fra og med første overtakelse. Kjøperen må selv sørge for forsikring av eget innbo og løsøre.
Endringer i lånevilkår, herunder renteendringer, vil kunne medføre at månedlige fellesutgifter endres. På samme måte vil vedlikeholdsarbeider og oppgradering av bygning kunne medføre økte fellesutgifter.
Sikringsordning
Sameiet har ikke avtale om sikringsordning, men har tinglyst pantekrav i andelen.
Utdrag fra vedtektene:
5-2 Panterett for seksjonseiernes forpliktelse
De andre seksjonseierne har panterett i seksjonen for krav mot sameieren som følger av sameieforholdet. Pantekravet kan ikke overstige et beløp som for hver bruksenhet svarer til 2 ganger folketrygdens grunnbeløp på tidspunktet da tvangsdekning besluttes gjennomført.
Oppstartskapital
Det gjøres oppmerksom på at forretningsfører vil innkreve innbetaling av oppstartskapital for sameiet pålydende kr. 7.000,-, samt innbetaling for etablering av sameiets vedlikeholdsfond - Beisetillegg pålydende kr 5.000,-.
Oppgjør
Kjøpesum med tillegg av omkostninger skal være disponibelt på meglers klientkonto innen overtagelse. Normalt innebærer dette at fullt oppgjør må være innbetalt på meglers klientkonto senest to virkedager før avtalt overtagelsesdato.
Eventuelle vilkår knyttet til innbetalingen, eksempelvis pantedokument som skal tinglyses til fordel for kjøpers bank, må være megler i hende i god tid før overtagelse kan finne sted.
Betaling for ev. endrings- og/eller tilleggsarbeider bestilt gjennom selger, faktureres direkte fra selger når vedkommende endrings- og/eller tilleggsarbeid er utført. Dersom forfall på faktura er forut for overtakelse, må selger stille garanti i henhold til bustadoppføringslova § 47.
Før noen del av kjøpesum blir utbetalt selger må hjemmel til leiligheten være overført kjøper, jf. bustadoppføringslova §46.
Det skal ikke innbetales noe før garantier foreligger.
Forsinkes betaling med mer enn 30 dager for avtalte innbetaling, har selger rett til å heve kjøpet og foreta dekningssalg. Selger vil holde kjøper ansvarlig for selgers eventuelle økonomiske tap som følge av kjøpers mislighold. Selger har rett til dekning av sitt tilgodehavende i kjøpers eventuelle innbetalinger, herunder også for renter og andre omkostninger som påløper på grunn av kjøpers mislighold.
Finansiering
Kontakt megler for avklaring av finansielle forhold, herunder lån til kjøp av eiendom. Privatmegleren har avtale med Nordea om formidling av lån og andre finansielle tjenester. Privatmegleren mottar godtgjørelse for dette.
Forbehold knyttet til prosjektet
Selger tar forbehold om at insekter/smådyr som maur og skjeggkre/sølvkre kan forekomme i leiligheten, og tar ikke ansvar for dette.
Kjøper har rett til å avbestille leveransen før overtakelse har funnet sted. Avbestilling før bygging er besluttet igangsatt vil medføre et avbestillingsgebyr på 10 % av kontraktssum og endringsavtaler.
Ved avbestilling etter at bygging er igangsatt vil selger ha krav på full erstatning for sitt økonomiske tap i henhold til bustadoppføringslova kapittel VI.
Kjøper kan søke om å transportere sine rettigheter og plikter til en ny kjøper, dog senest 1 mnd før overtagelse. Transporten krever samtykke fra selger, og selger kan nekte overdragelse på fritt grunnlag. Transportgebyret utgjør kr. 50.000 og betales av opprinnelig kjøper. Utgifter til eventuell megler/resalg/dekningssalg kommer i tillegg. Opprinnelig kjøper er ikke frigitt medansvar før kjøper 2 har betalt inn fullt oppgjør inkludert endringsavtaler ved overtagelse.
Når det gjelder forbehold knyttet til selve gjennomføringen av prosjektet (kvaliteter, utforming m.m.), vises det til leveransebeskrivelsen i prospektet.
Prosjektet er per i dag ikke detaljprosjektert. Alle opplysninger om leilighetene og prosjektet for øvrig er derfor gitt med forbehold om rett til endringer som er hensiktsmessige og nødvendige i forbindelse med nærmere detaljering av prosjektet og leilighetene, herunder som følge av pålegg fra myndighetene eller tiltak for å tilfredsstille aktuelle forskriftskrav. Generelt står utbygger fritt til å velge løsninger i den grad det ikke forringer standarden på prosjektet.
Selger har videre rett til, uten at kjøperen kan kreve endring i pris, å foreta mindre endringer i oppgitte spesifikasjoner, produkter og beskrivelser som anses hensiktsmessige og/eller nødvendige, og som ikke forringer prosjektets eller leilighetenes kvalitet og funksjon i vesentlig grad.
Selger forbeholder seg også retten til å bestemme endelig utforming av utomhusarealer, fellesarealer og materialvalg i og på bygningene. Det presiseres særskilt at salgsprospektet ikke er bindende for detaljutforming og farger av leilighetene eller prosjektet for øvrig. Opplysninger gitt i salgsprospektet kan fravikes dersom selgeren anser det nødvendig eller ønskelig, men endringene skal ikke ha innvirkning på forutsatt standard. Det gjøres oppmerksom på at perspektiver, utomhusplan, plantegninger og bilder i prospektet er av illustrativ karakter og inneholder derfor detaljer som farger, innredninger, møblering, dør- og vindusutforming/inndeling, beplantning og arkitektoniske detaljer m.v. som ikke inngår i leveransen. Utstyr/standard som leveres fremgår av leveransebeskrivelsen og romskjema i prospektet.
På de enkelte plantegningene/illustrasjonene er det vist forslag til plassering av møbler, utstyr og hvitevarer. Det samme gjelder garderobeinnredning på soverom, vaskemaskin på bad og stiplede løsninger. Forslagene er kun av illustrativ karakter og ment som eksempler.
Den foreløpige utomhusplanen er kun ment som en illustrasjon av standard og funksjoner. Det ferdige produkt vil kunne avvike fra illustrasjonen uten at dette gir kjøper rett til å kreve prisavslag. Det kan forekomme målestokkavvik ved trykking av salgsmaterialet, og prospektet må derfor ikke brukes for nøyaktig måltaking. Det tas forbehold om at sjakter og føringsveier for VVS-installasjoner kan bli endret.
Dersom det er motstrid mellom romskjema, leveransebeskrivelse og tegninger, skal gjeldende leveranse følge forannevnte rekkefølge. For øvrig gjelder yngre bestemmelser foran eldre, spesielle bestemmelser foran generelle, og bestemmelser utarbeidet særskilt for denne avtale foran standardiserte bestemmelser.
Selger tar forbehold om salg av 50% av enhetene for salgstrinn 1 BKS4 og salgstrinn 2 BKS5 (totalt 30 enheter) og godkjent igangsettingstillatelse fra Nannestad kommune innen 30.01.2026. Det tas forbehold om evt. pålegg og endringer i forbindelse med godkjenning av igangsettelsestillatelse.
Byggetid - antatt tidspunkt for overtagelse
Forventet fysisk oppstart av grunnarbeider for byggetrinn 1 er i løpet av 1-2 kvartal 2026. Byggetiden (per byggetrinn) er forventet å være cirka 12 måneder fra fysisk oppstart av grunnarbeider på det enkelte delfelt, men dette tidspunktet er foreløpig og ikke bindende og utløser ingen dagmulkter.
En senere igangsetting og/eller en lengre byggetid enn forventet kan medføre en senere overtakelse. Ferdigstillelse av utomhusområder tilknyttet byggene, og felles utomhusarealer for Felt BKS1-5 for øvrig, vil kunne bli utført etter overtakelse, blant annet avhengig av årstiden.
Etter at selgers forbehold er bortfalt skal selger skriftlig meddele til kjøper dagmulktsbelagt ferdigstillelsesdato. Selger skal med minst tre måneders varsel angi overtagelsesmåneden til kjøper, innen den første måneden for tidligere varslet intervall.
Selger kan kreve overtakelse inntil fem måneder før den opprinnelige ferdigstillelsesdato. Selger skal i så fall skriftlig varsle om dette minimum to måneder før den nye overtakelsesdatoen. Ved forsinkelse beregnes det dagmulkt fra den nye overtakelsesdatoen.
Dersom det er innkalt til overtagelsesforretning, men overlevering ikke kan skje til avtalt tid (dagmulksutløsende fristoversittelse), kan selger kalle inn til overtagelsesforretning med syv dagers varsel, jf. buofl. § 15.
Endringer i fremdrift pga. kjøpers endrings- eller tilleggsbestilling skal varsles kjøperen umiddelbart.
Videresalg og endring i eierskap/navneendring
Kjøpekontrakten gjelder individuelt for kjøper. Transport av kontraktsposisjon før overtakelse krever selgers samtykke og godkjenning av ny kjøper. Samtykke kan ikke nektes uten saklig grunn, men selger kan stille betingelser for et eventuelt samtykke. Ved selgers eventuelle skriftlige samtykke påløper et gebyr på kr 50.000 inkl. mva. Ny kjøper trer inn i de samme rettigheter og forpliktelser som følger av denne kjøpekontrakt, og vil være bundet av eventuelle bestillinger av tilvalg og endringer.
Det forutsettes at seksjonen registreres i grunnboken i kjøpers navn i henhold til bud og kjøpekontrakten. Dersom kjøper før overtakelse ønsker å endre hjemmelsforhold internt i egen familie, herunder ektefelle/samboer, sønn/datter, mor/far, søster/bror (dvs. annen tinglysing av hjemmel enn hva som fremkommer av akseptert bud og kjøpekontrakt), vil det påløpe et gebyr til megler på kr 15.000,- inkl. mva for endring av hjemmelsforhold. Eventuell endring krever selgers samtykke.
Annen nyttig informasjon
Leveranse og utførelse er basert på TEK 17, byggteknisk forskrift. gjeldende fra 15.09.2017.
Kjøper er oppfordret til, og forpliktet til, å sette seg inn i de drift- og vedlikeholdsoppgaver som følger med som eier av boligen og tilhørende utomhusarealer (herunder all FDV-informasjon, forvaltning, drift og vedlikehold), og de. FDV til boligkjøpere leveres på boligmappa.no - FDV for utomhus og fellesanlegg leveres til boligsameie.
Prospekt som er utarbeidet i forbindelse med salg av boligen er kun ment som en illustrasjon. Alle illustrasjoner, tegninger og foto er kun ment å gi inntrykk av ferdig bebyggelse, og er ikke bindende for utformingen av den endelige bebyggelsen. Det kan således inneholde elementer som ikke inngår i utbyggers leveranse, både når det gjelder utvendige forhold og innredning.
Det tas forbehold om trykkfeil samt myndighetenes endringer på gjeldende regler og forskrifter.
Utstyr og innredning som er vist med stiplet strek på tegningene er ment som forslag, eller som angivelse av plassering, og er ikke medregnet. Det samme gjelder fremlegg av vann, avløp, strøm o.l. til stiplet utstyr, og utstyr i rom som etter kontrakten, ikke skal innredes. Vegger som i sin helhet ikke har skravur på tegningen, eller som er vist med stiplet strek, er ment som forslag, og er ikke medregnet.
Alle arealer som er oppgitt i forbindelse med markedsføringen av prosjektet angis som BRA-i og BRA-e som tilsvarer BRA.
BRA-i (internt bruksareal) er areal innenfor boenhetens omsluttende vegger og BRA-e (eksternt bruksareal) er rom som ligger utenfor boenheten, men som tilhører denne. BRA-i og BRA-e er å betrakte som ca. areal. Kjøper har ingen krav mot selger dersom arealet skulle vise seg å være inntil 5% mindre/større enn markedsført areal.
Kjøper gjøres særlig oppmerksom på at det i nyoppførte boliger forventes i noen grad svinn og krymping av materialer. Dette kan få konsekvenser som f.eks. svinnriss i mur (inn- og utvendig), mindre riss i tapet og maling, planhet i gulv, hjørner og sammenføyninger, alt som er følge av krymping av trevirke etc. Særlig listefrie løsninger i overganger mellom ulike flater, som for eksempel mellom vegg og himling eller rundt åpninger, kan medføre synlige riss eller sprekker.
Listefrie løsninger kan gi forhøyninger som kan komme utenfor planhetstoleransen for flaten omkring. Selger er ikke ansvarlig for slike forhold.
All informasjon er gitt med forbehold om rett for utbygger til å foreta mindre endringer. Det må påregnes mindre justeringer i forbindelse med endelig prosjektering og opparbeidelse av eiendommen. Nedforinger, dragere, søyler og innkassinger i himling må påregnes.
Utbygger har rett til å endre valg av leverandører, uten at dette gir rett til endring av avtalt pris.
Med hvitmalt menes den fargekode som anses som standard hvit, hos leverandør (Klassisk hvit NSC S 0500-N). Ferdigstillelse av utearealer kan avhenge av vær og årstid.
Boligen leveres byggvasket, dvs.at kjøper selv må gå over og vaske/tørke overflater for støv etc.
Adgang til utleie
Bolig i eierseksjonssameie kan som hovedregel fritt leies ut. Det kan imidlertid følge av sameiets vedtekter at leietager skal godkjennes av styret, jf. eierseksjonsloven § 24 tredje ledd. Styret må ha "saklig grunn" for ikke å godkjenne leietager.
Utdrag fra vedtektene:
2-1 Rettslig disposisjonsrett
(1) Seksjonseieren disponerer fritt over egen seksjon med de begrensninger som følger av sameieforholdet og eierseksjonsloven. Seksjonseieren kan fritt selge, pantsette og leie ut sin egen seksjon.
(2) Sameiets styre skal underrettes skriftlig om alle overdragelser og leieforhold. Ved eierskifte betales et eierskiftegebyr til forretningsfører for sameiet. En sameier blir fullt ansvarlig for leietakers handlinger eller unnlatelser eller andre forhold til sameiet.
(3) Ingen, ei heller juridiske personer, kan erverve mer enn 2 seksjoner i sameiet, med unntak i hht. Eierseksjonsloven § 24.
Konsesjon / Odel
Avhengig av endelig organisering av fellesområdene vil det kunne kreves egenerklæring for konsesjonsfrihet.
Sikkerhetsstillelse
Alle eiendomsmeglingsforetak har lovpålagt forsikring av klientmidler begrenset oppad til kr 45 mill. Enkeltsaker er forsikret inntil kr 15 mill. Dersom kjøpers låneinstitusjon krever tilleggsforsikring ved omsetning over 15 millioner, må kjøper selv eller dennes låneinstitusjon dekke utgiftene forbundet med dette.
Tilvalg og endringer
Kjøpere får anledning til å sette sitt personlige preg på leiligheten gjennom tilvalg. Kjøper vil få anledning til å gjøre tilvalg i henhold til prosjektets tilvalgsskjema mot tillegg i pris. Oversikt over tilvalg, hvilke kostnader som vil påløpe og frist for beslutning vil bli oversendt etter at arbeidene er igangsatt.
Endringer kan ikke gjennomføres dersom det gir forsinkelser i prosjektet. Kjøper kan heller ikke kreve endringer som utgjør mer enn 15 % av avtalt kjøpesum. Det vises også til bustadoppføringslova § 9.
Etter igangsetting vil det bli satt frister for tilvalg og endringer. Fristene som oppgis er endelige, og kjøper er selv ansvarlig for å iverksette bestillinger innenfor de gitte frister. Oversittes fristene vil leiligheten bli levert i henhold til prosjektets kvalitetsbeskrivelse og standard leveranse.
Tilvalg og endringer avtales mellom kjøper og prosjektets kunde - underleverandør. Fakturering av tilvalg og endringer skjer etter at tilvalgsprosessen er avsluttet, og skal være innbetalt på meglers klientkonto senest to virkedager før avtalt overtagelsesdato.. Selger kan kreve at kjøper stiller sikkerhet for betaling av tilvalg og endringsarbeider.
Forkjøpsrett
I dette prosjektet tilbys det forkjøpsrett for BORIs medlemmer ved salgsstart.
Solgt ihht bustadoppføringsloven
Boligene selges i henhold til Bustadoppføringslova som regulerer kjøpers (forbrukers) rettigheter og plikter ved avtale om oppføring av bolig og kjøp av fast eiendom der bygningen ikke er fullført når avtalen inngås. Ved salg til aksjeselskap legges Avhendingslovens bestemmelser til grunn. For øvrig gjelder Lov om eierseksjoner for eierseksjonssameiet og driften av dette.
Garantier
Det stilles garantier i henhold til Bustadoppføringslovas bestemmelser. Garanti etter § 12 vil bli stilt i forbindelse med avtaleinngåelse.
Selger skal stille garanti straks etter at forbehold mht. antall salg og igangsettingstillatelse er oppfylt og under enhver omstendighet innen byggearbeidene starter.
Garantien skal være pålydende 3% av kjøpesummen i byggetiden og 5% i 5 år etter overlevering av boligene til kjøper. Garanti etter § 47 forutsettes stilt om selger ønsker utbetalt forskudd/delinnbetaling/sluttoppgjør før hjemmelsovergang. Eventuelle påkrevde endringer av garantier ved eventuelle videresalg/transporter utføres ikke og bekostes ikke av selger.
Forsikring
Frem til overtagelse vil eiendommen være forsikret av selger. Etter overtagelse vil eiendommen forsikres gjennom sameiets fellesforsikring. Kjøper må selv besørge innboforsikring og forsikring av eventuelle særskilte påkostninger.
Budgiving
Boligene selges til fastpris.
Alle bud/kjøpetilbud på eiendommen skal være skriftlig og sendes meglerforetaket pr. fax, mail, sms eller via vår "gi bud"-knapp på våre nettsider. Knappen finner du også på Privatmeglerens hjemmeside for prosjektet, se på den enkelte bolig.
Bud/kjøpetilbud må ikke ha kortere akseptfrist enn til kl. 12.00 første virkedag etter siste annonserte visning. Lørdag regnes ikke som virkedag. Bud/kjøpetilbud med kortere frist enn dette kan ikke formidles av megler. Nærmere info om budgiving finner du på egen side sammen med kjøpetilbud/budskjema.
Som budgiver hos Privatmegleren kan du kreve budjournal fremlagt så snart handel er gjennomført.
Innhold i budjournal er lovregulert, og innebærer at budgivere må akseptere at opplysninger om budet kan bli fremlagt for selger, kjøper og øvrige budgivere. Budgiver som ikke blir kjøper, kan kreve kopi av anonymisert budjournal.
Lov om hvitvasking
Megler er underlagt lov om hvitvasking som innebærer plikt til å melde ifra til Økokrim om mistenkelige transaksjoner
Meglers vederlag og utlegg
Meglers vederlag utgjør kr 35 000 eks. mva. pr enhet. Utlegg dekkes av selger og består bl.a. av innhenting av opplysninger fra kommune/offentlige instanser, markedsføring, tinglysingskostnader, pantattester, tinglyste servitutter/erklæringer, m.m.
Nyttige lenker
Nærområdet

PrivatMegleren Brustad & Partnere
Hellvik Hus Øst Eiendomsutvikling AS
Utbygger
Annonseinformasjon
| FINN-kode | 410775864 |
|---|---|
| Sist endret | 06. jan. 2026 09:20 |
| Referanse | 121250133 |
Annonsene kan være mangelfulle i forhold til lovpålagt opplysningsplikt. Før bindende avtale inngås oppfordres interessenter til å innhente komplett informasjon fra meglerforetaket, selger eller utleier.