Bildegalleri

B1-A-0502.jpg

Lillestrøm

Timbre

Timbre - Stor 2-roms med god planløsning og sydvendt balkong

Prisantydning5 950 000 kr
Totalpris
5 973 490 kr
Omkostninger
23 490 kr
Felleskost/mnd.
3 298 kr
  • Planlegging

    Meld interesse

  • Salgsstart

    Salget er i gang!

  • Byggestart

    Estimert 2. halvår 2025

  • Overtakelse

    Estimert 2. kvartal 2028

Nøkkelinfo

Boligtype
Leilighet
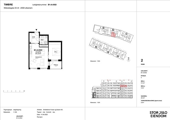
Etasje
5
Soverom
1
Rom
2
Internt bruksareal
52 m² (BRA-i)
Bruksareal
57 m²
Eksternt bruksareal
5 m² (BRA-e)
Balkong/Terrasse
5 m² (TBA)

Les mer om bruksareal her

Fasiliteter

Balkong/Terrasse
Bredbåndstilknytning
Garasje/P-plass
Heis
Kabel-TV

Visning

Ta kontakt med megler for å booke digital visning via Teams eller på vårt visningssenter i Solheimgata 1.
Visningspåmelding

Beskrivelse

Entré med god plass til garderobeløsning og inngang til baderom, samt videre inn i åpen kjøkken-/stueløsning. Her har du naturlige møbleringssoner og utgang til sydvendt balkong med utsikt mot Kvartalshagen. Romslig soverom med avsatt plass til garderobeløsning. Leilighetens baderom har dusj, wc, servant med underskap, samt opplegg for vaskemaskin og tørketrommel.

Dette er en av mange leiligheter som er for salg nå. For å se flere leiligheter klikk på fanen prosjektets hjemmeside.

Areal og Innhold

BRA-i: 51,5 kvm BRA-e:5 kvm TBA: 5 kvm
BRA-i: 5.etasje: Entré, baderom, stue med åpen kjøkkenløsning og soverom.

Arealbeskrivelse; De oppgitte arealer er hentet fra opprinnelige plantegninger fra utbygger. Vedlagte plantegninger er ikke målbare. Arealet er beregnet ut fra Norsk standard NS 3940:2023. BRA-i: Internt arealet innenfor boligens omsluttende vegger, inkludert sjakt. BRA-e: Eksternt areal som boligen har eksklusiv bruksrett til, men som ikke ligger i boligen, f.eks. kjellerbod. BRA-b: Areal for innglasset balkong med veggareal. Total BRA = Summen av BRA-i, BRA-e og BRA-b. TBA er areal på terrasse og balkong. Arealet oppgis ved salg, men inngår ikke i BRA. Oppgitt romareal er netto romareal. De oppgitte arealer er å betrakte som cirka-arealer. Partene har ingen krav mot hverandre dersom arealet skulle vise seg å være 5 % mindre / større enn det oppgitte areal

Ansvarlig megler

Lars Petter Hansrud

Nærområdet

Annonseinformasjon

FINN-kode410756759
Sist endret16. okt. 2025 22:21
ReferanseRCOPS1.25403

Rapporter annonse

Annonsene kan være mangelfulle i forhold til lovpålagt opplysningsplikt. Før bindende avtale inngås oppfordres interessenter til å innhente komplett informasjon fra meglerforetaket, selger eller utleier.