Bildegalleri

objpict_663112885735476_0.jpg

Inaktiv

Solfaret

Nord-Ladderudvegen 85C

Prisantydning5 900 000 kr
Totalpris
5 960 959 kr
Omkostninger
30 475 kr
Fellesgjeld
30 484 kr
Felleskost/mnd.
4 225 kr
  • Planlegging

    -

  • Salgsstart

    Salget er i gang

  • Byggestart

    Bygging er i gang

  • Overtakelse

    Etter avtale ved salg

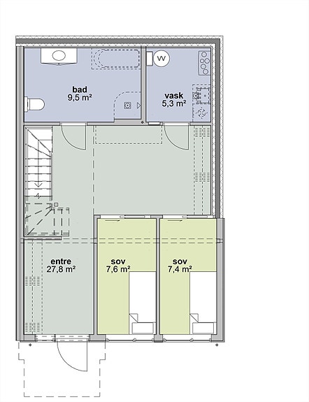
Nøkkelinfo

Boligtype
Rekkehus
Etasje
3
Soverom
5
Rom
7
Internt bruksareal
169 m² (BRA-i)
Bruksareal
169 m²

Les mer om bruksareal her

Fasiliteter

Balkong/Terrasse
Garasje/P-plass
Peis/Ildsted

Visning

Ta kontakt for å avtale visning.Visningspåmelding

Beskrivelse

Omkostninger

Dokumentavgift til staten (2,5% av tomteverdi kr. 925 000,-) 23 125,-
Oppstartskapital til sameiet 6 000,-
Tinglysningsgebyr for skjøte 545,-
Tinglysningsgebyr pantobligasjon pr. stk. 545,-
Pantattest 260,-
Sum omkostninger 30 475,-

Regnestykket forutsetter at det kun tinglyses ett pantedokument og at eiendommen selges til prisantydning. Det tas forbehold om endringer i offentlige avgifter/gebyrer.

Nærområdet

Annonseinformasjon

FINN-kode410104108
Sist endret15. okt. 2025 14:02
Referanse1206250108

Rapporter annonse

Annonsene kan være mangelfulle i forhold til lovpålagt opplysningsplikt. Før bindende avtale inngås oppfordres interessenter til å innhente komplett informasjon fra meglerforetaket, selger eller utleier.