Bildegalleri
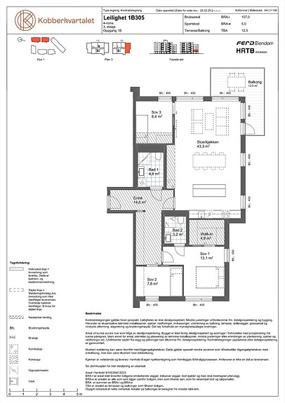
1B305
Kobberkvartalet Salgstrinn 2 - Hus 1
Bergerveien 12
Prisantydning8 800 000 kr
Prosjektets status
Planlegging
våren/sommeren 2025
Salgsstart
mai 2025
Byggestart
Vedtatt - tomten klargjøres nå
Overtakelse
Antatt ferdigstillelse 2028
Nøkkelinfo
- Boligtype
- Leilighet
- Etasje
- 3
- Soverom
- 3
- Rom
- 4
- Internt bruksareal
- 107 m² (BRA-i)
- Bruksareal
- 112 m²
- Eksternt bruksareal
- 5 m² (BRA-e)
- Balkong/Terrasse
- 13 m² (TBA)
Fasiliteter
Balkong/Terrasse
Garasje/P-plass
Heis
Utsikt
Vaktmester-/vektertjeneste
Turterreng
Beskrivelse
Ansvarlig megler
Finn Bragnes
NB: Knappen for å vise hele beskrivelsen har kun en visuell effekt.
NB: Knappen for å vise hele beskrivelsen har kun en visuell effekt.
Nyttige lenker
Nærområdet
Sem & Johnsen
Boliger utenom det vanlige
Ferd Eiendom
Utbygger
Annonseinformasjon
| FINN-kode | 409967806 |
|---|---|
| Sist endret | 14. jan. 2026 11:57 |
| Referanse | 20-25-0624 |
Annonsene kan være mangelfulle i forhold til lovpålagt opplysningsplikt. Før bindende avtale inngås oppfordres interessenter til å innhente komplett informasjon fra meglerforetaket, selger eller utleier.