Bildegalleri
Leilighet H0203
Holtet Hage
Holtet Hage - Lnr 203
Prosjektets status
Planlegging
-
Salgsstart
-
Byggestart
-
Overtakelse
-
Nøkkelinfo
- Boligtype
- Leilighet
- Etasje
- 2
- Soverom
- 3
- Rom
- 4
- Internt bruksareal
- 115 m² (BRA-i)
- Bruksareal
- 126 m²
- Eksternt bruksareal
- 10 m² (BRA-e)
- Balkong/Terrasse
- 14 m² (TBA)
Fasiliteter
Beskrivelse
Oppdragsnummer
38-25-0316
Selger/Utbygger
Opsahl Bolig AS
Eiendomstype
Leilighet
Eierform
Selveier
Betegnelse
Bruksenhetsnummer: 203
Etasje
2
Innhold
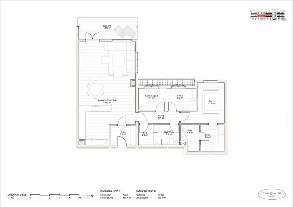
LEILIGHET 203
4-roms med BRA på 126 / BRA-i 115 / BRA-e 10,5 / TBA 14 kvm i 2. etasje.
Planløsning: Entré, gang, to bad (hvorav ett kombinert med vaskerom), omkledningsrom, bod, tre soverom (hvorav ett kan brukes som kontor) samt stue/kjøkken/spisestue i åpen løsning.
Medfølger: Kjellerbod på 10 kvm og balkong på 14 kvm.
BRA er avrundet til nærmeste hele tall.
Parkering / Garasje
Mulighet for kjøp av garasjeplass.
Budgiving
Boligen selges til fastpris.
Alle bud/kjøpetilbud på eiendommen skal være skriftlig og sendes meglerforetaket pr. fax, mail, sms eller via vår "gi bud"-knapp på våre nettsider. Knappen finner du også på Privatmeglerens hjemmeside for prosjektet, se på den enkelte bolig.
Bud/kjøpetilbud må ikke ha kortere akseptfrist enn til kl. 12.00 første virkedag etter siste annonserte visning. Lørdag regnes ikke som virkedag. Bud/kjøpetilbud med kortere frist enn dette kan ikke formidles av megler. Nærmere info om budgiving finner du på egen side sammen med kjøpetilbud/budskjema.
Som budgiver hos Privatmegleren kan du kreve budjournal fremlagt så snart handel er gjennomført.
Innhold i budjournal er lovregulert, og innebærer at budgivere må akseptere at opplysninger om budet kan bli fremlagt for selger, kjøper og øvrige budgivere. Budgiver som ikke blir kjøper, kan kreve kopi av anonymisert budjournal.
Lov om hvitvasking
Megler er underlagt lov om hvitvasking som innebærer plikt til å melde ifra til Økokrim om mistenkelige transaksjoner
Nyttige lenker
Nærområdet

PrivatMegleren Panorama
Annonseinformasjon
| FINN-kode | 409946532 |
|---|---|
| Sist endret | 28. apr. 2026 08:50 |
| Referanse | 38250316 |
Annonsene kan være mangelfulle i forhold til lovpålagt opplysningsplikt. Før bindende avtale inngås oppfordres interessenter til å innhente komplett informasjon fra meglerforetaket, selger eller utleier.