Bildegalleri
A71-106 L-106.jpg
Inaktiv
Gimsøy
Skobigaarden
Skobi Hjørne
Prisantydning2 310 000 kr
Prosjektets status
Planlegging
2024
Salgsstart
Mai 2025
Byggestart
Vinter 2026
Overtakelse
2027
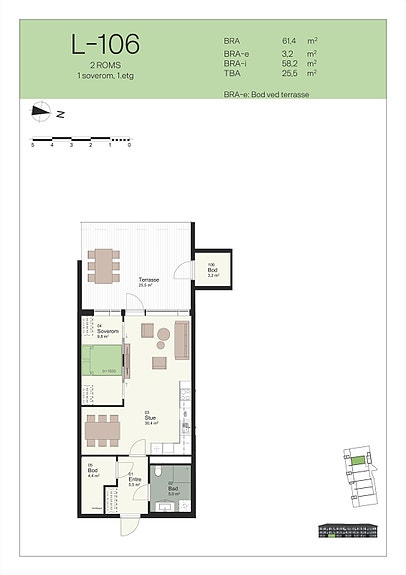
Nøkkelinfo
- Boligtype
- Leilighet
- Etasje
- 1
- Soverom
- 1
- Rom
- 2
- Bruksareal
- 61 m²
Fasiliteter
Balkong/Terrasse
Garasje/P-plass
Heis
Utsikt
Beskrivelse
Ansvarlig megler
Jørgen Eilev Thorkildsen
NB: Knappen for å vise hele beskrivelsen har kun en visuell effekt.
NB: Knappen for å vise hele beskrivelsen har kun en visuell effekt.
Nærområdet
EiendomsMegler 1 Telemark avd. Nybygg
Annonseinformasjon
| FINN-kode | 409912705 |
|---|---|
| Sist endret | 28. mai 2025 09:31 |
| Referanse | 1415250019 |
Annonsene kan være mangelfulle i forhold til lovpålagt opplysningsplikt. Før bindende avtale inngås oppfordres interessenter til å innhente komplett informasjon fra meglerforetaket, selger eller utleier.