Bildegalleri

A71-105 L-105.jpg

Inaktiv
Gimsøy

Skobigaarden

Skobi Hjørne

Prisantydning2 400 000 kr
Totalpris
4 011 365 kr
Omkostninger
11 365 kr
Fellesgjeld
1 600 000 kr
Felleskost/mnd.
10 264 kr
  • Planlegging

    2024

  • Salgsstart

    Mai 2025

  • Byggestart

    Vinter 2026

  • Overtakelse

    2027

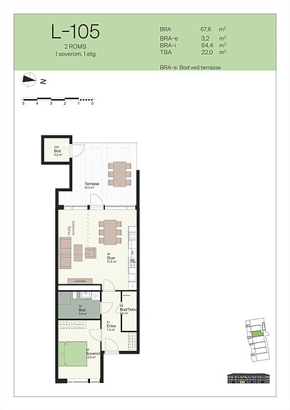
Nøkkelinfo

Boligtype
Leilighet
Etasje
1
Soverom
1
Rom
2
Bruksareal
68 m²

Les mer om bruksareal her

Fasiliteter

Balkong/Terrasse
Garasje/P-plass
Heis
Utsikt

Visning

Velkommen til visning på tomten.
Visningspåmelding

Beskrivelse

Ansvarlig megler

Jørgen Eilev Thorkildsen

Nærområdet

Annonseinformasjon

FINN-kode409912704
Sist endret28. mai 2025 09:31
Referanse1415250018

Rapporter annonse

Annonsene kan være mangelfulle i forhold til lovpålagt opplysningsplikt. Før bindende avtale inngås oppfordres interessenter til å innhente komplett informasjon fra meglerforetaket, selger eller utleier.