Bildegalleri

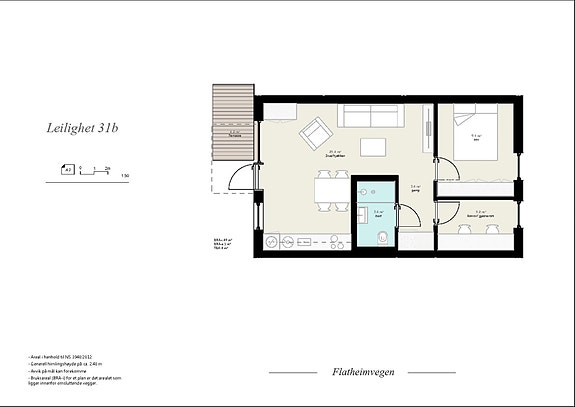
Plantegning - Leilighet 31b

Solgt

Tanem Hage

Enhet 31B

Prisantydning2 455 000 kr
Totalpris
2 480 650 kr
Omkostninger
25 650 kr
  • Planlegging

    Vår 2025

  • Salgsstart

    19.05.2025

  • Byggestart

    April 2026

  • Overtakelse

    Februar 2027

Nøkkelinfo

Boligtype
Leilighet
Etasje
1
Soverom
1
Rom
2
Internt bruksareal
49 m² (BRA-i)
Bruksareal
54 m²
Eksternt bruksareal
3 m² (BRA-e)

Les mer om bruksareal her

Fasiliteter

Aircondition
Balansert ventilasjon
Balkong/Terrasse
Barnevennlig
Bredbåndstilknytning
Garasje/P-plass
Heis
Kabel-TV
Lademulighet
Offentlig vann/kloakk
Vaktmester-/vektertjeneste
Turterreng

Beskrivelse

BESKRIVELSE


Boligtype

Leilighet / Eierseksjon


Arealer

Totalt bruksareal: 54,0m²

  • BRA-i: 49,0 m²
  • BRA-e: 3,0 m²
  • BRA-b: m²

2334,00 m² eiet tomt


Totalpris inkl. omkostninger

I tillegg til kjøpesummen må kjøper betale:

Dokumentavgift kr 11 800,00,-

Oppstartskapital til sameie kr 10 000,00,-

Etableringskostnader til TOBB kr 2 500,00,-

Panteattest (Kjøper) kr 260,00,-

Tingl.gebyr skjøte kr 545,00,-

Tinglysing pantedokument (kjøper) kr 545,00,-


Dersom eiendommen selges til prisantydning og det kun tinglyses ett pantedokument, er totalprisen inkl. offentlige gebyrer, avgifter og øvrige kostnader kr 2 480 650,-. Det tas forbehold om endringer i offentlige gebyr.


Om boligen


Dette er et utdrag fra prosjektets salgsoppgave. For komplett salgsinformasjon henvises det til prosjektets hovedside, eller kontakt eiendomsmegler for mer informasjon.


OM OPPDRAGET


Eiendommen

Flatheimvegen 31 B, 7549 TANEM

539/7/0/0 i Trondheim


Selger

Valbo AS


Eier

Valbo AS


Eiendomsmegler

Oppdragsnummer: 13325017

Ansvarlig megler:


EIE Trondheim sentrum

Nidaros - Eiendomsmegling Sentrum AS

NO 831 699 132 MVA


Prosjektets oppdragsnummer

Denne boligen er del av prosjektet "Tanem Hage", og byggetrinnet "Tanem Hage". Byggetrinnet består av 18 enheter.


For å finne komplett salgsinformasjon, henvises interessenter til prosjektets hovedside med hovedoppdragsnummer 33251083. Kontakt eiendomsmegler hvis noe er uklart.


Nærområdet

Annonseinformasjon

FINN-kode408553245
Sist endret15. aug. 2025 14:46
Referanse13325017

Rapporter annonse

Annonsene kan være mangelfulle i forhold til lovpålagt opplysningsplikt. Før bindende avtale inngås oppfordres interessenter til å innhente komplett informasjon fra meglerforetaket, selger eller utleier.