Bildegalleri
1. etg Venstre.jpg
Brumunddal
Viulvegen 4-mannsbolig
Viulvegen 15 - 17
Prisantydning5 495 000 kr
Prosjektets status
Planlegging
Q1 2025
Salgsstart
Q2 2025
Byggestart
Q3/2025
Overtakelse
Q3/Q4 2026
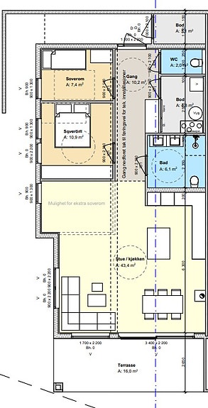
Nøkkelinfo
- Boligtype
- Leilighet
- Etasje
- 1
- Soverom
- 2
- Rom
- 3
- Internt bruksareal
- 89 m² (BRA-i)
- Bruksareal
- 92 m²
- Eksternt bruksareal
- 3 m² (BRA-e)
- Balkong/Terrasse
- 16 m² (TBA)
Fasiliteter
Balkong/Terrasse
Bredbåndstilknytning
Garasje/P-plass
Kabel-TV
Beskrivelse
Ansvarlig megler
Espen Fari
NB: Knappen for å vise hele beskrivelsen har kun en visuell effekt.
NB: Knappen for å vise hele beskrivelsen har kun en visuell effekt.
Nyttige lenker
Nærområdet
DNB Eiendom AS
Verdifulle salg
Annonseinformasjon
| FINN-kode | 408099111 |
|---|---|
| Sist endret | 17. des. 2025 09:26 |
| Referanse | 523230220 |
Annonsene kan være mangelfulle i forhold til lovpålagt opplysningsplikt. Før bindende avtale inngås oppfordres interessenter til å innhente komplett informasjon fra meglerforetaket, selger eller utleier.