Bildegalleri
Bygg 3_H206.jpg
Inaktiv
Ankerløkka Park Bygg 3
Nye 2-, 3- og 4-roms selveierleiligheter med innflytting om to år! | Mulighet for startlån.
Prisantydning5 290 000 kr
Prosjektets status
Planlegging
Klargjort for salgsstart
Salgsstart
Juni 2025
Byggestart
Antatt 1. kvartal 2026
Overtakelse
Antatt 1./2. kvartal 2028
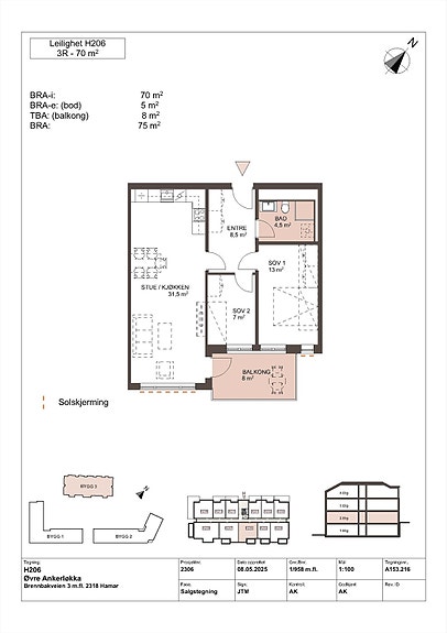
Nøkkelinfo
- Boligtype
- Leilighet
- Etasje
- 2
- Soverom
- 2
- Rom
- 3
- Bruksareal
- 75 m²
Fasiliteter
Balkong/Terrasse
Bredbåndstilknytning
Garasje/P-plass
Heis
Kabel-TV
Vaktmester-/vektertjeneste
Turterreng
Visning
Visninger avholdes på vårt visningssenter med adresse Rektor Jørgensens gate 2.
VisningspåmeldingBeskrivelse
Ansvarlig megler
Tom Z. Bliksmark
NB: Knappen for å vise hele beskrivelsen har kun en visuell effekt.
NB: Knappen for å vise hele beskrivelsen har kun en visuell effekt.
Nyttige lenker
Nærområdet
Sem & Johnsen
Annonseinformasjon
| FINN-kode | 407986246 |
|---|---|
| Sist endret | 09. okt. 2025 07:29 |
| Referanse | 20-25-0736 |
Annonsene kan være mangelfulle i forhold til lovpålagt opplysningsplikt. Før bindende avtale inngås oppfordres interessenter til å innhente komplett informasjon fra meglerforetaket, selger eller utleier.