Bildegalleri
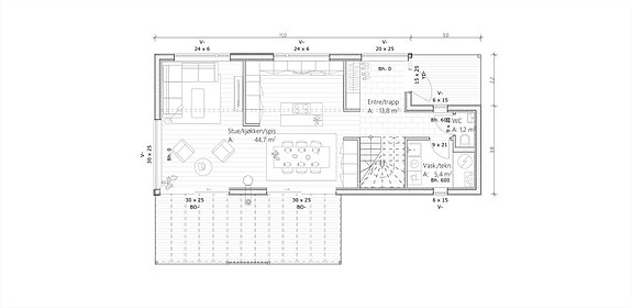
Plantegning 1. etg
Lysehagen - Tomt 44
Lysehagen - Tomt 44
Prosjektets status
Planlegging
Ferdig!
Salgsstart
I salg!
Byggestart
Bygging startet!
Overtakelse
Antatt 1. kvartal 2026 / etter avtale
Nøkkelinfo
- Boligtype
- Enebolig
- Etasje
- 1
- Soverom
- 4
- Rom
- 5
- Internt bruksareal
- 140 m² (BRA-i)
- Bruksareal
- 145 m²
- Eksternt bruksareal
- 5 m² (BRA-e)
Fasiliteter
Visning
Beskrivelse
Overtakelse
Overtagelsesdato skal fastsettes før aksept av bud. Ved spesielle ønsker skal dette fremkomme som forbehold i evt. bud.
Hvitvaskingsregelverk
Eiendomsmeglere er underlagt lov om hvitvasking og er forpliktet til å rapportere til Økokrim om mistenkelige transaksjoner. Lov om hvitvasking innehar også strenge regler om gjennomføring av nødvendige kundetiltak fra alle parter i handelen, herunder, selger, kjøper og fullmektiger for disse. Dersom eiendomsmegler ikke får utført slik kontroll, plikter eiendomsmegler å avstå fra å gjennomføre oppdraget/handelen.
Budgivning
Bud kan legges ved å fylle inn budskjema som finnes i salgsoppgaven eller ved å gå inn på nettannonsen på "gi bud knappen". All budgivning må foregå ved skriftlighet. Ikke nøl med å ta kontakt dersom det er behov for bistand for å gi bud.
Ansvarlig megler
Andreas Tveit
Nærområdet
Eiendomsmegler Norge Nybygg Bergen
Annonseinformasjon
| FINN-kode | 407797262 |
|---|---|
| Sist endret | 07. nov. 2025 10:06 |
| Referanse | 81250185 |
Annonsene kan være mangelfulle i forhold til lovpålagt opplysningsplikt. Før bindende avtale inngås oppfordres interessenter til å innhente komplett informasjon fra meglerforetaket, selger eller utleier.