Bildegalleri

Langgata 90-92

Langgata 90-92

Prisantydning4 180 000 kr
Totalpris
4 219 500 kr
Omkostninger
39 500 kr
  • Planlegging

    Utført

  • Salgsstart

    For salg

  • Byggestart

    Q3 2025

  • Overtakelse

    Antatt overtakelse Q1 2027

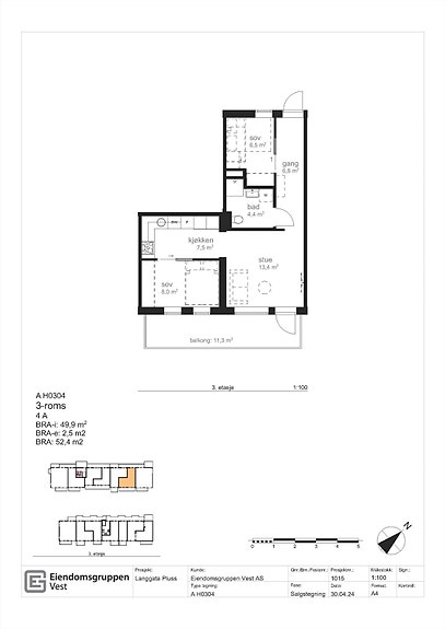
Nøkkelinfo

Boligtype
Leilighet
Etasje
3
Soverom
2
Rom
3
Internt bruksareal
50 m² (BRA-i)
Bruksareal
52 m²
Eksternt bruksareal
2 m² (BRA-e)
Balkong/Terrasse
11 m² (TBA)

Les mer om bruksareal her

Fasiliteter

Balkong/Terrasse
Garasje/P-plass
Heis
Vaktmester-/vektertjeneste

Visning

Ta kontakt med megler for en presentasjon av prosjektet.
Visningspåmelding

Beskrivelse

Ansvarlig megler

Bård Birkeland

Nærområdet

Annonseinformasjon

FINN-kode407647366
Sist endret18. nov. 2025 11:42
Referanse2302240034

Rapporter annonse

Annonsene kan være mangelfulle i forhold til lovpålagt opplysningsplikt. Før bindende avtale inngås oppfordres interessenter til å innhente komplett informasjon fra meglerforetaket, selger eller utleier.