Bildegalleri

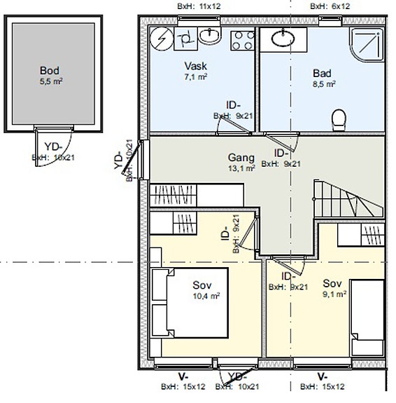
E1a - 1. etasje

Solgt

Flatebygrenda - Aremark

Nye flotte selveierleiligheter under oppføring i Flatebygrenda - Barnevennlig beliggenhet - Rolige omgivelser!

Prisantydning3 980 000 kr
Totalpris
3 990 100 kr
Omkostninger
10 100 kr
  • Planlegging

    April 2025

  • Salgsstart

    Mai 2025

  • Byggestart

    Mai 2025

  • Overtakelse

    Leilighetene er klare til overlevering

Nøkkelinfo

Boligtype
Leilighet
Soverom
3
Rom
4
Internt bruksareal
108 m² (BRA-i)
Bruksareal
115 m²
Eksternt bruksareal
7 m² (BRA-e)
Balkong/Terrasse
46 m² (TBA)

Les mer om bruksareal her

Beskrivelse

Beliggenhet

Velkommen til Flatebygrenda i Aremark. Her kan du skape ditt eget drømmehus, omgitt av vakre skoger, innsjøer og elver. Her vil du oppleve fred og ro midt i en vakker natur, samtidig som du har tilgang til alt du trenger i hverdagen.

Aremark er en liten kommune som ligger sørøst i Østfold, omgitt av vakre skoger, innsjøer og elver. Her kan du dyrke en rolig livsstil med nærhet til naturen og friluftslivet. Aremark grenser til Marker i nord, til Rakkestad og Halden i vest og i hele sin lengde til Sverige. Kommunen har ca. 1 150 innbyggere. Kommunens administrasjon er lokalisert i sentrum ved Fossby.
Aremark tilbyr et trygt og vennlig samfunn for barn og unge med en god skole (1.-10. trinn), en aktiv barnehage, idrettshall, svømmebasseng og en rekke andre aktiviteter. Dette er med på å gi kommunens barn og unge en trygg, aktiv, god og morsom hverdag.

Aremark skole er en 1-10-skole med SFO. Skolen har nylig blitt totalrenovert og fremstår som moderne og tiltalende. Skolen har fine uteområder med ballbinge og mange lekemuligheter. I tillegg er det gode muligheter for gode utendørsaktiviteter i nærområdet, med friluftsområder som kan brukes til turer og andre aktiviteter. Skolen har en dedikert og engasjert lærerstab som jobber for å gi elevene en god læringsopplevelse.

Fra Flatebygrenda kan barna sykle eller gå til barnehage, skole, kulturskole og andre hyggelige fritidsaktiviteter. Det er kort vei til butikk, helsestasjon og legekontor.

I kommunen legges det vekt på at barn og ungdom skal ha mulighet til å delta i organisert fritidsaktiviteter med sine venner. Aremark Idrettsforening er det største idrettslaget i Aremark, der den viktigste aktiviteten i dag er fotball.

Aremark kulturscene som ligger vegg i vegg med biblioteket og er et populært samlingssted som brukes til en rekke arrangementer; som konserter, teaterforestillinger og filmvisninger.

Kommunen er kjent for å ha et trygt, godt og inkluderende lokalsamfunn der det er lett å bli en del av fellesskapet, og tilbyr også tilrettelagte tjenester og aktiviteter for de eldre. Aremark kommune er dessuten den eneeste kommunen i Østfold hvor du kan få ettergitt studielånet ditt.

Aremark er et fantastisk sted å bo for de som ønsker å oppleve en roligere livsstil og nyte naturen. Er variert og vakkert landskap som er perfekt for deg som vil være aktiv i naturen, enten du liker å sykle eller gå tur.

Med bolig på Flatebygrenda bor du tett på sjøen med kort vei til fisking, bading og hyggelige båtturer også. Med etablering av den nye småbåthavnen (planlagt 2025) kan du leie båtplass av Aremark kommune. Det er flere turløyper i området - supert for deg som vil utforske naturen og kanskje få litt mosjon i tillegg. Med et mangfold av stier og løyper å velge mellom, kan du oppleve alt fra rolige turer til mer utfordrende eventyr. Med Haldenvassdraget og Villmarksveien, er Aremark et eldorado for kanopadlere, fiskeentusiaster og andre friluftselskere

Orientering

Aremark kommune er en skjult perle i Østfold, kjent for sin naturskjønnhet og fredelige omgivelser. Med sine idylliske innsjøer, frodige skoger og vakre landskap, er Aremark et sted hvor man virkelig kan finne roen.

Her finner du et sterkt lokalsamfunn, hvor nærheten til naturen gir muligheter for friluftsliv året rundt. Enten det er båtturer på Aremarksjøen, fotturer i skog og mark, eller bare en avslappende dag ved vannkanten, gir Aremark en unik kombinasjon av ro, natur og fellesskap.

Eiendommens adresse

Lensmann Melbyes vei 25 - Flatebygrenda E1a

Tomten

Prosjektet omfatter i dag Gnr. 24 bnr. 54 snr. 1, leilighetsnr. 1 i Aremark kommune og er ferdig seksjonert.

Tomtens areal utgjør ca 2757 kvm som eies av sameiet.

Eiendommen skal leveres med opparbeidelse av utvendige arealer og beplantning i hht. vedlagte foreløpige utomhusplan. Singel i kjørearealer og gårdsplass.

Kjøper er inneforstått med at utomhusarealet kan blir ferdistilt og overtagelseforretning på disse, etter overtagelse av boligene avhengig av årstid. Tomtearealet er ikke nøyaktig oppmålt, så avvik kan forekomme.

Byggemåte

Beskrivelser boliger KS1 A Flatebygrenda alt bygges iht TEK 17 - det vises til vedlagte leveringsbeskrivelse.

Grunnmur.
- Jackon eller tilsvarende ringmurselemeter.
- 35 cm isolasjon.
- Radonsperre.
- Betonggulv.

Utvendig
- Liggende eller stående kledning med et strøk beis.
- Vinduer med 3 lags glass hvitmalte utvendig.
- Yttertak papp type Mester eller tilsvarende, sort eller grå.
- Sorte takrenner og beslag.

Innvendig
- Gips i tak og vegger, sparklet og malt.
- Innvendig slette dører.
- Det blir levert slett kjøkken.
- Opus eller tilsv laminat gulv i alle tørre rom.
- Bad fliser gulv.
- Slette lister.
- Hvite vinduer og terrassedører.
- Komplett elektrisk anlegg.
- Komplett rørlegger opplegg.
- Stålpipe ferdig montert til undertak (ovn som tilvalg).

Utomhus
- Plen opparbeides iht Utomhusplan.
- Singel på kjørearealer og gårdsplass.

Areal

Areal og innhold
B1a, B1b og B2a:
Hvert bygg har 2 leiligheter som har alt på en flate og inneholder:

Entre, gang, stue/kjøkken, bad, vaskerom/bod og 2 soverom.
Det medfølger også carport med bod.

P-ROM: 78 kvm.
BRA: 83 kvm.
BRA-i: 78 kvm.
BRA-e: 5 kvm.
TBA: 26 kvm.

E1a og E1b:
Hvert bygg har 2 leilighet som går over 2 plan og inneholder:

1. etasje: Gang, bad, vaskerom og 2 soverom.

2. etasje: Stue/kjøkken og soverom.

Det medfølger også en utvendig bod på 5,5 kvm.

P-ROM: 108 kvm.
BRA: 115 kvm.
BRA-i: 108 kvm.
BRA-e: 7 kvm.
TBA: 46 kvm.

Standard

Leilighetene har en gjennomgående moderne og god standard hvor det er lagt vekt på kvalitet og funksjonelle løsninger.

Opplegg til tv/data/fiber fra GP data leveres klargjort inn til boligen.

Det vil være tilvalgsmuligheter for de som ønsker det.

Oppvarming

Elektrisk oppvarming og det stålpipe ferdig montert til undertak. Ovn blir tilvalg.

Energimerking

Energimerking gir relevant informasjon om hvor energieffektiv boligen er. Energiattetster vil bli utarbeidet av selger etter at detaljprosjekteringen er gjennomført , og utleveres ved overtakelse av boligen. Energiattesten skal dokumenter at at man minst tilfredsstiller kategori C. Se www.energimerking.no for mer informasjon om energimerking av boliger.

Eier- og organisasjonsform

Boligene vil bli en del av eierseksjonssameie.

Boligsameiet vil bestå av tilsammen 8 seksjoner på eiendommen Gnr. 24 Bnr. 54 i Aremark kommune.

Alle seksjonene får sameiebrøk 1/8 del med felles plikt til drift og vedlikehold av sameiet.

Parkering

Carport og frittstående parkeringsplasser. Det gjøres oppmerksom på at dersom man får tildelt en HC-plass og man ikke har HC-bevis, kan man måtte gi fra seg denne dersom det flytter en inn i sameier med HC-bevis.

Vei/vann/avløp

Boligen vil være tilknyttet offentlig vei, vann og avløp.

Formuesverdi

Formuesverdi fastsettes etter ferdigstillelse av boligen og i forbindelse med første likningsoppgjør. Formuesverdien fastsettes med bakgrunn i en kvadratmeterpris som årlig bestemmes av Statistisk Sentralbyrå. Formuesverdi for primærboliger og sekundærboliger er hhv. 25 % og 90% av boligens verdi. Se skatteetaten.no for mer informasjon og beregning.

Offentlige/kommunale avgifter

Kommunale avgifter faktureres direkte fra kommunen og er ikke inkludert i felleskostnadene.

Faste løpende kostnader

Felleskostnader vil avhenge av hvilke tjenester sameiet ønsker utført i felles regi, og fordeles iht. vedtektene. Evt. vil felleskostnader dekke brøyting, strøing og vedlikehold av felles grøntområde.

Boligsameiet består av tilsammen 8 seksjoner på eiendommen gnr. 24 bnr. 54 i Aremark kommune. Alle seksjonene har sameiebrøk 1/8 del med felles plikt til drift og vedlikehold av sameiet. Sameiet har ikke månedlige fellesutgifter og fører ikke regnskap eller budsjett. Sameiet har ikke fellesgjeld eller formue og det er ikke vedtatt kostnadsøkninger. Se sameiets vedtekter for ytterligere informasjon som ligger vedlagt.

Utbygger er ansvarlig for utgiftene for eventuelle usolgte enheter etter ferdigstillelse.

Ferdigattest/midlertidig brukstillatelse

Selger er ansvarlig for at det blir utstedt ferdigattest før overtakelse.
Manglende ferdigattest er allikevel ikke til hinder for overtakelse dersom de gjenstående arbeidene er av en slik karakter at kommunen finner det ubetenkelig å utstede midlertidig brukstillatelse. I midlertidig brukstillatelse skal det fremgå hvilke arbeider som gjenstår og en frist for ferdigstillelse

Servitutter/rettigheter/forpliktelser

Kommunen har legalpant som sikkerhet for betaling av kommunale avgifter. Legalpant er pant som følger av loven, og som ikke tinglyses. Legalpant følger derfor eiendommen ved salg. På eiendommen kan det være tinglyst erklæringer som for eksempel rett til å vedlikehold av rørsystemer for vann- og kloakk. Erklæringene vil følge eiendommen ved salg.

Øvrige sameiere har panterett i seksjonen for krav mot sameieren som følge av sameieforholdet, jf. eierseksjonsloven § 31. Pantekravet kan ikke overstige 2G. Sameiet kan vedtektsfeste ytterligere panterett for sameiet. Vedtektsfestet pant tinglyses i seksjonene.
Eiendommen overdras fri for pengeheftelser, med unntak av eventuelle erklæringer, avtaler og heftelser som
fremgår av grunnboken og skal følge med eiendommen ved salg. Kjøpers bank vil få prioritet etter disse.

Reguleringsmessige forhold

Eiendommen ligger i område som omhandles av reguleringsbestemmelser for Flatebygrenda.

Betalingsbetingelser

Kjøpesum inkludert omkostninger må være innbetalt og disponibelt på meglers klientkonto senest 2 virkedager før overtakelse. I tillegg må eventuelle pantedokumenter tilknyttet lån som skal tinglyses være mottatt innen samme frist.

Lovgrunnlag

Boligene selges til forbrukere i henhold til Bustadoppføringslova.
Dersom kjøper ikke er forbruker kommer i utgangspunktet ikke bustadoppføringslovens regler til anvendelse. Partene er dog enige om at bustadoppføringsloven kommer til anvendelse med unntak av følgende paragrafer som således ikke kan påberopes: -§§8, 12, 16, 18, 24, 31, 47, 49 og 51-54. Dersom andre paragrafer i bustadoppføringsloven inneholder bestemmelser om at de ovennevnte paragrafer kan påberopes, vil også slike bestemmelser ikke være gjeldende mellom partene.
Etter at boligene er ferdigstilte selges boligene etter Avhendingslova til både forbrukere og næringsdrivende.

Renter/Garanti

Det stilles garantier i henhold til Bustadoppføringslovas bestemmelser. Garanti etter § 12 vil bli stilt i forbindelse med avtaleinngåelse. Garantien skal være pålydende 3% av kjøpesummen i byggetiden og 5% av kjøpesummen i 5 år etter overlevering.

Videresalg

Kjøper kan videreselge kontraktsposisjon under forutsetning av at selger får tilfredsstillende bekreftelse på at ny kjøper trer inn i kontrakten med de samme rettigheter og forpliktelser som opprinnelige kjøper. Det må også fremlegges tilfredsstillende finansieringsbekreftelse. Ved videresalg påløper et administrasjonsgebyr med kr 50.000,- (inkl. mva.).

Kostnader ved avbestillinger

Kjøper kan avbestille i henhold til reglene i bustadoppføringslova §§ 52 og 53.

Ved avbestilling før igangsettingstillatelse er innvilget påløper et avbestillingsgebyr på kr. 100 000,- (inkl. mva.). Ved avbestilling etter at igangsettingstillatelse er gitt påløper et avbestillingsgebyr på 10 % av total kontraktssum (inkl. mva.).

Kredittvurdering/dokumentasjon av finansieringsevne

Selger forbeholder seg retten til å foreta kredittvurdering av kjøpere, og kan avvise en kjøper som ikke er kredittverdig på kjøpstidspunktet.

Overtagelse

Oppstart etter at 1 leilighet er solgt, ferdigstilles ca. 7-8 mnd etter det.

Generelt/forbehold

Salgsprospekt og prosjektbeskrivelsen er utarbeidet for å orientere om prosjektets generelle bestanddeler, funksjoner og planlagte organisering, og er således ikke en komplett beskrivelse av leveransen. Det vises for øvrig til kundetegninger og kjøpekontrakt med vedlegg. Alle illustrasjoner, 3D animasjoner, skisser, "møblerte" plantegninger m.m. er kun ment å danne et inntrykk av den ferdige bebyggelsen, og kan ikke anses som endelig leveranse. Inntegnet utstyr/inventar medfølger ikke, og det kan derfor fremkomme elementer i presentasjonsmaterialet som ikke inngår i leveransen.

Generelle beskrivelser av prosjektet i salgs- og markedsføringsmateriell vil ikke passe for alle leiligheter. Kjøper oppfordres derfor særskilt til å vurdere solforhold, utsikt, beliggenhet i forhold terreng og omkringliggende eksisterende og fremtidig bygningsmasse mm. før et eventuelt bud inngis. Det kan være avvik mellom de planskisser, planløsninger og tegninger som er presentert i prospektet, og den endelige leveransen. Slike avvik utgjør ingen mangel ved selgers leveranse som gir kjøper rett til prisavslag eller erstatning. Dersom det er avvik mellom tegninger i prospekt / internettside og leveransebeskrivelsen i den endelige kontrakt med kjøper, vil leveransebeskrivelsen ha forrang og omfanget av leveransen er begrenset til denne. Det tas forbehold om trykkfeil i prospektet. Sjakter, innkassinger o.l. og VVS føringer er ikke endelig tegnet inn. Det gjøres oppmerksom på at utomhusplanen i salgsprospektet ikke er ferdig detaljprosjektert. Forstøtningsmurer, fallsikringer, belysning, fordeler-skap, lekeapparat, benker m.m., kummer og lignende vil bli plassert slik det finnes hensiktsmessig i forhold til terrenget. Selger har rett til å foreta endringer i prosjektet som ikke vesentlig forringer prosjektets kvalitet eller standard, herunder arkitektoniske endringer, materialvalg, mindre endringer i konstruksjon, rørgjennomføringer og/eller tomtetilpasninger. Slike endringer er ikke å anse som mangler ved ytelsen. Det samme gjelder de endringer som må gjøres som følge av kommunens byggesaksbehandling og krav i ramme- og igangsettingstillatelser, samt andre offentlige tillatelser.

Selger tar forbeholder seg retten til å overdra rettigheter og plikter etter denne kjøpekontrakt til et annet selskap (for eksempel et utbyggerselskap). Kjøper aksepterer en slik eventuell overdragelse.
Selger står fritt til å akseptere eller avslå ethvert bud, herunder bestemme om de vil akseptere salg til selskaper, samt om de vil akseptere salg av flere leiligheter til samme kjøper. Selger forbeholder seg retten til uten varsel å kunne endre priser og betingelser for usolgte leiligheter.

Boligkjøperforsikring

Mange kjøpere har anledning til å tegne boligkjøperforsikring. Vedlagt i salgsoppgaven følger informasjon om Boligkjøperforsikring fra Söderberg & Partners. Boligkjøperforsikring er en rettshjelpsforsikring som gir trygghet og profesjonell juridisk hjelp dersom det oppdages uventede feil eller mangler ved boligen de neste fem årene. Les mer om Boligkjøperforsikring i vedlagte materiell eller på https://www.soderbergpartners.no/eiendom/boligkjoper/.

Kjøper er utenlandsk statsborger

Dersom kjøper er utenlandsk statsborger kreves det at vedkommende har et såkalt D-nummer til erstatning for norsk personnummer. Rekvirering av D-nummer må sendes Kartverket samtidig med innsending av skjøtet for tinglysing. Skjøtet blir liggende i Kartverket inntil kjøper har fått D-nummer av Skatteetaten. Når Kartverket har mottatt D-nummeret fra Skatteetaten, vil skjøtet bli tinglyst umiddelbart. Rekvisisjon av D-nummer i forbindelse med tinglysing av skjøte vil ofte medføre at oppgjør og utbetaling til selger blir forsinket med noen uker. Kjøper må i disse tilfellene enten ta forbehold i bud om forsinket utbetaling til selger, eller være forberedt på å dekke forsinkelsesrenter til selger. Kontakt ansvarlig megler for informasjon før budgivning.

Lov om hvitvasking

I henhold til Lov av 01.06.2018 nr. 23 om tiltak mot hvitvasking og terrorfinansiering mv. er megler pliktig til å gjennomføre kundetiltak av oppdragsgiver og/eller eventuelle reelle rettighetshavere til salgsobjektet. Det samme gjelder for medkontrahenten til oppdragsgiver og/eller eventuelle reelle rettighetshavere til salgsobjektet.
Dersom nevnte parter ikke oppfyller lovens krav til legitimasjon eller megler har mistanke om at transaksjonen har tilknytning til utbytte av en straffbar handling eller forhold som rammes av straffeloven §147 a, 147 b eller 147c kan megler stanse gjennomføringen av transaksjonen. Megler kan ikke holdes ansvarlig for de konsekvenser dette vil kunne medføre for oppdragsgiver og/eller eventuelle reelle rettighetshavere til salgsobjektet eller deres medkontrahent.

Personopplysninger

Som følge av meglerforetakets plikt til å oppbevare kontrakter og dokumenter i minst 10 år, jf. eiendomsmeglingsforskriften § 3-7 (3), er mulighetene for å få slettet personlige opplysninger som er formidlet til megler, begrenset. Du kan lese mer om vår personvernpolicy på våre hjemmesider, www.proaktiv.no.

Tinglysing av hjemmel

Skjøte sendes for tinglysing i forbindelse med oppgjøret. Oppgjør forutsetter at det er gjennomført overtagelse og at partene har signert en overtakelsesprotokoll og sendt denne til oppgjørsavdelingen slik som avtalt i kontrakt. Det forutsettes at skjøte tinglyses i kjøpers navn. Hvis interessenter mot formodning ikke ønsker tinglysing av skjøte må det tas forbehold om dette i kjøpetilbudet.

Salgsoppgave

Opplysningene i salgsoppgaven er godkjent av selger.

Nærområdet

Annonseinformasjon

FINN-kode406856134
Sist endret03. des. 2025 09:39
Referanse110250053

Rapporter annonse

Annonsene kan være mangelfulle i forhold til lovpålagt opplysningsplikt. Før bindende avtale inngås oppfordres interessenter til å innhente komplett informasjon fra meglerforetaket, selger eller utleier.