Bildegalleri
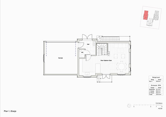
Plan - 1. etasje
Montebello
Morgedalsvegen
Prosjektets status
Planlegging
-
Salgsstart
-
Byggestart
Antatt byggestart: ca. Q3 2025.
Overtakelse
Antatt overtagelse: ca. Q3 2026.
Nøkkelinfo
- Boligtype
- Enebolig
- Soverom
- 4
- Internt bruksareal
- 251 m² (BRA-i)
- Bruksareal
- 251 m²
- Balkong/Terrasse
- 9 m² (TBA)
Beskrivelse
Prosjektets beskrivelse
Velkommen til Morgedalsvegen 1. Her er det planlagt bygging av tre eneboliger med utsikt og hage. Dobbel garasje med direkte inngang til boligen.
- Familievennlig planløsning fordelt over tre plan
- Hus 1 og 2 får 2,60m takhøyde i hovedetasjen
- Hus 3 får opptil 3,83m takhøyde i øverste etasje
- Deilig hovedetasje med mulighet for flere soner, store vindusflater og direkte utgang til solrik hage (stor balkong i Hus 3)
- Stor masteravdeling med mye oppbevaringsplass og innbydende en-suit bad
- Praktikantdel med egen inngang (vann- og avløp i vegg)
- Flere boder
- Husene er tegnet av arkitekt Lorentz Gedde-Dahl
Dette unike eiendomsprosjektet er preget av materialer av god kvalitet og gjennomtenkte, tidløse interiørløsninger som skaper en varm atmosfære.
Går du med drømmer om å skape din drømmebolig? Her har selger prioritert fleksibilitet i interiørvalgene, slik at du som kunde kan sette din personlige signatur på hjemmet og skape et rom som er unikt og tilpasset dine preferanser.
Oppdragsansvarlig
Allé Eiendomsmegling AS / Lillian Ch. Nerlinger
Selger/Utbygger
Atlas Portefølje 7 AS
Betegnelse
Gnr. 29 Bnr. 213 i Oslo kommune
Arealer og fordeling per etasje
Totalt BRA 251 kvm består av:
- BRA-i (internt bruksareal): 251 kvm
- TBA (terrasse-/balkongareal) 9 kvm
Det totale bruksarealet fordeler seg som følger:
Hus 1 (snr.1)
Første etasje:
- BRA: 86 kvm
- BRA-i: 86 kvm
- TBA: 3 kvm
Andre etasje:
- BRA: 84 kvm
- BRA-i: 84 kvm
- TBA: 5 kvm
Kjelleretasje:
- BRA: 81 kvm
- BRA-i: 81 kvm
Garasje inngår i totalarealet.
Innhold
1. etasje: Hall, WC, stue/kjøkken/spis og garasje med adkomst hall.
2. etasje: TV-Stue, gang, mastersoverom med walk-in garderobe og eget bad, 3 soverom, bad 2 og balkong.
Kjelleretasje: Gang, stue med egen inngang, kott, bad, vaskerom, 2-3 boder og teknisk rom.
Vedlagte plantegninger er ikke målbare.
Beliggenhet
Eiendommen ligger sentralt til i et meget attraktivt og veletablert boligområde på Montebello. Området består for det meste av villaer og lavblokkbebyggelse. Beliggenheten er både sentral og barnevennlig med god tilgang til barnehager, skoler, samt et rikt utvalg av fasiliteter og servicetilbud. Nærområdet kan by på flotte tur- og friluftsområder. Kort vei til sentrum.
Både CC Vest ved Lilleaker og Røa ligger en liten kjøretur unna med alle tenkelige butikk -og servicetilbud. I tillegg er det nærbutikk ved Makrellbekken og det er kort vei til handlemuligheter på nærsenteret Møllhausen Torg. Her finner du blant annet Mega, KIWI og Apotek1, samt Skøyen Café. Det tar kun ca. 6 minutter med bil til Majorstuen.
I nærområdet finner man også Husebyskogen og Merradalen, samt gode turmuligheter til Bogstad og Nordmarka. Gardeskogen/Husebyskogen tilbyr velpreparert lysløype like ved Njårdhallen. Kort gange til Njårdhallen flerbrukshall med aktivitetstilbud som fotball, håndball, bandy, basketball, turn og SATS treningssenter.
Eiendommen sogner til Smestad barneskole, og Ris ungdomsskole. Det ligger en rekke barnehager i nærområdet.
Det er et godt utbygd kollektivtilbud i området. Kort vei til Montebello T-bane som kan ta deg til alle knutepunkter i Oslo. Kun 6 minutter med bane til Majorstua. Gangavstand til buss 23, 24 og 28 samt flybuss fra Radiumhospitalet.
Byggemåte
GRUNNARBEIDER / UTVENDIGE ARBEIDER
Huset vil bli fundamentert på egnet underlag. Innkjøring på egen tomt og parkeringsareal blir singlet hvis ikke annet fremkommer av offentlige krav. Tomten for øvrig grovplaneres med stedlige masser tilpasset den eksisterende naturlige topografi. Opprinnelig vegetasjon som ikke påvirkes av byggearbeidet vil etter utbyggers vurdering kunne bestå. Det anlegges ferdigplen på uteområdene som er egnet til det. Kjøper må selv pleie og vedlikeholde gress etter overtagelse og ivareta gode vekstforhold.
Det kan bli etablert drens-og pumpekummer, elektro-og svakstrømskap, samt andre installasjoner på eiendommen der entreprenøren finner det hensiktsmessig. Dette kan medføre at et hus får et ekstra skap på husveggen, som drifter strøm for sameiet. Plassering av skap vil bli bestemt av entreprenør, der hvor dette er hensiktsmessig. Kumlokk til evt. pumpekum, stakekum e.l. kan også bli plassert på uteoppholdsarealene der det er nødvendig.
Det leveres ikke busker, trær eller planter.
Rundt grunnmur/kjeller arronderes terreng med stedlige masser med fall ut fra huset der det lar seg gjøre. Grunnmurspapp og isolasjon leveres kappet til over terreng med grunnmurslister.
KONSTRUKSJONER
Der det er sprøytebetong leveres denne ubehandlet. Skjolder i sprøytebetong kan oppstå over tid. Huset over terreng vil bli oppført med bærende konstruksjoner i treverk og eventuelt stål der det er hensiktsmessig. Forøvrig er huset planlagt oppført med precut eller prefabrikkerte elementer.
I andre etasje kan nedlekting av himling forekomme for plassering av tekniske føringer samt mønedrager.
BALKONG
Terrassegulv på balkong leveres i Royalimpregnert furu, hvis ikke annet er oppgitt i romskjema. Rekkverk på balkong leveres i pulverlakkert stål.
VINDUER / DØRER / LISTVERK
Vinduer leveres sort eller gråmalt på inn- og ytterside. Konstruksjon i treverk. Takvindu leveres alltid hvite, uavhengig av farge på resterende vinduer.
Ytterdører leveres sort- eller gråmalt. Innvendige dører leveres med ett speil, av typen Swedoor Unique 01 eller tilsvarende i klassisk hvit.
Listverk langs gulv og rundt dører leveres som glattkant i farge klassisk hvit med dimensjon 12x58mm eller tilsvarende, med synlig spikerhoder. Sparkling og maling av lister for å skjule spikerhoder kan gjøres som tilvalg. Det leveres listefri overgang mellom vegg/himling. Lister leveres rundt vinduer i hele huset.
OVERFLATER
Malte gipsplater leveres med grunning og 2 strøk maling. Noe strukturforskjell i slepelys og overflateriss må påregnes.
YTTERVEGGER / TAK / BESLAG
Utvendig leveres 148mm dobbeltfalset kledning i lys grå, eller tilsvarende, med 3 strøk maling. Det gjøres oppmerksom på at endelig retning på kledning ikke bestemmes før husene er ferdig prosjektert. Endelig konstruksjonsmetodikk vil bli avklart i detaljprosjekteringen i samråd med entreprenør. Gesimsbeslag i farge grå eller sort.
Tak leveres med bølget takstein, dobbeltkrum eller tilsvarende.
Tak/baldakin leveres over hovedinngangsdøren der det ikke er annen overdekning.
SANITÆRUTSTYR / RØRLEGGERARBEID
Fordeling av varmt og kaldt vann legges skjult i bjelkelag og vegger. Alle vannledninger leveres som "rør i rør"-system i plast. Endelig plassering av rørfordelingsskap bestemmes av rørlegger i forbindelse med detaljprosjektering. Fordelingsskapet kan plasseres utenfor våtrom der dette er hensiktsmessig.
Rørføringer mot yttervegg kan legges åpent på vaskerom/teknisk rom. Til varmtvannsbereder brukes synlige rør mellom vegg og bereder. Rør kan bli innkledd i synlig kasse.
Sanitærutstyr leveres iht. romskjema.
Ved behov for pumpekum til overvann vil denne bli koblet til felles måler. Service og driftskostnaden fordeles av sameiet.
Det rommet det er skissert vaskemaskin i leveres med sluk i gulv og opplegg for vann og avløp til vaskemaskin.
Varmtvannsbereder leveres på 200 liter og blir plassert der det er mest hensiktsmessig, etter utbyggers vurdering.
På kjøkken leveres opplegg for vask og oppvaskmaskin.
Utvendig leveres en frostsikker kaldtvannskran, montert på yttervegg, plassering etter entreprenørens anbefaling.
ELEKTROARBEID
EL-installasjoner leveres etter NEK 400. Sikringsskap med nødvendig overbelastningsvern, jordfeilbryter og nødvendige kurssikringer samt svakstrømskap.
Elektroinstallasjonene utføres av godkjent elektroinstallatør og utføres i hovedsak som skjult anlegg. I betongvegg, lydvegg eller brancelle-begrenset vegg og himling, kan det benyttes åpen kabelinstallasjon.
Det blir lagt tomrør inn til huset fra vei/tomtegrense og inn til svakstrømskap, klargjort for trekking av bredbåndskabel. Tilkobling og kabelabonnement må bestilles hos kabeloperatør og besørges av kjøper.
Brytere, dimmere og stikkontakter leveres i hvit utførelse, ELKO Plus/SG innfelt eller tilsvarende. Alle stikkontakter leveres som doble m/barnevern, unntatt til fast utstyr (komfyr, kjøleskap etc.) og lampepunkter ved tak.
Det leveres 30 downlights per bolig fordelt på 6 ulike soner. Downlights plasseres etter eget ønske i møte med elektriker.
Det leveres smarthussystem fra Plejd (eller tilsvarende) som muliggjør smartstyring av lys og varme.
Det leveres ringeklokke montert ved hovedinngang.
TRAPP
Innvendig trapp leveres i klassisk utforming. Valgfri RAL-farge på trinn, vanger, spiler og håndløper. Tett trapp fra kjeller til 1.etg og åpne trinn med barnesikring fra 1.etg til 2.
VENTILASJON
Det leveres balansert ventilasjon med varmegjenvinner. Kanaler må i noen tilfeller innkles med kasser. Ventilasjonsanlegget plasseres der entreprenøren finner det hensiktsmessig og blir besluttet under detaljprosjektering.
BRANNSIKKERHET
Det leveres seriekoblete røykvarslere i alle etasjer samt et brann-slukningsapparat. Brannstige av typen Sørlandsstigen vil bli montert om dette kommer frem under brannprosjektering.
RENOVASJON / POSTKASSE
Det blir avsatt plass til avfallsbeholdere på tomten. Plassering blir valgt av utbygger/entreprenør ved ferdigstillelse og kan avvike fra utomhusplanen.
Det blir satt opp postkasser på stativ av treverk. Plassering besluttes i sluttfasen.
TILVALG
Kommer kjøper tidlig inn i prosessen vil man få mulighet til å sette sitt personlige preg på boligen ved å gjøre endringer/ tilvalg. I møte med entreprenør, utbygger eller tilvalgsportalvil kjøper selv ha mulighet til å endre/oppgradere følgende punkter:
- Fliser
- Lister
- Parkett
- Trapp
- Kjøkken
- Elektriske punkter
- Gulvvarme
- Varmekabler
- Baderomsinnredning
- Sanitærutstyr
- Fargevalg på overflater
- Innerdører
- Gasspeis
Utbygger kan ta påslag på entreprenørens pris på tilvalg for administrasjon og garantiansvar.
Standard
HUS 1 OG 2 - 1.ETASJE
HALL
Det leveres fliser, farge lys grå 60x60 cm på gulv. Malt gips på vegger. Taket er i malt gips, farge hvit. Varmekabler.
WC
Fliser, farge lys grå 60x60 cm på gulv. Malt gips på vegger og malt gips i tak, farge hvit. Vegghengt baderomsinnredning fra Haven. Tapwell servantbatteri. Speil med lys. Vegghengt toalett med krom betjeningspanel. Varmekabler.
KJØKKEN
1-stavs parkett i hvitlakkert eik. Malt gips på vegger. Malt gips i tak, farge hvit. Kjøkkeninnredning fra Sigdal til en verdi av 300 000,-. Varmefolie.
STUE
Det leveres 1-stavs parkett i eik, hvitlakkert. Malt gips på vegger. Malt gips i tak, farge hvit. Gasspeis (Peisselskapet). Varmefolie.
TERRASSE
Royalimpregnert furu terrassebord eller tilsvarende. Rekkverk i pulverlakkert stål. Dobbel stikkontakt.
2.ETASJE
SOVEROM, TV-STUE, GARDEROBE OG GANG
Det leveres 1-stavs parkett i eik, hvitlakkert. Malt gips på vegger. Malt gips i tak, farge hvit.
BADEROM
Fliser, farge lys grå 60x60 cm på gulv, samme flis i mosaikk i dusj. Fliser, farge lys grå 60x60 cm på vegger. Malt gips i tak, farge hvit. Vegghengt baderomsinnredning (enkel, 120cm) fra Haven. Tapwellservantbatteri. Speil med lys. Varmekabler. Vegghengt toalett med krom betjeningspanel. Dusjdører i glass tilpasset dusjsone. Utenpåliggende dusjbatteri med regndusjhode i krom fra Tapwell. Badekar kan leveres som tilvalg.
BADEROM (EN-SUITE)
Fliser, farge lys grå 60x60 cm på gulv, samme flis i mosaikk i dusj. Fliser, farge lys grå 60x60 cm på vegger. Malt gips i tak, farge hvit. Vegghengt baderomsinnredning (enkel, 100cm) fra Haven. Tapwellservantbatteri. Speil med lys. Varmekabler. Vegghengt toalett med krom betjeningspanel. Dusjdører i glass tilpasset dusjsone. Utenpåliggende dusjbatteri med regndusjhode i krom fra Tapwell.
BALKONG
Royalimpregnert furu terrassebord eller tilsvarende. Rekkverk i pulverlakkert stål. Dobbel stikkontakt.
UNDERETASJE
STUE, GANG OG KOTT
1-stavs parkett i hvitlakkert eik. Malt gips på vegger. Malt gips i tak, farge hvit.
BOD
1-stavs parkett i hvitlakkert eik. Malt gips på vegger. Malt gips i tak, farge hvit.
BADEROM
Fliser, farge lys grå 60x60 cm på gulv, samme flis i mosaikk i dusj. Fliser, farge lys grå 60x60 cm på vegger. Malt gips i tak, farge hvit. Vegghengt baderomsinnredning (enkel, 60cm) fra Haven. Tapwellservantbatteri. Speil med lys. Varmekabler. Vegghengt toalett med krom betjeningspanel. Dusjdører i glass tilpasset dusjsone. Utenpåliggende dusjbatteri med regndusjhode i krom fra Tapwell. Opplegg for vaskemaskin.
VASKEROM
Fliser, farge lys grå 60x60 cm på gulv. Malt gips på vegger. Malt gips i tak, farge hvit. Varmekabler. Opplegg for utslagsvask, vaskemaskin og tørketrommel.
TEKNISK
Fliser, farge lys grå 60x60 cm på gulv. Malt gips på vegger. Malt gips i tak, farge hvit. Varmekabler. Tekniske installasjoner.
HUS 3 - 1.ETASJE
HALL
Det leveres fliser, farge lys grå 60x60 cm på gulv. Malt gips på vegger. Taket er i malt gips, farge hvit. Varmekabler.
STUE
Det leveres 1-stavs parkett i eik, hvitlakkert. Malt gips på vegger. Malt gips i tak, farge hvit.
SOVEROM
Det leveres 1-stavs parkett i eik, hvitlakkert. Malt gips på vegger. Malt gips i tak, farge hvit.
BADEROM
Fliser, farge lys grå 60x60 cm på gulv, samme flis i mosaikk i dusj. Fliser, farge lys grå 60x60 cm på vegger. Malt gips i tak, farge hvit. Vegghengt baderomsinnredning (enkel, 120cm) fra Haven. Tapwellservantbatteri. Speil med lys. Varmekabler. Vegghengt toalett med krom betjeningspanel. Dusjdører i glass tilpasset dusjsone. Utenpåliggende dusjbatteri med regndusjhode i krom fra Tapwell. Badekar kan leveres som tilvalg.
TERRASSE
Royalimpregnert furu terrassebord eller tilsvarende. Rekkverk i pulverlakkert stål. Dobbel stikkontakt.
2.ETASJE
KJØKKEN
1-stavs parkett i hvitlakkert eik. Malt gips på vegger. Malt gips i tak, farge hvit. Kjøkkeninnredning fra Sigdal til en verdi av 300 000,-. Varmefolie.
STUE
Det leveres 1-stavs parkett i eik, hvitlakkert. Malt gips på vegger. Malt gips i tak, farge hvit. Gasspeis (Peisselskapet). Varmefolie.
WC
Fliser, farge lys grå 60x60 cm på gulv. Malt gips på vegger og malt gips i tak, farge hvit. Vegghengt baderomsinnredning fra Haven. Tapwell servantbatteri. Speil med lys. Vegghengt toalett med krom betjeningspanel. Varmekabler.
BADEROM
Fliser, farge lys grå 60x60 cm på gulv, samme flis i mosaikk i dusj. Fliser, farge lys grå 60x60 cm på vegger. Malt gips i tak, farge hvit. Vegghengt baderomsinnredning (dobbel, 140cm) fra Haven. Tapwellservantbatteri. Speil med lys. Varmekabler. Vegghengt toalett med krom betjeningspanel. Dusjdører i glass tilpasset dusjsone. Utenpåliggende dusjbatteri med regndusjhode i krom fra Tapwell.
SOVEROM + GARDEROBE
Det leveres 1-stavs parkett i eik, hvitlakkert. Malt gips på vegger. Malt gips i tak, farge hvit.
BALKONG
Royalimpregnert furu terrassebord eller tilsvarende. Rekkverk i pulverlakkert stål. Dobbel stikkontakt.
UNDERETASJE
VINDFANG, BOD, GARDEROBE OG KOTT
Det leveres 1-stavs parkett i eik, hvitlakkert. Malt gips på vegger. Malt gips i tak, farge hvit.
STUE OG SOVEROM
Det leveres 1-stavs parkett i eik, hvitlakkert. Malt gips på vegger. Malt gips i tak, farge hvit.
BADEROM
Fliser, farge lys grå 60x60 cm på gulv, samme flis i mosaikk i dusj. Fliser, farge lys grå 60x60 cm på vegger. Malt gips i tak, farge hvit. Vegghengt baderomsinnredning (enkel, 60cm) fra Haven. Tapwellservantbatteri. Speil med lys. Varmekabler. Vegghengt toalett med krom betjeningspanel. Dusjdører i glass tilpasset dusjsone. Utenpåliggende dusjbatteri med regndusjhode i krom fra Tapwell. Opplegg for vaskemaskin.
VASKEROM
Fliser, farge lys grå 60x60 cm på gulv. Malt gips på vegger. Malt gips i tak, farge hvit. Varmekabler. Opplegg for utslagsvask, vaskemaskin og tørketrommel. Servant og baderomsmøbel kan leveres som tilvalg.
TEKNISK
Fliser, farge lys grå 60x60 cm på gulv. Malt gips på vegger. Malt gips i tak, farge hvit. Varmekabler. Tekniske installasjoner.
Oppvarming
Det leveres varmefolie i gulv i hovedoppholdsetasje(stue + kjøkken). I hall, WC, baderom og vaskerom leveres varmekabler. Gasspeis fra Peisselskabet av typen VisionlineSuperior 650 tre-sidet, eller tilsvarende, leveres i hovedoppholdsetasjen.
Parkering / Garasje
Hver bolig leveres med to parkeringsplasser i garasje.
Veggene i garasjen leveres med ubehandlet gips. Innvendig tak leveres som ubehandlet gips. Gulvet leveres som betong.
Det blir klargjort for 1 stk elbil-lader per hus (tomrør til sikringsskap). Ladeboks, kabel og sikring kan leveres som tilvalg.
Adkomst
Se vedlagt kartskisse på høyre side i Finn.no annonsen. Ved å trykke på kartet får du enkelt tilgang til en spesifisert reiserute fra ønsket startdestinasjon (eventuelt din boligadresse) til den aktuelle boligen.
Beskrivelse av tomt
Sameiets totale tomteareal er 1 258 kvm. Tomten vil være et sameie, se forøvrig utomhusplan og vedlagte vedtekter.
For sameiet er det vedtatt midlertidig enerett til bruk av deler av fellesarealene iht. vedlagte situasjonsplan hvor det fremgår hvilke arealer som er disponert over til fordel for hvilke seksjoner. Varigheten av midlertidig enerett til bruk som følger av denne bestemmelsen er fastsatt til 30 år fra vedtektenes vedtakelse og kan ikke endres uten tilslutning fra de seksjonseiere som blir berørt ved endringer i perioden.
Tinglyste rettigheter og forpliktelser
Kommunen har legalpant som sikkerhet for betaling av kommunale avgifter. Legalpant er pant som følger av loven, og som ikke tinglyses. Legalpant følger derfor eiendommen ved salg. På eiendommen kan det være tinglyst erklæringer som f eks rett for kommunen til å vedlikeholde rørsystemer for vann- og kloakk. Disse erklæringene vil følge eiendommen ved salg. Kontakt megler for nærmere informasjon.
Øvrige sameiere har panterett i seksjonen for krav mot sameieren som følge av sameieforholdet, jf. eierseksjonsloven § 31. Pantekravet kan ikke overstige 2G (Folketrygdens grunnbeløp). Sameiet kan vedtektsfeste ytterligere panterett for sameiet. Vedtektsfestet pant tinglyses i seksjonene.
Servitutter / rettigheter
Eiendommen overdras fri for pengeheftelser, med unntak av eventuelle erklæringer, avtaler, servitutter og panteheftelser som fremgår av salgsoppgaven og skal følge med eiendommen ved salg. Kjøpers bank vil få prioritet etter disse.
1950/14080-1/105 Bestemmelse om veg
20.12.1950
Bestemmelse om gjerde
Bestemmelse om kloakkledning
Med flere bestemmelser
1953/14488-1/105 Bestemmelse om veg
31.10.1953
Bestemmelse om gjerde
Bestemmelse om kloakkledning
Med flere bestemmelser
1954/49-1/105 Best. om vann/kloakkledn.
04.01.1954
Grunndata
1943/1376-1/105 Registrering av grunn
18.02.1943
Denne matrikkelenhet opprettet fra:Knr:0301 Gnr:29 Bnr:117
1944/908654-1/105 Sammenslått med denne matrikkelenhet:
28.07.1944
GNR. 29 BNR. 235
Rettigheter på andre eiendommer
Ingen rettigheter funnet.
Vei / Vann / Avløp
Eiendommen er tilknyttet offentlig vann- og avløpsnett via private stikk- og fellesledninger.
Vi gjør oppmerksom på at private ledninger vedlikeholdes for eiers regning.
Ferdigattest eller midl. brukstillatelse
Selger er iht. plan- og bygningslovens bestemmelser ansvarlig for at det blir utstedt ferdigattest før overtakelse. Manglende ferdigattest er likevel ikke til hinder for overtakelse dersom de gjenstående arbeider er mindre vesentlige, for eksempel knyttet til ferdigstillelse av utomhusarbeider, og kommunen finner det ubetenkelig å utstede midlertidig brukstillatelse. I midlertidig brukstillatelse skal det fremgå hvilke arbeider som gjenstår og en frist for ferdigstillelse. Kommunen kan kreve at det stilles sikkerhet for at gjenstående arbeider blir rettet. For overtakelse som gjennomføres i vinterhalvåret må det påregnes utstedelse av midlertidig brukstillatelse og ikke ferdigattest ettersom utomhus arbeider som planering, tilsåing, beplantning etc. ikke kan gjennomføres før klimatiske forhold gjøre det mulig. Ved overtagelse på bakgrunn av midlertidig brukstillatelse bortfaller kjøpers krav på dagmulkt for dette forhold. I tillegg kan det bli holdt tilbake et forholdsmessig beløp til sikkerhet for de gjenstående arbeidene som må utføres for at ferdigattest skal bli utstedt.
Verdi ved skattefastsetting
Verdien ved skattefastsetting er p.t. ikke fastsatt. Verdien ved skattefastsetting fastsettes av Ligningskontoret etter beregningsmodell som tar hensyn til om boligen er en såkalt "primærbolig" (der boligeieren er folkeregistrert bosatt) eller "sekundærbolig" (alle boliger man eier, men ikke bor fast i). Interessenter oppfordres til å sjekke www.skatteetaten.no eller kontakte ansvarlig megler for nærmere informasjon om verdien ved skattefastsetting.
Reguleringsforhold
Eiendommen er avsatt til hovedformål bebyggelse og anlegg i kommuneplan 2015 - Oslo mot 2030, vedtatt 23.09.2015.
Eiendommen er regulert til byggeområde for boliger gjennom reguleringsplan for småhusområder i Oslos ytre by (småhusplanen) S-4220, vedtatt 15.03.2006, revidert 12.06.2013, og 17.03.2015.
Innenfor planområdet opprettholdes gjeldende reguleringsplaner for andre formål enn byggeområder for boliger. Maksimalt 40 % av tomtens areal, inklusive bebygd areal (BYA), kan opparbeides med harde, vann-ugjennomtrengelige overflater. Det tillates inntil 24 % bebygd areal (BYA) på den enkelte tomt. Gesimshøyde inntil 6,5 meter og mønehøyde inntil 9,0 meter. For bebyggelse med pulttak tillates høyeste gesims inntil 7,5 meter, laveste gesims inntil 6,5 meter. For bebyggelse med flate tak tillates gesimshøyde inntil 7,0 meter. Parkeringsplasser på terreng, dvs. frittstående, i carport eller garasje, skal være minimum 18 m2 per plass og medregnes i bebygd areal (BYA).
Utsnitt fra reguleringsbestemmelser: "Hensikten med reguleringsplanen er å legge til rette for en utvikling i planområdet med bebyggelse med småhuskarakter, og å opprettholde og styrke småhusområdenes kvaliteter. Planen skal ivareta områdenes estetiske, funksjonelle, kulturminnefaglige og miljømessige kvaliteter knyttet til eksisterende bebyggelse, landskap, vegetasjon og biologisk mangfold. Det tillates inntil 24 % bebygd areal (BYA) på den enkelte tomt. Gesimshøyde inntil 6,5 meter og mønehøyde inntil 9,0 meter. For bebyggelse med pulttak tillates høyeste gesims inntil 7,5 meter, laveste gesims inntil 6,5 meter. For bebyggelse med flate tak tillates gesimshøyde inntil 7,0 meter. Med flate tak menes tak med maksimalt 4 graders takvinkel. Anlegg under bakken skal i hovedsak plasseres under bygningens fotavtrykk, og maksimalt utgjøre 30% av tomtens areal. Parkeringsplasser på terreng, dvs. frittstående, i carport eller garasje, skal være minimum 18 m2 per plass og medregnes i bebygd areal (BYA).
Reguleringskart og bestemmelser ligger vedlagt salgsoppgaven.
Men merk følgende: Gjeldende reguleringsplan (Småhusplanen) er under revidering, og Oslo kommune har nedlagt midlertidig forbud mot tiltak.
Utsnitt fra Oslo kommune sine hjemmesider: "Den reviderte planen skal bidra til å skjerme småhusområdene for ytterligere fortetting, og sørge for et sterkere vern av de grønne verdiene når det bygges innenfor småhusplanen. Videre skal småhusområdenes karakter og kvaliteter bevares, det skal legges til rette for mer klimavennlige utbygginger, og vi skal forsøke å forenkle planen for å kunne gjøre kommende byggesaker enklere og billigere å gjennomføre. Småhusplanen styrer hvordan det kan bygges og fortettes på eiendommer som er omfattet av planen. Den legger også begrensninger for hvor mye det er lov å bygge på eiendommene."
Planer i området:
Morgedalsvegen 1 - Riving og oppføring av tre eneboliger
Sondrevegen 16 - Oppføring av carport
Sondrevegen 16 A-B - Oppføring av tomannsbolig
Sondrevegen 16 - Riving av garasje
Beskrivelse av sameiet
Eiendommen blir en del av et sameie med tre seksjoner.
Det er opptil de fremtidige eierne om de vil etablere felleskostnader for seksjonene.
Hver bolig betaler kommunale avgifter og eiendomsskatt på hver sin eiendom.
Det foreligger vedtekter som ligger vedlagt i salgsoppgaven.
En sameier eier en andel i eiendommen, med tilknyttet enerett til bruk av sin bruksenhet, jf. eierseksjonsloven § 25.
Ingen kan erverve mer enn to boligseksjoner i et sameie, jf. eierseksjonsloven § 23 første ledd. Dersom et erverv har funnet sted i strid med eierseksjonslovens regler kan Kartverket nekte overskjøting. Dersom overskjøting blir nektet, er kjøper likevel forpliktet til å gjennomføre handelen med selger, og oppgjør til selger vil finne sted tross manglende overskjøting.
Andre faste løpende kostnader
Eiere av hver seksjon skal betale for sin del av kommunale avgifter og renovasjon. Innboforsikring tegnes av hver enkelt beboer. Det blir i utgangspunktet ikke felles bygningsforsikring, kjøper tegner egen forsikring på sin bolig.
Alle seksjonseierne deler på kostnader for drift og vedlikehold av adkomst vei.
Det er opp til de fremtidige sameiene hvorvidt de ønsker fastsettelse av månedlige fellesutgifter for betjening av løpende felleskostnader.
Kommunale avgifter beregnes først når boligen er ferdigstilt.
Eiendommen vil bli holdt fullverdiforsikret av selgeren (utbygger) frem til overtakelsen, jf. buofl. § 13 siste ledd.
Eiendomsskatten utgjør tre promille av boligverdien (ligningsverdi x 4 x 0,7) med et bunnfradrag på inntil 4 millioner kroner. Eiendomsskatt blir ikke beregnet før etter boligen er ferdigstilt. Eiendomsskatten fastsettes årlig av bystyret og vil derfor kunne variere fra år til år.
Oppgjør
Kjøper skal betale 10 % ved kjøpesummen ved kontraktsignering. Innbetalingen må være fri egenkapital og forutsetter at selger har stilt garanti i henhold til § 12 i buofl. Delbetalingen er å anse som depositum og vil tilhøre kjøper og være under kjøpers instruksjonsrett fram til hjemmelsoverføring, eller inntil selger har stilt forskuddsgaranti i henhold til § 47 i buofl. Dersom selger stiller forskuddsgaranti i henhold til buofl. § 47 blir beløpet å anse som forskudd, og kan utbetales selger. Dette avviker fra prinsippet om ytelse mot ytelse. Resterende beløp pluss omkostninger betales ved overtakelse til meglerforetakets klientkonto.
Finansiering
Kontakt megler for avklaring av finansielle forhold, herunder lån til kjøp av eiendom. Privatmegleren har avtale med Nordea om formidling av lån og andre finansielle tjenester. Privatmegleren mottar godtgjørelse for dette.
Generelle opplysninger
Tekniske forskrifter av 2017 gjelder for utførelsen. Generelt leveres boligen med tolleranseklasser ihtNS-3420 med normalkrav for anliggende bygningsdeler.
Alle innvendige og utvendige arealangivelser er beregnet av arkitekt og er beregnet etter Veileder NS3940:2023.
Bygningsmaterialer påvirkes av fuktighet og uttørking. Det kan oppstå sprekker på grunn av bevegelse i materialene uten at dette medfører rett til reklamasjon. Beskrevet oppbygning av konstruksjonene angir kun et generelt konstruksjonsprinsipp. Dette kan avvike avhengig av hvilken entreprenør eller husfabrikantsom velges. Norske forskriftskrav gjelder.
Det tas forbehold om endringer med tilsvarende kvalitet.
Stiplet linje på plantegninger viser forslag til løsninger og innredning som ikke inngår i leveransen. Garderober medfølger ikke i standardleveranse, selv om dette kan være illustrert.
Ved tegning av eget kjøkken må kjøkkenleveransen inneholde vifte og kjøkkenvask. Det kan være begrensninger ved plassering av tekniske punkter ved omtegningav kjøkken. Ved uttrekk av kjøkken gjelder 70% av avtalt verdi i leveransebeskrivelsen.
Selger gjør særskilt oppmerksom på at skjeggkre er funnet i flere boliger i Norge. Skjeggkre kan komme inn i boliger på en rekke forskjellige måter, både i forbindelse med oppføring av boligen, men også i forbindelse med innredning, bruk mv. Det er ikke et funksjonskrav under denne kjøpekontrakten at boligen skal være oppført på et vis som fjerner risikoen for forekomst av skjeggkre i boligen samt fellesarealer.
Boligen overleveres byggrengjort. En byggvasker ikke en fullverdig rengjøring og øvrig vask av overflater må utføres av kjøper. Det må påregnes bygge-og /svevestøv i en god periode etter overlevering
Terrenglinjer på tegninger er kun illustrerende og derfor ikke retnings-givende.
Tegninger i kjøpsprospekt er nedkopiert og ikke måleriktige. Arealer på tegninger (selv om disse er angitt med desimaler) er omtrentlig angitt og arealavvik kan forekomme.
Skisser og illustrasjoner i salgsmateriell og annonser kan vise ting som avviker fra leveransen. Ved avvik gjelder denne leveransebeskrivelse.
Dataanimerte illustrasjoner er kun ment som en illustrasjon. Leveransen kan avvike fra dette både når det gjelder detaljer, materialvalg og farger. Illustrasjonene viser forslag til platting og pergola som ikke leveres, men kan velges I forbindelse med tilvalgsprosessen.
Utbygger forbeholder seg retten til å kunne endre utomhusplanen i forhold til offentlig krav som plassering av postkassestativ, avfallsstasjon, m.m. Kjøper har ikke krav til en prisreduksjon ved en slik situasjon.
Fliser leveres som standard 60x60. Der hvor det ikke er teknisk mulig grunnet størrelse på rom, og fallforhold ift. sluk, har utbygger rett til å endre størrelse på flis. Fugebredde på flis vil være 3-5mm
Adgang til utleie
Boligen kan fritt leies ut i sin helhet.
Del av bolig med egen inngang. Opplegg for vann- og avløp i vegg. Rommene er godkjent for varig opphold, men delen er ikke godkjent som separat boenhet av kommunen.
Konsesjon / Odel
Det er ikke konsesjon eller odel på eiendommen.
Sikkerhetsstillelse
Alle eiendomsmeglingsforetak har lovpålagt forsikring av klientmidler begrenset oppad til kr 45 mill. Enkeltsaker er forsikret inntil kr 15 mill. Dersom kjøpers låneinstitusjon krever tilleggsforsikring ved omsetning over 15 millioner, må kjøper selv eller dennes låneinstitusjon dekke utgiftene forbundet med dette.
Planlagt overtagelse
Byggestart: Q4 2025.
Estimert ferdigstillelse: Q4 2026.
Byggetiden er forventet å være ca. 13 måneder fra byggestart. En senere oppstart på fysiske arbeider og/eller en lengre byggetid enn forventet kan medføre en senere overtakelse. Det gjøres uttrykkelig oppmerksom på at tidsanslaget ovenfor ikke er å anse som en avtalt frist for overtakelse i henhold til buofl. § 10.
Selgers forbehold
Det tas forbehold om åpning av byggelån og vedtak i kommunen om igangsetting.
Plantegninger viser ikke alle sjakter og tekniske installasjoner, herunder bla soilrør, ventilasjon og varmtvannsbereder. Dette vil bli plassert på egnede steder etter entreprenørens vurdering. Det kan forekomme innkassingersom ikke er merket på tegning. Redusert areal på bakgrunn av dette må forventes.
På salgstidspunktet er ikke alle forhold avklart. Det gjøres derfor oppmerksom på at alle opplysninger er gitt med forbehold om rett til endringer som er hensiktsmessige eller nødvendige, eksempelvis på grunn av offentlige krav og godkjenninger.
Byggebeskrivelsen/leveransebeskrivelsen skal angi hvilken teknisk standard prosjektet leveres med, samt foreløpig angi hva komplett leveranse etter kjøpekontrakten innebærer. Dersom det ikke er tatt inn spesifiserte bestemmelser i kjøpekontrakten, gjelder følgende krav: De tekniske løsninger skal tilfredsstille plan-og bygningslovgivningen, herunder kravene i teknisk forskrift av 2017. Det gjøres oppmerksom på at endelig detaljprosjektering ikke er avsluttet. Detaljprosjektering av byggets bæresystem, ventilasjons-sjakter, rørføringer med mer kan medføre mindre endringer i plassering og størrelser på vinduer. Det samme gjelder kjøkken og bad som vil kunne få endringer når det gjelder plassering av installasjoner som følge av tilpasning mot sjakter. Endelig utforming av tekniske sjakter må avvente detaljprosjekteringen, og det kan derfor forekomme endringer av lengde og/eller bredde på disse.
Forbruker kan ikke tilføre materiell og utstyr, eller selv utføre egeninnsats før overtakelse.
Boligen leveres i samsvar med lydkravene i NS 8175:2012 klasse C. Denne lydklassen tilfredsstiller kravene i Teknisk Forskrift. Utbygger gjør oppmerksom på at opplevelsen av lyd/støy er individuell, slik at enkelte kan oppfatte lyd/støy som sjenerende selv om lydkravene er oppfylt. I og med utførelsen er basert på de objektive kriteriene i NS 8175:2012, anses lyd/støy ikke som en mangel, når kriteriene i standarden er oppfylt.
Mindre avvik kan forekomme i boligens areal grunnet endring i bærekonstruksjon, sjakter etc. Forutsatt at dette ikke fører til vesentlige endringer av leveransen, vil dette ikke medføre grunnlag for prisreduksjon eller prisavslag. Installasjoner på kjøkken og bad kan få endret plassering som følge av tilpasning mot sjakter. Selger har rett til å foreta endringer som nevnt ovenfor, men vil alltid tilstrebe at endringer utføres på en slik måte at boligens generelle bruksverdi og standard ikke påvirkes vesentlig. Slike endringer gir ikke rett til prisjusteringer fra noen av partene og kan foretas uten forhåndsvarsel til kjøperne. Om det blir nødvendig å gjennomføre vesentlige endringer ut over forannevnte bestemmelser, plikter selger å varsle kjøper om endringene uten ugrunnet opphold.
Det tas forbehold om at illustrasjoner i tegninger, 3D, ogi annonsen er kun ment som eksempler og kan vise forhold som ikke er i samsvar med leveranse. Dette kan være møblering, fargevalg, dør-og vindusform, antall vinduer, bygningsmessige detaljer, for eksempel fasadedetaljer, manglende inntegning av sjakter/ innkassinger/ rør-føringer/dragere/søyler, detaljer på fellesarealer, detaljer på leke-apparater, materialvalg, beplantning etc.
Heksesot kan oppstå på deler av innvendige overflater, vanligvis på malte flater, laminater eller plast. Det er foreløpig lite kunnskap om årsaken til heksesot. Mye tyder på at måten boligen brukes på påvirker hyppigheten, og at risikoen er størst de to første årene. Det er spesielt viktig å unngå overdreven bruk av stearinlys/luktlys, og at det sørges for tilstrekkelig og god ventilasjon og utlufting. Heksesot er derfor ikke grunnlag nok for reklamasjon.
Det gjøres oppmerksom på at totalentreprenøren har i sin avtale med utbygger, at de skal håndtere samtlige reklamasjoner som gjelder eiendommen, og derfor skal alle reklamasjoner rettes direkte til totalentreprenøren gjennom deres digitale system
Solgt ihht bustadoppføringsloven
Boligene selges i henhold til Bustadoppføringslova som regulerer kjøpers (forbrukers) rettigheter og plikter ved avtale om oppføring av bolig og kjøp av fast eiendom der bygningen ikke er fullført når avtalen inngås. Ved salg til aksjeselskap legges Avhendingslovens bestemmelser til grunn. For øvrig gjelder Lov om eierseksjoner for eierseksjonssameiet og driften av dette.
Garantier
Det stilles garantier i henhold til Bustadoppføringslovas bestemmelser. Garanti etter § 12 vil bli stilt i forbindelse med avtaleinngåelse. Garantien skal være pålydende 3% av kjøpesummen i byggetiden og 5% i 5 år etter overlevering av boligene til kjøper. Garanti etter § 47 forutsettes stilt om selger ønsker utbetalt forskudd/delinnbetaling/sluttoppgjør før hjemmelsovergang. Eventuelle påkrevde endringer av garantier ved eventuelle videresalg/transporter utføres ikke og bekostes ikke av selger.
Forsikring
Frem til overtagelse vil eiendommen være forsikret av selger. Etter overtagelse vil eiendommen forsikres gjennom sameiets fellesforsikring. Kjøper må selv besørge innboforsikring og forsikring av eventuelle særskilte påkostninger.
Budgiving
Alle bud/kjøpetilbud på eiendommen skal være skriftlig og sendes meglerforetaket pr. fax, mail, sms eller via vår "gi bud"-knapp på våre nettsider. Knappen finner du også på Privatmeglerens hjemmeside for prosjektet, se på den enkelte bolig.
Da selger er profesjonell etter lovens forstand, kan forskriftenes regler om frist kl. 12.00 dagen etter siste annonserte visning fravikes. Det anbefales således å sette en fornuftig akseptfrist, slik at selger har tid til å vurdere budet og eventuelle forbehold.
Nærmere info om budgiving finner du på egen side sammen med kjøpetilbud/budskjema.
Som budgiver hos Privatmegleren kan du kreve budjournal fremlagt så snart handel er gjennomført.
Innhold i budjournal er lovregulert, og innebærer at budgivere må akseptere at opplysninger om budet kan bli fremlagt for selger, kjøper og øvrige budgivere. Budgiver som ikke blir kjøper, kan kreve kopi av anonymisert budjournal.
Lov om hvitvasking
Megler er underlagt lov om hvitvasking som innebærer plikt til å melde ifra til Økokrim om mistenkelige transaksjoner
Meglers vederlag og utlegg
Oppgjørskostnad (Kr.9 500)
Ny abonementsperiode november (Kr.3 900)
Ny abonementsperiode deember (Kr.3 900)
Pantattester/ grunnbok fra St.kartverk (prosjekt) (Kr.1 150)
Provisjon (Kr.152 950)
Ny abonementsperiode januar (Kr.3 900)
Ny abonementsperiode februar (Kr.3 900)
Totalt kr. (Kr.179 200)
Dersom eiendommen ikke omsettes, faktureres selger kr 12 375,- pr. enhet i illegg til avtalte utlegg.
Nyttige lenker
Nærområdet

PrivatMegleren Allé
Annonseinformasjon
| FINN-kode | 406779089 |
|---|---|
| Sist endret | 16. mars 2026 03:09 |
| Referanse | 186250168 |
Annonsene kan være mangelfulle i forhold til lovpålagt opplysningsplikt. Før bindende avtale inngås oppfordres interessenter til å innhente komplett informasjon fra meglerforetaket, selger eller utleier.