Bildegalleri

Granmotunet

Granmotunet

Prisantydning5 190 000 kr
Totalpris
5 218 824 kr
Omkostninger
28 824 kr

Kort om prosjektet

Varmbo ønsker velkommen til prosjektet Granmotunet - et topp moderne prosjekt med byggestart i 2024, med innholdsrik utforming og familievennlige løsninger. Boligene er arkitekttegnede, med velvalgte og gjennomtenkte planløsninger, design og materialvalg.

  • Planlegging

    Vinter 2025

  • Salgsstart

    Vår 2025

  • Byggestart

    Vinter 2025/26

  • Overtakelse

    2026

Nøkkelinfo

Boligtype
Enebolig
Soverom
3
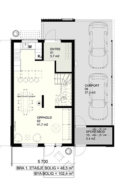
Internt bruksareal
97 m² (BRA-i)
Bruksareal
102 m²

Les mer om bruksareal her

Visning

Ta kontakt for å avtale visning.

Nærområdet

Annonseinformasjon

FINN-kode406678709
Sist endret22. des. 2025 08:06

Rapporter annonse

Annonsene kan være mangelfulle i forhold til lovpålagt opplysningsplikt. Før bindende avtale inngås oppfordres interessenter til å innhente komplett informasjon fra meglerforetaket, selger eller utleier.