Bildegalleri

Plantegning

Samvirkegården - I hjerte av Fannrem

Samvirkegården

Grøttevegen 48

Prisantydning1 990 000 kr
Totalpris
2 014 335 kr
Omkostninger
24 335 kr
Felleskost/mnd.
3 084 kr
  • Planlegging

    1. kvartal 2025

  • Salgsstart

    12. mai 2025

  • Byggestart

    3. kvartal 2025

  • Overtakelse

    1. kvartal 2027

Nøkkelinfo

Boligtype
Leilighet
Etasje
2
Soverom
1
Rom
2
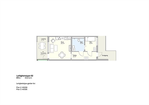
Internt bruksareal
43 m² (BRA-i)
Bruksareal
48 m²
Eksternt bruksareal
5 m² (BRA-e)
Balkong/Terrasse
10 m² (TBA)

Les mer om bruksareal her

Fasiliteter

Balkong/Terrasse
Bredbåndstilknytning
Garasje/P-plass
Heis
Vaktmester-/vektertjeneste

Visning

Nå har du sjansen til å sikre deg en moderne tildelingsleilighet midt i hjertet av Fannrem. Ta kontakt med megler for å avtale en gjennomgang av boligprosjektet.
Visningspåmelding

Beskrivelse

Omkostninger

1 990 000 (Pris)
--------------------------------------------------------
Omkostninger
10 000 (Andelskapital til borettslag)
4 215 (Etableringskostnad borettslag)
8 770 (Omkostninger til overdragelse av eiendommen til borettslaget)
260 (Panteattest kjøper)
545 (Tinglysningsgebyr hjemmelsoverføring)
545 (Tinglysningsgebyr pantedokument )
--------------------------------------------------------
24 335 (Omkostninger totalt)
--------------------------------------------------------
2 014 335 (Totalpris. inkl. omkostninger)

Nærområdet

Annonseinformasjon

FINN-kode406469408
Sist endret12. jan. 2026 09:22
Referanse1702250022

Rapporter annonse

Annonsene kan være mangelfulle i forhold til lovpålagt opplysningsplikt. Før bindende avtale inngås oppfordres interessenter til å innhente komplett informasjon fra meglerforetaket, selger eller utleier.