Bildegalleri

Leilighet 611 Salgstegning.jpg

KONOWS HAGER

Konows Hager|B611

Prisantydning11 950 000 kr
Totalpris
12 011 250 kr
Omkostninger
61 250 kr
Felleskost/mnd.
5 243 kr
  • Planlegging

    2024

  • Salgsstart

    Mai 2025

  • Byggestart

    2. kvartal 2026

  • Overtakelse

    2. kvartal 2028

Nøkkelinfo

Boligtype
Leilighet
Etasje
6
Soverom
2
Rom
3
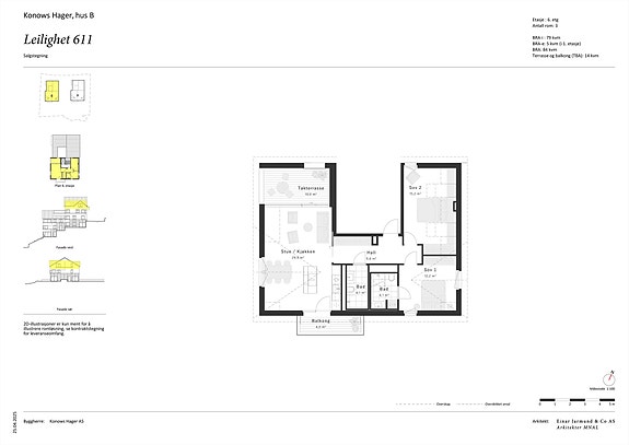
Internt bruksareal
79 m² (BRA-i)
Bruksareal
84 m²
Eksternt bruksareal
5 m² (BRA-e)
Balkong/Terrasse
14 m² (TBA)

Les mer om bruksareal her

Visning

Ta kontakt med megler for å avtale digital visning via Teams. Med prosjektets 3D-modell får man innblikk i utsikt og solforhold for den enkelte leilighet.
Visningspåmelding

Beskrivelse

Totalt bruksareal BRA: 84 kvm
BRA-i: 79 kvm
BRA-e: 5 kvm
TBA: 14 kvm

Arealbeskrivelse;
Arealet er beregnet ut fra Norsk standard NS 3940:2023. BRA-i: Internt arealet innenfor boligens omsluttende vegger, inkludert sjakt. BRA-e: Eksternt areal som boligen har eksklusiv bruksrett til, men som ikke ligger i boligen, f.eks. kjellerbod. BRA-b: Areal for innglasset balkong med veggareal. Total BRA = Summen av BRA-i, BRA-e og BRA-b. TBA er areal på terrasse og balkong. Arealet oppgis ved salg, men inngår ikke i BRA. Oppgitt romareal er netto romareal. De oppgitte arealer er å betrakte som cirka-arealer. Partene har ingen krav mot hverandre dersom arealet skulle vise seg å være 5 % mindre / større enn det oppgitte areal.

Nærområdet

Annonseinformasjon

FINN-kode405781312
Sist endret23. jan. 2026 14:12
ReferanseRCOPS1.25316

Rapporter annonse

Annonsene kan være mangelfulle i forhold til lovpålagt opplysningsplikt. Før bindende avtale inngås oppfordres interessenter til å innhente komplett informasjon fra meglerforetaket, selger eller utleier.