Bildegalleri
Leilighet 601 Salgstegning.jpg
KONOWS HAGER
Konows Hager|A601
Prosjektets status
Planlegging
2024
Salgsstart
Mai 2025
Byggestart
2. kvartal 2026
Overtakelse
2. kvartal 2028
Nøkkelinfo
- Boligtype
- Leilighet
- Etasje
- 6
- Soverom
- 2
- Rom
- 3
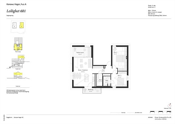
- Internt bruksareal
- 79 m² (BRA-i)
- Bruksareal
- 84 m²
- Eksternt bruksareal
- 5 m² (BRA-e)
- Balkong/Terrasse
- 14 m² (TBA)
Visning
Beskrivelse
Totalt bruksareal BRA: 84 kvm
BRA-i: 79 kvm
BRA-e: 5 kvm
TBA: 14 kvm
Arealbeskrivelse;
Arealet er beregnet ut fra Norsk standard NS 3940:2023. BRA-i: Internt arealet innenfor boligens omsluttende vegger, inkludert sjakt. BRA-e: Eksternt areal som boligen har eksklusiv bruksrett til, men som ikke ligger i boligen, f.eks. kjellerbod. BRA-b: Areal for innglasset balkong med veggareal. Total BRA = Summen av BRA-i, BRA-e og BRA-b. TBA er areal på terrasse og balkong. Arealet oppgis ved salg, men inngår ikke i BRA. Oppgitt romareal er netto romareal. De oppgitte arealer er å betrakte som cirka-arealer. Partene har ingen krav mot hverandre dersom arealet skulle vise seg å være 5 % mindre / større enn det oppgitte areal.
Nærområdet
Røisland & Co Eiendomsmegling AS
Annonseinformasjon
| FINN-kode | 405781308 |
|---|---|
| Sist endret | 09. des. 2025 14:28 |
| Referanse | RCOPS1.25312 |
Annonsene kan være mangelfulle i forhold til lovpålagt opplysningsplikt. Før bindende avtale inngås oppfordres interessenter til å innhente komplett informasjon fra meglerforetaket, selger eller utleier.