Bildegalleri

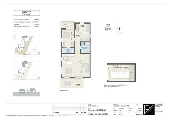
Leilighet A 202 ligger i 2. etasje i Bygg A.

Nevlunghavn - Skoleveien

Skoleveien 9 og 11

Prisantydning8 190 000 kr
Totalpris
8 226 010 kr
Omkostninger
36 010 kr
Felleskost/mnd.
3 337 kr
  • Planlegging

    2025

  • Salgsstart

    Uke 18

  • Byggestart

    Høsten 2025 v/ oppnådd forhåndssalg

  • Overtakelse

    Antatt høsten 2026

Nøkkelinfo

Boligtype
Leilighet
Etasje
2
Soverom
2
Internt bruksareal
83 m² (BRA-i)
Bruksareal
110 m²
Eksternt bruksareal
26 m² (BRA-e)
Balkong/Terrasse
18 m² (TBA)

Les mer om bruksareal her

Visning

Ta kontakt med megler for en gjennomgang av prosjektet og visning på tomten.
Visningspåmelding

Beskrivelse

Areal

Bruksareal: 110 kvm, BRA-i: 83,80 kvm , BRA-e: 26,20 kvm , TBA: 18,90 kvm

BRA: Totalt bruksareal (internt + eksternt)
BRA-i: Internt bruksareal - bruksareal inne i leiligheten
BRA-e: Eksternt bruksareal - bruksareal av garasje
TBA: Terrasse- og balkongareal - arealet av markterrasser/balkonger

Estimerte felleskostnader

kr. 3 337 pr. mnd.

Etasje

2. etasje.

Innhold

Leiligheten ligger i 2. etasje i Bygg A og inneholder:
Gang videre til 2 soverom og 2 bad, hvorav hovedsoverommet har direkte inngang til det ene badet og utgang til balkong mot nord.

Videre er det stue og kjøkken i åpen løsning med utgang til balkong mot syd.

Nærområdet

Annonseinformasjon

FINN-kode405453607
Sist endret30. apr. 2025 11:47
Referanse22250071

Rapporter annonse

Annonsene kan være mangelfulle i forhold til lovpålagt opplysningsplikt. Før bindende avtale inngås oppfordres interessenter til å innhente komplett informasjon fra meglerforetaket, selger eller utleier.