Bildegalleri

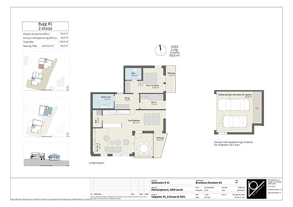
Leilighet A 201 ligger i 2. etasje i Bygg A og har dobbelgarasje.

Nevlunghavn - Skoleveien

Skoleveien 9 og 11

Prisantydning9 390 000 kr
Totalpris
9 426 010 kr
Omkostninger
36 010 kr
Felleskost/mnd.
3 526 kr
  • Planlegging

    2025

  • Salgsstart

    Uke 18

  • Byggestart

    Høsten 2025 v/ oppnådd forhåndssalg

  • Overtakelse

    Antatt høsten 2026

Nøkkelinfo

Boligtype
Leilighet
Etasje
2
Soverom
2
Internt bruksareal
93 m² (BRA-i)
Bruksareal
129 m²
Eksternt bruksareal
36 m² (BRA-e)
Balkong/Terrasse
20 m² (TBA)

Les mer om bruksareal her

Visning

Ta kontakt med megler for en gjennomgang av prosjektet og visning på tomten.
Visningspåmelding

Beskrivelse

Areal

Bruksareal: 129,40 kvm, BRA-i: 93 kvm , BRA-e: 36,40 kvm , TBA: 20,30 kvm

BRA: Totalt bruksareal (internt + eksternt)
BRA-i: Internt bruksareal - bruksareal inne i leiligheten
BRA-e: Eksternt bruksareal - bruksareal av garasje
TBA: Terrasse- og balkongareal - arealet av markterrasser/balkonger

Estimerte felleskostnader

kr. 3 526 pr. mnd.

Etasje

2. etasje.

Innhold

Leiligheten ligger i 2. etasje i Bygg A og inneholder:
Gang videre til 2 soverom og 2 bad, hvorav hovedsoverommet har direkte inngang til det ene badet og utgang til balkong mot øst.

Videre er det stue og kjøkken i åpen løsning med bod på innsiden av kjøkkenet. Fra stua er det utgang til balkong mot syd.

Denne leiligheten har dobbelgarasje.

Nærområdet

Annonseinformasjon

FINN-kode405453605
Sist endret30. apr. 2025 11:47
Referanse22250070

Rapporter annonse

Annonsene kan være mangelfulle i forhold til lovpålagt opplysningsplikt. Før bindende avtale inngås oppfordres interessenter til å innhente komplett informasjon fra meglerforetaket, selger eller utleier.