Bildegalleri
B253.png
Nye Leangen
Leangen Byhagen Bygg B
Nytt byggetrinn på Nye Leangen - 38 leiligheter - Fast pris - Vannbåren gulvvarme - Felles gjesterom
Prisantydning7 200 000 kr
Prosjektets status
Planlegging
Utført
Salgsstart
April 2025
Byggestart
01.02.2026
Overtakelse
01.05.2027 - 01.09.2027
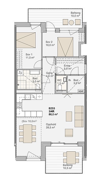
Nøkkelinfo
- Boligtype
- Leilighet
- Etasje
- 5
- Soverom
- 2
- Rom
- 3
- Internt bruksareal
- 86 m² (BRA-i)
- Bruksareal
- 91 m²
- Eksternt bruksareal
- 5 m² (BRA-e)
Fasiliteter
Balkong/Terrasse
Bredbåndstilknytning
Garasje/P-plass
Heis
Kabel-TV
Visning
Ta kontakt for å avtale visning.Beskrivelse
Ansvarlig megler
Marius Rennan
NB: Knappen for å vise hele beskrivelsen har kun en visuell effekt.
NB: Knappen for å vise hele beskrivelsen har kun en visuell effekt.
Nyttige lenker
Nærområdet
Leangen Bolig AS
Annonseinformasjon
| FINN-kode | 405333703 |
|---|---|
| Sist endret | 30. apr. 2025 08:00 |
| Referanse | KOT3.2529 |
Annonsene kan være mangelfulle i forhold til lovpålagt opplysningsplikt. Før bindende avtale inngås oppfordres interessenter til å innhente komplett informasjon fra meglerforetaket, selger eller utleier.