Bildegalleri
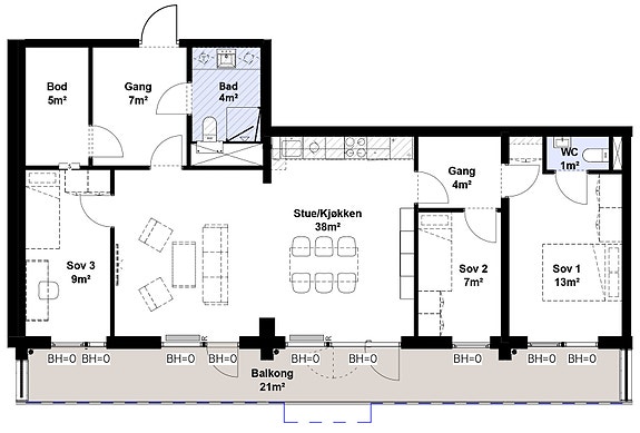
Plantegning for leilighet 2031
Ulvenplassen Humleblom borettslag salgstrinn 2
4-roms leilighet med romslig stue/kjøkken med direkte utgang til stor vestvendt balkong på på 21 kvm.
Prosjektets status
Planlegging
-
Salgsstart
-
Byggestart
Byggestart er vedtatt
Overtakelse
Overtagelse i tidsperioden 02.01.2026...
Nøkkelinfo
- Boligtype
- Leilighet
- Etasje
- 2
- Soverom
- 3
- Rom
- 4
- Internt bruksareal
- 98 m² (BRA-i)
- Bruksareal
- 103 m²
- Energimerking
- C - Mørkegrønn
Beskrivelse
Matrikkel
Gnr. 131 bnr. 108, andelsnr. 33 i Oslo kommune
Prisinformasjon
Ordinærpris
Totalpris: 9 402 235,-
Innskudd: 4 675 000,-
Fellesgjeld: 4 675 000,-
Omkostninger: 52 235,-
Fellesutgifter år 1-5: 23 092,-
Fellesutgifter etter år 6: 27 346,-
OBOS Deleie
Totalpris: 4 701 535,-
Innskudd: 2 337 500,-
Fellesgjeld: 2 337 500,-
Omkostninger: 26 535,-
Leie per måned: 14 400,-
Fellesutgifter år 1-5: 11 546,-
Fellesutgifter etter år 6: 13 673,-
OBOS Bostart
Totalpris: 8 467 235,-
Innskudd: 3 740 000,-
Fellesgjeld: 4 675 000,-
Omkostninger: 52 235,-
Fellesutgifter år 1-5: 23 092,-
Fellesutgifter etter år 6: 27 346,-
Adresse
Standardveien 18, Humleblom borettslag salgstrinn 2, leil. 2031* Mulighet for Bostart og Deleie
0581
Oslo
Fasiliteter
Merk at vi holder jevnlige visninger hver uke som annonseres på våre hjemmesider, se lenke til høyre i annonsen for hjemmeside.
https://www.obos.no/bolig/prosjekt/ulvenplassen
Boligprosjektet Ulvenplassen blir en del av et skjermet og trygt nabolag med gode og familievennlige møteplasser, kort vei til offentlig transport og butikker. Her kan du møte naboen på en av kafeene, i nabolagshuset eller i et av parkdragene som går gjennom Ulven.
Leilighetene i Ulvenplassen vil ha smarte planløsninger i varierende størrelser og som vil passe for alle livsfaser
Ulvenplassen vil bestå av totalt 288 boliger fordelt på tre borettslag som utgjør Humleblom borettslag med 113 leiligheter, Bergmynte borettslag med 62 aldersvennlige boliger samt planlagte Villrose borettslag med 28 boliger.
Med Ulvenplassen har Obos som mål at alle andelseiere i de tre borettslagene skal bli kjent med hverandre internt i hvert borettslag, og på tvers av borettslagene og uavhengig av alder. For å bidra til at dette lykkes, er det derfor etablert mange flotte fellesarealer både utendørs og innendørs til bruk for alle andelseiere i borettslagene.
Om området
Ulven er et område som fortsatt er i utvikling, og dermed et satsingsområde i utvikling med et økende antall aktiviteter og et nyskapende sted som du nå kan bli en del av.
Du som bor på Ulven får kort vei til det meste - Ulven er mer sentralt enn mange tror!
T-banen på Økern, som er et knutepunkt for både buss og bane, tar deg raskt på kryss og tvers i byen. I tillegg finnes det allerede nå flotte gang- og sykkelveier gjennom Ulven, slik at du kan sykle, trille, jogge eller gå til både sentrum og skogen.
Grønn mobilitet står sentralt på Ulven. Derfor har vi har også laget bildeleordninger og satt opp bysykler. Lillomarka og Grefsenkleiva med attraktive turområder og anlegg for både sommer- og vinteraktiviteter er ikke langt unna.
Til Vålerengas nye Intility Arena med Vålerengas Kultur- og idrettspark, Valhall idrettspark og treningssenter og Valle Hovin med skøytebane tar det bare ti minutter å sykle. På den andre siden har du Økern, der området rundt Økern senter skal utvikles og fornyes.
Ved siden av Ulvenplassen finner du gatetunet som går over i Kabelgata, et unikt gatemiljø med industriell teglbebyggelse fra ulike epoker. Kuben videregående skole og Erling Viksjøs ikoniske landmerke, Hotell 33 ligger også i Kabelgata som skal utvikles til det urbane sentrumet i Hovinbyen. Her skal det satses med kultur og næring, som skal gi identitet og særpreg til området.
Vis-a-vis Ulvenplassen har vi anlagt Ulven Torg, en møteplass med kafe, butikker og flere parker med ulike grøntområder. Her finner du blant annet dagligvarebutikk, apotek, frisør, thai take-away og ulike butikker.
På Ulven er Construction City snart ferdigstilt, en næringsklynge for hele byggebransjen, inkludert OBOS' sitt nye hovedkontor, med totalt ca 4500 arbeidsplasser. Dette blir en stor arbeidsplass som står ferdig sensommeren 2025, med blant annet planlagt restaurant og andre servicetilbud på gateplan som også vil bidra til puls og liv på Ulven. Mulighetene blir mange for den som bor på Ulven!
"Construction City en del av nabolaget"
Levende byområder utvikles best der mennesker bor, jobber og har et godt tilbud av tjenester. Ulven vokser frem som nettopp et slik område.
Her skapes arbeidsplasser i takt med at flere nabolag ferdigstilles i regi av OBOS.
Prestisjeprosjektet Construction City åpner dørene sommeren 2025. Da begynner innflyttingen for en rekke selskaper og til sammen vil det jobbe opp mot 4 500 mennesker i bygget.
Det er OBOS som står bak Construction City, og blir selv en av leietakerne i bygget med sitt nye hovedkontor.
Construction City blir mer enn bare et kontorbygg, det blir en forlengelse av bygulvet på Ulven. Her inviteres også nabolaget til å ta i bruk en rekke tilbud og tjenester. En pizzarestaurant med egen avdeling for spill og aktiviteter hvor man kan feire bursdager, jubileum eller spise en hyggelig familiemiddag. I byggets toppetasje med utsikt over Oslo by, blir det en restaurant og takterrasse.
Her kan du se oversikt over flere av tilbudene som vil være åpent og tilgjengelig i Construction City:
Pizzarestaurant
Restaurant med takterrasse
To Kaffebarer, der den ene vil ha eget bakeri
Leie møterom til generalforsamlinger /sameiemøter osv
Gjesteparkering (one park)
Bilpool i garasje
Pakkebokser
Mini storage lagring
Fellesarealer
Fellesarealet innendørs i Ulvenplassen er på nærmere 300 kvadratmeter, fordelt over en rekke ulike soner som skaper hyggelige oppholdsrom.
I 1. etasje mellom inngang B og C er det 132 m2 fordelt på både kjøkken, spisestue, stue, toaletter. I tillegg en felles markterrasse inn mot gårdsrommet. De store oppholdsrommene kan åpnes opp og lukkes ved hjelp av skyvedører og en foldevegg. Vil du eksempelvis nyte en rolig kveld i stuen mens andre kokkelerer, kan rommene skilles av. Arrangerer dere derimot en felles middag, kan de to romslige stuene åpnes opp til ett stort oppholdsrom. Interiørarkitekter fra Ikea skal innrede fellesarealene, slik at beboerne får et interiør som spiller på deres behov og rommets styrker.
Bli kjent på tvers av generasjoner
Vegg i vegg med det store fellesarealet for alle på Ulvenplassen, er det et fellesareal for andelseiere i inngang B i borettslaget. De har naturligvis tilgang til det store fellesarealet på lik linje med alle andre og vi ønsker at folk i borettslagene blir kjent med hverandre uavhengig av alder.
Andelseiere i det aldersvennlige borettslaget Bergmynte har da har et eget sted hvor de kan trekke seg tilbake. Dette området inkluderer en TV-stue/bibliotek, et pauserom/ansatt, en gjesteleilighet og to stk egne markterrasser (en med utgang fra tv-stue/bibliotek og en utenfor pauserom/ansatt).
På Ulvenplassen bygger vi for at alle skal leve med verdighet og høy livskvalitet. Ved å ha fellesarealer der alle får de muligheten til å bli kjent med folk på tvers av generasjoner, samtidig som de kan lene seg tilbake i selskap med noen i samme livssituasjon som dem selv.
Venner på vaskerommet
Boligprosjektet Ulvenplassen har også et fellesvaskeri, med tilhørende oppholdsrom og et eget toalett. Vaskeriet har i andre prosjekt vist seg å være en uformell og viktig møteplass for naboer. Her kan du, mens du venter på at klærne dine skal bli vasket og tørket, sitte i og slå av en prat med personen du møtte i samme ærend som deg. Fra sosial sone/møterom er det glassdører inn mot fellesvaskeriet. Fra både fellesvaskeri og møterom er det glassdører ut mot gårdsrommet for godt lysinnslipp, samtidig som det åpner for at de utendørs kan se hvem som sitter og snakker sammen i tilfelle de vil bli med på moroa.
Lokale lokaler
Med utsikt mot flotte Construction City kommer det totalt 6 oppholdsrom og 3 toaletter fordelt på tre plan i inngang A som er tilgjengelige for alle boligandelseiere i Ulvenplassen. Disse er planlagt slik at de kan bookes til formål som hjemmekontor, gjesterom for overnatting, bursdager, middager eller andre private selskap der en ikke legger opp til støyende aktivitet. Så om du har en bursdag som nærmer seg, trenger du ikke lenger stresse med hvor du kan ha feiringen din.
Sene sommerkvelder inne og ute
Gårdsrommet er grønt og frodig. Her kommer det lekeplasser og turstier, benker og hageområder. Noe for alle og enhver, et grøntareal som stimulerer til samhandling og hyggelige nikk på tvers av aldersgrupper. Beboerne i Ulvenplassen får også tilgang til en av to flotte takterrasser med utekjøkken, og er godt egnet til sosiale sammenkomster. Andelseiere i inngang A, B og C har tilgang til terrassen i dette bygg, og andelseiere i inngang D, E, F, G, H og J har tilgang til takterrassen i sitt bygg. Her er det bare å glede seg til de sene sommerkveldene.
Sol fra Syden
Prikken over i-en i fellesstuen i plan 1 mellom inngang B-C på Ulvenplassen er "dagslyshagen". Den simulerer dagslys ved hjelp av svært sofistikerte taklamper, slik at sommersolen aldri er langt unna, uansett årstid. I dette rommet er det mulig å koble av både før og etter en lang dag på jobb, eller bare drømme seg bort når snøen i mars ikke smelter fort nok. Dagslyslampen med tilhørende lysprogrammet kan nemlig speile dagslyset fra både Rio de Janeiro og Barcelona. Å få det viktige og helsebringen morgenlyset hele året, er med andre ord en opplevelse beboerne på Ulvenplassen vil være ganske så alene om å ha tilgang til.
Parkering
Det er ikke mulig å kjøpe parkeringsplasser, men det blir muligheter for leie av p-plass(er) i garasjeanlegget. Det er satt av p-plasser som er dedikert boligkjøpere til Humleblom brl, hvor den enkelte inngår egen avtale direkte med parkeringsselskapet. Dersom det er stor interesse for leie av p-plasser, vil det bli satt opp en venteliste i regi av Ulvenplassen Eierseksjonssameie.
Kvalitet, standard og tilvalg
Leilighetene leveres med tidsriktig og god standard i ulike farger i ulike etasjer.
Gulv:
Alle gulvene i leiligheter leveres med 1-stavs hvitpigmentert laminatparkett bortett fra baderomsgulvet som leveres med beige gulvfliser.
Kjøkken:
Det tilbys 3 ulike fargevarianter av HTH kjøkkeninnredning inkludert hvitevarer som induksjons koketopp, komfyr, oppvaskmaskin, og kombinert kjøl- og fryseskap. De ulike tidsriktige fargevarianter på kjøkkenfrontene vil variere ut fra hvilken etasje leilighetene ligger i. Det leveres høye overskap med foring opp til tak i samme farge som kjøkkenfrontene. For noen av leilighetene i plan 1 med ekstra stor takhøyde, blir innkassing over overskapene plassbygd med gips som så males i leilighetens veggfarge. Demping på skuffer og skap.
Bad:
Alle badene blir leveret flislagt i en varm beige/sandstein farge, type Marte Elegance i størrelse 30x30 cm på gulvet , 5x5 cm på gulvet i dusjen og 30x60 cm på veggene. Badene leveres som prefabrikkert våtromsmodul (badekabin) for de fleste leilighetene, men noen få leiligheter får et plassbygd bad.
Himling/takhøyder og nedforing/ innkassing:
Vanlig netto etasjehøyde i leilighetene blir ca. 2,5 meter. Deler av himlingen vil bli nedsenket med en takhøyde på minimum 2,2 meter pga. tekniske føringer. Dette er typisk i gang, bad og bod. Over kjøkkenskap vil det være en innkassing for ventilasjonskanalen for avtrekksvifte.
Innvendige vegger:
Farger innenfor hver enkelt leilighet er lik, men vil varierer fra leilighet til leilighet og som er tilpasset også fargene på de ulike fargene på frontene til kjøkkenet som leveres, se egen oversikt som viser hvilke etasjer / eiligheter som har hvilke farger.
Oppvarming
Radiatorer fra fjernvarme, vannbåren gulvvarme på bad.
Energimerking
Energimerking Grønn C.
Innflytting
Overtagelsen av boligene skjer i tidsperioden
Hus 1, inngang A - C: 01.01.26 til 31.03.26.
Hus 2, inngang D - J: 15.01.26 til 15.04.26.
Fellesgjeld/lånevilkår
Fellesgjelden i dette prosjektet er et annuitetslån over 40 år med 5 års avdragsfrihet. Dette lånet løper med flytende rente som i dag har rentesats 4,85 %. Boligens felleskostnader er derfor beregnet med driftskostnader og rentekostnader på fellesgjelden etter denne satsen. Når fellesgjelden nedbetales fra år 6 må felleskostnadene forventes å øke. Prislisten for prosjektet viser hva dette er beregnet til (kontakt prosjektselger for fullstendig prisliste). For øvrig må endringer i den flytende rentesatsen forventes å medføre endringer i felleskostnadene.
Et annuitetslån er et lån som nedbetales med like store terminbeløp, helt til lånet er innfridd. I begynnelsen er derfor avdragsdelen liten, mens rentedelen er stor. Etter hvert som lånet reduseres stiger avdragsandelen og renteandelen blir mindre.
Det er mulig å innfri fellesgjelden helt eller delvis, gjennom OBOS IN-ordning.
Nærområdet

OBOS BBL
Ulven Bolig AS
Utbygger
Annonseinformasjon
| FINN-kode | 404292466 |
|---|---|
| Sist endret | 09. feb. 2026 09:43 |
| Referanse | 810250351 |
Annonsene kan være mangelfulle i forhold til lovpålagt opplysningsplikt. Før bindende avtale inngås oppfordres interessenter til å innhente komplett informasjon fra meglerforetaket, selger eller utleier.